Утв. и введен в действие Приказом Федерального агентства по техническому регулированию и метрологии от 2 апреля 2024 г. N 392-ст
Национальный стандарт РФ ГОСТ Р 57539-2024
"ОБОРУДОВАНИЕ ГИМНАСТИЧЕСКОЕ. КАНАТЫ ГИМНАСТИЧЕСКИЕ. РАЗМЕРЫ, ТРЕБОВАНИЯ БЕЗОПАСНОСТИ И МЕТОДЫ ИСПЫТАНИЙ"
Gymnastic equipment. Vertical climbing ropes. Dimensions, safety requirements and test methods
ОКС 97.220.30
Дата введения - 1 сентября 2024 года
Взамен ГОСТ Р 57539-2017
Предисловие
1 РАЗРАБОТАН Ассоциацией Саморегулируемой организацией "Отраслевое объединение национальных производителей в сфере физической культуры и спорта "Промспорт" (СРО "Промспорт")
2 ВНЕСЕН Техническим комитетом по стандартизации ТК 444 "Спортивные и туристские изделия, оборудование, инвентарь, физкультурные и спортивные услуги"
3 УТВЕРЖДЕН И ВВЕДЕН В ДЕЙСТВИЕ Приказом Федерального агентства по техническому регулированию и метрологии от 2 апреля 2024 г. N 392-ст
4 Настоящий стандарт разработан с учетом основных нормативных положений стандарта ДИН 7911-2:2020 "Гимнастическое оборудование. Инвентарь для лазания. Часть 2. Вертикальные канаты для лазания, размеры, требования техники безопасности и методы испытаний" (DIN 7911-2:2020 "Gymnastic equipment - Climbing apparatus - Part 2: Vertical climbing ropes, dimensions, safety requirements and test methods", NEQ)
5 ВЗАМЕН ГОСТ Р 57539-2017
Правила применения настоящего стандарта установлены в статье 26 Федерального закона от 29 июня 2015 г. N 162-ФЗ "О стандартизации в Российской Федерации". Информация об изменениях к настоящему стандарту публикуется в ежегодном (по состоянию на 1 января текущего года) информационном указателе "Национальные стандарты", а официальный текст изменений и поправок - в ежемесячном информационном указателе "Национальные стандарты". В случае пересмотра (замены) или отмены настоящего стандарта соответствующее уведомление будет опубликовано в ближайшем выпуске ежемесячного информационного указателя "Национальные стандарты". Соответствующая информация, уведомление и тексты размещаются также в информационной системе общего пользования - на официальном сайте Федерального агентства по техническому регулированию и метрологии в сети Интернет (www.rst.gov.ru)
1 Область применения
Настоящий стандарт распространяется на канаты для лазания (далее - канаты), закрепленные на направляющей под потолком спортивных залов.
Настоящий стандарт устанавливает характеристики, требования безопасности и методы испытаний.
2 Нормативные ссылки
В настоящем стандарте использованы нормативные ссылки на следующие документы:
ГОСТ 30893.1 (ИСО 2768-1-89) Основные нормы взаимозаменяемости. Общие допуски. Предельные отклонения линейных и угловых размеров с неуказанными допусками
ГОСТ ISO 3864-1 Графические символы. Сигнальные цвета и знаки безопасности. Часть 1. Принципы проектирования знаков и сигнальной разметки
ГОСТ ISO 9554 Канаты из волокон. Общие технические условия
ГОСТ Р 55789 Оборудование и инвентарь спортивные. Термины и определения
СП 31-112 Свод правил по проектированию и строительству. Физкультурно-спортивные залы. Часть 1
СП 332.1325800 Спортивные сооружения. Правила проектирования
Примечание - При пользовании настоящим стандартом целесообразно проверить действие ссылочных стандартов (сводов правил) в информационной системе общего пользования - на официальном сайте Федерального агентства по техническому регулированию и метрологии в сети Интернет или по ежегодному информационному указателю "Национальные стандарты", который опубликован по состоянию на 1 января текущего года, и по выпускам ежемесячного информационного указателя "Национальные стандарты" за текущий год. Если заменен ссылочный документ, на который дана недатированная ссылка, то рекомендуется использовать действующую версию этого документа с учетом всех внесенных в данную версию изменений. Если заменен ссылочный документ, на который дана датированная ссылка, то рекомендуется использовать версию этого документа с указанным выше годом утверждения (принятия). Если после утверждения настоящего стандарта в ссылочный документ, на который дана датированная ссылка, внесено изменение, затрагивающее положение, на которое дана ссылка, то это положение рекомендуется применять без учета данного изменения. Если ссылочный документ отменен без замены, то положение, в котором дана ссылка на него, рекомендуется применять в части, не затрагивающей эту ссылку. Сведения о действии свода правил целесообразно проверить в Федеральном информационном фонде стандартов.
3 Термины и определения
В настоящем стандарте применены термины по ГОСТ Р 55789.
4 Технические требования и размеры
Установку гимнастического оборудования в спортивных залах осуществляют по СП 31-112, СП 332.1325800.
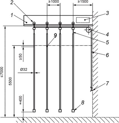
Основные элементы и размеры комплекта гимнастического оборудования для лазания по канатам в спортивных залах показаны на рисунке 1.

1 - направляющая; 2 - каретки; 3 - поле для нанесения маркировки; 4 - поворотный блок; 5 - крепление каната; 6 - трос ручной тали; 7 - настенное крепление; 8 – защита от раскручивания; 9 - отметка высоты от уровня пола
Рисунок 1 - Пример оборудования места для лазания в спортивном зале
5 Требования к материалам
Детали комплекта гимнастического оборудования следует изготовлять из следующих материалов:
- каретку и крепление каната - из стали, чугуна или пластмассы;
- канат - из пеньки;
- тросы ручной тали и подъемного устройства - из пеньки или пластмассы;
- поворотный блок - из стали или пластмассы;
- направляющую - из стального профиля.
6 Требования техники безопасности
6.1 Канаты должны иметь четырехрядную свивку по ГОСТ ISO 9554.
Минимальное усилие разрушения может быть изменено в соответствии с требованиями к креплению, указанными в 6.4, с коэффициентом запаса прочности 6.
6.2 Нижний конец каната должен быть защищен от раскручивания.
6.3 На канате на высоте 5500 мм от уровня пола должна быть нанесена маркировка красного цвета, например с помощью кожаного или пластикового покрытия, как показано на рисунке 1.
6.4 Крепление каната в рабочем положении должно выдерживать сосредоточенную вертикальную нагрузку не менее 2000 Н и сосредоточенную горизонтальную нагрузку не менее 900 Н без повреждений, нарушающих функционирование по назначению.
6.5 Расстояние от центра каретки до стены или встроенного оборудования должно быть не менее 1500 мм по направлению к направляющей с обеих сторон и по вертикали от направляющей не менее 4500 мм.
Расстояние между осями канатов должно быть не менее 1000 мм.
6.6 В положении для эксплуатации каретки должны быть зафиксированы. Самопроизвольное разъединение или ослабление соединения между каретками недопустимо.
6.7 Крепление канатов должно иметь предохранитель от случайного отсоединения канатов.
6.8 Канаты не допускается завязывать узлом. Рядом с канатами должен быть прикреплен запрещающий знак, оформленный в соответствии с ГОСТ ISO 3864-1, как показано на рисунке 2, с дополнительной надписью - "Канаты не завязывать узлом", которая должна быть прикреплена под ним.

Рисунок 2 - Пример знака о запрещении завязывать канаты узлом
6.9 Общие допуски деталей комплекта оборудования - по ГОСТ 30893.1.
7 Методы испытаний
7.1 Если не указано иное, требования, указанные в разделах 4, 5 и 6, проверяют путем измерений, визуально или испытаниями.
7.2 Проверку зазоров осуществляют средствами измерений соответствующего класса точности.
7.3 Каретки проверяют путем функционального испытания.
7.4 Проверку крепления проводят визуально и прикладывая заданную нагрузку.
8 Маркировка
Маркировка комплекта гимнастического оборудования для лазания должна содержать ссылку на настоящий стандарт, количество канатов в комплекте, наименование или товарный знак изготовителя или импортера.