электронный сборник нормативных документов по строительству
Обновления
09.05.2026 12:28
электронный сборник нормативных документов по строительству

Приказ от 22.09.2016 г. № 3405 ОБ УТВЕРЖДЕНИИ ТИПОВЫХ АРХИТЕКТУРНО-ХУДОЖЕСТВЕННЫХ РЕШЕНИЙ НЕСТАЦИОНАРНЫХ ТОРГОВЫХ ОБЪЕКТОВ ПРИ СТАЦИОНАРНЫХ ТОРГОВЫХ ОБЪЕКТАХ, ПРИНЦИПАХ ПРИМЕНЕНИЯ, ХАРАКТЕРИСТИК И ТРЕБОВАНИЙ

Приказ Комитета по архитектуре и градостроительству г. Москвы от 22 сентября 2016 г. N 3405
"ОБ УТВЕРЖДЕНИИ ТИПОВЫХ АРХИТЕКТУРНО-ХУДОЖЕСТВЕННЫХ РЕШЕНИЙ НЕСТАЦИОНАРНЫХ ТОРГОВЫХ ОБЪЕКТОВ ПРИ СТАЦИОНАРНЫХ ТОРГОВЫХ ОБЪЕКТАХ, ПРИНЦИПАХ ПРИМЕНЕНИЯ, ХАРАКТЕРИСТИК И ТРЕБОВАНИЙ"

Во исполнение постановления Правительства Москвы от 23 июня 2016 г. N 355-ПП "О размещении в городе Москве нестационарных торговых объектов при стационарных торговых объектах" и в целях разработки единых типовых архитектурно-художественных решений объекта, характеристик и требований к нестационарным торговым объектам при стационарных торговых объектах приказываю:

1. Утвердить Типовые архитектурно-художественные решения нестационарных торговых объектов при стационарных торговых объектах, принципы применения, характеристики и требования согласно приложению к настоящему приказу.

2. Начальнику Управления архитектурно-художественного облика города Москвы Пилосову А.М.:

2.1. Произвести рассылку настоящего приказа в заинтересованные органы исполнительной власти города Москвы после его утверждения.

2.2. Учитывать положения настоящего приказа при разработке проектов размещения нестационарных торговых объектов при стационарных торговых объектах.

3. Начальнику Управления общественных связей Эммануилову В.И. обеспечить размещение настоящего приказа на официальном сайте Москомархитектуры в информационно-телекоммуникационной сети Интернет.

4. Контроль за выполнением настоящего приказа возложить на заместителя председателя Москомархитектуры Гук Т.Н.

Председатель

Ю.В. Княжевская

Приложение
к приказу Комитета по архитектуре
и градостроительству г. Москвы
от 22 сентября 2016 г. N 3405

Типовые архитектурно-художественные решения нестационарных торговых объектов при стационарных торговых объектах, принципы применения, характеристики и требования

Типы нестационарных торговых объектов при стационарных торговых объектах в соответствии с постановлением Правительства Москвы от 23 июня 2016 г. N 355-ПП

image001.gif

image003.jpg

Максимальная ширина маркизных конструкций в плане не более 6200 мм, высота не более 3000 мм.

"Навес универсальный"

image004.gif

Применение данного типа нестационарного торгового объекта при стационарных торговых объектах, не допускается в случаях единовременного размещения на смежных земельных участках нестационарных торговых объектов типов: "бахчевой развал", "маркиза с односторонним тентом", "маркиза с двусторонним тентом", "торговый навес".

"Елочный базар"

image005.gif

Площадь и конфигурация данного нестационарного торгового объекта в плане определяется проектом размещения нестационарного торгового объекта.

Примеры вариантов планировочного решения, габаритные размеры элементов и иные характеристики НТО специализации "елочный базар" утверждены Приказом Москомархитектуры от 14.09.2015 N 3294.

"Тележка"

image006.gif

Габаритные размеры и иные характеристики НТО утверждены Приказом Москомархитектуры от 17.05.2016 N 1545.

"Бахчевой развал"

image007.gif

Применение данного типа нестационарного торгового объекта при стационарных торговых объектах, не допускается в случаях единовременного размещения на смежных земельных участках нестационарных торговых объектов типов: "маркиза с односторонним тентом", "маркиза с двусторонним тентом", "навес универсальный", "торговый навес",

Габаритные размеры и иные характеристики НТО специализации "бахчевой развал" утверждены Приказом Москомархитектуры от 03.07.2015 N 2392.

Описание. Маркиза отдельностоящая с односторонним тентом

Маркиза с односторонним тентом представляет собой сборную конструкцию состоящую из каркасной системы: опорных стоек, поперечной балки для крепления маркизы.

Размер маркизы с односторонним тентом:

- Максимальная ширина конструкции в плане не более 6200 мм, максимальный вынос тента - 2500 мм, высота не более 3000 мм.

Несущий каркас выполнен из:

- ТИП "М1-1":

- полиэфирное литье с покрытием высокопрочной краской;

- ТИП "М1-2":

- брус клееный 125x125 мм, соединенный между собой при помощи стандартных крепежных элементов (болты, шайбы, гайки). Для крепления бруса к брусу используются оцинкованные шурупы длин и сечений рекомендованных производителем метизов. Окраска деталей деревянного каркаса производится эмалью на водной основе для наружных работ в 2 слоя с предварительным нанесением грунта с антисептическим эффектом. Эмаль компонентная, высокопрочная для наружного использования.

- ТИП "М1-3":

- полиэфирное литье с покрытием высокопрочной краской;

- ТИП "М1-4":

- ферма четырехугольная с параллельными поясами из стальных профильных труб, защищенных антикоррозийным покрытием на основе горячего цинка, выполненного на заводе.

Локтевая маркиза - выдвижной навес, опорные направляющие которой представляют собой полые рычаги состоящие из плеч, с шарнирным сочленением. Внутри полых рычагов находится трос или цепь для обеспечения устойчивости направляющей. В закрытом виде, рычаги сложены, ткань свернута в рулон.

Ткань маркизы - плотная водоотталкивающая ткань из полиэфирной нити, с полиуретановой пропиткой

Для обеспечения устойчивости конструкции, опорные стойки крепятся к утяжеляющим элементом (ложемент).

Дополнительно может комплектоваться декоративным элементом (конек).

Описание. Маркиза отдельностоящая с двусторонним тентом

Маркиза с двусторонним тентом представляет собой сборную конструкцию состоящую из каркасной системы: опорных стоек, поперечной балки для крепления маркизы.

Размер маркизы с двусторонним тентом:

- Максимальная ширина конструкции в плане не более 6200 мм, максимальный вынос тентов - 5000 мм, высота не более 3000 мм.

Несущий каркас выполнен из:

- ТИП "М2-1":

- полиэфирное литье с покрытием высокопрочной краской;

- ТИП "М2-2":

- брус клееный 125x125 мм, соединенный между собой при помощи стандартных крепежных элементов (болты, шайбы, гайки). Для крепления бруса к брусу используются оцинкованные шурупы длин и сечений рекомендованных производителем метизов. Окраска деталей деревянного каркаса производится эмалью на водной основе для наружных работ в 2 слоя с предварительным нанесением грунта с антисептическим эффектом. Эмаль компонентная, высокопрочная для наружного использования.

- ТИП "М2-3":

- полиэфирное литье с покрытием высокопрочной краской;

- ТИП "М2-4":

- ферма четырехугольная с параллельными поясами из стальных профильных труб, защищенных антикоррозийным покрытием на основе горячего цинка, выполненного на заводе.

Локтевая маркиза - выдвижной навес, опорные направляющие которой представляют собой полые рычаги состоящие из плеч, с шарнирным сочленением. Внутри полых рычагов находится трос или цепь для обеспечения устойчивости направляющей. В закрытом виде, рычаги сложены, ткань свернута в рулон.

Ткань маркизы - плотная водоотталкивающая ткань из полиэфирной нити, с полиуретановой пропиткой

Для обеспечения устойчивости конструкции, опорные стойки крепятся к утяжеляющим элементом (ложемент).

Дополнительно может комплектоваться декоративным элементом (конек).

Маркизы отдельностоящие

Габаритные размеры

image008.gif

Применение данного типа нестационарного торгового объекта при стационарных торговых объектах, не допускается в случаях единовременного размещения на смежных земельных участках нестационарных торговых объектов типов: "бахчевой развал", "навес универсальный", "торговый навес".

Внешний вид маркизы отдельностоящей с односторонним тентом

image009.gif

Применение данного типа нестационарного торгового объекта при стационарных торговых объектах, не допускается в случаях единовременного размещения на смежных земельных участках нестационарных торговых объектов типов: "бахчевой развал", "навес универсальный", "торговый навес".

Внешний вид маркизы отдельностоящей с двусторонним тентом

image010.gif

Применение данного типа нестационарного торгового объекта при стационарных торговых объектах, не допускается в случаях единовременного размещения на смежных земельных участках нестационарных торговых объектов типов: "бахчевой развал", "навес универсальный", "торговый навес".

Возможные варианты колористических решений

image011.gif

Внешний вид каркаса (стойки) для крепления маркиз

image012.gif

Декоративный элемент (конек)

image013.gif

Варианты утяжеляющего элемента (ложемент)

image014.gif

image015.gif

Примеры наполнения для различных специализаций

- каркас маркизы отдельностоящей с односторонним тентом

image016.gif

image017.gif

image018.gif

- каркас маркизы отдельностоящей с двусторонним тентом

image019.gif

image020.gif

image021.gif

Схемы размещения маркизной конструкции:

- примыкающая к фасаду здания

image022.gif

- отдельностоящая.

image023.gif

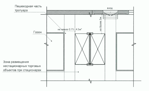
* СНиП 2.07.01-89 "Градостроительство. Планировка и застройка городских сельских поселений" табл. 8.

Размещение торгового оборудования

- в нестационарном торговом объекте, примыкающем к фасаду здания

image024.gif

- в нестационарном торговом объекте, отдельностоящем.

image025.gif

Описание. Торговый навес

Торговый навес состоит из отдельных элементов каркаса, покрытия из плотной водоотталкивающей ткани. Сборка торгового навеса осуществляется на площадке размещения.

Размеры торговых навесов:

- "Н-1" Габариты в плане: 2,2x2,2 м (проекция кровли 4,0x4,0 м), высота 3200 мм;

- "Н-2" Габариты в плане: 2,2x4,3 м (проекция кровли 4,0x6,1 м), высота 3200 мм;

- "Н-3" Габариты в плане: 2,2x6,4 м (проекция кровли 4,0x8,2 м), высота 3200 мм;

- "Н-4" Габариты в плане: 2,2x8,5 м (проекция кровли 4,0x10,3 м), высота 3200 мм.

Конструкция торгового навеса состоит из криволинейных монтажных элементов, собираемых на объекте при помощи стандартных монтажных элементов (болты, шайбы, гайки).

Криволинейные монтажные элементы выполнены:

- из металлических профильных труб, защищенных антикоррозийным покрытием на основе горячего цинка, выполненного на заводе.

Основание пола выполнено в виде каркаса из металлических труб с покрытием из фанеры ФСФ толщиной 18 мм.

Покрытие крыши выполнено из плотной водоотталкивающей ткани из полиэфирной нити, с полиуретановой пропиткой в виде купольной формы, растянутой между четырьмя радиально пересекающимися дугами из стальных труб.

"Торговый навес"

Тип "Н-1"

Габариты в плане: 2,2x2,2 м (проекция кровли 4,0x4,0 м), высота 3200 мм

image026.gif

Тип "Н-2"

Габариты в плане: 2,2x4,3 м (проекция кровли 4,0x6,1 м), высота 3200 мм

image027.gif

Тип "Н-3"

Габариты в плане: 2,2x6,4 м (проекция кровли 4,0x8,2 м), высота 3200 мм

image028.gif

Тип "Н-4"

Габариты в плане: 2,2x8,5 м (проекция кровли 4,0x10,3 м), высота 3200 мм

image029.gif

Колористические решения объекта

image030.gif

Схема расположения оборудования

- вариант - 1

image031.gif

- вариант - 2

image032.gif

- вариант - 3

image033.gif

Примеры наполнения для различных специализаций

image034.gif

image035.gif

image036.gif

image037.gif

image038.gif

image039.gif

Вид оборудования

Стеллаж (развал)
"Овощи-фрукты"

image040.gif

image041.gif

image042.gif

image043.gif

"Книги"

image044.gif

Данное оборудование может использоваться как вид нестационарного торгового объекта. "Пресс-стенд" со специализацией печать.

"Квас"

image045.gif

Указанные габариты являются предельно допустимыми для данного оборудования. Точные размеры и материалы изготовления определяются изготовителем.

Яндекс.Метрика