СП 342.1325800.2017 (28.12.2023) ЗАЩИТА ЖЕЛЕЗНОДОРОЖНОГО ПУТИ И СООРУЖЕНИЙ ОТ НЕБЛАГОПРИЯТНЫХ ПРИРОДНЫХ ЯВЛЕНИЙ. ПРАВИЛА ПРОЕКТИРОВАНИЯ И СТРОИТЕЛЬСТВА
Утв. и введен в действие Приказом Министерства строительства и жилищно-коммунального хозяйства РФ от 18 декабря 2017 г. N 1681/пр
Свод правил СП-342.1325800.2017
"ЗАЩИТА ЖЕЛЕЗНОДОРОЖНОГО ПУТИ И СООРУЖЕНИЙ ОТ НЕБЛАГОПРИЯТНЫХ ПРИРОДНЫХ ЯВЛЕНИЙ. ПРАВИЛА ПРОЕКТИРОВАНИЯ И СТРОИТЕЛЬСТВА"
Protection of railway track and structures from the adverse natural phenomena. Rules of engineering and construction
С изменениями:
(28 декабря 2023 г.)
ОКС 93.100
Дата введения - 19 июня 2018 года
Предисловие
Сведения о своде правил
1 ИСПОЛНИТЕЛЬ - ЗАО "ПРОМТРАНСНИИПРОЕКТ"
2 ВНЕСЕН Техническим комитетом по стандартизации ТК 465 "Строительство"
3 ПОДГОТОВЛЕН к утверждению Департаментом архитектуры, строительства и градостроительной политики Министерства строительства и жилищно-коммунального хозяйства Российской Федерации (Минстрой России)
4 УТВЕРЖДЕН приказом Министерства строительства и жилищно-коммунального хозяйства Российской Федерации от 18 декабря 2017 г. N 1681/пр и введен в действие с 19 июня 2018 г.
5 ЗАРЕГИСТРИРОВАН Федеральным агентством по техническому регулированию и метрологии (Росстандарт)
6 ВВЕДЕН ВПЕРВЫЕ
В случае пересмотра (замены) или отмены настоящего свода правил соответствующее уведомление будет опубликовано в установленном порядке. Соответствующая информация, уведомление и тексты размещаются также в информационной системе общего пользования - на официальном сайте разработчика (Минстрой России) в сети Интернет
Введение
Настоящий свод правил "Защита железнодорожного пути и сооружений от неблагоприятных явлений. Правила проектирования и строительства" разработан в развитие СП 37.13330.2012 "СНиП 2.05.07-91* Промышленный транспорт" с учетом СП 131.13330.2012 "СНиП 23-01-99* Строительная климатология" и регламентирует проектирование и строительство железнодорожных путей и сооружений с учетом недопущения, предупреждения неблагоприятных природных воздействий и с учетом требований федерального закона от 30 декабря 2009 г. N 384-ФЗ "Технический регламент о безопасности зданий и сооружений".
Настоящий свод правил разработан авторским коллективом ЗАО "ПРОМТРАНСНИИПРОЕКТ" (руководитель темы - д-р. техн. наук Л.А. Андреева, инж. И.П. Потапов, И.В. Музыкин, А.В. Багинов), ФГБОУ ВО "МГУПС (МИИТ)" императора Николая II (д-р техн. наук Е.С. Ашпиз, канд. техн. наук А.А. Зайцев).
Изменение N 1 к настоящему своду правил разработано авторским коллективом АО "ЦНИИПромзданий" (канд. техн. наук Н.Г. Келасьев), ФГБОУ ВО "РУТ (МИИТ)" (д-р техн. наук Е.С. Ашпиз, канд. техн. наук А.А. Зайцев), ОО "Российская академия транспорта (И.П. Потапов, д-р техн. наук Л.А. Андреева), ФГБУ "ЦНИИП Минстроя России" (канд. техн. наук В.А. Гутников).
1 Область применения
1.1 Настоящий свод правил устанавливает нормы и правила устройства защиты железнодорожных подъездных путей (необщего пользования) и технологических (внутренних) путей, сооружений и устройств промышленного железнодорожного транспорта от неблагоприятных природных явлений при их проектировании (включая изыскания) и строительстве.
1.2 Настоящий свод правил распространяется на железнодорожные подъездные пути (необщего пользования) и технологические (внутренние) пути промышленного железнодорожного транспорта, предназначенный для пропуска грузовых поездов.
2 Нормативные ссылки
В настоящем своде правил использованы нормативные ссылки на следующие документы:
ГОСТ 22.0.06-2023 Безопасность в чрезвычайных ситуациях. Источники природных чрезвычайных ситуаций. Поражающие факторы. Номенклатура параметров поражающих воздействий
ГОСТ 5180-2015 Грунты. Методы лабораторного определения физических характеристик
ГОСТ 12071-2014 Грунты. Отбор, упаковка, транспортирование и хранение образцов
ГОСТ 12536-2014 Грунты. Методы лабораторного определения гранулометрического (зернового) и микроагрегатного состава
ГОСТ 20522-2012 Грунты. Методы статистической обработки результатов испытаний
ГОСТ 21153.0-75 Породы горные. Отбор проб и общие требования к методам испытаний
ГОСТ 21153.1-75 Породы горные. Метод определения коэффициента крепости по Протодьяконову
ГОСТ 21153.2-84 Породы горные. Методы определения предела прочности при одноосном сжатии
ГОСТ 21153.3-85 Породы горные. Методы определения предела прочности при одноосном растяжении
ГОСТ 21153.5-88 Породы горные. Метод определения предела прочности при срезе со сжатием
ГОСТ 21153.6-75 Породы горные. Метод определения предела прочности при изгибе
ГОСТ 21153.7-75 Породы горные. Метод определения скоростей распространения упругих продольных и поперечных волн
ГОСТ 21153.8-88 Породы горные. Метод определения предела прочности при объемном сжатии
ГОСТ 22733-2016 Грунты. Метод лабораторного определения максимальной плотности
ГОСТ 25100-2020 Грунты. Классификация
ГОСТ 25459-82 Опоры железобетонные дорожных знаков. Технические условия
ГОСТ 27751-2014 Надежность строительных конструкций и оснований. Основные положения
ГОСТ 32192-2013 Надежность в железнодорожной технике. Основные понятия. Термины и определения
ГОСТ Р 53582-2009 Грунты. Метод определения сопротивления сдвигу оттаивающих грунтов
ГОСТ Р 59287-2020 Изделия из панелей для габионных конструкций. Технические условия
СП 14.13330.2018 "СНиП II-7-81* Строительство в сейсмических районах" (с изменениями N 2, N 3)
СП 20.13330.2016 "СНиП 2.01.07-85* Нагрузки и воздействия" (с изменениями N 1, N 2, N 3, N 4)
СП 22.13330.2016 "СНиП 2.02.01-83* Основания зданий и сооружений" (с изменениями N 1, N 2, N 3, N 4)
СП 25.13330.2020 "СНиП 2.02.04-88 Основания и фундаменты на вечномерзлых грунтах" (с изменением N 1)
СП 32.13330.2018 "СНиП 2.04.03-85 Канализация. Наружные сети и сооружения" (с изменениями N 1, N 2)
СП 34.13330.2021 СНиП 2.05.02-85* Автомобильные дороги
СП 37.113330.2012 "СНиП 2.05.07-91* Промышленный транспорт" (с изменениями N 1, N 2, N 3, N 4, N 5, N 6)
СП 47.13330.2016 "СНиП II-02-96 Инженерные изыскания для строительства. Основные положения" (с изменением N 1)
СП 58.13330.2019 "СНиП 33-01-2003 Гидротехнические сооружения. Основные положения" (с изменениями N 1, N 2)
СП 116.13330.2012 "СНиП 22-02-2003 Инженерная защита территорий, зданий и сооружений от опасных геологических процессов. Основные положения" (с изменениями N 1, N 2)
СП 119.13330.2017 "СНиП 32-01-95 Железные дороги колеи 1520 мм" (с изменением N 1)
СП 131.13330.2020 "СНиП 23-01-99* Строительная климатология" (с изменениями N 1, N 2)
Примечание - При пользовании настоящим сводом правил целесообразно проверить действие ссылочных документов в информационной системе общего пользования - на официальном сайте федерального органа исполнительной власти в сфере стандартизации в сети Интернет или по ежегодному информационному указателю "Национальные стандарты", который опубликован по состоянию на 1 января текущего года, и по выпускам ежемесячного информационного указателя "Национальные стандарты" за текущий год. Если заменен ссылочный документ, на который дана недатированная ссылка, то рекомендуется использовать действующую версию этого документа с учетом всех внесенных в данную версию изменений. Если заменен ссылочный документ, на который дана датированная ссылка, то рекомендуется использовать версию этого документа с указанным выше годом утверждения (принятия). Если после утверждения настоящего свода правил в ссылочный документ, на который дана датированная ссылка, внесено изменение, затрагивающее положение на которое дана ссылка, то это положение рекомендуется применять без учета данного изменения. Если ссылочный документ отменен без замены, то положение, в котором дана ссылка на него, рекомендуется применять в части, не затрагивающей эту ссылку. Сведения о действии сводов правил целесообразно проверить в Федеральном информационном фонде стандартов.
3 Термины и определения
В настоящем своде правил применены термины по ГОСТ 32192, а также следующие термины с соответствующими определениями:
3.1
|
железнодорожные пути общего пользования: Железнодорожные пути на территориях железнодорожных станций, открытых для выполнения операций по приему и отправлению поездов, приему и выдаче грузов, багажа и грузобагажа, по обслуживанию пассажиров и выполнению сортировочной и маневровой работы, а также железнодорожные пути, соединяющие такие станции. [4, статья 2] |
3.2
|
железнодорожные пути необщего пользования: Железнодорожные подъездные пути, примыкающие непосредственно или через другие железнодорожные подъездные пути к железнодорожным путям общего пользования и предназначенные для предоставления определенным пользователями услуг железнодорожного транспорта на условиях договоров или выполнения работ для собственных нужд. [4, статья 2] |
3.3 заносимый участок пути: Часть железнодорожного пути, на протяжении которого из воздушного горизонтального потока выпадают твердые частицы (снега, песка, пыли и др.).
3.4
|
инфраструктура железнодорожного транспорта: Технологический комплекс, включающий в себя подсистемы железнодорожного транспорта, составные части подсистем и элементы составных частей подсистем инфраструктуры железнодорожного транспорта, обеспечивающие функционирование этого комплекса. [4, статья 2] |
3.5
|
климатические факторы внешней среды: Температура, влажность воздуха, давление воздуха или газа (высота над уровнем моря), солнечное излучение, дождь, ветер, пыль (в том числе снежная), смены температур, соляной туман, иней, гидростатическое давление воды, действие плесневых грибов, содержание в воздухе коррозионно-активных агентов. [ГОСТ 15150-69, приложение 1, статья 1] |
3.6
|
обвал: Отрыв и падение больших масс горных пород на крутых и обрывистых склонах гор, речных долин и морских побережий, происходящие главным образом за счет ослабления связности горных пород под влиянием процессов выветривания, деятельности поверхностных и подземных вод. [ГОСТ 22.0.03-2022, пункт 34] |
3.7
|
оползень: Отрыв и (или) смещение масс горных пород по склону под воздействием собственного веса и дополнительной нагрузки вследствие подмыва склона, переувлажнения, сейсмических толчков и антропогенного воздействия. [ГОСТ 22.0.03-2022, пункт 35] |
3.8
|
объект инфраструктуры железнодорожного транспорта: Составная часть подсистем инфраструктуры железнодорожного транспорта или совокупность составных частей ее подсистем. [5, пункт 7] |
3.9 оградительное лесное насаждение: Защитное лесное насаждение для предупреждения (исключения или ограничения) выхода домашнего скота и диких животных на железнодорожный путь.
3.10 ограничивающий уклон: Уклон, определяющий наибольшую допускаемую крутизну элементов профиля.
3.11 особо сложные условия: Условия, которые исключают или технико-экономически не оправдывают применение основных или допускаемых для трудных условий норм.
3.12 ось пути: Линия, проходящая посередине рельсовой колеи в плоскости поверхности катания рельсов на одинаковом расстоянии от осей симметрии рельсов, образующих данную колею, и предназначенная для построения проектных показателей железнодорожного пути и объектов инфраструктуры железнодорожного транспорта.
3.13
|
охранные зоны: Территории, которые прилегают с обеих сторон к полосе отвода и в границах которых устанавливается особый режим использования земельных участков (частей земельных участков) в целях обеспечения сохранности, прочности и устойчивости объектов железнодорожного транспорта, в том числе находящихся на территориях с подвижной почвой и на территориях, подверженных снежным, песчаным заносам и другим вредным воздействиям. [4, статья 2] |
3.14 песчаные заносы: Накопление на железнодорожном пути песков, приносимых ветропесчаным потоком.
3.15 предельное состояние (здесь): Состояние объектов инфраструктуры железнодорожного транспорта, при котором их дальнейшая эксплуатация недопустима или нецелесообразна, либо восстановление их работоспособности невозможно или нецелесообразно.
3.16
|
предупреждение чрезвычайных ситуаций: Комплекс мероприятий, проводимых заблаговременно и направленных на максимально возможное уменьшение риска возникновения чрезвычайных ситуаций, а также на сохранение здоровья людей, снижение размеров ущерба окружающей среде и материальных потерь в случае их возникновения. [ГОСТ Р 22.0.02-2016, пункт 2.3.1] |
3.17 противолавинные сооружения: Сооружения, предназначенные для предупреждения схода снежных лавин или для защиты железнодорожного пути от разрушающего действия движущихся лавин.
3.18 противообвальные сооружения: Сооружения, предназначенные для задержания скальных обломков, движущихся в обвалах, вывалах, осыпях или закрепления их на склонах.
3.19 расчетный годовой объем снегоприноса: Геометрическая сумма расчетных объемов приноса снега заданной обеспеченности по всем румбам, относящимся к одной стороне пути.
3.20 роза метелевых ветров: Векторная диаграмма, характеризующая направление метелевых ветров в данной местности относительно сторон света.
3.21
|
сель: Стремительный поток большой разрушительной силы, состоящий из смеси воды и рыхлообломочных пород, внезапно возникающий в бассейнах небольших горных рек в результате интенсивных дождей или бурного таяния снега, а также прорыва завалов и морен. [ГОСТ 22.0.03-2022, пункт 54] |
3.22 снегозаносимость: Возможность отложений приносимого ветром с окружающей местности снега на основной площадке железнодорожного пути.
3.23 снегоотложение: Результат снегопадов и/или метелей, выражающийся высотой выпавшего и/или перенесенного снега.
3.24 снегоперенос: Перемещение снега ветром.
3.25 снегопринос: Объем снега, приносимого метелями к железной дороге в течение зимы (объем снега, приносимого на линейную длину 1 м железной дороги в единицу времени).
3.26 снегосборность: Объем или масса метелевого снега и твердых осадков, которые могут быть задержаны на единицу длины снегозадерживающего устройства без существенного переноса снега и без нарушения целостности устройства.
3.27 снежные заносы: Отложения метелевого снега на железнодорожных путях и территориях станций.
3.28 фитомелиоративные мероприятия: Мероприятия по защите почв от эрозии с помощью растительности.
4 Общие требования по проектированию и строительству системы защиты железнодорожного пути и сооружений
4.1 Нормы и правила настоящего свода правил должны соблюдать при проектировании и строительстве защиты железнодорожного пути и сооружении подъездных путей (необщего пользования) и технологических (внутренних) путей, комплексов зданий, сооружений и устройств промышленного железнодорожного транспорта.
4.2 Требования к верхнему строению пути на подъездных путях (необщего пользования) и технологических (внутренних) путях железнодорожного транспорта установлены в СП 37.13330.
4.3 Нормы и правила настоящего свода правил необходимо учитывать при проектировании всего комплекса сооружений земляного полотна и его обустройств, в том числе: устройств для отведения поверхностных вод (лотки, кюветы, нагорные и забанкетные канавы у выемок, продольные канавы вдоль насыпей и нулевых мест); сооружений для перехвата и отведения грунтовых вод; укрепительных и защитных сооружений и конструкций, защищающих земляное полотно от повреждений и разрушений.
4.4 Для безопасности функционирования объектов инфраструктуры железнодорожного транспорта следует:
- обеспечивать прочность, устойчивость и долговечность объекта;
- обеспечивать совместимость объектов инфраструктуры железнодорожного транспорта с климатическими условиями района эксплуатации;
- устанавливать назначенный срок службы объекта инфраструктуры железнодорожного транспорта и (или) ресурса продукции, периодичность проведения технического обслуживания и ремонтов, мониторинг технического состояния объектов инфраструктуры железнодорожного транспорта и продукции;
- проводить выбор материалов и веществ в зависимости от условий эксплуатации;
- устанавливать критерии предельных состояний, при которых дальнейшая эксплуатация объекта невозможна.
4.5 Для защиты железнодорожного пути и сооружений от снежных, песчаных заносов, вредного воздействия других неблагоприятных природных явлений вдоль железных дорог следует проектировать и применять защитные конструкции и сооружения, устройства, лесные насаждения.
4.6 Все виды защиты железнодорожного пути и сооружений следует проектировать с учетом топографических и климатических особенностей местности, экологических требований в области охраны поверхностных водных объектов и сельскохозяйственных угодий.
4.7 Конструкции защиты железнодорожного пути и сооружений должны соответствовать утвержденной проектной и технической документации, требованиям охраны труда, экологической безопасности, санитарным нормам и правилам.
4.8 Пути и другие сооружения промышленного железнодорожного транспорта должны быть защищены от расчетных воздействий снежных, песчаных заносов и других неблагоприятных природных явлений и техногенных воздействий.
Перечень поражающих факторов источников природных ЧС различного происхождения, характер их действий и проявлений принимают в соответствии с требованиями ГОСТ 22.0.06.
4.9 Вдоль путей, пересекающих песчаные территории, должны быть предусмотрены средства защиты от переноса песка на верхнее строение пути. Расчетный перенос песка следует определять с вероятностью превышения 1:10 (10%).
4.10 Для защиты пути и сооружений от воздействия, возникающего при развитии оврагов, оползней, селей, водных потоков и других опасных природных процессов следует предусматривать почвоукрепительные лесонасаждения, которые при необходимости должны применяться в комплексе с другими инженерными сооружениями, предусматриваемыми по СП 116.13330 при проектировании земляного полотна.
4.11 Для участков путей, подверженных воздействию снежных лавин, необходимо предусматривать противолавинные мероприятия в соответствии с СП 116.13330.
4.11а Для участков путей, подверженных воздействию скально-обвальных процессов, необходимо предусматривать противообвальные мероприятия в виде активной и (или) пассивной защиты от скально-обвальных процессов, в том числе с применением противокамнепадных систем и габионных конструкций, а также неотложные меры в виде очистки закюветных полок и водоотводных устройств, своевременной уборки осыпавшегося материала, устранения застоев воды в неровностях неустойчивых массивов и обеспечения безопасного их стока.
4.12 Строительство сооружений, защищающих инфраструктуру железнодорожного пути от разрушающего воздействия опасных геологических и других природных явлений и процессов (лавин, оползней, селевых потоков, скально-обвальных процессов), должно быть закончено до ввода соответствующих участков путей в эксплуатацию и на время строительства эти участки должны иметь временную защиту.
4.12 При выборе сооружений, устройств и мероприятий, в т.ч. конструктивных элементов и материалов для защиты объектов инфраструктуры необходимо учитывать географическое расположение объекта, климатические, геологические, гидрологические и геокриологические особенности района. Для каждого климатического района согласно СП 131.13330 установлены режимы минимальной и максимальной температуры, преобладающее направление и максимальной скорости ветра (в том числе при гололеде), которые необходимо учитывать при проектировании и строительстве.
4.14 Исключен с 29.01.2024. - Изменение N 1
4.15 Размеры земельных участков для создания охранных зон определяют в проектной документации на строительство или реконструкцию объектов железнодорожного транспорта.
К охранным зонам относят:
а) земельные участки под защитные сооружения, устройства и мероприятия (снего- и пескозащиты, противообвальные, противоналедные, противолавинные, противоселевые, охранные лесополосы), располагаемые за пределами полосы отвода железной дороги;
б) земельные участки, предусмотренные в проектной документации для поэтапного развития разъездов, обгонных пунктов, железнодорожных станций и узлов, зданий и сооружений по мере увеличения пропускной и провозной способности железнодорожной линии (в пределах этой зоны не допускаются постройка капитальных зданий и сооружений, посадка многолетних насаждений, культур и садов, прокладка различных коммуникаций и трубопроводов);
в) земельные участки для линий электропередачи, тяговых подстанций, трансформаторных подстанций, линейных устройств тягового электроснабжения (посты секционирования, пункты группировки и т.д.);
г) земельные участки, занятые подземными кабельными линиями связи, находящимися за пределами существующей или проектируемой полосы отвода;
д) земельные участки у больших железнодорожных мостов и тоннелей, доступ в которые запрещен посторонним гражданам;
е) зоны фитомелиоративных мероприятий;
ж) полосы естественных лесов, прилегающие к земляному полотну, в пределах которых запрещена сплошная вырубка, кроме рубки ухода, санитарные и лесовосстановительные рубки. Ширина указанных полос составляет 500 м в каждую сторону от оси железнодорожного пути;
и) площади естественных лесов, где сплошная вырубка может отразиться на устойчивости склонов гор и холмов и привести к образованию оползней, осыпей, оврагов, сплывов или вызвать появление селевых потоков и снежных обвалов (лавин) и повлиять на сохранность, устойчивость и прочность сооружений;
к) площади естественных лесов в поймах рек и вдоль берегов озер и водохранилищ, где вырубка леса может привести к размыву откосов железнодорожной насыпи;
л) земельные участки, устанавливаемые как зоны санитарной охраны для защиты открытых и подземных источников водоснабжения объектов железнодорожного транспорта от загрязнения и постоянные условия хозяйствования, в пределах, установленных [8].
4.16 Исключен с 29.01.2024. - Изменение N 1
4.17 При размещении объектов на склоне или у его подошвы в целях защиты территории от подтопления водами с верховой стороны от пути устраивают нагорные канавы. Поперечное сечение канав и их число необходимо рассчитывать в соответствии с СП 32.13330.
4.18 При проектировании железнодорожных путей и сооружений выполняют инженерно-геотехнические изыскания с учетом результатов теплотехнических прогнозов по изменению водно-теплового режима и снегопереноса, а также опыта строительства и эксплуатации железных дорог в районах распространения многолетнемерзлых грунтов, по результатам которых приводят оценку возможного проявления криогенных процессов, их масштабов и интенсивности на отдельных участках проектируемых железных дорог и определяют области оттаивания (промерзания) и величины деформаций осадки (пучения) в поперечном профиле железнодорожного пути.
4.19 Принятые в проектной документации конструктивные и технологические решения должны быть обоснованы теплотехническими и прочностными расчетами, выполненными в соответствии с СП 47.13330, СП 25.13330.
5 Защита железнодорожного пути и сооружений от снежных заносов
5.1 Защита железнодорожного пути от снежных заносов
5.1.1 Железнодорожные пути необщего пользования по местонахождению и в зависимости от срока наступления зимнего периода делятся на группы:
- первая группа - пути необщего пользования в районах Урала, Сибири, Дальнего Востока и пути необщего пользования, примыкающие к северным участкам Октябрьской и Северной железных дорог, где снегопады и метели наблюдаются ранее, чем на остальной территории сети железных дорог;
- вторая группа - пути необщего пользования, примыкающие к остальной территории сети железных дорог.
5.1.2 В зависимости от интенсивности снегоотложения (не реже чем один раз за два года) при снегопадах на железнодорожных путях необщего пользования выделяют территории:
- с умеренной интенсивностью снегопадов - не более 10 см снегоотложения за один случай в течение зимы с повторяемостью не реже чем один раз за два года;
- со значительной интенсивностью - от 10 до 19 см снегоотложения за один случай в течение зимы с повторяемостью не реже чем один раз за два года;
- с сильной интенсивностью - от 20 до 25 см снегоотложения за один случай в течение зимы с повторяемостью не реже чем один раз за два года;
- с очень сильной интенсивностью - более 25 см снегоотложения за один случай в течение зимы с повторяемостью не реже чем один раз за два года.
5.1.3 В зависимости от скорости ветра при метелях на территории, на которой размещены железнодорожные пути необщего пользования, выделяют участки:
- с умеренной интенсивностью метелей (наблюдаются случаи метелей со скоростью ветра не более 10 м/с в течение зимы с повторяемостью не реже чем один раз за два года);
- со значительной интенсивностью (наблюдаются случаи метелей со скоростью ветра от 10 до 19 м/с в течение зимы с повторяемостью не реже чем один раз за два года);
- с сильной интенсивностью (наблюдаются случаи метелей со скоростью ветра от 20 до 30 м/с в течение зимы с повторяемостью не реже чем один раз за два года);
- с очень сильной интенсивностью (наблюдаются случаи метелей со скоростью ветра более 30 м/с в течение зимы с повторяемостью не реже чем один раз за два года).
5.1.4 Участки железнодорожного пути необщего пользования по степени снегозаносимости классифицируют:
- как особо сильнозаносимые (на территории которых в течение зимы наблюдаются снегопады и метели с очень сильной интенсивностью);
- сильнозаносимые (на территории которых наблюдаются снегопады с очень сильной интенсивностью, а метели - с сильной интенсивностью, или наоборот);
- заносимые (на территории которых наблюдаются снегопады и метели с сильной интенсивностью);
- среднезаносимые (на территории которых наблюдаются снегопады с сильной интенсивностью снегоотложения и метели с значительной интенсивностью, или наоборот);
- слабозаносимые (на территории которых наблюдаются снегопады и метели с умеренной интенсивностью).
5.1.5 Защиту железнодорожного пути от снежных заносов следует предусматривать вдоль всех снегозаносимых участков отдельно для каждой стороны пути, а также вокруг станций и внутристанционных территорий. Допускается при технико-экономическом обосновании предусматривать снегозащитный навес над зоной роспуска составов с сортировочной горки.
К снегозаносимым участкам следует относить: станционные территории, выемки любой глубины, нулевые места, насыпи, высота которых над уровнем расчетной толщины снежного покрова не менее 0,7 м на однопутных и 1,0 м на двухпутных линиях, а также открытые площадки тяговых и электрических подстанций.
В качестве расчетной толщины снежного покрова принимают вероятность превышения для категорий пути:
- I-п - 2%;
- II-п - 3%;
- III-п - 5%.
Снегозаносимые участки путей, располагаемые на открытых незастроенных территориях, следует проектировать в насыпях высотой, превышающей расчетную толщину снежного покрова на 25 см.
5.1.6 Расчетный годовой объем снегоприноса, подбор лесных пород, конструкции лесополос, строение насаждений, конструкции капитальных и временных сооружений и устройств надлежит устанавливать в соответствии с результатами изысканий и проектирования этих защитных насаждений, сооружений и устройств с учетом рекомендаций (таблица 1).
Таблица 1 - Средства защиты пути от снежных заносов на заносимых участках пути
|
Участок железнодорожного пути |
Расчетный годовой объем снегоприноса, м3/м |
Средства защиты пути от снежных заносов |
|
Слабозаносимый |
Не более 100 |
Одно-, двухполосные лесонасаждения или одно-, двухрядные щитовые линии |
|
Среднезаносимый |
101 - 300 |
Двух-, трехполосные лесонасаждения, или постоянный забор высотой не более 5,5 м, или забор облегченного типа высотой в пределах от 4 до 5 м |
|
Сильнозаносимый |
301 - 600 |
Трех-, четырехполосные лесонасаждения, или один-два ряда постоянных заборов высотой не более 5,5 м, или забор облегченного типа высотой 5 м, дополненный забором с просветностью в пределах от 60 до 75% |
|
Особо сильнозаносимый |
Более 600 |
Лесонасаждения четырехполосные и более, или два ряда постоянных заборов высотой не более 5,5 м, или два ряда заборов облегченного типа высотой 5 м, снегопредупреждающие заборы. Перепрофилирование снегозаносимых участков земляного полотна в снегонезаносимые профили |
|
Примечание - При защите новых строящихся и реконструируемых подъездных путей применяют переносные снеговые щиты на период ввода в действие постоянных средств защиты. | ||
5.1.7 Для выемок глубиной более 8,5 м и насыпей на косогорах в качестве постоянных снегозащитных устройств при расчетном объеме снегоприноса 200 м3 и более на 1 м пути в качестве альтернативного варианта при технико-экономическом обосновании рассматривают устройство снегозащитных галерей.
5.1.8 Снегозадерживающие лесонасаждения и заборы, размещаемые на перегонах, должны перекрывать все протяжение снегозаносимых мест и заканчиваться у насыпей высотой не менее 2 м.
5.1.9 Все виды и типы снегозадерживающих ограждений, следует размещать с расчетом отложения метелевого снега вне водоотводных и нагорных канав и не ближе 15 м от оси крайнего пути, расположенного на насыпи и нулевых местах.
5.1.10 При ограждении станций и узлов контурные и внутристанционные защиты следует размещать на границе станционных площадок и продолжать за пределы стрелочных горловин не менее чем на 50 м. Для размещения внутристанционной защиты между парками необходимо предусматривать площадки шириной не менее 15 м.
5.1.11 Для изучения снегозадерживающей способности защитных ограждений в наиболее характерных по заносимости местах перпендикулярно оси пути должны быть заложены контрольные снегомерные створы, пересекающие линии защиты с обеих сторон пути (приложение П).
Створ должен охватывать обе стороны заносимого места и земляное полотно. Поверхность земли по створу нивелируется с привязкой к уровню головки рельса, который принимают за нулевую отметку.
На земляном полотне обязательно должны наблюдаться: бровка откоса выемки или подошвы насыпи, несколько точек на откосе в зависимости от высоты, ось кювета, точка на обочине земляного полотна (2 м от оси пути) и ось пути. Съемки поверхности снега должны выполнять инструментально.
Для облегчения и повышения точности съемок снежных отложений необходимо в створе в точках наблюдения устанавливать постоянные снегомерные рейки. Снегосборность защит по створу в кубических метрах на линейный метр устанавливают в конце марта раздельно для правой и левой сторон заносимого места пути.
5.1.12 Помимо закладки постоянных снегомерных створов замер снежных отложений должны производить один раз в конце зимы на всех снегозаносимых участках пути, огражденных защитными лесонасаждениями, для определения необходимых мер по улучшению их состояния и работоспособности.
5.1.13 Во всех случаях снегозадерживающие и другие ограждения следует проектировать с расчетом отложения метелевого снега вне водоотводных и нагорных канав и не ближе 15 м от оси крайнего пути, расположенного на насыпи и в нулевых местах.
5.1.14 В районах, подверженных метелевым заносам, здания и устройства, возвышающиеся над уровнем головки рельса, следует размещать с подветренной стороны пути.
5.2 Защита железнодорожного пути и сооружений лесонасаждениями
5.2.1 Защиту снегозаносимого участка пути защитными лесонасаждениями должны осуществлять по индивидуальному проекту.
5.2.2 Снегозадерживающие лесонасаждения на перегонах и вокруг станций следует проектировать на задержание максимального расчетного годового объема снегоприноса с вероятностью превышения:
- на орошаемых или осушенных землях, пашне, земельных участках, занятых многолетними плодовыми насаждениями и виноградниками, 1:10 (10%);
- остальных землях - 1:15 (7%).
5.2.3 На заносимых участках пути и вокруг станций (контурная защита), располагаемых на пашне, земельных участках, занятых многолетними плодовыми насаждениями и виноградниками, защиту от снежных заносов следует предусматривать снегозадерживающими лесонасаждениями при объеме снегоприноса за зиму более 100 м3 на линейный метр пути.
5.2.4 Расстояние от оси крайнего пути, расположенного на насыпи и в нулевых местах, до лесонасаждений следует принимать 30 м при перпендикулярных направлениях метелевых ветров и 20 м при косых направлениях. При ограждении выемок лесонасаждения размещают на расстоянии 15 и 20 м от бровки выемки соответственно при косых и перпендикулярных направлениях метелевых ветров от пути. На участках пути категории I-п и II-п лесонасаждения должны размещать с учетом возможности строительства дополнительного пути.
5.2.5 Ширину полосы отвода B, м, под устройство снегозадерживающих лесонасаждений вдоль снегозаносимых участков железнодорожного пути и вокруг станций при расчетном годовом снегоприносе вычисляют по формуле
B = Sр/hр, (5.1)
где Sр - площадь поперечного сечения размера снегоприноса, численно равная расчетному годовому объему приносимого к пути снега принятой вероятности превышения, м2;
hр - расчетная высота отложения снега внутри насаждения, м.
Для основных видов почв расчетная высота снегоотложения внутри насаждения hр принимается:
- на подзолистых и серых лесных почвах, черноземах (кроме солонцеватых) - 3 м;
- солонцеватых черноземах и темно-каштановых почвах - 2,5 м;
- каштановых, светло-каштановых, бурых почвах, а также почвах солонцового комплекса - 2 м.
5.2.6 Вновь создаваемые или восстанавливаемые защитные лесонасаждения следует размещать с учетом исключения в будущем выхода крон деревьев в зону видимости сигналов, падения деревьев на путь, провода линий электроснабжения и контактной сети, а также касания ветвями деревьев указанных линий [9].
5.2.7 До полного вступления в самостоятельную защитную работу создаваемых и восстанавливаемых расстроенных снегозадерживающих защитных лесонасаждений снегозаносимые участки пути ограждают переносными щитами. Установку щитовых линий в двух-, трех- и многополосных насаждениях осуществляют на расстоянии от 3 до 5 м от крайнего ряда путевой опушки полевой лесополосы с таким расчетом, чтобы собираемый щитами метелевый снег откладывался в полевом межполосном интервале, а также с наветренной стороны посадок на расстоянии от 50 до 60 м. При наличии однополосных насаждений щитовую линию устанавливают в поле также на расстоянии от 50 до 60 м от полевых опушек защитных лесонасаждений.
Установка щитов на месте занесенных снегом деревьев и кустарников во избежание их повреждения навалами снега не допускается.
5.2.8 Для озеленения земельного участка следует применять местные виды растений с учетом их санитарно-защитных и декоративных свойств и устойчивости к вредным веществам, выделяемым предприятиями.
5.3 Защита железнодорожного пути и сооружений постоянными и временными сооружениями
5.3.1 Когда по климатическим и другим условиям создать защитные лесонасаждения невозможно или одними лесонасаждениями нельзя обеспечить надежную защиту, в качестве основного или дополнительного средства используют другие инженерные устройства.
Выбор типа защитных устройств в каждом случае необходимо проводить на основе сравнения технико-экономических и экологических показателей вариантов защитных сооружений с учетом обеспечения безопасности движения и охраны труда в период эксплуатации защитного сооружения.
Применение временных (переносных) снеговых щитов допускается только в качестве временной меры на период ввода в действие постоянных средств защиты.
5.3.2 Постоянные снегозадерживающие устройства на снегозаносимых участках пути не следует предусматривать при расчетном годовом снегоприносе:
- менее 50 м3 на линейный метр пути, расположенного на насыпи и проходящего по пашне, земельным участкам, занятым многолетними плодовыми насаждениями и виноградниками;
- менее 25 м3 на линейный метр пути, располагаемого на остальных землях.
5.3.3 На заносимых участках пути и вокруг станций (контурная защита), располагаемых на пашне, земельных участках, занятых многолетними плодовыми насаждениями и виноградниками, защиту от снежных заносов следует предусматривать постоянными заборами при объеме снегоприноса за зиму от 50 до 100 м3 на линейный метр пути, располагаемого на насыпи высотой над уровнем расчетной толщины снежного покрова не более 0,7 м на однопутных и не более 1,0 м на двухпутных линиях, и при объеме снегоприноса от 25 до 100 м3 на линейный метр пути, расположенного в выемках.
5.3.4 Защиту с помощью постоянных заборов надлежит проектировать на задержание максимального расчетного годового объема снегоприноса с вероятностью превышения:
- в сильнозаносимых местностях малонаселенных районов - 1:20 (5%);
- на линиях скоростных и особо грузонапряженных, категорий I, II и III по СП 119.13330 - 1:15 (7%);
- на линиях IV категории по СП 119.13330 - 1:10 (10%).
5.3.5 Снегозадерживающие заборы при направлении метелевых ветров к оси пути от 30° до 90° устанавливают параллельно пути на расстоянии, равном 15 - 17-кратной высоте забора от бровки откоса выемки, а при расположении пути на насыпях и в нулевых местах - от оси крайнего пути. При направлениях метелевых ветров к оси пути менее 30° заборы устанавливают уступами. При объеме приносимого снега более 400 м3 на линейный метр пути при отсутствии лесонасаждений устраивают второй ряд заборов, который располагают от первого на расстоянии, равном 22 - 25-кратной высоте забора. Полосу отвода для каждого забора устанавливают шириной 4 м.
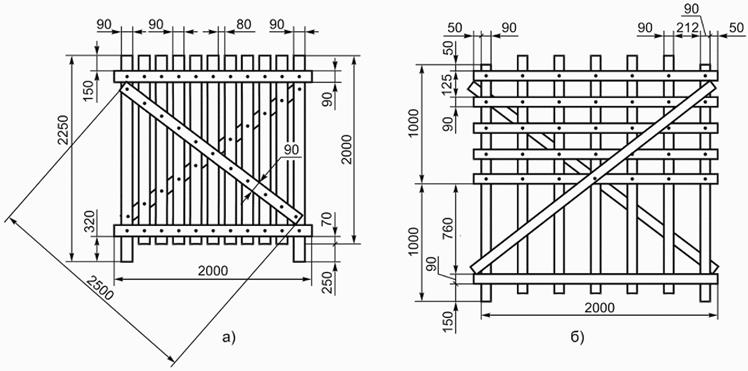
5.3.6 Типы снегозадерживающих заборов приведены в приложении А. При выборе типа подлежат к рассмотрению варианты:
- с равномерной просветностью по всей высоте;
- облегченного типа (из дерева);
- комбинированные облегченного типа (железобетонные опоры при их деревянном заполнении);
- деревянные с просветностью 75% по всей высоте;
- железобетонные.
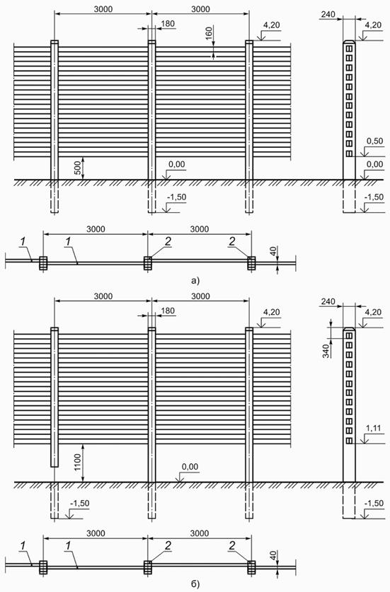
Вновь сооружаемые снегозадерживающие заборы следует устраивать в соответствии с требованиями, изложенными в приложении А.
5.3.7 При выборе снегозадерживающих заборов, в зависимости от их снегосборности, необходимо руководствоваться данными, приведенными в таблице 2.
Таблица 2 - Основные параметры снегозадерживающих заборов и их снегосборность
|
Общая высота забора, м |
Число панелей, шт. |
Высота панели обрешетки, м |
Разрыв в обрешетке, м |
Снегосборность, м3/м |
|
Заборы с равномерной просветностью по всей высоте | ||||
|
4,5 |
1 |
4,0 |
0 |
190 |
|
5,5 |
1 |
5,0 |
0 |
270 |
|
Заборы облегченного типа | ||||
|
3 |
2 |
1 |
0,5 |
130 |
|
4 |
2 |
1,4 |
0,6 |
240 |
|
5 |
2 |
1,8 |
0,7 |
370 |
5.3.8 При применении переносных снегозадерживающих щитов наиболее эффективными являются щиты с разреженной нижней частью, позволяющие собирать больший объем метелевого снега (не более 80 - 90 м3/м) без их перестановки.
Конструктивные параметры снегозадерживающих щитов, порядок их использования и хранения приведены в приложении А.
5.3.9 Линии переносных щитов, когда на снегозаносимом участке пути нет других видов снегозадерживающих устройств, должны перекрывать все протяжение выемок и нулевых мест и заканчиваться за их границами на расстоянии не ближе 10 м при насыпи высотой 2 м и не ближе 20 м при насыпи высотой менее 2 м. При косом направлении господствующих ветров щитовые линии в конце ограждаемого участка должны иметь угол поворота к пути, равный 45°, и отводы в сторону поля.
Второй (полевой) ряд щитов в двухрядных ограждениях следует размещать параллельно первому путевому ряду на расстоянии от 60 до 70 м от него, без отводов концов этой линии.
5.3.10 При наличии в выемке кавальера щиты выставляют непосредственно на нем, если расстояние от бровки откоса земляного полотна до подошвы кавальера составляет более 30 м. При расстоянии от бровки откоса до кавальера менее 30 м щиты устанавливают за кавальером на расстоянии от 20 до 30 м от него в сторону поля.
5.3.11 Для ограждения железнодорожных переездов основную линию щитов разрывают и отводят в сторону (см. приложение Б). Эту схему следует применять при косом направлении основного объема метелевого снегоприноса или при метелевых ветрах разнообразных направлений. При устойчивых ветрах, имеющих перпендикулярное направление по отношению к оси пути, напротив переезда устанавливают второй ряд щитов.
Железнодорожные переезды на участках с постоянными заборами и защитными лесонасаждениями ограждают щитами в аналогичном порядке.
5.3.12 Заносимые участки пути железных дорог, расположенные в дорожно-климатической подзоне I1 согласно СП 34.13330, где преобладают сильные ветры, низкие температуры воздуха, обусловливающие сухость и легкую подвижность снега, при ярко выраженной розе господствующих метелевых ветров следует ограждать снегопередувающими заборами. Такими заборами ограждают невысокие насыпи и выемки глубиной не более 2,5 м, для того чтобы снег не отлагался у снегопередувающего забора, а переносился через путь. Схема снегопередувающего забора представлена в приложении А.
Надежная защита пути снегопередувающими заборами обеспечена в том случае, если направление господствующих метелевых ветров к линии защиты находится в пределах от 60° до 90°. При углах от менее 60° до 45° снегопередувающие заборы работают хуже, а при углах 45° и менее они непригодны.
5.3.13 Снегопередувающие заборы устанавливают с максимальным приближением к пути, но за пределами габарита подвижного состава. Угол наклона панели снегопередувающего забора к горизонту принимается равным 90° (вертикально).
Панели снегопередувающего забора должны иметь просветность в пределах от 20% до 25%, что обеспечивает надлежащие его аэродинамические свойства.
6 Правила проектирования и строительства системы защиты железнодорожного пути от песчаных и земляных заносов
6.1 Вдоль железнодорожных путей, пересекающих песчаные территории, следует предусматривать фитомелиоративные пескозащитные мероприятия (закрепление с помощью посева или посадки древесной, кустарниковой и травянистой растительности), которые допускается сочетать со средствами механической защиты и другими способами закрепления и удержания песков, в том числе с устройством песчаных валов, траншей, канав, песчаных стенок. На поверхность защитных устройств из песка для его закрепления наносят мелиорант (фиксатор). На участках, где нельзя осуществить фитомелиоративные мероприятия, закрепление и удержание песков следует обеспечивать средствами механической защиты.
6.2 Перенос частиц песка в зависимости от их размеров начинается на высоте от 0,08 до 0,15 м при скоростях ветра, равных от 2,9 до 3,1 м/с (пески мелкие), от 6,7 до 8,4 м/с (пески средней крупности), от 9,8 до 11,4 м/с (пески крупные).
В зависимости от степени пескозаносимости, определяемой количеством песка, м3, приносимому к 1 м пути в течение года, различают три категории участков железных дорог, подверженных песчаным заносам:
- I категория - сильно- и особо сильнозаносимые участки (от 20 до 30 м3/м);
- II категория - слабо- и среднезаносимые участки (до 20 м3/м);
- III категория - незаносимые участки.
Максимальный годовой перенос песка следует определять с вероятностью превышения:
- в сильнозаносимых местностях малонаселенных районов - 1/20 (5%);
- на железнодорожных путях категорий:
I-п, II-п - 1/15 (7%),
III-п - 1/10 (10%).
6.3 Ширину полос отвода земель с каждой стороны пути под фитомелиоративные средства защиты следует проектировать в следующих размерах: в пустынных и полупустынных районах - не менее 200 м, а в остальных - не менее 100 м. За зоной фитомелиоративных мероприятий надлежит выделить охранную зону шириной не менее 500 м в пустынных и полупустынных районах и 100 м - в остальных районах, где запрещаются действия, способствующие увеличению подвижности песков (уничтожение растительности, выпас скота, нарушение почвенного покрова).
6.4 В пределах охраняемой полосы после окончания строительства железнодорожного пути запрещены:
- земляные работы всех видов;
- движение транспортных средств и прогон скота вне отведенных для этого и обозначенных на местности путей;
- работы, связанные с уничтожением или повреждением растительного покрова (заготовка топлива, хвороста, сена, посадочного материала; выпас скота и т.п.).
6.5 При проектировании пескозащиты должны учитывать:
- рельеф местности;
- скорость и направление ветра, вызывающего перенос песка;
- степень закрепления растительностью поверхности песка;
- зерновой состав песка, его влажность и засоленность;
- характеристику поверхностного слоя песка в отношении возможности закрепления его растительностью;
- глубину залегания грунтовых вод и др.
Оценка степени естественного закрепления поверхности и подвижности песка на местности, прилегающей к трассе проектируемой дороги, приведена в таблице 3.
Таблица 3 - Оценка степени естественного закрепления поверхности и подвижности песка на местности, прилегающей к трассе проектируемой дороги
|
Наименование поверхности |
Покрытие растительностью, %, от пересекаемой площади |
Степень подвижности песков |
|
1 Незаросшая (пески барханные) |
Очень подвижные | |
|
2 Слабозаросшая |
Менее 15 |
Подвижные |
|
3 Полузаросшая |
От 15 до 35 |
Неподвижные |
|
4 Заросшая |
Более 35 |
Неподвижные |
|
Примечание - При этом необходимо обратить внимание на следующее: - подвижные (барханные) пески способны к перемещению в виде подвижных форм рельефа и к перестройке склонов под действием ветра. Эти пески, как правило, не закреплены растительностью (незаросшие) или имеют редкую растительность (слабозаросшие); - малоподвижные (полузаросшие) пески, на которых возможно образование отдельных подвижных форм рельефа на незакрепленных участках поверхности; - неподвижные (заросшие) пески, закрепленные растительностью. Их перемещение происходит только в виде ветропесчаного потока, насыщенность которого зависит от степени зарастания поверхности песков. При уничтожении растительности заросшие пески в короткий срок превращаются в барханные, формы рельефа становятся подвижными. | ||
6.6 Необходимо различать следующие основные формы рельефа подвижных песков:
- одиночные и групповые барханы - подвижные песчаные холмы с пологим наветренным и крутым подветренным склонами. Высота барханов - от 0,3 до 3,0 м и более, ширина - не более 100 м, длина склонов - не более 20 м, крутизна наветренного склона - от 1:5 до 1:3, подветренного - от 1:1,5 до 1:2;
- барханные цепи - подвижные скопления песка, имеющие форму волнообразного вала шириной от 10 до 12 м и более, длиной от 200 до 2000 м. Высота барханных цепей: мелких - не более 1 м, средних - от 1 до 3 м, крупных - от 3 до 7 м, очень крупных - более 7 м. Расстояние между гребнями цепей - от 10 до 150 м;
- барханные гряды - вытянутые крупные песчаные скопления, у которых пологий наветренный склон характеризуется наличием на нем барханов и барханных цепей, а подветренный представляет единый склон осыпания. Высота гряд изменяется от 10 до 70 м, ширина колеблется от 0,5 до 3,0 км;
- сложнобарханные пески или барханные поля, характеризуемые чередованием более крупных и более мелких, различно ориентированных барханных форм, понижения между которыми имеют незначительную ширину или отсутствуют.
6.7 Заросшие и полузаросшие пески по форме рельефа разделяют:
- на кучевые и бугристые пески - скопления песка в виде небольших всхолмлений и бугров, закрепленных растительностью; высота кучевых и мелкобугристых песков - менее 1 м, среднебугристых - от 1 до 3 м, крупнобугристых - более 3 м;
- грядовые пески - вытянутые скопления песка в виде гряд высотой от 1 до 3 м - мелкие, от 3 до 7 м - средние, более 7 м - крупные;
- грядово-ячеистые пески - тип рельефа, характеризуемый наличием, наряду с грядами, межгрядовых перемычек;
- лунковые пески - обширные, глубокие котловины, закрепленные растительностью и разделенные подвижными песчаными перемычками;
- равнинные и пологоволнистые пески.
6.8 Барханные пески по гранулометрическому составу в соответствии с ГОСТ 25100 следует относить к мелким однородным пескам с содержанием частиц размером от 0,10 до 0,25 мм, превышающим 90% массы.
6.9 Перемещение песка под действием силы ветра во всех случаях происходит в виде ветропесчаного потока.
6.10 Для защиты песчаных откосов и обочин земляного полотна от выдувания требуется покрытие их поверхности слоем щебенистых, дресвяных, гравийно-галечных или глинистых грунтов толщиной от 0,10 до 0,15 м - на откосах, 0,05 м - на обочинах.
6.11 Водоотводные канавы и кюветы подлежат укреплению, если их проектируют для участков с грунтами, подверженными оплыванию в откосах или разрушению в результате периодического увлажнения-высушивания, промерзания-оттаивания, а также если расчетная скорость течения в канавах и кюветах воды будет превышать допускаемую скорость для данного вида грунта.
При выборе вариантов укрепления при соответствующем технико-экономическом обосновании следует применять: обсев откосов семенами многолетних трав и щебневание дна канав; укрепление геосинтетическими материалами; обработку дна и откосов вяжущими веществами, органическими смолами, химическими и другими материалами; укладку асфальтобетонных, бетонных плит и других сборных железобетонных конструкций вида полутруб, лотков.
Способ укрепления следует назначать в зависимости от свойств и состояния грунта, в котором устраивается водоотводная канава, а также от расчетной скорости воды и допускаемой скорости течения для данного вида укреплений.
6.12 При основном методе закрепления песков растительностью вспомогательными средствами, приостанавливающими движение песков на период прорастания семян и укрепления корневой системы растений, служат механическая защита, розлив вяжущих материалов или другие способы фиксации поверхности песков.
6.13 Растительностью закрепляют:
- барханные и слабозаросшие пески;
- очаги дефляции ("язвы" и котловины выдувания) в полузаросших и заросших песках.
6.14 Пески закрепляют растительностью:
- по обе стороны дороги, если ее ось совпадает с направлением движения песков или составляет с ним угол менее 30°;
- только с наветренной стороны дороги, если пески имеют явно выраженное поступательное движение под углом более 30° к оси дороги и возможность заносов с противоположной стороны отсутствует.
6.15 При фитомелиоративной защите дорог от песчаных заносов предусматривают "сплошное облесение" песков. Сплошное облесение применяют как основной способ закрепления песков в условиях, наиболее благоприятных для роста и размножения растений (влажность песков) и формирования достаточно густых насаждений, что способствует полной остановке движения песков. Условия для произрастания растений оценивают по данным изысканий, по опыту фитомелиоративных работ и по состоянию естественной растительности в ближайших районах со сходными местными условиями.
6.16 Сплошное облесение выполняют следующими способами:
- на участках, где дорога пересекает подвижные формы рельефа или вплотную приближается к ним, всю площадь закрепляемых полос засаживают в один сезон черенками, дичками и сеянцами кустарников с подсевом семян, сооружая механическую защиту или закрепляя их битумной пленкой для предохранения от выдувания и поливая при посадке 5%-ным раствором гуминовой кислоты в воде;
- на менее опасных участках "блокируют барханы": в первый год проводят посадку черенков и посев семян (без механической защиты или с защитой в небольшом объеме) в межбарханных понижениях и на нижних частях пологих склонов барханов; в последующие годы под защитой этих посадок засевают вершины барханов, если они не зарастают естественным путем;
- наименее опасные участки песков оставляют под самозарастание, создавая для его ускорения "очаги облесения" - участки насаждений площадью от 0,1 до 0,5 га на каждые 2 - 3 га песков.
6.17 Для предохранения посадок и посевов от выдувания необходимо проводить временное закрепление поверхности, например укладкой мешковины, геоматов, или закрепление поверхности песка вяжущими материалами - фиксаторами.
6.18 В районах, подверженных песчаным заносам, здания и устройства, возвышающиеся над уровнем головки рельса, следует размещать, как правило, с подветренной стороны пути.
6.19 При проведении инженерных изысканий для разработки пескозащитных мероприятий на территорию железнодорожного пути, включая охранные зоны, должна быть разработана документация согласно СП 47.13330, включающая:
- план участка;
- продольные и поперечные профили с соответствующими инженерно-геологическими разрезами;
- климатические характеристики района;
- заключение об инженерно-геологическом и геофизических исследованиях.
7 Основные положения проектирования и строительства системы защиты железнодорожного пути от снежных лавин
7.1 Для участков железных дорог, подверженных воздействию снежных лавин, необходимо предусматривать следующие противолавинные сооружения, устройства и мероприятия, перечень которых принимают в соответствии с СП 116.13330, в дополнение к которому в качестве лавинопредотвращающих мероприятий также применяют снегоудерживающие барьеры.
Таблица 4 - Исключена с 29.01.2024. - Изменение N 1
Выбор противолавинных комплексов сооружений и мероприятий следует производить с учетом режима и характеристик лавин и снегового покрова в зоне зарождения, морфологии лавиносбора, степени ответственности защищаемых сооружений, их конструктивных и эксплуатационных особенностей.
Лавинозащитные устройства, воспринимающие удар лавины, рассчитывают исходя из нагрузок, соответствующих дальности ее выброса, определенной с вероятностью превышения для железнодорожного пути категорий:
I-п, II-п - 1:100 (1%);
III-п - 1:50 (2%).
Лавинозащитные отбойные дамбы применяют только в сочетании с лавиноуловителями и тормозящими устройствами.
7.2 Значения статического и динамического давления сползающего снега на снегоудерживающие сооружения определяют экспериментально или рассчитывают с учетом высоты снегового покрова, физико-механических свойств снега, его сползания, характера поверхности и крутизны склона и возможности проскальзывания пласта снегового покрова между двумя рядами сооружений.
7.3 Давление лавин на лавинозащитные сооружения определяют исходя непосредственно из наблюдений или расчетным методом с учетом скорости лавины в месте расположения сооружения, плотности лавинного снега, угла встречи лавины с сооружением, формы и размеров сооружения. На краевые участки отдельных сооружений секционного типа, по длине равные 1/3 высоты отсека, давление снега принимают в трехкратном размере. Изменение скорости лавинного потока на участке между рядами тормозящих сооружений допускается учитывать по расчету.
7.4 Элементы застройки склонов рассчитываются с учетом давления снежного пласта, высоту которого определяют с вероятностью превышения для железнодорожного пути категорий:
I-п, II-п - 1:50 (2%);
III-п - 1:25 (4%).
Застройку склонов следует проводить только сверху вниз.
7.5 Лавинотормозящие сооружения следует проектировать для уменьшения или полного гашения скорости лавин на конусах выноса в зоне отложения лавин, где крутизна склона менее 23°. В отдельных случаях, когда защищаемый объект оказывается в зоне зарождения лавин и лавина имеет небольшой путь разгона, возможно расположение лавинотормозящих сооружений на склонах крутизной более 23°.
Высоту лавинотормозящих сооружений следует назначать не менее суммы высот снегового покрова в месте их расположения и фронта лавины.
Расстояние между лавинотормозящими сооружениями в ряду назначается в пределах от 3 до 4, а между рядами - от 4 до 5 высот сооружения. Сооружения нижнего ряда устанавливают напротив просветов верхнего ряда. Число рядов зависит от требуемой величины снижения скорости, но должно быть не менее трех. Снижение скорости определяют расчетным методом с учетом размеров лавинотормозящих сооружений и числа рядов сооружений.
7.6 Направляющие дамбы и стены, лавинорезы следует устанавливать на участках зоны отложения лавины при крутизне склона менее 23°, высоту сооружений - назначать не менее высоты фронта лавины. Угол в месте начала встречи лавины с сооружением должен быть не более 10°.
7.7 Лавиноостанавливающие сооружения (дамбы и стенки) следует устанавливать в зоне отложения лавин с крутизной склона менее 23° и при скоростях лавин в месте установки сооружения менее 25 м/с. На подходе к сооружению с нагорной стороны следует устраивать пазухи (выемки) для аккумуляции лавинных отложений, объем которых должен быть не менее расчетного объема лавин. Лавиноостанавливающие сооружения следует сочетать с лавинотормозящими сооружениями.
7.8 Противолавинные галереи следует применять для пропуска лавин над железными дорогами в зонах транзита лавин, где путь лавины локализован условиями рельефа (четко выраженные в рельефе лотки) или есть возможность их локализации путем возведения лавинонаправляющих сооружений или искусственных лотков. При необходимости эти сооружения могут выходить на кровлю галерей.
7.9 Для пропуска лавин под линейными объектами следует сооружать специальные виадуки и мосты. Размеры их пропускных отверстий должны обеспечивать беспрепятственный пропуск лавин, элементы конструкции - выдерживать давление снеговоздушного потока. Их также следует сооружать только в местах локализации лавин рельефом.
7.10 При проектировании противолавинных сооружений следует предусматривать мероприятия по отводу поверхностных вод и дренажные устройства.
7.11 Лавинопредотвращающие сооружения и устройства следует размещать в зоне зарождения лавины непрерывными или секционными рядами до боковых границ лавиносбора. Верхний ряд сооружений следует устанавливать на расстоянии не более 15 м вниз по склону от наиболее высокого положения линии отрыва лавин (или от линии снеговыдувающих заборов или кольктафелей). Ряды снегоудерживающих сооружений следует располагать перпендикулярно направлению сползания снегового покрова.
7.12 При прерывистой (секционной) застройке склона под каждым разрывом между секциями верхнего ряда следует располагать секцию нижнего ряда.
7.13 Высоту снегоудерживающего забора, стенки и т.д. и расстояние между их рядами определяют в зависимости от расчетной высоты снегового покрова, дополнительной высоты снегового покрова от метелевого переноса, сползания снегового покрова и его натекания на забор, а также с учетом соскальзывания пласта снега между рядами снегоудерживающих сооружений, крутизны склона и характера его поверхности.
7.14 Опорную поверхность снегоудерживающего сооружения следует располагать перпендикулярно поверхности склона или отклонять вниз по склону до 15° от перпендикуляра к склону. Опорную поверхность из сеток допускается отклонять до 30°. Сооружения следует проектировать с учетом веса снежной призмы между его поверхностью и перпендикулярной к горизонту (в отдельных случаях - к склону) поверхностью.
7.15 Террасирование склонов применяют как самостоятельное средство для предотвращения лавин обычно на менее крутых участках зон зарождения с углом наклона склона 30°. На более крутых склонах террасы применяют как вспомогательное средство посадку деревьев между рядами снегоудерживающих сооружений. Ширину полок террас назначают 1,5 расчетной высоты снегового покрова (для сыпучего снега - 1,8). Расстояние по горизонтали между террасами (от верхней бровки нижней террасы до нижней бровки верхней террасы) назначают не более ширины террасы.
7.16 Застройку склона лавинопредотвращающими сооружениями следует сопровождать мероприятиями агролесомелиорации, с посадкой быстрорастущих деревьев в зонах зарождения лавин в пределах естественного распространения лесной растительности в данной местности.
7.17 На склонах с неустойчивыми грунтами следует применять подвесные снегоудерживающие сооружения, располагая крепления анкеров в прочных коренных породах выше линии отрыва лавин.
7.18 На участках, где значительное количество снега приносится в зону возникновения лавин с обратного наветренного склона или плато, система лавинопредупреждающих сооружений должна наряду со снегоудерживающими включать снегорегулирующие сооружения: снеговыдувающие заборы, кольктафели и снегозадерживающие заборы.
7.19 Снегозадерживающие заборы следует устанавливать на наветренном склоне или плато непрерывными рядами перпендикулярно основному направлению метелевого переноса. Просветность щитов заборов должна составлять от 0,4 до 0,45, а расстояние от нижнего края забора до поверхности склона - не более 0,2 высоты забора. Высоту забора и число рядов определяют в зависимости от расчетного объема снегопереноса.
7.20 Расстояние между рядами снегозадерживающих заборов определяют в зависимости от высоты забора и крутизны наветренного склона. При крутизне наветренного склона более 20° применение снегозадерживающих заборов необходимо обосновывать с научным сопровождением.
7.21 Снеговыдувающие панели (дюзы) следует устанавливать под углом от 60 до 90° к горизонту непрерывными рядами или с разрывами на верхней бровке зоны зарождения лавины. Разрывы в ряду могут быть связаны с особенностями морфологии бровки. Просветность панелей может приниматься от 0,2 до 0,3, высота панели - от 3 до 4 м, расстояние между нижним краем панели и поверхностью бровки - от 0,25 до 0,3 высоты панели.
7.22 Расстояние между последним рядом снегозадерживающих заборов на наветренном склоне или плато и снеговыдувающими панелями на бровке зоны зарождения лавин должно быть не менее 13 высот снегозадерживающего забора (при обосновании - 12).
7.23 Все типы снеговыдувающих сооружений следует применять при направлении господствующего ветра относительно фронта сооружения в пределах от 50 до 90°. При угле направления ветра от 30 до 50° или при отсутствии господствующего направления следует использовать пирамидальные и крестовидные кольктафели.
7.24 Кольктафели следует размещать в зоне зарождения лавин ниже линии снеговыдувающих заборов на расстоянии 2h, где h - высота кольктафеля, принимаемая в пределах от 4,0 до 4,5 м. Просвет между панелями кольктафеля и поверхностью склона должен приниматься в пределах от 1,0 до 1,5 м.
При отсутствии снеговыдувающих панелей верхняя линия кольктафелей должна быть расположена на уровне самого высокого положения линии отрыва лавин. Форма кольктафелей и их размеры определяют в зависимости от снеговетровых условий в зоне их расположения.
8 Правила проектирования и строительства системы защиты железнодорожного пути от обвально-осыпных явлений
8.1 Общие положения
8.1.1 При строительстве в местах, где возможно проявление крупных скально-обвальных процессов (в объемах, превышающих десятки тысяч кубических метров), следует прорабатывать варианты по выносу трассы железной дороги из зоны вероятного воздействия обвалов.
8.1.2 При меньших объемах скально-обвальных процессов (до нескольких тысяч кубических метров), проявляющихся в виде обвалов, вывалов и осыпей, защиту объектов следует осуществлять с проведением следующих мероприятий:
- укрепление откосов и склонов, их защита от выветривания;
- устройство противообвальных улавливающих сооружений и галерей.
8.1.3 При разработке мероприятий по защите откосов выемок в скальных и полускальных породах следует учитывать особенности проявления деформаций в виде осыпей, обвалов отдельных камней, промежуточных и переходных видов деформаций и оценивать влияющие на их проявление факторы, в том числе сейсмические воздействия природного, техногенного характера, и вибродинамическое воздействие от проходящих поездов.
8.1.4 Для защиты инфраструктуры железнодорожного пути от обвалов и осыпей применяют различные конструкции противообвальных и противоосыпных сооружений. Противообвальные сооружения и проводимые мероприятия подразделяют на активные и пассивные. К активным относятся сооружения и мероприятия, связанные с ликвидацией возможности вывалов с откосов обломков скального грунта и глыб, - анкеры глубокого заложения, объединенные высокопрочной сеткой, в том числе системами тросов, поддерживающие и подпорные стены, облицовочные стены и их установки, контрфорсы - капитальные сооружения; к пассивным - улавливающие валы, траншеи, полки, улавливающие металлические барьеры (классифицируемые по типу конструкции и способности к поглощению кинетической энергии удара скального обломка), системы драпировки - покровные сетки (металлические сетчатые системы, предусматривающие возможность периодической очистки зоны между сеткой и склоном от скоплений обломочного материала), габионные конструкции, надолбы и другие сооружения.
8.1.5 Металлические сетчатые системы в виде систем драпировок и барьеров различаются конструктивными решениями и схемой монтажа. Гибридный вид барьеров предполагает улавливание скального обломка и гашение его скорости до уровня, безопасного для перемещения в улавливающую траншею.
Стойки металлических барьеров и сетчатые улавливающие модули устанавливают с применением тросовых оттяжек. Тросовые оттяжки улавливающих модулей крепятся к анкерным фундаментам не жестким закреплением, а через специальные устройства, предназначенные для гашения энергии удара.
8.1.6 Покровные сетки проектируют в тех случаях, когда очистка склонов затруднена или в случае очень крутых откосов, а также в стесненных условиях. С их помощью возможна защита железнодорожного пути и сооружений от падающих обломков скального грунта в объеме не более 0,3 м3.
Методика испытаний противообвальных улавливающих сооружений приведена в приложении В.
8.2 Исходные материалы для обоснования проектных решений
8.2.1 Инженерные изыскания на противообвальных участках выполняют в соответствии с принятой стадийностью проектирования согласно [6].
Материалы изысканий для проектирования противообвальных защитных сооружений и мероприятий должны включать данные инженерных изысканий согласно СП 47.13330.
8.2.2 Содержание и объемы изыскательских работ должны быть достаточными: для установления обвалоопасных мест и их размеров (размеров опасных блоков); составления возможных вариантов трассирования железных дорог и других коммуникаций; определения комплекса мер по защите объектов инфраструктуры железнодорожного транспорта и их размещения, выбора типов конструкций защитных сооружений; получения данных для расчета общей и местной устойчивости откосов и склонов. При этом должны производиться:
- отбор проб и методов физических испытаний твердых горных пород с коэффициентом крепости по Протодьяконову f не менее 0,5 (прочность при одноосном сжатии не менее 5,0 - 8,0 МПа) по ГОСТ 21153.0;
- определение коэффициента крепости твердых горных пород по Протодьяконову по ГОСТ 21153.1;
- определение предела прочности при одноосном сжатии твердых горных пород по ГОСТ 21153.2;
- определение предела прочности при одноосном растяжении твердых горных пород по ГОСТ 21153.3;
- определение прочности при срезе со сжатием твердых горных пород по ГОСТ 21153.5;
- определение предела прочности при изгибе твердых горных пород по ГОСТ 21153.6;
- определение скоростей распространения упругих продольных и поперечных волн в твердых горных породах по ГОСТ 21153.7;
- определение предела прочности при объемном сжатии твердых горных пород по ГОСТ 21153.8;
- лабораторное определение физических характеристик - влажности и плотности грунтов без жестких структурных связей по ГОСТ 5180;
- полевое определение характеристик прочности и деформируемости грунтов;
- лабораторное определение максимальной плотности сухого грунта и соответствующей ей влажности по ГОСТ 22733;
- отбор, упаковка, транспортирование и хранение образцов грунтов по ГОСТ 12071;
- лабораторное определение характеристик прочности и деформируемости;
- лабораторное определение гранулометрического (зернового) и микроагрегатного состава песчаных и глинистых грунтов по ГОСТ 12536;
- статистическая обработка результатов определения физических и механических характеристик грунтов при их испытаниях по ГОСТ 20522;
- классификация всех грунтов по ГОСТ 25100.
8.2.3 Границы обвальных зон, в пределах которых предусматривается строительство противообвальных защитных сооружений, должны назначаться по материалам выполненных рекогносцировочных обследований и уточняться последующими изысканиями в этих зонах.
8.2.4 В результате изысканий должны быть определены деформации откосов и склонов по механизму смещения и по масштабности проявления, цикличности развития обвальных явлений и причины их образования, дан прогноз изменения инженерно-геологических условий в периоды строительства и эксплуатации комплекса.
8.2.5 Для определения границ и степени опасности скально-обвальных участков, оценки эффективности проектируемых мероприятий выполняют наблюдения за падением обломков скального грунта на железнодорожный путь (верхнее строение железнодорожного пути) во время их принудительного удаления с откосов выемок (склонов). Результаты наблюдений заносят в специальную ведомость. Также для предварительной оценки требуемых к реализации мероприятий защиты проводят расчет траекторий падения скальных обломков.
8.3 Проектирование откосов скальных выемок
8.3.1 В процессе проектирования скальных откосов и оценки состояния склонов следует осуществлять прогнозирование (расчет) их общей и местной устойчивости в соответствии с приложением Г.
8.3.2 Устойчивость откосов следует оценивать в зависимости от их очертания, характера и расположения поверхностей ослабления (трещиноватости, слоистости) по отношению к проектируемому откосу, прочностных параметров грунтов и устойчивости их по отношению к выветриваемости во времени, а также от внешних нагрузок, гидрогеологических условий (обводненности пород) и интенсивности сейсмического воздействия.
8.4 Проектирование укрепительных (поддерживающих и удерживающих) сооружений и конструкций
8.4.1 Укрепительные (поддерживающие и удерживающие) сооружения, конструкции и мероприятия включают в себя комплекс устройств, придающих откосу (склону) большую устойчивость и предотвращающих образование скально-обвальных явлений. В комплекс входят поддерживающие и удерживающие сооружения и конструкции: подпорные гравитационные и армогрунтовые стены, контрфорсы, пломбы и опояски, анкерные и нагельные крепления, сетчатые конструкции, сваи и шпоны, инъектирование и заделка трещин, различные комбинированные конструкции.
8.4.2 Поддерживающие стены (рисунок 1, а) следует применять в местах, где есть нависающие карнизы, для удаления которых требуется значительный объем работ.

а) поддерживающая стена; б) подпорная стена; в) контрфорс; г) заделка вывала; д) опояски; е) укрепление массива анкерами
Рисунок 1 - Схемы противообвальных укрепительных сооружений
8.4.3 Подпорные стены (рисунок 1, б) следует применять для удержания слоев горной породы, подсекаемых откосом выемки, когда уборка этих слоев затруднена или экономически нецелесообразна. При большой высоте откоса могут быть применены подпорные стены, заанкеренные в устойчивых слоях скалы.
8.4.4 Контрфорсы (рисунок 1, в) должны применять для подпирания отдельных неустойчивых монолитных скальных массивов, удаление которых может вызвать нарушение устойчивости скального откоса или склона в целом.
8.4.5 Заделку вывалов (пломбы) (рисунок 1, г) должны осуществлять путем заполнения каменной кладкой или бетоном местных углублений в откосах и склонах с целью предотвращения дальнейшего выветривания горных пород.
8.4.6 Опояски (рисунок 1, д) следует применять для поддержания неустойчивых наклонных слоев горных пород, когда использование подпорных стен, контрфорсов или уборка массива приводят к неоправданным финансовым затратам.
8.4.7 Анкеры, нагели (рисунок 1, е), сваи или шпоны должны применять для закрепления неустойчивых участков откоса и крупноглыбовых отдельностей (превышающих 1 м3) к достаточно прочному скальному массиву.
При мелкоглыбовой раздробленности скального откоса или склона и близком залегании к поверхности прочной породы укрепление откоса следует осуществлять путем применения анкерной (штанговой) крепи в совокупности с металлической сеткой, прикрепляемой анкерами к поверхности откоса.
Крупные скальные глыбы объемом не более 500 м3 допускается укреплять тросовыми обвязками, прикрепляемыми к устойчивым скальным массивам. Это техническое решение следует применять в качестве неотложных мероприятий по укреплению отдельных глыб.
8.4.8 Укрепление скальных трещиноватых откосов путем инъекции вяжущих веществ следует осуществлять при наличии сквозной системы трещиноватости, позволяющей раствору, нагнетаемому через скважины, проникнуть в большинство трещин, прилегающих к зоне инъектирования.
8.5 Проектирование защиты откосов от выветривания
8.5.1 Защиту откосов (склонов) от выветривания и разрушения следует осуществлять в тех случаях, когда общая устойчивость откосов или склонов обеспечена, а использование других средств защиты затруднительно.
8.5.2 Защита откосов возможна путем устройства облицовочных (одевающих) стен (при возможности из серобетона) (рисунок 2, а), нанесения на поверхность откосов и склонов различных вяжущих по предварительно установленной сетке пневмонабрызгом (рисунок 2, б) или посредством проведения агролесомелиоративных мероприятий.

а) облицовочная стена (одевающая); б) защитное покрытие из пневмонабрызга
Рисунок 2 - Схемы противообвальных защитных сооружений
8.5.3 Целесообразность применения защитных мероприятий устанавливается в зависимости от высоты и крутизны откоса (склона), свойств скальных грунтов, наличия местных строительных материалов, машин и оборудования.
8.5.4 Облицовочные (одевающие) стены следует применять при высоте откоса от 5 до 10 м там, где по условиям эксплуатации необходимо выравнивать поверхность откоса.
8.5.5 Покрытие откосов пневмонабрызгом (торкрет-бетоном (при возможности торкрет-серобетоном), набрызг-бетоном (при возможности набрызг-серобетоном и аэроцемом) следует предусматривать на предварительно навешенную и укрепленную анкерами (нагелями) металлическую сетку.
В покрытиях необходимо предусматривать устройство дренажных отверстий и вертикальных деформационных швов.
Защита путем пневмонабрызга вяжущих требуется при высоте откоса от 5 до 20 м и относительно ровной его поверхности и при наличии специального оборудования.
8.5.6 Агролесомелиорацию следует применять для закрепления откосов (склонов) крутизной не более 45°, сложенных легковыветривающимися (полускальными) грунтами и подверженных воздействию осыпных и эрозионных процессов.
8.6 Улавливающие сооружения и галереи
8.6.1 Оградительные улавливающие стены (рисунок 3, д) размещают у подошвы крутых (более 40°), относительно невысоких (не более 30 м) откосов (склонов) для улавливания мелких обломков или задержания осыпающегося скального грунта при выветривании откосов.
8.6.2 В зависимости от инженерно-геологических и топографических условий противообвальные улавливающие сооружения следует применять в виде улавливающих траншей, валов, полок, улавливающих и оградительных стен, сеток и надолбов.
8.6.3 Улавливающие сооружения в виде траншей и валов, а также стены и сетки располагают непосредственно у подошвы откоса (склона) и на откосе (склоне). Улавливающие полки и галереи следует устраивать только у подошвы откосов (склонов), а надолбы - на склонах.
8.6.4 Улавливающие траншеи и полки с бордюром (рисунок 3, а, б) у подошвы откосов или обвалоопасных склонов следует проектировать для защиты объектов от падения обломков скального грунта при высоте откосов (склонов) не более 60 м и крутизне их более 35°.

а) путевая траншея; б) улавливающая полка с бордюром; в) улавливающий вал у подошвы склона; г) улавливающий вал на склоне; д) оградительная улавливающая стена; е) улавливающая стена; ж) улавливающая сетка
Рисунок 3 - Схемы противообвальных улавливающих сооружений
8.6.5 Улавливающие валы (рисунок 3, в) следует располагать у подошвы затяжных склонов (при их высоте более 60 м), являющихся самостоятельными источниками скально-обвальной опасности, когда расстояние между подошвой склона и защищаемым объектом достаточно для их размещения.
8.6.6 Улавливающие валы на склонах (рисунок 3, г) следует проектировать при их крутизне не более 25° на высоте, не превышающей пределов от 30 до 50 м над защищаемым объектом.
8.6.7 Оградительные улавливающие стены (рисунок 3, д) размещают у подошвы крутых (более 40°), относительно невысоких (не более 30 м) откосов (склонов) для улавливания мелких обломков или задержания осыпающегося скального грунта при выветривании откосов.
8.6.8 Улавливающие стены следует размещать у подошвы скально-обвальных склонов крутизной от 25 до 35° (рисунок 3, е).
Допускается устройство этих стен также на относительно пологих участках склонов при их расположении на высоте не более 30 (при обосновании - 50) м над защищаемым объектом при условии возможности устройства грунтовых дорог.
8.6.9 Улавливающие сетки (рисунок 3, ж) следует использовать в стесненных условиях, учитывая, что для их размещения необходимо значительно меньшее пространство, чем для других улавливающих сооружений. Кроме того, их следует предусматривать также для перекрытия обвалоопасных логов.
8.6.10 Надолбы должны применять в комплексе с другими улавливающими сооружениями (рвами, валами, стенами, сетями и др.) на затяжных склонах крутизной не более 30°.
8.6.11 В отдельных случаях допускается устраивать улавливающие сооружения в несколько ярусов, располагая их горизонтальными рядами или наклонно (для изменения направления движения скальных обломков).
8.6.12 В качестве временных улавливающих сооружений возможно применение ловушек из различных местных материалов или их сочетаний (бревен, брусьев, старогодных шпал и рельсов, камня и др.).
8.6.13 Защитные противообвальные галереи следует размещать на обвальных участках железных дорог и других коммуникаций в тех случаях, когда устройство более простых противообвальных устройств и сооружений практически неосуществимо или экономически нецелесообразно. При этом очаги обвала должны находиться на достаточном расстоянии от галерей, исключающем возможность прямого падения на их кровлю скальных обломков (рисунок 4).

1 - амортизирующая отсыпка; 2 - перекрытие; 3 - нагорная стена; 4 - низовая опора
Рисунок 4 - Схема противообвальной галереи
8.6.14 Для уменьшения динамического воздействия скальных обломков на противообвальные улавливающие стены и галереи необходимо устраивать амортизирующие грунтовые отсыпки. В улавливающих сетях с этой целью рекомендуется устраивать дублирующие оттяжки.
При рассмотрении и согласовании проектно-сметной документации особое внимание следует обращать на правильное расположение противообвальных улавливающих сооружений в плане и профиле.
Указанные сооружения не должны иметь в плане резких переломов; ширину улавливающих пазух по дну принимают не менее 3 (при обосновании - 4) м; в сооружениях через каждые 100 м оставляют разрывы шириной не менее 4 м. В местах разрывов улавливающих сооружений необходимо устраивать дополнительные ограждающие сооружения в виде съемных решеток из старогодных рельсов. Смежные по высоте сооружения размещают с перекрытием их концов на длину от 5 до 10 м. Дну улавливающих пазух придают уклон не менее 3‰ по направлению к концам сооружения. Следует предусматривать устройство подъездов к улавливающим пазухам как во время строительства, так и на период эксплуатации.
Работы по проверке откосов выемок (склонов) и очистке от неустойчивых обломков скального грунта разрешается проводить только в светлое время суток при сухой погоде. Производство указанных работ не допускается при тумане, при видимости менее 200 м, во время дождей и снегопада, грозы, бурана, а также при ветре, скорость которого превышает 10 м/с, и температуре воздуха ниже минус 20 °C. При аварийных ситуациях разрешается работа в темное время суток при искусственной освещенности.
Наименьшая ширина технологической полки для проезда машин в пределах откоса должна составлять не менее 5 м. Допустимая крутизна косогора и полки в сторону откоса не должна превышать при высоте откоса:
- не более 20 м в мерзлых грунтах 5°, во всех остальных случаях 15°;
- более 20 м в мерзлых грунтах работа не допускается, а во всех остальных случаях работа допускается при крутизне косогора и полки не более 10°.
9 Основные положения проектирования и строительства системы защиты железнодорожного пути от оврагообразования
9.1 Овраги представляют собой промоины на земной поверхности, образующиеся в результате размывного действия воды, сбегающей по склону, при благоприятных условиях рельефа, грунта, климата и недостаточности естественного растительного покрова на поверхности склона.
9.2 Для защиты пути и сооружений от воздействия развивающихся оврагов следует предусматривать почвоукрепительные лесонасаждения, которые при необходимости должны применять в комплексе с другими инженерными сооружениями, предусматриваемыми при проектировании земляного полотна.
9.3 Почвоукрепительные насаждения надлежит проектировать не только на территории, подверженной деформации почвогрунтов, но и на потенциально опасных местах, которые могут впоследствии угрожать безопасности и бесперебойности движения поездов, а также на участках зарождения и формирования стока, обусловливающего процесс развития деформации грунтов, ведущих к образованию оврагов [7].
9.4 Для предотвращения образования и развития оврагов необходимо:
- сохранять естественный растительный покров, без промедления должны заделываться всякие, даже незначительные рытвины, промоины, обнажения грунта и т.п.;
- усиливать посадкой кустарников и деревьев при недостаточности естественного растительного покрова в наиболее крутых частях склонов или понижать в местах наибольшей скорости стекания воды устройством направляющих валиков для отвода стекающей воды от линии наибольшей крутизны;
- устраивать при наличии сельхозугодий (пахотной земли) в пределах возможного оврагообразования возможно более глубокие борозды и валики между ними в направлении, наиболее близком к горизонталям;
- перехватывать при недостаточности указанных мероприятий поверхностную воду водоотводными и водонаправляющими устройствами для предотвращения ее попадания в зону возможного оврагообразования, опасного для земляного полотна;
- укреплять выходы устраиваемых водоотводов: нагорных и продольных канав, кюветов, резервов, труб и малых мостов;
- планировать и укреплять откосы канав и резервов в местах входа в них воды из ложков в условиях, благоприятных для оврагообразования.
9.5 В отношении действующих оврагов, угрожающих железнодорожному пути, должны быть осуществлены мероприятия для недопущения их дальнейшего развития:
- регулирование поверхностного стока;
- планировка и уположение крутых откосов оврагов;
- засев оврага травой и, при необходимости, посадка кустарников и деревьев.
В особо сложных условиях дополнительно должны быть предусмотрены террасирование оврага, устройство запруд.
9.6 Исключен с 29.01.2024. - Изменение N 1
10 Основные положения проектирования и строительства системы защиты железнодорожного пути от воздействия сильных ветров
10.1 Для участков железных дорог, подверженных ежегодному воздействию сильных ветров (со скоростью не более 20 м/с), в местах гололедообразования и заноса пути мелкоземом на землях несельскохозяйственного назначения или не пригодных для выращивания сельскохозяйственных культур, следует проектировать специальные ветроослабляющие лесонасаждения. В тех случаях, когда порывы сильного ветра могут угрожать безопасности движения поездов, допускается устройство ветроослабляющих лесонасаждений на землях сельскохозяйственного назначения по согласованию с их владельцами. На этапе инженерных изысканий следует проводить оценку вероятности появления ветров со скоростью более 20 м/с. При разработке раздела "мероприятия по охране окружающей среды" следует проводить инженерную оценку риска возникновения и воздействия шквальных ветров и ураганов со скоростью более 20 м/с и предусматривать соответствующие мероприятия при эксплуатации по удалению лесоповала с пути и полосы отвода.
10.2 В метелевых районах ширину ветроослабляющих насаждений, конструкции лесополос и строение насаждений в целом следует проектировать по образцу снегозадерживающих. В тех районах, где метелевая деятельность не отмечается, ширину лесополос допускается принимать в пределах 12 - 15 м.
10.3 В метелевых районах ширину ветроослабляющих насаждений, конструкции лесополос и строение насаждений в целом надлежит проектировать по образцу снегозадерживающих. В тех районах, где метелевая деятельность не наблюдается, ширину таких лесополос допускается принимать равной от 12 до 15 м.
11 Основные положения проектирования и строительства системы защиты железнодорожного пути на участках возможного выхода на путь домашнего скота и крупных диких животных
11.1 На железнодорожных линиях в местах возможного выхода на железнодорожный путь домашнего скота и крупных диких животных следует предусматривать оградительные устройства в виде сетчатых изгородей, железобетонных заборов и/или специальных оградительных лесных насаждений из кустарников и деревьев и/или систем оповещения (отпугивания животных).
11.2 При размещении оградительных устройств, влияющих на обитание и условия размножения животных, должны соблюдаться требования [2]; проектирование защитных мероприятий должно быть увязано с положениями лесопользования и землевладения с обеспечением прав собственников в соответствии с государственным кадастром недвижимости и единого государственного реестра прав на недвижимое имущество и сделок с ним [3].
11.3 Ограждения могут не устраивать в тех местах, где к железнодорожному полотну вплотную подходят скальные выемки, гаражи и другие естественные и искусственные препятствия.
11.4 Оградительные лесные насаждения из кустарников и деревьев, создаваемые на не заносимых метелевым снегом участках пути, должны защищать железнодорожное земляное полотно от выхода на него крупных животных и не способствовать заносам пути снегом, песком и пылью. Их следует формировать густыми и содержать высотой не выше земляного полотна.
11.5 По возможности ограждающие сооружения должны быть совмещены со снегозащитными и шумозащитными сооружениями.
11.6 Все виды создаваемых придорожных насаждений должны: состоять из наиболее ценных в защитном и хозяйственном отношении, биологически устойчивых и долговечных древесных и кустарниковых пород; вступать в эксплуатацию в установленные действующими нормативами сроки; препятствовать выходу за пределы снегозадерживающих, ветроослабляющих и оградительных насаждений крупных диких животных и безнадзорного домашнего скота на железнодорожный путь.
11.7 На путях сезонной миграции диких животных следует проектировать участки пути на эстакадах или в тоннелях для организации пропуска миграционных потоков. Открытые участки трассы, железной дороги, прилегающие к местам организации перехода миграционных потоков животных через железную дорогу, при потенциально возможном выходе диких животных на путь должны быть ограждены, а путь оборудован автоматизированной сигнализацией.
11.8 При прохождении железнодорожного пути по местности со сложными природными условиями при проектировании системы защитных мероприятий ширина полосы отвода должна быть установлена с учетом норм отвода земельных участков, необходимых для формирования полосы отвода железных дорог, а также нормы расчета охранных зон железных дорог.
12 Основные положения проектирования и строительства системы защиты железнодорожного пути от водных потоков и осадков
12.1 Защита от вредного воздействия водных потоков и атмосферных осадков
Для защиты земляных сооружений от вредного воздействия водных потоков и осадков должны применять такие укрепления, как посев трав, одерновка, посадка кустарника, каменные мостовые, габионы и др. Характеристика способов укрепления приведена в таблице 5.
Таблица 5 - Способы укрепления земляных сооружений
|
Способ укрепления |
h1%, м |
Скорость течения воды, v, м/с |
Расчетные параметры |
Применяемый типоразмер |
|
Искусственный дерновый покров (семена многолетних злаковых и бобовых трав) Травяной покров в два раза увеличивает испарение воды за счет транспирации до 200 - 250 мм/г |
≤ 0,20 |
1,5 |
- |
- |
|
Мощение камнем (одиночное или двойное) |
≥ 1,50 |
2 - 6 |
dк, м (диаметр камня) dк = 0,15 - 0,3 м |
- |
|
Каменные наброски на откосы из разрыхленных слабовыветривающихся горных пород В материале наброски должны соблюдать условие dк ≥ 50% (также применяется наброска из тетраподов и т.д.) |
≥ 1,50 |
4 - 5 |
dк, м (диаметр камня) |
- |
|
Бетонные плиты, свободно лежащие с открытыми швами |
≤ 0,70 |
Не регламентируется |
δ, м (толщина плит) |
1 x 1 x 0,15 γмат= 24 - 26 кН/м3 |
|
Железобетонные разрезные шарнирно-соединенные плиты |
1,00 - 1,50 |
Не регламентируется |
δ, м (толщина плит) |
2,5 x 3 x 0,16 - 0,20 γмат= 24 - 26 кН/м3 |
|
Железобетонные плиты, омоноличенные по контуру |
≤ 3,00 |
Не регламентируется |
δ, м (толщина плит) |
карты 25 x 30 x 0,16 - 0,20 γмат = 24 - 26 кН/м3 |
|
Монолитные железобетонные плиты |
≤ 3,00 |
Не регламентируется |
δ, м (толщина плит) |
По форме откоса |
|
Гибкие бетонные маты |
≤ 3,00 |
Устанавливается расчетом |
δ, м (толщина мата) |
По форме откоса и в соответствии с формой защитного блока |
|
Гибкие железобетонные покрытия (с шарнирными элементами) |
≤ 1,50 |
> 4 - 5 |
δ, м (толщина плит) |
2,5 x 3 x 0,16 - 0,20 γмат= 24 - 26 кН/м3 |
|
Габионные покрытия (габионы, матрасы Рено) |
0,4 - 3 |
4 - 6 |
По методике расчета габионных конструкций | |
12.2 Защита от наледей
12.2.1 Для защиты железнодорожных сооружений от вредного воздействия наледей необходимо разрабатывать противоналедные как временные, так и постоянные мероприятия во время проектирования и строительства. Проектирование постоянных противоналедных сооружений следует производить в индивидуальном порядке на основании материалов подробных инженерно-геологических и мерзлотных обследований, а также изучения наледей и источников их питания как в период изысканий, строительства, так и в процессе временной, а при необходимости и постоянной эксплуатации.
12.2.2 В зависимости от местных условий могут применять:
- углубление и спрямление русел водотоков;
- осушение местности открытыми канавами;
- устройство грунтовых мерзлотных поясов и водонепроницаемых экранов, валов из грунта, заборов;
- устройство дренажей, каптажей, глубоких утепленных лотков при постоянно возникающих в зимнее время наледей.
При проектировании для предотвращения заполнения наледью отверстий искусственных сооружений должны быть рассмотрены технические решения, связанные с увеличением отверстий искусственных сооружений и с возможностью применения эстакад.
12.2.3 Местоположение, вид и размер противоналедных мероприятий и устройств определяют в каждом отдельном случае в зависимости:
- от вида наледи (косогорная, логовая, речная и т.п.);
- места выхода источника, образующего наледь;
- дебита источника, питающего наледь;
- продолжительности действия наледи и ее размеров;
- объема наледного льда;
- рельефа местности и вида сооружения, на которое воздействует наледь.
12.2.4 При проектировании водоотводных каналов в льдонасыщенных грунтах следует предусматривать меры по предотвращению образования наледей, а также проведение конструктивных мероприятий, обеспечивающих гидротермический режим оснований и откосов канав согласно теплотехническим расчетам.
12.3 Защита от селей
12.3.1 Для инженерной защиты территорий, зданий и сооружений от селевых потоков следует применять сооружения и выполнять мероприятия, приведенные в таблице 6.
Таблица 6 - Сооружения и мероприятия для инженерной защиты от селевых потоков
|
Вид сооружения и мероприятия |
Назначение сооружения и мероприятия. Условие применения |
|
I Селезадерживающие | |
|
Бетонные, железобетонные плотины (при возможности серобетонные, железосеробетонные), из каменной кладки: водосбросные, Сквозные. Плотины из грунтовых материалов (глухие) |
Задержание селевого потока в верхнем бьефе. Образование селехранилищ |
|
II Селепропускные | |
|
Каналы Селеспуски Мосты |
Пропуск селевых потоков через объект или в обход него |
|
III Селенаправляющие | |
|
Направляющие и ограждающие дамбы Шпоры |
Направление селевого потока в селепропускное сооружение |
|
IV Стабилизирующие | |
|
Каскады запруд Подпорные стены Дренажные устройства Террасирование склонов Агролесомелиорация |
Прекращение движения селевого потока или ослабление его динамических характеристик |
|
V Селепредотвращающие | |
|
Плотины для регулирования паводков Водосбросы на озерных перемычках |
Предотвращение селеобразующих паводков |
|
VI Организационно-технические | |
|
Организация службы наблюдения и оповещения |
Прогноз образования селевых потоков |
|
Примечание - Применение труб для пропуска селевых потоков не допускается. | |
12.3.2 Расчет устойчивости противоселевых сооружений следует производить в соответствии с приложением Г.
Коэффициент надежности по нагрузке γc при определении давления наносов, селевых отложений и селевого потока следует принимать равным 1,2.
Коэффициент условий работы γc при расчете устойчивости бетонных и железобетонных противоселевых сооружений надлежит принимать:
- для полускальных и нескальных оснований γc= 1,0;
- скальных оснований γc= 1,0;
- поверхностей сдвига, проходящих по трещинам в массиве основания γc= 1,0;
- поверхностей сдвига, проходящих по контакту бетон-скала и в массиве основания частично по трещинам, частично по монолиту, γc= 0,95.
12.3.3 В расчетах противоселевых сооружений расчетные характеристики дождевых и гляциальных селей определяют на основе характеристик дождевых и ледниково-прорывных паводков с исключением попадания селей в поверхностные водные объекты и сельскохозяйственные угодья.
12.3.4 Расчетную ежегодную вероятность превышения максимальных расходов паводков, вызывающих селевые потоки, принимают равной:
- для селепропускных и селенаправляющих сооружений III класса - 0,5%, IV класса - 1%;
- стабилизирующих и профилактических (кроме водорегулирующих плотин) - 2%, для водорегулирующих плотин - 1%.
12.3.5 Нагрузки и воздействия на противоселевые сооружения следует определять с учетом:
- статического давления отложившейся массы селевого потока;
- динамического давления селевого потока на плоскость, перпендикулярную направлению его движения.
12.3.6 В расчетах селезадерживающих сооружений расчетный объем V селехранилища следует вычислять по формуле
V = W1 - W2 + TW, (12.1)
где W1 - максимальный объем селя в створе плотины, м3;
W2 - объем селя, сбрасываемый в нижний бьеф в процессе аккумуляции, м3;
T - время заиления селехранилища, принимаемое в течение не менее 25 лет;
W - среднегодовой объем аккумулируемых в селехранилище наносов, м3.
12.3.7 Максимальный объем селя W1 принимают равным:
- для селей, вызываемых дождевыми и ледниково-прорывными паводками, - объему селя, вызванного прохождением паводка с вероятностью превышения 1%;
- селевых потоков другого генезиса - на основании результатов изучения следов прошедших селей.
12.3.8 Объем селя W2 определяют только для наносоводных селей (с учетом пункта 12.3.12), для грязекаменных селей W2 = 0.
12.3.9 Среднегодовой объем W определяют как разность между среднемноголетним объемом твердого стока (с учетом селевых потоков повторяемостью более одного раза в 25 лет) и объемом наносов, пропускаемых в нижний бьеф (определяемым конструкцией водопропускных сооружений). При повторяемости селей менее одного раза в 25 лет и обеспечении транзита бытового твердого стока вместимость селехранилища назначается без запаса на заиление (TW = 0).
12.3.10 При определении высоты плотины, соответствующей расчетному объему селехранилища, необходимо учитывать уравнительный уклон селевых отложений tgαy, принимая его для грязекаменных селевых потоков равным в пределах от 0,5 до 0,7tgα в зависимости от вида потока γ, где tgα - уклон естественного русла. При определении высоты глухих селезадерживающих плотин из грунтовых материалов tgαy= 0.
12.3.11 Селезадерживающие плотины, разрушение которых угрожает катастрофическими последствиями, необходимо проверять на воздействие селя, вызванного паводком, с вероятностью превышения 0,01%. При этом проектом следует предусматривать устройство поверхностных селесбросных сооружений, обеспечивающих сброс избыточного (по сравнению с расчетным) объема селевого потока, или повышение отметки гребня плотины, обеспечивающее аккумуляцию всего объема селевого потока.
12.3.12 При проектировании селезадерживающих плотин следует предусматривать водопропускные сооружения для пропуска в нижний бьеф бытового стока реки, а также сброса водной составляющей наносоводных селей. При этом сбросный расход не должен превышать критического селеобразующего расхода, определяемого для участка ниже створа плотины.
12.3.13 Селезадерживающие плотины следует проектировать без противофильтрационных устройств и без затворов на водопропускных сооружениях. Для аккумуляции селей допускается предусматривать плотины сквозной конструкции. Нагрузки на сквозные плотины следует принимать как на глухие.
12.3.14 Возвышение гребня глухих селезадерживающих плотин из грунтовых материалов над уровнем, соответствующим расчетному объему селехранилища, следует принимать не менее высоты последнего селевого вала, определяемой при максимальном расчетном расходе селя и среднем угле наклона, равном углу наклона участка перед селехранилищем. При этом для грязекаменных селей высота селевого вала у плотины принимается равной глубине селя у входа в селехранилище.
12.3.15 Основными видами селепропускных сооружений являются:
- каналы - для пропуска селевых потоков через населенные пункты, промышленные предприятия и другие объекты, позволяющие в одном уровне с ними пропустить селевой поток через объект или в его обход;
- селеспуски - для пропуска селевых потоков через линейные объекты (автомобильные и железные дороги, каналы, газопроводы, нефтепроводы, и др.).
12.3.16 Применение селепропускных сооружений для пропуска грязекаменных селей допускается лишь при продольном уклоне сооружения не менее 0,10.
12.3.17 Размеры селепропускных сооружений с входными и выходными участками, а также отводящего тракта следует назначать из условия обеспечения необходимой транспортирующей способности потока, при этом:
- уклон дна сооружений необходимо принимать не менее среднего уклона подходного участка селевого русла, длина которого принимается равной не менее 20 ширин селевого потока;
- ширину сооружений принимают равной средней ширине селевого потока на подходном участке селевого русла;
- продольную ось селепропускного сооружения необходимо совмещать с динамической осью селевого потока; при необходимости поворота сооружения угол между осями должен быть не более 8°;
- возвышение стен (перекрытий) селепропускных сооружений над максимальным уровнем селевого потока следует принимать разным 0,2Hmax, где Hmax - максимальная глубина солевого потока, но не менее 1 м - для лотков и не менее 0,5 м - для каналов.
12.3.18 Входной участок селепропускных сооружений следует ориентировать в плане таким образом, чтобы угол установки сопрягающих стенок по отношению к оси главного русла не превышал 11°.
Возвышение стен над максимальным уровнем селевого потока на входных участках необходимо принимать не менее 0,5Hmax.
12.3.19 Селенаправляющие сооружения надлежит предусматривать для направления потока в селепропускное сооружение, отвода селевого потока от защищаемого объекта или предотвращения подмыва защищаемой территории.
12.3.20 Углы поворота направляющих дамб в плане следует принимать в соответствии с требованиями 12.3.18.
12.3.21 Напорные откосы направляющих и ограждающих дамб следует крепить облицовкой из сборного или монолитного железобетона.
Возвышение гребня дамбы (облицовки) над максимальным уровнем селевого потока следует устанавливать в соответствии с 12.3.14.
12.3.22 При односторонней защите берегов от размыва наносоводными селями следует предусматривать применение шпор глухой или сквозной конструкции.
12.3.23 Проектирование склоновых стабилизирующих сооружений (подпорных стен и дренажных устройств) следует осуществлять в соответствии с правилами раздела 8.
12.3.24 Русловые стабилизирующие сооружения необходимо предусматривать в виде систем запруд, охватывающих все участки селевых русел данного бассейна.
12.3.25 Верхняя граница стабилизации русел определяется местоположением створа, выше которого расход дождевого паводка с вероятностью превышения 2% уже не превышает критический селеобразующий расход.
Нижняя граница стабилизации русел определена уклоном i = 0,02, при котором селевые потоки уже не образуются.
12.3.26 При возведении запруд на нескальном основании для предотвращения подмыва сооружения необходимо предусматривать устройство в нижнем бьефе контрзапруды высотой 0,25H на расстоянии 2H от основной запруды (H - высота основной запруды над дном русла, м). Запруду и контрзапруду соединяют между собой продольными стенками.
12.3.27 Стабилизирующие сооружения должны быть рассчитаны на пропуск дождевого паводка с вероятностью превышения 2%.
12.3.28 Для предотвращения подмыва бортов сооружения пропуск паводков через гребень запруды необходимо производить по специальному водосливному углублению, ширина которого обуславливается шириной пойменной части реки, а глубина - требованием пропуска расчетного дождевого паводка. Отверстия для выпуска воды в теле запруды расположены в пределах горизонтальной проекции водосливного углубления.
12.3.29 Запруды следует рассчитывать на прочность и устойчивость как подпорные стены с учетом значений гидростатического и фильтрационного давления воды и отложившихся наносов согласно СП 58.13330.
12.3.30 Террасы (террасы-каналы, нагорные каналы) применяют для уменьшения максимального расхода дождевых паводков путем перехвата склонового стока и его перевода в грунтовый либо его медленного отвода в сбросные каналы или русла. Пропускная способность этих сооружений должна обеспечивать отвод паводка с вероятностью превышения 2%.
12.3.31 Плотины применяют, когда очаг образования дождевого или гляциального селя находится ниже очага формирования селеобразующего паводка и между этими участками рельеф позволяет создать регулирующую емкость. Плотина должна быть оборудована выпуском воды, обеспечивающим автоматическое опорожнение регулирующей емкости с расходом, не превышающим селеобразующий, а также с катастрофическим водосбросом.
Требуемую вместимость регулирующей емкости следует определять объемом паводка с вероятностью превышения 1% за вычетом объемов, сбрасываемых в нижний бьеф в период аккумуляции этого паводка.
12.3.32 Водосбросы следует осуществлять для предотвращения прорыва озер. Тип водосброса (траншейный, сифонный, туннельный) определен строительными условиями и характером озерной перемычки.
Водосбросы следует рассчитывать на расход с вероятностью превышения 2%.
13 Основные положения проектирования и строительства системы защиты железнодорожного пути от оползней
13.1 При проектировании инженерной защиты железнодорожного пути от оползневых процессов следует рассматривать возможность применения следующих мероприятий, сооружений и конструкций, направленных на предотвращение и стабилизацию этих процессов:
- изменение рельефа склона в целях повышения его устойчивости;
- устройство поддерживающих (гравитационных и армогрунтовых подпорных стен, контрбанкетов) сооружений и удерживающих анкерных, нагельно-сетчатых конструкций;
- устройство улавливающих сооружений;
- устройство противообвальных галерей;
- защита от подмыва устройством берегозащитных сооружений - для береговых склонов;
- регулирование стока поверхностных вод с помощью вертикальной планировки территории и устройства системы поверхностного водоотвода;
- предотвращение инфильтрации воды в грунт и эрозионных процессов;
- искусственное понижение уровня подземных вод;
- агролесомелиорация;
- прочие мероприятия (регулирование тепловых процессов с помощью теплозащитных устройств и покрытий, защита от вредного влияния процессов промерзания и оттаивания, установление охранных зон).
13.2 Если применение мероприятий и сооружений активной защиты, указанных в 13.1, полностью не исключает возможность образования оползней и обвалов, а также в случае технической необоснованности активной защиты следует предусматривать мероприятия пассивной защиты (приспособление защищаемых сооружений к обтеканию их оползнем, улавливающие сооружения и устройства, противообвальные галереи).
13.3 При выборе защитных мероприятий и сооружений и их комплексов следует учитывать виды возможных деформаций склона (откоса), уровень ответственности защищаемых объектов, их конструктивные и эксплуатационные особенности.
Виды противооползневых и противообвальных сооружений и мероприятий следует выбирать на основании расчетов общей и местной устойчивости склонов (откосов), т.е. устойчивости склона (откоса) в целом и отдельных его морфологических элементов, данных мониторинга.
13.4 Противооползневые и противообвальные сооружения и их конструкции проектируются по двум методам предельных состояний:
а) первый метод (полная непригодность сооружения к дальнейшей эксплуатации):
- расчеты общей прочности и устойчивости системы сооружения - грунтовый массив (откос, склон);
- расчеты прочности и устойчивости отдельных элементов сооружения, разрушение которых приводит к прекращению эксплуатации сооружения;
- расчеты перемещений сооружений и конструкций, от которых зависит прочность или устойчивость сооружения в целом, а также прочность или устойчивость объектов на защищаемой территории;
б) второй метод (непригодность к нормальной эксплуатации):
- расчет оснований, откосов, склонов и элементов конструкции, разрушение которых не приводит все сооружение в непригодное состояние, на местную прочность;
- расчеты по ограничению перемещений и деформаций сооружений, прилегающих территорий и объектов на них расположенных;
- расчеты по образованию или раскрытию трещин и строительных швов.
13.5 Расчет противооползневых и противообвальных сооружений, проектируемых откосов и склонов, вычисляют исходя из условия
, (13.1)
где F - расчетное значение обобщенного силового воздействия на сооружение или его конструктивные элементы (сила, момент, напряжение), определяемое в соответствии с СП 20.13330, деформации (смещения) или другие параметры, по которым производят оценку предельного состояния;
ψ - коэффициент сочетания нагрузок, принимающий значения при расчетах по предельным состояниям:
- первой группы:
- для основного сочетания эксплуатационного периода ψ = 1,0,
- то же, для строительного периода и ремонта ψ = 0,95,
- для особого сочетания нагрузок, в том числе сейсмической нагрузки на уровне проектного землетрясения годовой вероятностью 0,01ψ = 0,95,
- прочих нагрузок годовой вероятностью 0,001 и максимального уровня расчетного землетрясения ψ = 0,90;
- второй группы на основное сочетание нагрузок ψ = 1,0;
R - расчетное значение обобщенной несущей способности, прочности, деформации (смещения) или другого параметра, устанавливаемого соответствующими нормами проектирования в зависимости от типа конструкции и используемых материалов с учетом коэффициентов надежности по материалу γm и (или) грунту γg;
γn - коэффициент надежности по ответственности сооружения при расчетах:
- по предельным состояниям первой группы в зависимости от уровня ответственности согласно ГОСТ 27751:
1а - γn= 1,25,
1б - γn= 1,20,
2 - γn= 1,15,
3 - γn= 1,10;
- по предельным состояниям второй группы γn= 1,00;
- устойчивости склонов, сохраняемых в естественном состоянии, γn принимают как для сооружения или территории, которые могут прийти в непригодное состояние при разрушении склона;
- природных склонов γn= 1,0;
γd - коэффициент условий работы, учитывающий характер воздействий, возможность изменения свойств материалов со временем, степень точности исходных данных, приближенность расчетных схем, тип сооружения, конструкции или основания, вид материала и другие факторы; устанавливается в диапазоне 0,75 ≤ γd≤ 1,00 нормами проектирования отдельных видов сооружений.
13.6 Расчет устойчивости проектируемых склонов и откосов в соответствии с (13.1) допускается выполнять только для простейших форм поверхности скольжения, отделяющей призму обрушения от неподвижного массива грунта (в виде отрезка прямой или окружности). В этом случае зависимость (13.1) вычисляют следующим образом:
, (13.1а)
где [kst] = γnψ/γd - нормированное значение коэффициента устойчивости склона (откоса); расчетное значение коэффициента устойчивости, определяемое как отношение удерживающих сил (моментов), действующих вдоль линии скольжения, к сдвигающим силам (моментам).
В общем случае расчеты устойчивости выполняют при произвольных формах поверхности скольжения. При этом условие (13.1) принимает вид
kst ≤ [kst]. (13.1б)
В этом случае под коэффициентом устойчивости понимают число, на которое следует разделить исходные прочностные характеристики грунта, для того чтобы ограниченный данной пробной поверхностью скольжения массив пришел в состояние предельного равновесия.
При этом соотношение между нормальными и касательными напряжениями по всей поверхности скольжения, соответствующее предельному состоянию призмы обрушения, отвечает условию
τnt= σntgφI+ cI, (13.2)
где φI= arctg(tgφ/kst) и cI = c/kst - значения угла внутреннего трения и удельного сцепления грунта, при которых наступает сдвиг грунта, соответственно.
Коэффициент устойчивости склона (откоса) находят как минимальное значение по всем возможным пробным поверхностям скольжения. Определение коэффициента устойчивости склона (откоса) можно производить как с использованием традиционных методов теории предельного равновесия (с разбиением призмы оползания на отсеки или без оного), так и упругопластическими расчетами методом конечных элементов с использованием метода снижения прочностных характеристик.
13.7 В расчетах противооползневых и противообвальных сооружений нагрузки и воздействия следует определять с учетом:
- бокового давления грунта (активное, пассивное давление, давление покоя и промежуточные значения), величина которого может быть определена методами предельного равновесия (см. СП 101.13330, СП 22.13330), а также с использованием континуальных упругопластических моделей грунта по методу конечных элементов (МКЭ) - для удерживающих конструкций;
- воздействия падающих скальных обломков, размеры которых допускается определять в соответствии с приложением Д - для конструкций противообвальных галерей и улавливающих сооружений. Для сейсмических районов следует учитывать сейсмическое воздействие на сооружения инженерной защиты и на удерживаемый массив грунта в соответствии с СП 14.13330.
13.8 Для районов распространения многолетнемерзлых грунтов расчеты противооползневых сооружений следует осуществлять с учетом СП 25.13330, ГОСТ Р 53582.
13.9 Классификационные показатели оползней, селей и скально-обвальных явлений и формы распорядительных актов и паспортов, необходимые для выполнения работ по паспортизации земляного полотна, приведены в приложениях Ж.
13.10 При передаче проектно-сметной документации систем защиты железнодорожного пути от оползней заказчику должны быть переданы данные для составления технического паспорта сооружений, учетных форм потенциально опасных участков.
14 Предупреждение чрезвычайных ситуаций техногенного характера на объектах инфраструктуры железнодорожного транспорта
14.1 При проектировании объектов инфраструктуры, располагаемых в зоне риска техногенного характера, необходимо предусматривать возможности проявления чрезвычайных ситуаций (ЧС) техногенного и природного характера и воздействия их поражающих факторов.
Сведения об источниках ЧС техногенного характера и воздействиях их поражающих факторов должны содержать:
- перечень потенциально опасных объектов железнодорожного транспорта, примыкающих к ним объектов, которые могут стать источниками ЧС;
- возможные техногенные причины ЧС из-за нарушений в работе объектов железнодорожного транспорта и примыкающих к ним объектов, в том числе инженерных коммуникаций (систем электроснабжения, тепло- и газоснабжения);
- результаты оценки степени риска техногенных ЧС на территории объекта инфраструктуры (расчетным, экспериментальным и экспертным путем, по данным эксплуатации аналогичных объектов инфраструктуры железнодорожного транспорта);
- средства и способы мониторинга и прогнозирования ЧС техногенного характера.
14.2 В проектной документации на объекты инфраструктуры, располагаемые в зоне риска природного и техногенного характера, должны быть предусмотрены решения по предупреждению ЧС на основании требований, приведенных в заданиях на проектирование.
Требования по предупреждению ЧС включают:
- установление сроков службы, периодичности проведения технического обслуживания, ремонта (текущего, капитального), осмотров и освидетельствований технического состояния объектов инфраструктуры железнодорожного транспорта в процессе эксплуатации;
- необходимость мониторинга технического состояния объектов инфраструктуры железнодорожного транспорта (отклонение от критериев предельного состояния, число отказов, приведших к нарушениям безопасности движения, число дефектов, обнаруженных в ходе диагностирования, внеплановые ремонты) и прогнозирования ЧС;
- выбор материалов и веществ, применяемых при проектировании объектов, в соответствии с параметрами и условиями эксплуатации;
- применение современных безопасных технологий, надежного эксплуатационного оборудования и защитных мер.
14.3 При проектировании объектов инфраструктуры в зоне риска техногенного характера необходимо указывать расположение ближайших аварийно-спасательных сил и средств и те виды ЧС, последствия которых они могут ликвидировать.
Организационных мероприятия по предупреждению и ликвидации ЧС должны осуществляться в соответствии с [10].
Приложение А
Типы и конструкции постоянных снегозадерживающих и снегопередувающих заборов и переносных щитов
А.1 Постоянные снегозадерживающие заборы
А.1.1 Заборы с равномерной просветностью панели по всей высоте изготавливают из дерева, обработанного антисептиком и покрытого гидрофобным материалом (рисунок А.1, а), и из железобетонных (при возможности железосеробетонных) опор и деревянного заполнения (рисунок А.1, б).

1 - прогон; 2 - доска обшивки; 3 - полосовое железо (ЗОЛ 15 мм); 4 - подкос; 5 - подкладка
Рисунок А.1 - Схемы заборов с равномерной просветностью высотой 4,5 (а) и 5,5 м (б)
А.1.2 Деревянные заборы, обработанные антисептиком и покрытые гидрофобным материалом, с неравномерной просветностью облегченного типа, устраивают по схемам, приведенным на рисунке А.2. Общая высота заборов в зависимости от объема подносимого снега составляет 3, 4 и 5 м, просветность панели - 50%.


1 - доски обшивки; 2 - столбы; 3 - прогон; 4 - подкос; 5 - подкладка
Рисунок А.2 - Схемы заборов облегченного типа высотой 3 м (а), 4 м (б) и 5 м (в)
Опоры изготавливают из обработанного антисептиком с гидрофобным покрытием дерева, имеют диаметр 25 см и заглубляют в грунт на глубину 1,6 м. В пучинных грунтах в основании опоры устраивают противопучинные анкеры. Основные размеры элементов деревянного забора приведены в таблице А.1, а расход материалов на изготовление - в таблице А.2.
Таблица А.1 - Основные размеры элементов деревянных заборов облегченного типа
|
Высота забора, м |
Диаметр столба, см |
Длина столба, см |
Диаметр подкоса, см |
Размер прогона, см |
Размер обрешетки, см |
|
3,0 |
25 |
460 |
20 |
6 x 10 x 325 |
1,5 x 10 x 100 |
|
4,0 |
25 |
560 |
20 |
6 x 10 x 325 |
1,5 x 10 x 140 |
|
5,0 |
25 |
660 |
20 |
6 x 10 x 325 |
1,5 x 10 x 180 |
Таблица А.2 - Расход материалов на изготовление 1 км деревянных заборов облегченного типа
|
Высота забора, м |
Расход материалов, м3 | |||
|
на столбы (диаметр 25 см) |
на подкосы (диаметр 20 см) |
на бруски для прогонов |
на щитопланку для обрешетки | |
|
3,0 |
64 |
41 |
25 |
15 |
|
4,0 |
78 |
47 |
25 |
21 |
|
5,0 |
92 |
55 |
25 |
27 |
А.1.3 Комбинированный забор облегченного типа состоит из железобетонных опор и деревянного заполнения.
Железобетонные (в том числе железосеробетонные) опоры изготавливают длиной 4,5; 5,5 и 6,0 м по ГОСТ 25459, в котором установлены параметры железобетонных предварительно напряженных опор, применение которых требуется при устройстве постоянных снегозадерживающих сооружений.
В опорах предусмотрены отверстия для крепления прогонов.
Прогоны и обрешетку комбинированного забора выполняют таких же размеров, как и для деревянных заборов. Конструктивное решение заглубления опор выбирают в зависимости от местных условий с учетом характера залегания и свойств подстилающих грунтов. Деревянные элементы пропитывают антисептиками и покрывают гидрофобными материалами.
Текущее содержание заборов всех типов осуществляют постоянно, а капитальный ремонт деревянных заборов - через пять лет, комбинированных заборов - через шесть лет, при покрытии гидрофобными материалами соответственно - через 10 и 15 лет. Расход материалов на ремонт и содержание постоянных снегозадерживающих заборов приведен в таблице А.3.
Таблица А.3 - Норма расхода материалов на ремонт и содержание заборов (измеритель - 1 км забора)
|
Материал |
Норма расхода на забор высотой 4,2 м | |
|
железобетонный |
деревянный | |
|
Цемент, т |
0,42/0,05 |
- |
|
Арматура, т |
0,06/- |
- |
|
Проволочные гвозди, кг |
- |
56,9/7,9 |
|
Круглый строительный лес, м3 |
- |
37,3/5,3 |
|
Строительный пиломатериал, м3 |
0,3/- |
35,3/3,3 |
|
Каменноугольный лак, кг |
- |
40/8 |
|
Антисептическая паста, кг |
- |
36/10 |
|
Парафиносодержащая краска (при покрытии гидрофобными материалами), кг |
- |
30/10 |
|
Примечание - В числителе - на капитальный ремонт; в знаменателе - на текущее содержание. | ||
А.1.4 При большом объеме приносимого снега, когда возникает необходимость в устройстве двухрядного ограждения, в качестве дополнительного полевого ряда устраивают забор с просветностью обрешетки по всей высоте 75%.
Высота забора в зависимости от объема приносимого снега колеблется от 3 до 5 м.
Заборы с просветностью 75% изготавливают деревянными или комбинированными, при этом обрешетка заборов должна быть выполнена из досок или щитопланки (рисунок А.3).

1 - доска обшивки; 2 - столбы; 3 - прогон; 4 - подкос; 5 - подкладка
Рисунок А.3 - Схема однопанельного снегозадерживающего забора с увеличенной просветностью
А.1.5 Железобетонные заборы сборной конструкции [8] устраивают одно- и двухрядными с горизонтальным расположением железобетонных досок. При двухрядных заборах 1-й ряд (путевой забор) имеет просветность 40%, а 2-й ряд (полевой забор) - 50%.
Снегосборность однорядного железобетонного забора составляет 130 м3/м, а двухрядного - 400 м3/м.
Железобетонный снегозадерживающий забор сборной конструкции состоит из опор и досок (рисунок А.4). Опоры сечением 240 x 180 мм имеют высоту 5800 мм. Расстояние между опорами - 3,0 м. Железобетонные доски сечением 40 x 160 мм имеют длину 3100 мм. Доски укладывают в горизонтальном положении: в путевом заборе - через 280 мм по высоте в количестве 13 шт. на пролет, в полевом заборе - через 320 мм по высоте в количестве 10 шт. на пролет.

1 - железобетонные доски; 2 - железобетонные опоры
Рисунок А.4 - Схемы путевого (а) и полевого (б) железобетонных снегозадерживающих заборов сборной конструкции
А.2 Переносные решетчатые щиты
А.2.1 При небольшой приносимости снега защиту заносимых мест осуществляют переносными решетчатыми щитами с равномерной просветностью по всей высоте (рисунок А.5, а).

Рисунок А.5 - Схемы щитов с равномерной просветленностью по всей высоте (а) и с разреженной нижней частью (б)
А.2.2 С целью увеличения снегосборной способности щитов и ликвидации их перестановок в зимнее время на железных дорогах следует применять щиты с разреженной частью, имеющие увеличенную просветность в нижней части (рисунок А.5, б). Щиты имеют размеры 2 x 2 м. Просветность их нижней половины 65%, верхней - 40%.
А.2.3 Щиты с разреженной нижней частью выставляют на заносимых участках, где объем переносимого снега составляет около 100 м3/м. В этом случае щиты не требуют перестановки в течение зимнего периода.
А.2.4 Щиты изготавливают из щитопланки размерами 200 x 10 x 1,2 см, расход материалов на изготовление 1000 щитов - 35 м3. Потребность в переносимых щитах на 1 км протяжения заносимого места составляет 520 шт.
А.2.5 По окончании зимнего периода щиты убирают. После снятия щиты сортируют на три группы: исправные, требующие ремонта, негодные. Щиты последней группы используют в качестве материала для ремонта щитов.
Сортировку оформляет актом бригадир пути или дорожный мастер. Начальник, заместитель начальника дистанции пути и старший дорожный мастер обязаны выборочно проверять результаты сортировки, не допуская к списанию щиты, подлежащие ремонту. Исправные и отремонтированные щиты, а также требующие ремонта, устанавливают в штабеля по 50 шт. в каждом. Для предохранения сложенных штабелей от пожара вокруг них устраивают незарастающие минерализованные полосы или полосы, обработанные гербицидами, разрешенными к применению. Для этих же целей вокруг сложенных штабелей возможно применять снятие дерна, скашивание травы или устройство пропашных канавок.
Для большей сохранности штабелей щитов их зашивают с боков планками и на каждом штабеле указывают его номер и количество находящихся в нем щитов.
А.2.6 Колья щитов снимают после оттаивания почвенного грунта, сортируют их и годные к употреблению собирают в штабеля по 100 шт. в каждом, а затем устанавливают заостренными концами вверх и увязывают штабель отожженной стальной проволокой. Для предохранения штабеля кольев от пожара предпринимают те же меры, что указаны в разделе 10.
А.3 Снегопередувающие заборы
А.3.1 Снегопередувающими заборами ограждают выемки глубиной не более 2,5 м и нулевые места.
А.3.2 Принцип работы такого забора основан на сжатии снеговетрового потока вблизи заносимого места, увеличении его скорости, что способствует переносу снега через земляное полотно.
А.3.3 Снегопередувающие заборы устраивают по схеме, приведенной на рисунке А.6. Общая высота снегопередувающего забора составляет 5 м, в том числе высота панели - 3 м, высота продуваемого проема - 2 м. Панель устраивают с просветностью 20% и устанавливают под углом 90° к горизонту.

1 - столбы; 2 - прогон; 3 - подкос; 4 - доски обшивки
Рисунок А.6 - Схема снегопередувающего забора
А.3.4 Снегопередувающие заборы изготавливают в двух вариантах: железобетонные опоры и деревянное заполнение, а также полностью из дерева.
Приложение Б
Схемы ограждения железнодорожных переездов, разбивки контрольного снегомерного створа
На рисунках Б.1 и Б.2 приведены схемы ограждения железнодорожных переездов.

1 - ось пути; 2 - отведенная линия щитов; 3 - отведенная дорога; 4 - щитовая линия
Рисунок Б.1 - Схема ограждения железнодорожного переезда с разрывом и отводом щитов в сторону

1 - ось пути; 2 - переезд; 3 - первый ряд щитовой линии; 4 - второй ряд щитовой линии; 5 - отведенная дорога
Рисунок Б.2 - Схема ограждения железнодорожного переезда при двухрядном расположении щитов
На рисунке Б.3 представлена схема разбивки контрольного снегомерного створа.

1 - ось земляного полотна; 2 - линия защиты
Рисунок Б.3 - Схема разбивки контрольного снегомерного створа
Приложение В
Методика испытаний противообвальных улавливающих сооружений
В.1 Натурные испытания
При испытании противообвальных улавливающих сооружений необходимо:
- производить проверку габаритных размеров сооружений на соответствие проектным параметрам;
- определять глубины проникновения камней при ударах в амортизирующую отсыпку;
- определять скорость и траекторию движения камней на конечном участке перед сооружением;
- определять влияние угла падения камней на коэффициент восстановления;
- выявлять влияние недостатков конструкций сооружений и производства работ.
Проведению испытаний сооружений должны предшествовать следующие подготовительные работы:
- разбивка створов по нагорному склону перед сооружением для измерения скоростей и траекторий движения камней;
- съемка характерных профилей склона и поперечников сооружения, подлежащего испытанию;
- обследование сооружения и составления акта о его техническом состоянии на день испытания;
- расчистка пазух сооружений, подлежащих испытанию, до проектных отметок для задержания камней, осыпей и грунта.
Камни сбрасывают с самых верхних точек скальных косогоров по одному вручную. Объем сбрасываемых камней следует принимать в пределах от 0,1 до 0,2 м3 и более.
В.2 При сбрасывании камней фиксируют:
- высоту, дальность и характер движения камней по склону и на участке непосредственно перед сооружением;
- скорости движения камней на участке непосредственно перед сооружением;
- места ударов камней о сооружение;
- высоту набега камней по откосу амортизирующей отсыпки;
- случаи перелета и переката камней через сооружение и случаи выскакивания камней за его пределы с указанием для каждого случая высоты подскока и дальности падения камней;
- глубину проникновения камней в амортизирующую отсыпку;
- число, размеры и форму упавших камней (при определении числа и размеров упавших камней следует учитывать все камни - как сбрасываемые и дошедшие в целостности до сооружения, так и расколовшиеся по пути следования на части объемом 0,02 м3 и более).
В.3 Методика испытаний противокамнепадного барьера
Испытаниям ударным воздействием подвергают противокамнепадные барьеры в виде конструкции из трех модулей (секций), смонтированных на специальном участке в соответствии с требованиями технических условий (ТУ) предприятия-изготовителя. Испытание проводят ударным воздействием в средний модуль секции.
Техническое состояние испытуемого барьера должно соответствовать техническим условиям или техническому заданию (ТЗ) и конструкторской документации предприятия-изготовителя.
Испытания проводят в целях оценки фактических показателей удерживающей способности противокамнепадного барьера и их соответствия требованиям ТУ предприятия-изготовителя. Срок ранее проведенных испытаний от даты представления обоснования эффективности конструкции не должен превышать два года.
Оценка фактических показателей удерживающей способности и безопасности противокамнепадного барьера проводят натурными испытаниями, путем использования навесных систем, имитирующих камнепады, или системы, использующей наезд (ударное воздействие) на барьер автомобилем.
Барьеры, предусматривающие восприятие камнепада с кинетической энергией до 600 кДж, должны быть испытаны, как минимум, двумя наездами легкового автомобиля.
Барьеры, предусматривающие восприятие камнепада с кинетической энергией свыше 600 кДж, должны быть испытаны только с использованием специальных навесных систем, имитирующих камнепады.
Режимы испытаний при использовании наезда (ударное воздействие) на барьер автомобилем должны соответствовать установленным требованиям.
Для оценки удерживающей способности ограждения используют расчет энергии удара (наезда) автомобиля в ограждение, определяемой по формуле
, (В.1)
где E - энергия, кДж;
mα - масса автомобиля, т;
Vα - скорость удара (наезда) автомобиля, км/ч;
α - угол удара (наезда) автомобиля, град.
С противокамнепадным барьером, передаваемым для проведения испытаний, предприятие-изготовитель представляет следующую техническую документацию:
- ТУ или ТЗ;
- компоновочный чертеж на установку барьера с указанием способа крепления стоек и растяжек барьера.
Противокамнепадный барьер устанавливают на площадке, имеющей возможность устройства анкеров для крепления канатных растяжек и стоек барьера в соответствии с ТУ и ТЗ.
Площадка для установки барьеров должна обеспечивать возможность установки на ней трех прямолинейных участков барьера.
Вблизи каждого конца смонтированного противокамнепадного барьера должна быть площадка для установки видеокамеры. Сзади смонтированного ограждения должна быть площадка для установки консольного автолифта, на которой устанавливают видеокамеру, выполняющую съемку процесса соударения автомобиля с барьером сверху. Также допускается осуществление видеосъемки с беспилотного летательного аппарата.
Полоса для разгона автомобилей должна быть прямолинейной и иметь твердое ровное покрытие шириной не менее 3,5 м. Система разгона и наведения автомобиля должна обеспечивать прямолинейное движение автомобиля до его столкновения с ограждением.
Испытание осуществляется путем удара автомобиля, имитирующего камень, в центральную часть средней секции и выше нижнего троса секции. За 10 м до столкновения автомобиль должен двигаться равнозамедленно под действием инерционных сил.
Конструкция барьера, его размеры по высоте над поверхностью грунта, шаг стоек барьера, количество и расположение растяжек и их крепление в грунте должны соответствовать требованиям ТУ и ТЗ.
Испытуемые автомобили должны быть чистыми и иметь все основные агрегаты. Ходовая часть и кузова испытуемых автомобилей должны быть исправны.
На наружной поверхности кузова автомобиля должны быть нанесены номера испытаний. У легкового автомобиля номер наносят на капот, крышку багажника и одну дверь каждого борта; у автобуса - на переднюю и заднюю панели, боковые панели кузова и на крышу; у грузового автомобиля - на крышу кабины и обе двери кабины.
Общая величина и распределение массы автомобиля по осям после загрузки балласта должны быть удостоверены протоколом. Там же должна быть указана высота центра масс.
Испытания проводят с соблюдением требуемых мер безопасности.
Перед испытанием проводят фотографирование противокамнепадного барьера и автомобиля.
Испытуемый автомобиль устанавливают на разгонной полосе.
Проводят проверки надежности сцепных устройств автомобиля с автомобилем-тягачом.
Осуществляется разгон автомобиля тягачом до заданной скорости столкновения. Расцеп автомобиля от тягача осуществляется не менее чем за 8 м от дорожного ограждения. Столкновение автомобиля с барьером регистрируют с помощью видеосъемки.
После столкновения проводят фотографирование барьера и испытуемого автомобиля. Проводят линейные измерения деформаций сетки, стоек, растяжек и анкеров.
Скорость автомобиля перед столкновением следует измерять на расстоянии не более 5 м от момента столкновения. Погрешность измерения скорости не должна превышать 1,5%.
Измерение фактической величины угла наезда проводят по результатам обработки видеоматериалов.
Регистрация параметров перегрузок, действующих на автомобиль в процессе взаимодействия его с ограждением, осуществляется датчиками ускорений, устанавливаемыми в зоне расположения центра масс автомобиля. Погрешность измерений перегрузок не должна превышать 3%.
Определение фактических величин скорости и угла выбега автомобиля осуществляется при обработке результатов видеосъемки, выполненной сверху и навстречу движению автомобиля. Определение величины деформации барьера и скорости движения автомобиля в процессе его взаимодействия с барьером осуществляется путем обработки видеоматериалов и измерений деформации барьера после столкновения.
Усилие, возникающее в канатных растяжках, в нижнем и верхнем продольных тросах барьера в зоне анкерных якорей, измеряют динамометром и датчиками силы тензометрического типа.
Параметры, регистрируемые при испытаниях, фиксируют в рабочем журнале испытаний.
По результатам испытаний составляют протокол, в котором приводят оценку соответствия конструкции противокамнепадного барьера требованиям проектной документации и заявленной улавливающей способности.
В.4 Методика испытаний габионных конструкций
Испытаниям подвергают габионные конструкции, смонтированные на специальном участке в соответствии с требованиями ГОСТ Р 59287.
Приложение Г
Расчет общей и местной устойчивости скальных склонов (откосов)
Г.1 Расчет общей устойчивости
Г.1.1 Расчет устойчивости склонов (откосов) при бытовом (природном), проектном и промежуточных очертаниях следует производить по первому предельному состоянию - несущей способности (по условиям предельного равновесия).
Для определения устойчивости скальных откосов и склонов использован метод предельного равновесия. Расчет устойчивости заключается в оценке дефицита устойчивости S (разности между сдвигающими и удерживающими силами) как для всего откоса или склона запроектированной (имеющейся) конфигурации в целом, так и для отдельных его блоков или отсеков и соответствует условию:
, (Г.1)
где nс - коэффициент сочетания нагрузок;
T - расчетное значение обобщенной активной сдвигающей силы, определенное с учетом коэффициента перегрузки, кН/м;
m - коэффициент условий работы;
Kн - коэффициент надежности, учитывающий степень ответственности сооружения, его капитальность и значимость последствий при нарушении устойчивости;
R - расчетное значение обобщенной силы предельного сопротивления сдвигу, определенное с учетом коэффициента безопасности по грунтам, кН/м.
Г.1.2 Значение коэффициента перегрузки принимают для грунтов в природном залегании 1,1.
Г.1.3 Значения коэффициента безопасности по грунтам устанавливают согласно статистической обработке результатов определения физических и механических характеристик грунтов при их испытаниях по ГОСТ 20522.
Г.1.4 Коэффициент надежности Kн принимают равным для сооружений:
1-го класса - 1,25;
2-го класса - 1,20;
3-го класса - 1,15;
4-го класса - 1,10.
Г.1.5 Коэффициент условий работы т при расчетах естественных и искусственных откосов и склонов принимают равным 1.
Г.1.6 Коэффициент nс учитывает вероятность неблагоприятного сочетания временных нагрузок или воздействий и должен вводиться при наличии двух или более временных воздействий. Поскольку при расчетах устойчивости скальных откосов, как правило, все действующие нагрузки (собственный вес, фильтрационное давление, нагрузки от внешних сил) являются постоянно действующими, а временная нагрузка только одна - сейсмическое воздействие, то коэффициент сочетания нагрузок в этом случае принимают равным 1.
Г.1.7 С учетом Г.1.5 и Г.1.6 условие устойчивости (Г.1) записывается в виде
. (Г.2)
При S> 0 откос или склон рассматриваемого очертания является неустойчивым. В этом случае необходимо или перепроектировать его или предусмотреть укрепление, т.е. приложить дополнительное удерживающее усилие величиной S.
Г.1.8 При сопоставлении различных решений за критерий оценки устойчивости может быть принят коэффициент устойчивости, определяемый при условии S <0.
. (Г.3)
Г.1.9 Расчет общей устойчивости скальных откосов и склонов необходимо начинать с установления положения поверхности обрушения (скольжения).
Г.1.10 Под благоприятным залеганием поверхностей ослабления понимается их расположение:
- наклонное в сторону массива (запрокинутое);
- наклонное в сторону откоса под углом, меньшим угла внутреннего трения по поверхности ослабления;
- вкрест простирания поверхности откоса, за исключением тех случаев, когда поверхности ослабления пересекают поверхности откосов под углами менее 30° и одновременно имеют угол падения в направлении откоса, превышающий угол внутреннего трения по поверхности ослабления.
Г.1.11 Под неблагоприятным залеганием поверхностей ослабления понимается их расположение, наклонное в сторону откоса под углом, превышающим угол внутреннего трения, а также расположение вкрест простирания с поверхностью откоса, когда поверхность ослабления пересекает поверхность откоса под углом менее 30° и одновременно имеет угол падения в направлении откоса, превышающий угол внутреннего трения по поверхности ослабления.
Г.1.12 При оценке общей устойчивости скальных откосов следует руководствоваться расчетными схемами, приведенными на рисунке Г.1.

1 - контур поверхности обрушения; 2 - трещины, расчленяющие массив возможного обрушения на блоки; 3 - выветрелый слой в схеме Л
Рисунок Г.1 - Расчетные схемы общей устойчивости
Силы T и R вычисляют по формулам:
T = G[sinα - Kccos(α - δ)] + u2cosα + Q, (Г.4)
R = tgφтр{G[cosα - Kcsin(α - δ)] + P - u1 - u2sinα} + CтрL, (Г.5)
где G - вес рассматриваемого массива *, кН/м;
α - угол падения трещины, град;
Kс - коэффициент сейсмичности;
δ - угол наклона сейсмической силы к горизонту (принимается наиболее невыгодным для устойчивости - обычно вектор KсG берется параллельным поверхности смещения), град;
u2 и u1 - силы гидростатического давления, воды соответственно на боковую и низовую грани рассматриваемого массива, кН/м;
Q - сумма проекций на направление смещения приложенных к откосу внешних сил, кН/м;
φтр - угол внутреннего трения по системе трещины;
P - сумма проекций на нормаль к плоскости смещения приложенных к откосу внешних сил, кН/м;
Cтр - сцепление по системе трещины;
L - размер рассматриваемого участка трещин, м.
--------------------------------
* Здесь и далее предполагается, что вес скальных откосов (отсеков) определен с учетом коэффициента перегрузки п.
Устойчивость откосов можно считать обеспеченной, если при всех возможных значениях L, м, условия, определяемые условиями (Г.1) и (Г.2), удовлетворяются.
Для откосов, находящихся под действием только сил собственного веса, требуемую для расчета глубину трещины отрыва hв вычисляют по выражению
. (Г.6)
Ее расстояние от бровки откоса вычисляют по выражению
. (Г.7)
При полученных значениях hв и в максимально допустимая высота откоса составляет
, (Г.8)
где α0 - угол наклона откоса, град;
γ0 - удельный вес скального грунта, кН/м3.
Г.2 Расчет местной устойчивости
Г.2.1 Для расчета местной устойчивости грунты, слагающие откосы и склоны, следует классифицировать по их устойчивости к выветриванию во времени.
Г.2.2 Расчет местной устойчивости для грунтов групп I - III и IV - V следует осуществлять по двум методам, что обусловливается разным характером выветривания грунтов этих групп под воздействием природных факторов.
Грунты групп I - III после вскрытия массива практически не выветриваются или выветриваются до состояния каменисто-щебенисто-дресвяных фракций. Грунты групп IV - V выветриваются до состояния глинисто-пылевато-песчаных фракций характеризуются повышенной интенсивностью выветривания во времени и отличаются значительной мощностью выветрелой зоны, в пределах которой в перспективе их можно считать рыхлыми грунтами. Поэтому на грунты групп IV - V при расчетах устойчивости (как общей, так и местной) распространены те же рекомендации, которые приняты для рыхлых грунтов.
Г.2.3 Расчет местной устойчивости для грунтов групп I - III сводится к определению интенсивности поступления продуктов выветривания (объема осыпи) с единицы поверхности откоса и величины отступления бровки откоса во времени.
Г.2.4 Проверка местной устойчивости откосов и склонов в грунтах групп IV - V заключается в определении возможности образования на них поверхностных сплывов выветрелого до состояния мелкозема грунта.
Приложение Д
Определение расчетных скоростей движения обломков скального грунта по горным склонам и откосам
Д.1 Расчетные скорости движения обломков скальных грунтов по горным склонам и откосам следует определять с учетом их конфигурации, в зависимости от которой они подразделены на четыре типа.
Тип I
Склоны и откосы уступчатого профиля с отдельными уступами высотой не более 5 м (рисунок Д.1, а, б) и ломаного профиля с отдельными участками вдоль склона длиной менее 10 м при разнице в углах крутизны не более 5°

Рисунок Д.1 - Схемы поперечного профиля - тип I
Расчетные скорости движения обломков vр определяют как для однообразного склона (откоса) по спрямленному профилю и вычисляют по формуле
νp = ε√Hск, (Д.1)
где ε - коэффициент, определяемый в зависимости от крутизны склона (откоса) (таблица Д.1);
Hск - высота падения обломков скального грунта, м.
Таблица Д.1 - Значения коэффициента ε
|
αск, град |
Коэффициент ε при обеспеченности p, % |
αск, град |
Коэффициент ε при обеспеченности p, % | ||||
|
1 |
5 |
10 |
1 |
5 |
10 | ||
|
30 |
1,11 |
0,89 |
0,80 |
61 |
3,19 |
2,82 |
2,57 |
|
31 |
1,33 |
1,11 |
0,97 |
62 |
3,23 |
2,84 |
2,62 |
|
32 |
1,51 |
1,33 |
1,15 |
63 |
3,25 |
2,86 |
2,64 |
|
33 |
1,68 |
1,46 |
1,28 |
64 |
3,28 |
2,88 |
2,66 |
|
34 |
1,77 |
1,59 |
1,42 |
65 |
3,30 |
2,90 |
2,68 |
|
35 |
1,86 |
1,68 |
1,51 |
66 |
3,32 |
2,92 |
2,70 |
|
36 |
1,99 |
1,77 |
1,59 |
67 |
3,35 |
2,97 |
2,73 |
|
37 |
2,08 |
1,86 |
1,66 |
68 |
3,37 |
3,00 |
2,75 |
|
38 |
2,14 |
1,90 |
1,73 |
69 |
3,41 |
3,01 |
2,79 |
|
39 |
2,21 |
1,92 |
1,77 |
70 |
3,43 |
3,04 |
2,82 |
|
40 |
2,30 |
2,04 |
1,83 |
71 |
3,45 |
3,00 |
2,84 |
|
41 |
2,35 |
2,09 |
1,90 |
72 |
3,50 |
3,10 |
2,88 |
|
42 |
2,43 |
2,13 |
1,95 |
73 |
3,54 |
3,14 |
2,92 |
|
43 |
2,48 |
2,17 |
1,99 |
74 |
3,58 |
3,19 |
2,97 |
|
44 |
2,55 |
2,21 |
2,04 |
75 |
3,62 |
3,20 |
3,01 |
|
45 |
2,58 |
2,26 |
2,08 |
76 |
3,67 |
3,23 |
3,03 |
|
46 |
2,63 |
2,30 |
2,13 |
77 |
3,69 |
3,28 |
3,10 |
|
47 |
2,7 |
2,35 |
2,15 |
78 |
3,72 |
3,32 |
3,12 |
|
48 |
2,75 |
2,39 |
2,17 |
79 |
3,76 |
3,37 |
3,14 |
|
49 |
2,79 |
2,43 |
2,21 |
80 |
3,81 |
3,41 |
3,23 |
|
50 |
2,83 |
2,48 |
2,26 |
81 |
3,85 |
3,46 |
3,28 |
|
51 |
2,88 |
2,52 |
2,28 |
82 |
3,90 |
3,50 |
3,37 |
|
52 |
2,92 |
2,57 |
2,30 |
83 |
3,94 |
3,58 |
3,41 |
|
53 |
2,96 |
2,59 |
2,35 |
84 |
4,00 |
3,63 |
3,50 |
|
54 |
3,00 |
2,62 |
2,39 |
85 |
4,06 |
3,76 |
3,59 |
|
55 |
3,03 |
2,66 |
2,42 |
86 |
4,13 |
3,80 |
3,68 |
|
56 |
3,06 |
2,68 |
2,44 |
87 |
4,20 |
3,94 |
3,81 |
|
57 |
3,10 |
2,70 |
2,46 |
88 |
4,17 |
4,07 |
3,94 |
|
58 |
3,12 |
2,74 |
2,48 |
89 |
4,34 |
4,20 |
4,12 |
|
59 |
3,14 |
2,77 |
2,52 |
90 |
4,43 |
4,43 |
4,32 |
|
60 |
3,17 |
2,79 |
2,57 | ||||
Значение 2g(1 - Kiскctgαiск) = εi2 при углах откоса или склона αiск = 30 - 90° определяют по таблице Д.1.
Тип II
Склоны и откосы ломаного профиля с отдельными участками крутизной от 30 до 60° при длине участков более 10 м и при разнице в углах крутизны смежных участков более 5° (рисунок Д.2)

Рисунок Д.2 - Схема поперечного профиля - тип II
Расчетные скорости вычисляют по формуле
. (Д.2)
Тип III
Ломаные откосы и склоны с отдельными пологими участками при углах крутизны αск <30° и крутыми участками с углами крутизны αск <60° при длине участков более 10 м и при разнице в углах крутизны смежных участков более 5° (рисунок Д.3)

Рисунок Д.3 - Схема поперечного профиля - тип III
Расчетные скорости следует определять по отдельным участкам с учетом замедления движения на пологих элементах откоса или склона (менее 30°). В конце каждого участка, кроме самого верхнего, скорость вычисляют по формуле
, (Д.3)
где ν0(1) = νx(i-1)cos(αi-1ск - αiск) в случае, когда αi-1ск > αiск; v0(1) = vK(i-1), если αi-1ск <αiск;
vK(i-1) - скорость в конце пологого участка откоса или склона, м/с.
При αiск <30° коэффициенты Kiск вычисляют по формуле αi-1ск > αiск
Kiск = 0,0048αск + 0,416. (Д.4)
В подошве верхнего крутого участка откоса или склона скорость вычисляют по формуле (Д.1).
Тип IV
Ломаные склоны с очень крутыми участками при αiск > 60° с высотой более 10 м (рисунок Д.4)

Рисунок Д.4 - Схема поперечного профиля - тип IV
Расчетную скорость в месте расположения защитного сооружения vз вычисляют по формуле
, (Д.5)
где vt(0) - тангенциальная составляющая скорости отражения в точке Б, м/с.
νt(0) = (1 - λ)νpcos(αiск - αiск), (Д.6)
где vр - скорость падения обломка в точке 5, вычисляемая по формуле (Д.1);
λ - коэффициент мгновенного трения, принимаемый по таблице Д.2 в зависимости от характера поверхностного покрова и рода поверхностного слоя грунта на участке непосредственно у подошвы крутого склона;
αiск - угол откоса по спрямленному профилю, град.
Таблица Д.2 - Значения коэффициента мгновенного трения λ
|
Поверхностный покров |
ρ |
λ |
|
Скальные обнажения |
0,7 |
0,1 |
|
Плотный крупнообломочный делювий |
0,5 |
0,3 |
|
Одернованная гладкая поверхность |
0,3 |
0,1 |
|
Рыхлый делювий, застрявшие обломки скального грунта, осыпь |
0,3 |
0,4 |
|
При неглубоком залегании коренных грунтов у поверхности откоса или склона (0,5 м) |
0,5 |
0,3 |
При наличии на склоне растительного покрова в виде густого мелкого кустарника или леса значения расчетных скоростей следует уменьшить на 20% - 40% в зависимости от плотности растительного покрова. Для склонов со скальными обнажениями расчетные скорости следует увеличивать на 10% - 20%.
Д.2 Расчет траектории падения камня по методике квадратного уравнения
При расчете геометрические параметры откоса задаются в соответствии с реальным профилем откоса и характеризуются координатами точек перелома и углами наклона элементов профиля.
Необходимо учитывать также возможность падения обломков с вершин выступающих скальных массивов, расположенных вдоль лога (см. пример на рисунке Д.5).

Рисунок Д.5 - Возможное расположение источников камнепада
Начальное положение камня - X0, м, Y0, м (которое совпадает с вершиной откоса). Камень падает с начальной скоростью Vx0, м/с, Vy0, м/с, и массой m, кг. Угловая скорость - ω0, рад/с. Предполагают, что камень имеет форму шара с удельным весом γ, кг/м3. Для дальнейших вычислений определяют радиус и момент инерции по массе:
- радиус инерции камня, м:
. (Д.7)
Момент инерции камня, кг·м2:
. (Д.8)
Вычисления заключаются в последовательном выполнении шагов 1 и 2.
Шаг 1
Определяют начальное положение камня X0, м, Y0, м (которое совпадает с вершиной откоса). Камень имеет начальную скорость Vx0, м/с, Vy0, м/с. Назначают необходимые параметры и в результате вычисляют время, через которое произойдет пересечение траектории со вторым участком откоса:
, (Д.9)
где q - тангенс угла наклона участка склона, рад.
, (Д.10)
a - квадратный член уравнения.
b = VY0 - qVx0, (Д.11)
b - линейный член квадратного уравнения.
c = Y0 - Y1 + q(X1 - X0), (Д.12)
c - постоянный член квадратного уравнения.
, (Д.13)
t - параметр (корень) квадратного уравнения, с.
t ≤ 0 не подходит. Пересечение точки и скорости находят, подставив эти значения t в формулы:
X1 = Vx0t + X0, (Д.14)
где X1 - горизонтальная координата первой точки линейного участка, м;
, (Д.15)
где Y1 - вертикальная координата первой точки линейного участка, м;
VXB = VX0, (Д.16)
где VXB - горизонтальная составляющая скорости камня перед ударом;
VYB = VY0 + gt, (Д.17)
где VYB - вертикальная составляющая камня перед ударом, м/с;
g - ускорение свободного падения, м/с2;
t - период времени, с.
Скорости переводят в нормальные и тангенциальные составляющие для участка откоса, используя формулы:
θ = arctg(q) = 0°, (Д.18)
где q - угол наклона элемента профиля откоса к горизонту, град;
VNB = VYBcosθ – VXBsinθ; (Д.19)
где VNB - нормальная составляющая скорости камня перед ударом, м/с;
VTB = VYBsinθ – VXBcosθ; (Д.20)
где VTB - тангенциальная составляющая скорости камня перед ударом, м/с.
Вычисляют функцию трения F1 и функцию масштаба F2 (в формулах используют эмпирические постоянные CF1 = 6,096 м/с и CF2 = 76,2 м/с):
(Д.21)
(Д.22)
Вычисляют скорости отражения, м/с, используя коэффициент восстановления:
VNA = RN - VNB, (Д.23)
где VNA - нормальная составляющая скорости падения камня после удара, м/с;
RN - коэффициент нормального восстановления
, (Д.24)
где VTA - тангенциальная составляющая скорости камня после удара, м/с;
RT - коэффициент тангенциального восстановления.
. (Д.25)
После удара скорости, м/с, преобразуют обратно в горизонтальные и вертикальные компоненты согласно формулам:
VXA = VNAsinθ – VTAcosθ, (Д.26)
VYA = VTAsinθ - VNAcosθ, (Д.27)
где VXA и VYA - горизонтальная и вертикальная компоненты скорости камня соответственно после удара.
Скорость падения камня после столкновения, м/с, определяют по формуле
. (Д.28)
Если полученная скорость VCHECK, м/с, больше минимального значения Vmin = 1,0 м/с, процесс начинают снова с поиском следующей точки пересечения. Если скорость меньше, чем Vmin, делают вывод, что камень больше не отскакивает, и далее его движение рассчитывают алгоритмом скольжения.
Шаг 2
Конечные значения шага 1 используют в качестве начальных условий для шага 2. А именно:
(Д.29)
Вычисления выполняют по тому же алгоритму до тех пор, пока не будут получены параметры траектории движения камня до столкновения с барьером, перелета через барьер или если камень не остановится, не долетев до барьера.
Приложение Е
Классификационные показатели оползней
Е.1 Проектирование предупреждающих сооружений от оползней определяется в зависимости от следующих классификационных показателей:
- масштаб явлений;
- скорость движения и активность перемещения;
- мощность оползневого процесса;
- наличие крутизны склона;
- место образования.
Е.1.1 При выборе конструкций защиты необходимо руководствоваться:
Е.1.1.1 размером площади оползней, га:
- 400 и более,
- 200 - 400,
- 100 - 200,
- 50 - 100,
- 5 - 50,
- не более 5;
Е.1.1.2 Значениями скорости движения оползней, которые приведены в таблице Е.1.
Таблица Е.1 - Характеристика оползней по скорости движения
|
Скорость движения |
Оценка движения |
|
3 м/с |
Исключительно быстрое |
|
0,3 м/мин |
Очень быстрое |
|
1,5 м/сутки |
Быстрое |
|
1,5 м/месяц |
Умеренное |
|
1,5 м/год |
Очень медленное |
|
0,06 м/год |
Исключительно медленное |
Е.1.1.3 Значениями мощности процесса оползней, тыс. м3:
- не более 10,
- от 11 до 100,
- от 101 до 1000,
- свыше 1000 тыс. м3;
Е.1.1.4 в зависимости от крутизны склона оползня от 5°, 7° до 19°.
По месту образования оползней в соответствии с классификацией, приведенной в таблице Е.2.
Таблица Е.2 - Общая классификация оползней по типу, строению, причинам и характеру (форме) смещения
|
Тип оползня |
Геологическое строение склона |
Гидрология склона |
Причина оползневых смещений |
Характер смещения |
Форма поверхности |
|
1 |
2 |
3 |
4 |
5 |
6 |
|
I - оползень выдавливания |
Горизонтально залегающие пласты прочных и жестких пород, подстилаемых в основании глинами |
Подземные воды в массиве пород могут как присутствовать, так и отсутствовать |
Изменения напряженного состояния массива вследствие увеличения высоты и крутизны склона при подрезании его основания рекой, морем, озером, водохранилищем, подсечки выемкой и нагружения при возведении на склоне зданий и сооружений |
Вязкопластическое течение и выдавливание ползучей глинистой породы в подошве склона со сколом и разрывами на блоки пластов, лежащих выше жестких пород |
Четкой поверхности смещения нет. Образуется зона перемятого грунта на неровной прогнувшейся кровле глинистого пласта |
|
II - оползень срезания |
Одна глинистая порода или горизонтально и слабо наклонно залегающие слои различных прочных пород |
Ползучесть глин (крип) |
Смещение откалывающихся от массива блоков пород по ослабленной (часто увлажненной) поверхности |
Криволинейная, круглоцилиндрическая | |
|
III - оползень соскальзывания |
Пласты породы наклонены вниз по склону. На контактах пластов могут присутствовать глинистые прослои и примазки |
Подземных вод нет или они поступают в массив периодически, нерегулярно |
Снижение прочности пород, главным образом глинистых, на контактах пластов и по трещинам при увлажнении подземными и подтопляющими водами |
Смещение откалывающихся от массива блоков пород по ослабленной (часто увлажненной) поверхности |
Плоская наклонная, по трещинам разрыва сплошности массива иногда вертикальная |
|
IV - оползень суффозионного всплывания |
На склон выходит слой водоносного песка среди пластов других пород, в том числе водоупорных |
Подземные воды содержатся в песчаных слоях и вытекают на склон |
Разрыв сплошности массива при вымывании частиц песка на склон подземными водами под действием гидродинамического давления |
Всплывание песка на склон или в его подошве, сопровождающееся сколом, оседанием и смещением залегающих выше толщ пород |
Совпадает с кровлей водоупорного пласта, подстилающего водоносный песок, нередко фиксируется зона смещения в песчаных отложениях |
|
V - оползень течения |
Глинистые, иногда с примесью грубообломочного материала, и реже другие породы |
На контакте покровных и подстилающих пород присутствуют грунтовые воды типа верховодки |
Снижение прочности пород при увлажнении и выветривании (усадка и набухание, промерзание и оттаивание глинистых пород) |
Пластическое течение толщи покровных пород со сколом корки залегающего выше подсушенного более жесткого грунта |
Определяется рельефом кровли пород, подстилающих покровные грунты. Эта поверхность часто неровная |
|
VI - оползень разжижения |
Глинистые, ранее засоленные, а затем выщелоченные тиксотропные грунты малой прочности |
Грунты насыщены водой, но находятся в состоянии геля |
Снижение прочности пород при выщелачивании солей водой. Быстрый переход грунта из состояния геля в состояние золя (жидкости) при вибрации и ударах (проход поездов, ураган, землетрясение и др.) |
Быстрое вязкое течение по склону, откосу разжиженных грунтов покровных слоев. Сплывы и оплывины |
Поверхность смещения нечеткая, чаще совпадает с подошвой слоя выветривания и выщелачивания пород |
|
VII - просадочный оползень-поток |
Лессовые просадочные покровные грунты, перекрывающие глинистые породы или плотную скалу |
Замачивание с образованием верховодки в лессовом грунте и по кровле подстилающих пород |
Разрушение структурных связей застойными водами и резкое падение прочности лессового грунта |
Пластическое течение толщи лессовых покровных грунтов со сколом корки залегающего выше подсушенного грунта |
Определяется рельефом кровли пород, подстилающих покровные лессовые грунты. Чаще слабо наклонная поверхность |
Приложение Ж
Классификационные показатели селей
Ж.1 В проектах по устройству защиты от селей должны быть предусмотрены следующие основные требования в соответствии с классификацией на основе причины возникновения (таблица Ж.1).
Таблица Ж.1 - Классификация селей на основе причины возникновения
|
Тип |
Причина |
Распространение и зарождение |
|
1 Дождевой |
Ливни, затяжные дожди |
Самый массовый тип селей, который образуется в результате размыва склонов и появления оползней |
|
2 Снеговой |
Интенсивное снеготаяние |
Связан со срывом и переувлажнением снежных масс |
|
3 Ледниковый |
Интенсивное таяние снега и льда |
В высокогорных районах. Зарождение связано с прорывом талых ледниковых вод |
|
5 Сейсмогенный |
Сильные землетрясения |
В районах высокой сейсмичности. Срыв грунтовых масс со склонов |
|
6 Лимногенный |
Образование озерных плотин |
При разрушении плотин |
|
7 Антропогенный прямого воздействия |
Скопление техногенных пород. Некачественные земляные плотины |
На участках складирования отвалов. Размыв и сползание техногенных пород. Разрушение плотин |
|
8 Антропогенный косвенного воздействия |
Нарушение почвенно-растительного покрова |
На участках сведения лесов, лугов. Размыв склонов и русел |
|
Примечание - Классификация селей учитывает повторяемость активности развития или его селеактивность по их воздействию на сооружения. | ||
Ж.2 С учетом трех групп селевых бассейнов:
- высокой селевой активности (с повторяемостью один раз в 3 - 5 лет и чаще);
- средней селевой активности (с повторяемостью один раз в 6 - 15 лет);
- низкой селевой активности (с повторяемостью один раз в 16 лет и реже).
Ж.3 С учетом классификации размыва:
- маломощный - небольшие размывы, частичная забивка отверстий водопропускных сооружений;
- среднемощный - сильные размывы, полная забивка отверстий, повреждение и снос бесфундаментных строений;
- мощный - большая разрушительная сила, снос мостовых ферм, разрушение опор мостов, каменных строений, дорог;
- катастрофический - полное разрушение строений, участков дорог вместе с полотном и сооружениями, погребение сооружений под наносами.
Ж.4 С учетом классификаций селевых бассейнов по высоте истоков селевых потоков:
- высокогорные. Истоки находятся на высоте более 2500 м, объем выносов с 1 км2 составляет 15 - 25 тыс. м3 за один сель;
- среднегорные. Истоки находятся в пределах 1000 - 2500 м, объем выноса с 1 км2 составляет 5 - 15 тыс. м3 за один сель;
- низкогорные. Истоки находятся на высоте менее 1000 м, объем выносов с 1 км2 составляет менее 5 тыс. м3 за один сель.
Библиография
|
[1] |
Позиция исключена с 29.01.2024. - Изменение N 1 |
|
[2] |
Федеральный закон от 24 апреля 1995 г. N 52-ФЗ "О животном мире" |
|
[3] |
Федеральный закон от 13 июля 2015 г. N 218-ФЗ "О государственной регистрации недвижимости" |
|
[4] |
Федеральный закон от 10 января 2003 г. N 17-ФЗ "О железнодорожном транспорте в Российской Федерации" |
|
[5] |
Постановление Правительства Российской Федерации от 15 июля 2010 г. N 255 "Об утверждении технического регламента о безопасности железнодорожного транспорта" |
|
[6] |
Постановление Правительства Российской Федерации от 16 февраля 2008 г. N 87 "О составе разделов проектной документации и требованиях к их содержанию" |
|
[7] |
ОСН 3.02.01-97 Отраслевые строительные нормы. Нормы и правила проектирования отвода земель для железных дорог |
|
[8] |
СанПиН 2.2.1/2.1.1.1200-03 Санитарно-защитные зоны и санитарная классификация предприятий, сооружений и иных объектов |
|
[9] |
Правила устройства электроустановок (ПУЭ), 7-е изд. |
|
[10] |
Положение о функциональной подсистеме предупреждения и ликвидации чрезвычайных ситуаций на железнодорожном транспорте Единой государственной системы предупреждения и ликвидации чрезвычайных ситуаций. Утверждено приказом Министерства транспорта Российской Федерации от 23 января 2009 г. N 12 (зарегистрирован в Министерстве юстиции Российской Федерации 26 февраля 2009 г., регистрационный N 13440) |
|
[11] |
Позиция исключена с 29.01.2024. - Изменение N 1 |


