СП 291.1325800.2017 (29.07.2024) КОНСТРУКЦИИ ГРУНТОЦЕМЕНТНЫЕ АРМИРОВАННЫЕ. ПРАВИЛА ПРОЕКТИРОВАНИЯ
Утв. Приказом министерства строительства и жилищно-коммунального хозяйства рф от 15 мая 2017 г. N 785/пр
Свод правил СП-291.1325800.2017
"КОНСТРУКЦИИ ГРУНТОЦЕМЕНТНЫЕ АРМИРОВАННЫЕ. ПРАВИЛА ПРОЕКТИРОВАНИЯ"
Armed grouted structures. Rules of architectural design
С изменениями:
(20 декабря 2022 г., 29 июля 2024 г.)
Дата введения - 16 ноября 2017 года
Предисловие
Сведения о своде правил
1 ИСПОЛНИТЕЛИ - Акционерное общество "Научно-исследовательский центр "Строительство" (АО "НИЦ "Строительство"), НИИОСП им. Н.М. Герсеванова и НИИЖБ им. А.А. Гвоздева
2 ВНЕСЕН Техническим комитетом по стандартизации ТК 465 "Строительство"
3 ПОДГОТОВЛЕН к утверждению Департаментом градостроительной деятельности и архитектуры Министерства строительства и жилищно-коммунального хозяйства Российской Федерации (Минстрой России)
4 УТВЕРЖДЕН приказом Министерства строительства и жилищно-коммунального хозяйства Российской Федерации от 15 мая 2017 г. N 785/пр и введен в действие с 16 ноября 2017 г.
5 ЗАРЕГИСТРИРОВАН Федеральным агентством по техническому регулированию и метрологии (Росстандарт)
6 ВВЕДЕН ВПЕРВЫЕ
В случае пересмотра (замены) или отмены настоящего свода правил соответствующее уведомление будет опубликовано в установленном порядке. Соответствующая информация, уведомление и тексты размещаются также в информационной системе общего пользования - на официальном сайте разработчика (Минстрой России) в сети интернет
Введение
Настоящий свод правил разработан с учетом обязательных требований, установленных в Федеральном законе от 27 декабря 2002 г. N 184-ФЗ "О техническом регулировании", Федеральном законе от 29 декабря 2004 г. N 190-ФЗ "Градостроительный кодекс Российской Федерации", Федеральном законе от 30 декабря 2009 г. N 384-ФЗ "Технический регламент о безопасности зданий и сооружений" и содержит основные геотехнические требования к проектированию армированных грунтоцементных конструкций в различных инженерно-геологических условиях и при любых видах строительства.
Разработан НИИОСП им. Н.М. Герсеванова и НИИЖБ им. А.А. Гвоздева институтами АО "НИЦ "Строительство": кандидаты техн. наук И.В. Колыбин, Д.Е. Разводовский - руководители темы; кандидаты техн. наук: Х.А. Джантимиров, Ф.Ф. Зехниев, М.Н. Ибрагимов, А.В. Рытов, А.В. Скориков, В.В. Семкин, А.В. Шапошников, М.Я. Якобсон, инж. Д.А. Внуков, при участии д-ра техн. наук В.А. Ильичева, д-ра техн. наук Н.С. Никифоровой, д-ра геол.-минерал. наук А.Г. Шашкина, канд. техн. наук А.Г. Малинина, канд. техн. наук О.А. Маковецкого, инж. П.А. Малинина.
Изменение N 1 разработано авторским коллективом АО "НИЦ "Строительство" - НИИОСП им. Н.М. Герсеванова (канд. техн. наук И.В. Колыбин, канд. техн. наук Д.Е. Разводовский - руководители темы; канд. техн. наук Х.А. Джантимиров, канд. техн. наук А.В. Скориков, канд. техн. наук В.В. Семкин, канд. техн. наук А.А. Чуркин, канд. техн. наук А.В. Шапошников, А.А. Брыксина) при участии д-ра техн. наук О.А. Маковецкого, канд. техн. наук М.С. Засорина, канд. техн. наук А.Г. Малинина, канд. физ.-мат. наук В.В. Капустина, И.А. Салмина.
Настоящий свод правил устанавливает основные геотехнические требования и распространяется на проектирование армированных грунтоцементных конструкций, выполняемых в грунте по методу струйной цементации и глубинного перемешивания при строительстве и реконструкции зданий и сооружений в талых грунтах.
Настоящий свод правил не распространяется на проектирование конструкций в грунте, изготавливаемых с помощью инъекционных технологий с применением цементов и микроцементов, а также иных вяжущих материалов.
В настоящем своде правил приведены ссылки на следующие нормативные документы:
ГОСТ 5686-2020 Грунты. Методы полевых испытаний сваями
ГОСТ 12071-2014 Грунты. Отбор, упаковка, транспортирование и хранение образцов
ГОСТ 20276.1-2020 Грунты. Метод испытания штампом
ГОСТ 21153.2-84 Породы горные. Методы определения прочности при одноосном сжатии
ГОСТ 21153.8-88 Породы горные. Методы определения предела прочности при объемном сжатии
ГОСТ 27751-2014 Надежность строительных конструкций и оснований. Основные положения
ГОСТ 28570-2019 Бетоны. Методы определения прочности по образцам, отобранным из конструкций
ГОСТ 28985-91 Породы горные. Методы определения деформационных характеристик при одноосном сжатии
ГОСТ Р 59538-2021 Растворы инъекционные для закрепления грунтов на основе цемента. Технические условия
ГОСТ Р 59706-2022 Грунты химически закрепленные. Технические условия
СП 16.13330.2017 "СНиП II-23-81* Стальные конструкции" (с изменениями N 1, N 2, N 3, N 4)
СП 22.13330.2016 "СНиП 2.02.01-83* Основания зданий и сооружений" (с изменениями N 1, N 2, N 3, N 4)
СП 24.13330.2021 "СНиП 2.02.03-85 Свайные фундаменты"
СП 45.13330.2017 "СНиП 3.02.01-87 Земляные сооружения, основания и фундаменты" (с изменениями N 1, N 2, N 3)
СП 47.13330.2016 "СНиП 11-02-96 Инженерные изыскания для строительства. Основные положения" (с изменением N 1)
СП 63.13330.2018 "СНиП 52-01-2003 Бетонные и железобетонные конструкции. Основные положения" (с изменениями N 1, N 2)
СП 103.13330.2012 "СНиП 2.06.14-85 Защита горных выработок от подземных и поверхностных вод"
СП 381.1325800.2018 Сооружения подпорные. Правила проектирования
Примечание - При пользовании настоящим сводом правил целесообразно проверить действие ссылочных документов в информационной системе общего пользования - на официальном сайте федерального органа исполнительной власти в сфере стандартизации в сети Интернет или по ежегодному информационному указателю "Национальные стандарты", который опубликован по состоянию на 1 января текущего года, и по выпускам ежемесячного информационного указателя "Национальные стандарты" за текущий год. Если заменен ссылочный документ, на который дана недатированная ссылка, то рекомендуется использовать действующую версию этого документа с учетом всех внесенных в данную версию изменений. Если заменен ссылочный документ, на который дана датированная ссылка, то рекомендуется использовать версию этого документа с указанным выше годом утверждения (принятия). Если после утверждения настоящего свода правил в ссылочный документ, на который дана датированная ссылка, внесено изменение, затрагивающее положение, на которое дана ссылка, то это положение рекомендуется применять без учета данного изменения. Если ссылочный документ отменен без замены, то положение, в котором дана ссылка на него, рекомендуется применять в части, не затрагивающей эту ссылку. Сведения о действии сводов правил целесообразно проверить в Федеральном информационном фонде технических регламентов и стандартов.
В настоящем стандарте применены следующие термины с соответствующими определениями:
3.1 армированная грунтоцементная конструкция: Конструкция, состоящая из одного или нескольких армированных грунтоцементных элементов.
3.2 армированный массив грунта: Естественный грунтовый массив, усиленный армирующими элементами.
3.3 влажное механическое перемешивание: Процесс, включающий перемешивание грунта специальным буровым инструментом и его перемешивание со строительным раствором, включающим воду, связующие с наполнителями и добавками.
3.3а геомеханические модели с нелинейным критерием прочности на сдвиг: Модели механического поведения изотропных сплошных сред, в которых разрушение при сдвиге и разрушение при растяжении описываются с помощью непрерывной кусочно-линейной функции напряжений.
3.4 глубинное перемешивание: Технология, позволяющая создавать грунтоцементные конструкции путем механического перемешивания грунтов в естественном залегании с твердеющим материалом без специального извлечения грунта на поверхность с помощью специального бурового устройства в процессе его погружения или извлечения с вращением.
3.5 грунтоцемент; ГЦ: Материал, получаемый в результате перемешивания грунта с цементным раствором методами струйной цементации или глубинного перемешивания до достижения механических характеристик, заданных проектом.
3.6 грунтоцементный элемент; ГЦЭ: Объем грунта, закрепленный цементным вяжущим по методу струйной цементации или глубинного перемешивания, с повышением его прочности и понижением водопроницаемости, характеризуемый геометрическими параметрами и физико-механическими свойствами, назначенными при проектировании и подтвержденными опытными работами.
3.7 грунтоцементные элементы с теряемыми буровыми штангами; ТБШ ГЦЭ: Технология устройства грунтоцементных элементов путем прямого бурения на проектную длину с размыванием грунта цементным раствором при использовании в качестве бурового инструмента теряемых стальных трубчатых штанг с накатанной винтовой поверхностью.
3.8 конструкция грунтоцементная: Конструкция, состоящая из грунтоцементных элементов, устроенная в массиве грунта по методу струйной цементации или глубинного перемешивания, выполняющая определенные несущие и (или) ограждающие функции.
3.8а опытные работы: Работы, выполняемые до начала выполнения массового устройства ГЦЭ по специальной программе в целях проверки практической пригодности принятых технических решений.
3.8б опытно-производственные работы: Работы, выполняемые по специальной программе в процессе реализации на площадке строительства проектных решений для уточнения параметров принятых технических характеристик.
3.9 прочность грунтоцемента: Количественный показатель прочности на одноосное сжатие закрепленного грунта, воспринимающего осевую статическую нагрузку до состояния разрушения.
3.10
|
струйная цементация (jet grouting): Закрепление грунта технологиями, позволяющими разрушать грунт струей цементного раствора (jet1), или струей цементного раствора, усиленной воздушным потоком (jet2), или струей воды с последующей подачей цементного раствора (jet3) для смешения его с грунтом и создания элемента из закрепленного грунта, обладающего заданными прочностными свойствами. [СП 22.13330.2016, 3.40] |
3.11 сухое механическое перемешивание: Процесс, включающий перемешивание грунта специальным буровым инструментом с добавлением вяжущего вещества в виде порошка (без добавления воды).
3.12
|
элемент закрепленного грунта: Объем грунта, закрепленного каким-либо технологическим способом, характеризуемый контролируемыми геометрическими параметрами и физико-механическими свойствами, назначенными при проектировании и подтвержденными опытными работами. [СП 22.13330.2016, 3.44] |
4.1.1 Для устройства грунтоцементных конструкций применяют технологии глубинного перемешивания и струйной цементации. Армирование грунтоцементных конструкций осуществляется с целью повышения их прочности и несущей способности, снижения деформаций при усадке грунтоцемента.
4.1.2 Для устройства грунтоцементных конструкций по технологиям струйной цементации и глубинного перемешивания следует применять растворы на основе цемента типа (И) по таблице А.1 ГОСТ Р 59538-2021 (при необходимости с химическими добавками в соответствии с приложением В). При устройстве грунтоцементных конструкций для противофильтрационных завес и геотехнических экранов допускается применять цементно-бентонитовые или цементно-глинистые растворы.
При наличии агрессивных подземных вод следует применять стойкие по отношению к ним цементы.
Примечание - Применение шлако-щелочных вяжущих, эффективных в глинистых грунтах, в настоящем своде правил не рассматривается.
4.1.3 Грунтоцементные конструкции используются в качестве временных и (или) постоянных несущих и (или) ограждающих конструкций.
Армированные грунтоцементные конструкции предназначены для устройства:
- элементов армирования оснований;
- ограждений котлованов и шахтных стволов;
- комбинированных фундаментов;
- фундаментов линейных объектов строительства;
- анкерных креплений ограждений котлованов;
- отсечных геотехнических и волновых экранов;
- составной части комбинированных конструкций;
- массивных конструкций;
- распорных дисков;
- горизонтальных и вертикальных противофильтрационных завес;
- усиления фундаментов зданий и сооружений;
- устройства закрепленных массивов грунта при щитовой проходке подземных выработок;
- противооползневых конструкций на склонах и откосах.
4.1.4 Грунтоцементные конструкции могут быть применены при строительстве зданий и сооружений пониженного и нормального уровней ответственности классов КС-1 и КС-2 с апробацией проектных решений при проведении опытно-производственных работ. Применение армированных грунтоцементных конструкций для сооружений класса КС-3 согласно ГОСТ 27751 допускается на основании результатов опытных работ с уточнением технологических параметров для достижения необходимых геометрических размеров и сплошности ГЦЭ и подтверждения механических характеристик ГЦ в соответствии с разделом 8.
4.1.5 Армирование грунтоцементных конструкций может осуществляться путем установки:
- жестких арматурных элементов из металлопроката (круглых труб или прокатных профилей);
- арматурных каркасов из металлических стержней;
- буровых анкерных штанг с винтовой накатанной поверхностью, оставляемых при устройстве грунтоцементных элементов или анкерных свай;
- предварительно изготовленных железобетонных элементов, например, предварительно изготовленных сборных железобетонных свай.
Грунтоцементные конструкции допускается армировать трубами, прокатными профилями и арматурными каркасами с применением вибропогружателей. Применять армирующие элементы из проката черных металлов для постоянных сооружений без специальных антикоррозионных мероприятий не допускается. Рекомендуется выполнять оцинковку, окраску специальными составами, защитное покрытие эпоксидными смолами и др.
При соответствующем обосновании допускается применять композитные материалы.
Грунтоцементные конструкции армируют путем размещения продольной арматуры соосно с проходкой или под наклоном.
4.1.6 Армированные грунтоцементные конструкции следует проектировать на основании положений ГОСТ Р 59706, ГОСТ Р 59538, СП 22.13330, СП 63.13330 и с учетом:
- результатов инженерных изысканий для строительства;
- результатов работ на опытном или опытно-производственном участке;
- сопоставимого опыта выполнения работ;
- величин нагрузок, передаваемых на основание;
- задания на проектирование, выданного проектной организацией и согласованного застройщиком (техническим заказчиком);
- технических условий, выданных всеми уполномоченными заинтересованными организациями.
Допускается применение неармированных грунтоцементных конструкций, не работающих на изгиб или растяжение.
4.1.7 Проектирование грунтоцементных конструкций должно включать:
- определение проектных требований и выбор технологии устройства;
- разработку программы дополнительных изыскательских работ с комплексом лабораторных и опытных работ по устройству грунтоцементной конструкции;
- выбор конструктивной схемы и назначение требуемых характеристик грунтоцемента;
- назначение предварительных размеров грунтоцементной конструкции;
- выполнение расчетов и корректировку, при необходимости, размеров грунтоцементных конструкций;
- назначение расчетных параметров ГЦ, технологической последовательности работ;
- разработку графической части проекта, определение проектных объемов материалов и стоимости работ;
- проведение опытно-производственных работ, при необходимости, корректировку значений расчетных параметров и назначение рабочих параметров;
- авторское сопровождение работ по устройству грунтоцементных конструкций с участием в контрольных работах (СП 22.13330 и СП 45.13330).
4.2.1 Изыскания для проектирования и устройства грунтоцементных элементов должны выполняться в соответствии с требованиями СП 47.13330 с учетом геотехнической категории объекта строительства. При проведении изысканий должны учитываться конструктивные и технологические особенности закрепления грунтов основания.
4.2.2 Инженерные изыскания для проектирования и устройства грунтоцементных элементов следует проводить на основании программы инженерно-геологических изысканий, разработанной проектной или специализированной организацией и согласованной застройщиком (техническим заказчиком).
4.2.3 В составе работ по инженерно-геологическим изысканиям необходимо предусматривать расширенный комплекс работ по уточнению мощности и состава насыпных грунтов, включая содержание строительного мусора, органических веществ, наличие булыжников или валунов, цементированных слоев или скал, которые могут усложнять выполнение работ или сделать необходимым использование специальных методов или техники. Фиксацию техногенных полостей рекомендуется осуществлять геофизическими методами. В лессовых просадочных грунтах (I типа по просадочности) для сооружений с нормальным уровнем ответственности применение технологии глубинного перемешивания допускается только по результатам дополнительных исследований на опытном участке.
4.2.4 В условиях высокой агрессивности грунтовых вод возможность устройства грунтоцементной конструкции должна быть подтверждена исследованиями в лабораторных и натурных условиях с применением специальных вяжущих, устойчивых к агрессии.
4.2.5 При определении объема изыскательских работ на участке, где выполняются армированные грунтоцементные конструкции, следует принимать во внимание задокументированный опыт выполнения подобных работ, осуществлявшихся при сравнимых условиях вблизи от участка предполагаемого строительства.
4.2.6 Если опытное закрепление грунтов не может быть выполнено, в составе проекта должен быть предусмотрен опытно-производственный участок. Число опытных элементов и порядок проведения опытных работ приведены в 8.1.
По результатам проведения работ по укреплению грунта на опытных участках выполняется корректировка проектной документации на устройство армированных грунтоцементных элементов.
4.2.7 Материалы инженерно-геологических изысканий и лабораторных исследований должны содержать данные о коэффициенте фильтрации грунта, химическом составе водных вытяжек грунтовых вод для обоснования выбора типа и количества вяжущего материала. При этом определяются следующие параметры: содержание сульфатов, хлоридов, карбонатов.
4.2.8 Изыскания должны выполняться в пределах пятна застройки проектируемого объекта. Глубина изыскательских скважин определяется как при изысканиях для свайных фундаментов.
4.3.1 По способу устройства различают грунтоцементные элементы (ГЦЭ) следующих видов, изготавливаемые:
- способом струйной цементации грунтов;
- методом глубинного перемешивания;
- комбинированными способами с совместным применением струйной цементации и глубинного перемешивания.
4.3.2 По функциональному назначению различают следующие виды ГЦЭ:
- отдельные элементы, выполняющие функцию закрепления грунтов для улучшения их физико-механических характеристик;
- элементы в составе армированного основания, выполняемые для обеспечения требуемых прочностных и деформационных характеристик основания в целом;
- элементы временных несущих и вспомогательных ограждающих конструкций котлованов;
- анкерные конструкции, работающие на выдергивающую нагрузку;
- элементы вертикальных и горизонтальных противофильтрационных завес;
- элементы вертикальных и горизонтальных геотехнических экранов;
- элементы временных и постоянных несущих конструкций основания, воспринимающих нагрузку от надфундаментных конструкций, в том числе при усилении исторических фундаментов.
4.3.3 Все виды ГЦЭ как по способу изготовления, так и по своему функциональному назначению, следует подразделять на армированные и неармированные.
4.3.4 Грунтоцементные конструкции устраиваются путем объединения нескольких ГЦЭ. Конструкции могут включать в себя как неармированные, так и армированные элементы. Армирование осуществляется погружением армирующего элемента сразу после устройства ГЦЭ.
Основные виды армирования грунтоцементных конструкций приведены на рисунке 4.1.

а - двутавром; б - трубой; в - теряемыми буровыми штангами с накатанной винтовой поверхностью
Рисунок 4.1 - Способы армирования грунтоцементных элементов
4.3.5 Грунтоцементные конструкции могут выполняться из комбинации ГЦЭ, расположенных: одиночно, в один, два, три ряда, по треугольной или квадратной сетке с заданным шагом, в виде ячеистой структуры, сплошным массивом. Основные виды грунтоцементных конструкций приведены на рисунке 4.2.

а - одиночно; б - в один ряд; в - в два ряда; г - по треугольной сетке; д - по квадратной сетке; е - в виде ячеистой структуры; ж - сплошным массивом
Рисунок 4.2 - Способы устройства грунтоцементных элементов и конструкций
4.3.6 Грунтоцементные элементы, выполняемые по струйной технологии, могут иметь следующие формы сечения:
- круглое, полученное при вращении монитора с одинаковой угловой скоростью и с заданным значением условного диаметра;
- сечение в виде эллипса, полученное при вращении монитора с различной угловой скоростью и с заданными значениями большой и малой полуосей;
- сечение в форме ламели, сформированное при подъеме монитора без вращения с сечением в виде эллипса или прямоугольника с условными границами закрепления.
4.3.7 Грунтоцементные элементы, выполняемые по технологии глубинного перемешивания, имеют форму цилиндра с сечением в виде круга заданного диаметра.
4.4.1 Армированные грунтоцементные элементы, устраиваемые по методу струйной цементации, выполняются с помощью следующих основных операций:
- прямой ход: бурение лидерной скважины на проектную глубину;
- обратный ход: размыв в грунте по мере подъема инструмента (монитора) цилиндрической полости с одновременным перемешиванием грунта с цементным раствором (цементация);
- погружение армирующего элемента.

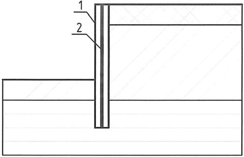
а - бурение лидерной скважины до отметки низа элемента (прямой ход); б - устройство грунтоцементного элемента (обратный ход)
1 - буровая установка; 2 - цементный раствор
Рисунок 4.3 - Технология устройства грунтоцементных элементов
4.4.2 Устройство ГЦЭ методом струйной цементации в зависимости от грунтовых условий, назначения, требуемой прочности и фильтрационных свойств создаваемой грунтоцементной конструкции, может производиться по следующим технологиям:
- однокомпонентная технология - разрушение грунта производится струей цементного (цементно-бентонитового или цементно-глинистого) раствора;
- двухкомпонентная технология - для увеличения объема закрепляемого грунта используется дополнительно энергия сжатого воздуха, создающего искусственный воздушный поток вокруг струи раствора;
- трехкомпонентная технология - разрушение грунта производится водной струей в искусственном воздушном потоке, а цементный раствор подается в виде отдельной струи;
- модернизированные технологии.
4.4.3 Для достижения большего диаметра ГЦЭ допускается выполнять предварительный размыв грунта водой под давлением. Предварительный размыв может выполняться одновременно с бурением или при обратном ходе до цементации грунта.
4.4.4 Выбор технологии струйной цементации зависит от назначения конструкции, требуемой прочности или иных показателей ГЦ, определенных проектом. Для уточнения технологических параметров, диаметра и прочности ГЦ следует назначать опытные или опытно-производственные работы по 4.1.4.
4.4.5 Диаметр ГЦЭ в основном зависит от физико-механических свойств грунтов, технологических параметров (скорости подъема, времени размыва, давления нагнетания раствора, формы и качества сопел, размера и числа форсунок).
Предварительно диаметр ГЦЭ допускается принимать по таблице 4.1.
Таблица 4.1
|
Тип грунта |
ТБШ ГЦЭ, мм |
Диаметр грунтоцементных элементов, мм, для технологии | ||
|
однокомпонентной |
двухкомпонентной |
трехкомпонентной | ||
|
Глинистые грунты |
200 - 300 |
400 - 800 |
600 - 2500 |
600 - 3000 |
|
Песчаные грунты |
300 - 400 |
400 - 1000 |
700 - 2500 |
800 - 3000 |
|
Гравелистые грунты с заполнителем |
350 - 450 |
500 - 1100 |
700 - 2000 |
800 - 2500 |
|
Примечание - При использовании более мощных насосов, буровых колонн и специальных форсунок можно получить грунтоцементные колонны диаметром до 4000 мм. | ||||
4.4.6 Длина ГЦЭ ограничивается мощностью применяемой буровой установки при условии подтверждения возможности выполнения элемента на опытном участке.
Примечание - Допустимо назначение длины ГЦЭ до 100 м.
4.5.1 Сущность укрепления грунтов по методу глубинного перемешивания состоит в измельчении грунта без извлечения его на поверхность в процессе погружения бурового инструмента и смешивании грунта с раствором вяжущего или сухим материалом (цементом, известью), подаваемыми через буровую штангу, соединенную с наконечником специальной конструкции (смесителем). В результате образуется ГЦЭ повышенной прочности, зависящей от содержания цемента и вида грунта.
4.5.2 Глубинное укрепление грунтов цементным раствором или сухим материалом (цементом или известью) допускается применять в любых грунтах (глинистых, песчаных, лессовых, илах), за исключением сапропелей. Возможность применения глубинного метода закрепления цементацией заторфованных грунтов с повышенным (более 10%) содержанием органических примесей устанавливается лабораторными исследованиями коррозионной стойкости ГЦ. Возможность применения метода в условиях высокой агрессивности грунтовых вод должна быть подтверждена исследованиями в лабораторных условиях с применением специальных, устойчивых к агрессии, вяжущих.
4.5.3 Укрепление грунтов методом глубинного перемешивания для сооружений класса КС-3, при работах в илах, лессовых грунтах II типа по просадочности допускается по результатам дополнительных исследований на основании результатов лабораторных и опытных работ.
5.1.1 Расчеты грунтоцементных конструкций следует выполнять с применением расчетных значений характеристик ГЦ. Нагрузки и воздействия, учитываемые при проектировании, должны устанавливаться расчетом исходя из рассмотрения совместной работы сооружения и основания с учетом их возможного изменения на различных стадиях возведения и эксплуатации сооружения.
5.1.2 Необходимые нормируемые показатели качества ГЦ и ГЦЭ следует устанавливать при проектировании конструкций в соответствии с расчетом и методами изготовления и эксплуатации конструкций с учетом воздействий окружающей среды и защитных свойств ГЦ по отношению к принятому виду армирующих элементов для армированных ГЦЭ.
Примечание - Для зданий и сооружений класса КС-1 для расчетов оснований при проектировании в качестве расчетных значений допускается применять прочностные и деформационные характеристики ГЦ по ГОСТ Р 59706 для Гз-СЦ и Гз-ГП без их подтверждения в ходе опытно-производственных работ. Если по результатам опытно-производственных работ фактические характеристики ГЦ меньше значений расчетных характеристик, назначенных при проектировании, проект подлежит корректировке.
5.1.3 Для предварительных расчетов оснований зданий и сооружений повышенного и нормального уровней ответственности (до получения результатов опытных работ), а также временных грунтоцементных конструкций, допускается применять значения прочностных и деформационных характеристик ГЦ, приведенные в таблицах СП 22.13330. Технологические параметры следует уточнять по результатам опытно-производственных работ. При необходимости, следует выполнять корректировку проекта с уточнением фактических параметров закрепленного грунта.
5.1.4 В качестве основных параметров механических свойств ГЦ следует устанавливать нормативные и расчетные значения прочностных, деформационных и других физико-механических характеристик, определяемые на основании результатов инженерных изысканий участка строительства с учетом сопоставимого опыта. При разработке проекта могут назначаться следующие нормативные прочностные и деформационные характеристики ГЦЭ:
- прочность на одноосное сжатие Rstb (нормативное), МПа;
- угол внутреннего трения φstb, град;
- сцепление cstb, кПа;
- модуль деформации Estb, МПа.
5.1.5 Прочность на одноосное сжатие и модуль деформации грунтоцемента должны определяться по ГОСТ 21153.2 и ГОСТ 28985. Другие характеристики определяются как производные значения от прочности по 5.1.10.
Другие характеристики, такие как сцепление и угол внутреннего трения, допускается определять расчетным образом как производные значения от прочности на сжатие и растяжение в соответствии с ГОСТ 21153.8 и приложением И.
5.1.6 Нормативные показатели сопротивления сжатию ГЦ в связи с длительным набором прочности ГЦ в массиве следует принимать в возрасте 56 сут (для песчаных и глинистых грунтов). Для лабораторных испытаний допускаются керны, не разрушенные в процессе отбора, для которых допускаются последующие механическая обработка, разрез и торцевание. При этом переход к прочности в возрасте 56 сут от прочности в промежуточном возрасте Rt допускается выполнять по формуле
Rstb = ktRt; (5.1)
, (5.2)
где t - время с момента устройства ГЦЭ, сут.
5.1.7 Значение модуля деформации ГЦ Estb должно назначаться на основании отбора и испытания керна при проведении опытных работ. До проведения указанных испытаний при проведении численного моделирования при определении значения модуля деформации ГЦ Estb допустимо использовать формулу
Estb = ksRstb. (5.4)
При этом ks принимается равным 70 - 100 для глин и суглинков, 150 - 200 для супесей, 150 - 300 для песков пылеватых и мелких, 200 - 500 для песков средней крупности и крупных, 300 - 800 для песков гравелистых.
Для грунтоцементных элементов, изготовленных методом глубинного перемешивания, допускается использовать значения Rstb, Estb по приложению Е.
5.1.8 Предварительно прочность на сжатие грунтоцементных элементов допускается принимать по таблице 5.1.
Таблица 5.1
|
Тип грунтов |
Прочность на одноосное сжатие Rstb, МПа |
Расход цемента, кг/м3 |
|
Глинистые |
0,5 - 1,0 * |
450 - 750 |
|
Песчаные |
3,0 - 10,0 * |
400 - 600 |
|
Гравелистые |
5 - 20 * |
400 - 600 |
|
Торф и ил |
0,2 - 0,5 * |
500 - 1000 |
|
* Для однокомпонентной технологии. Примечания 1 Прочностные характеристики ГЦ зависят от физико-механических свойств грунта, а также от расхода цемента, определяемого, в том числе, применяемой технологией. 2 Характеристики ГЦ, полученного при использовании двухкомпонентной технологии (jet2), по сравнению с однокомпонентной (jet1) ниже примерно на 25%. 3 Для достижения максимальных значений показателей прочностных деформационных свойств ГЦ необходимо принимать максимальный расход цемента на 1 м3 укрепленного грунта. 4 Для достижения более высоких значений прочности ГЦ на одноосное сжатие допускается увеличивать расход цемента при обязательном проведении опытных работ. | ||
5.1.9 Значение коэффициента Пуассона νstb ГЦ должно приниматься равным 0,25.
5.1.10 Определение прочностных характеристик ГЦ допускается назначать исходя из формул:
cstb,I = Rstb·0,3, (5.5)
cstb,II = Rstb·0,4. (5.6)
Для ГЦЭ, изготовленных методом глубинного перемешивания, допускается использовать значения, приведенные в приложении Е.
Примечание - Предварительное определение прочностных характеристик грунтоцемента допускается назначать на основании данных, полученных на объектах-аналогах.
5.1.11 Расчетные значения сопротивления ГЦ осевому сжатию Rr определяют по формуле
Rr= Rstb/γss. (5.7)
Значение коэффициента надежности ГЦ при сжатии при расчете по первому предельному состоянию γss следует принимать равным 1,3 для ГЦЭ, выполненных по методу механического глубинного перемешивания, и 1,5 - для ГЦЭ, выполненных по методу струйной цементации. При расчете по второму предельному состоянию γss следует принимать равным 1.
5.2.1 Технологические параметры устройства ГЦЭ следует указывать в проектной документации, уточнять по результатам опытно-производственных работ и назначать в виде рабочих параметров для производства работ. При необходимости, следует выполнять корректировку проекта с уточнением фактических параметров закрепленного грунта.
Основные технологические параметры должны обеспечивать заданные в проекте геометрические габариты и прочностные показатели свойств ГЦ.
5.2.2 Для определения технологических параметров производства работ в проекте должны быть указаны следующие данные:
- диаметр ГЦЭ, м;
- суммарный (полный) расход цемента на 1 пог. м закрепляемого грунта, кг/пог. м.
5.2.3 Оптимальный расход цемента зависит от решаемой задачи, типа грунта, необходимой прочности и может составлять для струйной цементации от 400 до 700 кг/м3 укрепленного грунта в песчаных грунтах и от 450 до 1000 кг/м3 - в глинистых грунтах. В насыпных грунтах с крупнообломочными включениями расход цемента допускается увеличивать до 1000 кг/м3.
В слабых органических грунтах (илы, торфы) расход цемента может составлять от 800 до 2000 кг на 1 м3 укрепленного грунта для почти полного замещения грунта цементным раствором. Кроме того, в таких грунтах допускается выполнять предварительный размыв грунта водой с добавлением 1% - 5% технической соды и хлористого кальция.
Для глубинного перемешивания расход цемента допускается назначать по таблицам Е.1 и Е.2 и подтверждать результатами лабораторных и опытных работ.
5.2.4 Давление нагнетания раствора определяет энергию струи и радиус ее действия. Предел достигаемого давления ограничен мощностью используемых насосов и герметичностью линии.
5.2.5 Водоцементное отношение раствора рекомендуется применять в диапазоне от 0,8 до 1,2 для регулирования времени набора прочности и размыва грунта для струйной цементации и 0,5 - 0,7 - для глубинного перемешивания. Допустимо применение химических добавок для регулирования свойств инъекционного раствора.
5.2.6 При наличии фильтрационных течений, которые способны размыть новообразованный ГЦЭ, необходимо применять добавки, ускоряющие схватывание раствора. Рекомендуемый объем добавок-ускорителей уточняется на этапе опытных или опытно-производственных работ.
5.2.7 При определении расхода цемента следует учитывать, что устройство ГЦЭ по методу струйной цементации сопровождается выходом грунтоцементной пульпы на поверхность. Объем пульпы зависит от свойств грунта, расхода цемента и времени размыва грунта и составляет 30% - 70% от объема закачанного раствора для однокомпонентной технологии и 70% - 100% для двухкомпонентной технологии и подтверждается в ходе опытных работ.
В проекте следует указывать требования о необходимости постоянного обеспечения выхода грунтоцементной пульпы на поверхность в ходе производства работ. Следует учитывать, что в случае отсутствия выхода пульпы на поверхности она может заполнить существующие полости в грунте (старые коммуникации или подвалы старых зданий) и привести к вертикальным или горизонтальным гидроразрывам с последующими негативными воздействиями на близкорасположенные подземные конструкции (фундаменты, трубы коллекторов и т.д.).
5.2.8 При применении струйной технологии для устройства ГЦЭ в проекте рекомендуется проанализировать необходимость применения комплексных химических добавок.
Примечания
1 В качестве добавок допускается использование бентонита, силиката натрия (жидкого стекла), хлористого кальция. Объем применяемой добавки определяется в ходе проведения опытно-производственных работ.
2 В отдельных случаях применение добавок позволяет увеличивать эффективный диаметр получаемого ГЦЭ, повышать однородность ГЦ и снижать водоцементное отношение раствора с 1,0 до 0,7 - 0,8 при неизменном применяемом оборудовании и обычных режимах его работы.
6.1.1 Расчет армированных грунтоцементных конструкций должен быть выполнен в соответствии с ГОСТ 27751, СП 24.13330 и СП 22.13330 по предельным состояниям:
первой группы
а) по прочности материала закрепленного массива;
б) по предельному сопротивлению грунта основания закрепленного массива;
в) по потере общей устойчивости усиленных оснований при их расположении на склонах или при устройстве ограждений котлованов.
второй группы
а) по осадкам укрепленных оснований от вертикальных нагрузок;
б) по перемещениям укрепленных оснований от действия горизонтальных нагрузок и моментов.
6.1.2 Расчет армированных грунтоцементных конструкций должен проводиться с использованием апробированного и сертифицированного программного обеспечения на основании математических моделей, описывающих механическое поведение укрепленного массива. Допускается прямое определение усилий в армирующих элементах, если в расчетную область армирующие элементы и грунтоцемент введены раздельно.
6.1.3 При составлении расчетной модели должны учитываться грунтовые условия площадки строительства и ее гидрогеологический режим. Расчетная модель должна учитывать особенности механического поведения укрепленного массива. Допускается описывать механическое поведение ГЦ как линейными, так и нелинейными моделями. Допустимо применение моделей, описывающих механическое поведение ГЦ, в основе которых заложен нелинейный критерий прочности на сдвиг. Рекомендуемые дополнительные требования для испытаний с использованием таких моделей приведены в приложении И.
6.1.4 Расчет армированных грунтоцементных конструкций по несущей способности необходимо выполнять на основные и особые сочетания нагрузок, по деформациям - на основные сочетания.
6.1.5 Расчет неармированных грунтоцементных конструкций по прочности материала выполняется по СП 63.13330 с учетом формулы (5.7) как для неармированных бетонных конструкций. При этом принимается расчетное сопротивление на сжатие, определенное для грунтоцемента. Расчетное сопротивление на растяжение принимается равным нулю.
6.1.6 При расчете армированных грунтоцементных конструкций в качестве геометрических параметров должны использоваться: отметки и уклоны поверхности грунта, уровней подземных вод, слоев грунта, котлованов и выемок в грунте; размеры грунтоцементных конструкций и элементов и их положение. При устройстве постоянных грунтоцементных конструкций следует учитывать, что отклонения геометрических размеров элементов, выполняемых по струйной технологии, фактически могут существенно отличаться от заданных проектом значений.
6.1.7 Армированные грунтоцементные конструкции рассчитывают по прочности на действие изгибающих моментов, продольных сил, поперечных сил, крутящих моментов. Расчеты проводятся на основании требований раздела 6.9 СП 22.13330.2016 и СП 63.13330.
6.1.8 На этапе проектирования в качестве предварительной оценки расхода цемента для достижения проектной прочности ГЦ по методу струйной цементации допускается использовать таблицу 5.1, а буросмесительным способом - определять по диаграммам, приведенным на рисунке 6.1. Для точной оценки прочностных свойств на опытном участке следует выполнять предварительные исследования характеристик укрепленного грунта в зависимости от содержания цемента.

а - глубинное перемешивание; б - глубинное перемешивание для лессовых грунтов
Рисунок 6.1 - Зависимость расхода цемента для обеспечения прочности грунтоцемента различных видов грунтов
Примечания
1 Прочность на сжатие грунтоцемента при расходе цемента более 500 кг/м3 определяется только на основании опытных работ.
2 Прочность грунтоцемента, получаемого по двухкомпонентной технологии, следует принимать на 10% - 15% меньше значений, указанных на графике.
6.1.9 До выполнения опытно-производственных работ значение требуемой прочности на одноосное сжатие ГЦ (Nc) допускается назначать по расчетному расходу цемента на 1 м3 по графикам, приведенным на рисунке 6.1.
Nc = kwNcc, (6.1)
где kw - коэффициент перехода от содержания цемента в грунтоцементе к расходу цемента для получения материала с заданным содержанием цемента (значение прочности по проекту), принимается на этапе проектирования равным 1,1 - 1,33 для струйной цементации грунтов и 1,0 - для глубинного перемешивания;
Ncc - расчетное содержание цемента в ГЦ для получения требуемой прочности, принимаемое на этапе проектирования по графикам на рисунке 6.1 и уточняемое по результатам лабораторных и опытно-производственных работ, кг/м3. При проектировании грунтоцементных элементов в слабых, агрессивных, заторфованных и иных грунтах, а также при необходимости полного замещения грунта проектное содержание цемента Ncc следует задавать по объему замещаемого грунта, а при неполном замещении, но повышенных требованиях по прочности, - по результатам лабораторных работ с корректировкой по результатам опытных работ.
6.2.1 Расчет изгибаемых грунтоцементных конструкций выполняют в соответствии с требованиями СП 16.13330 и СП 63.13330. При этом возможны две схемы учета механической работы ГЦЭ - совместная и несовместная.
6.2.2 Схема учета механической работы ГЦ определяется минимальным значением сопротивления кернов Rstb, отобранных из тела элементов на опытном участке. При минимальном значении нормативных характеристик ГЦ Rstb более 5 МПа, расчет армированных ГЦЭ допустимо проводить по СП 63.13330 (совместная схема), при значениях Rstb менее 5 МПа расчет производится на основании решения задачи взаимодействия армированных элементов и закрепленных массивов (несовместная схема), при которой расчет армированной грунтоцементной конструкции выполняется из учета восприятия всех действующих усилий армирующими элементами.
6.2.3 При расчете по несовместной схеме допустимо принимать, что ГЦ вокруг армирующих элементов работает как защита от коррозии и обеспечивает передачу усилия на окружающий грунт.
6.2.4 При проведении численных расчетов допустимо принимать основные показатели прочностных и деформационных характеристик ГЦЭ на основании СП 22.13330 и раздела 5.
6.3.1 Расчет внецентренно загруженных армированных ГЦЭ производят в случае восприятия элементами значительных вертикальных и горизонтальных нагрузок в основном при усилении существующих фундаментов в соответствии с требованиями подраздела 7.3. Допустимы совместная и несовместные схемы учета работы грунтоцемента в соответствии с 6.2.2.
6.3.2 При расчете отдельных внецентренно сжатых армированных ГЦЭ по совместной схеме следует учитывать случайный эксцентриситет ea, принимая его не менее 1/25 значения диаметра грунтоцементного элемента.
6.3.3 Проверка прочности армирующего элемента при несовместной схеме осуществляется на основании прямых расчетов с определением усилий в армирующем элементе.
6.3.4 Расчет по прочности материала ГЦЭ производится по формуле
Fmg= γmRrAb+ RaAa, (6.2)
где Fmg - несущая способность грунтоцементного элемента по материалу, кН;
γm= 0,9 - коэффициент условия работы грунтоцемента;
Rr - расчетное сопротивление ГЦ осевому сжатию, кПа;
Ab - площадь поперечного сечения ГЦЭ, м2;
Ra - расчетное сопротивление армирующего элемента сжатию, кПа;
Aa - площадь поперечного сечения армирующего элемента, м2.
6.4.1 Сплошные грунтоцементные конструкции и экраны допустимо использовать в качестве вертикальных и горизонтальных противофильтрационных экранов. Толщина противофильтрационного экрана зависит от прочности ГЦ, градиента напора, глубины котлована.
6.4.2 Наличие грунтоцементных конструкций должно учитываться при проведении гидрогеологического прогноза и при расчетах притока грунтовых вод в котлован. Указанные расчеты должны проводиться по результатам предварительной гидрогеологической схематизации и уточняться на основании работ на опытном участке.
6.4.3 Прогноз изменения гидрогеологических условий, вызванного устройством ограждения из ГЦЭ, полностью или частично перекрывающего водоносные горизонты (комплексы), следует выполнять методом математического моделирования фильтрации. Математическое моделирование для решения этой задачи всегда должно осуществляться в полной постановке ("в напорах").
6.4.4 Взаимное влияние проектируемого сооружения и подземных вод отсутствует, если ограждение из ГЦЭ располагается выше уровня подземных вод (УПВ). Практически полное отсутствие взаимовлияния проектируемого сооружения и подземных вод характерно также для незначительного (менее 30%) перекрытия водоносного пласта ограждением котлована из ГЦЭ при расположении подошвы фундамента сооружения выше УПВ.
6.4.5 Размер области влияния строительных мероприятий при рассмотрении задачи строительного водопонижения или защитных постоянных дренажей, в которую включены противофильтрационные экраны из ГЦЭ, рекомендуется определять с применением аналитических зависимостей, приведенных в СП 103.13330. Выбор соответствующей конкретной зависимости для проведения этого расчета определяется особенностями построенной предварительной гидрогеологической схемы, а также плановой конфигурацией водопонизительных и дренажных систем.
6.4.6 Гидрогеологический прогноз, включающий в себя противофильтрационные грунтоцементные конструкции, должен осуществляться на основании геофильтрационной схематизации, в которой осуществлен переход от гидрогеологической схемы к фильтрационной схеме, представляющей все гидрогеологические закономерности в гидродинамической постановке. Фильтрационная схема составляется на основе анализа всего комплекса количественных и качественных гидрогеологических показателей.
Геофильтрационная схематизация должна включать в себя следующие основные разделы:
- обоснование режима потока во времени;
- обоснование пространственной структуры потока;
- обоснование граничных условий потока;
- обоснование распределения внутренних источников и стоков;
- обоснование пространственного распределения фильтрационных параметров.
На этапе геофильтрационной схематизации должны быть обоснованы фильтрационные характеристики ограждения из грунтоцементных свай. Оптимальным является их задание на основе натурных определений проницаемости ограждения на площадке строительства. В случае отсутствия натурных данных допускается задание для ограждения следующих значений параметра перетока (отношение коэффициента фильтрации грунтоцементного материала к толщине ограждения):
- 0,05 сут-1 (для 2-рядного ограждения) и 0,01 сут-1 (для 3-рядного ограждения) - при расчетах строительного водопонижения и постоянных дренажей;
- 1·10-6 сут-1 - при расчетах барражного эффекта.
6.4.7 Толщина противофильтрационного экрана Δb должна определяться из условия обеспечения сплошности экрана при возможном отклонении от вертикали на 1% - 5% при устройстве грунтоцементных элементов, а также при обеспечении фильтрационной прочности материала по формуле
Δb= γnΔH/Jкр, (6.3)
где γn - коэффициент надежности для диафрагм и завес, принимаемый равным 1,5 - для временных конструкций; 2,0 - для постоянных конструкций;
ΔH - перепад уровней воды перед и за противофильтрационной диафрагмой или завесой;
Jкр - критический градиент напора, принимаемый на основании исследований закрепленных грунтов в условиях, отвечающих реальным условиям эксплуатации сооружения; в предварительных расчетах и при отсутствии необходимых исследований значения при расчете общей фильтрационной прочности принимаются в диапазоне 5 - 12, при котором наступает разрушение материала диафрагмы и завесы.
6.4.8 Толщина горизонтального противофильтрационного экрана с учетом пригруза грунта из условия всплытия определяется по формуле
hjet = 1,1gw Hw/gjet, (6.4)
где Hw - гидростатическое давление на подошву горизонтального экрана в естественных условиях;
gw - объемный вес воды, т/м3;
gjet - объемный вес ГЦ, т/м3;
hjet - расчетная мощность горизонтальной завесы и грунтового пригруза, м.
Мощность горизонтальной противофильтрационной завесы из ГЦ должна составлять не менее 1,5 м.
6.4.9 Грунтовый пригруз может отсутствовать для небольших шахт диаметром (или шириной) не более 10 м.
6.4.10 Толщина защитного слоя армирующих элементов временных конструкций не регламентируется. Толщина защитного слоя грунтоцемента в постоянных конструкциях должна составлять не менее 60 мм.
6.4.11 При предварительном проведении опытных работ допускается устройство горизонтальных противофильтрационных завес с использованием технологии струйной цементации грунта в трещиноватых полускальных грунтах. Достаточность работ по устройству противофильтрационной завесы в трещиноватых полускальных грунтах устанавливается путем гидравлического опробования до и после струйной цементации грунта (приложение Ж).
7.1.1 Армирование ГЦЭ осуществляют до начала схватывания ГЦ или опусканием армирующих элементов в пробуренные в нем скважины, заполненные строительным раствором.
7.1.2 В проекте должен быть определен способ монтажа армирующих элементов в проектное положение. Следует определять конструкцию центрирующих приспособлений и необходимость применения вибропогружателя. Следует указывать тип фиксаторов в проектном положении погруженной арматуры, определять время достижения начальной прочности ГЦ, после которого фиксирующие элементы могут демонтироваться.
7.1.3 При проектировании грунтоцементных элементов следует учитывать, что их прочность определяется факторами, которые не могут быть в полном объеме учтены при разработке проекта:
- изменение свойств закрепляемого грунта по глубине;
- неопределенности в условиях перемешивания ГЦ;
- характеристики перемешивающего инструмента и процесса перемешивания;
- тип и количество вяжущего.
Допускается корректировка проектных решений в процессе производства работ в случае невозможности достижения проектных требований к ГЦЭ, а также применение наблюдательного метода при устройстве армированных грунтоцементных конструкций.
7.1.4 Любые ссылки в проекте на сопоставимый опыт допустимы только при наличии документированного материала по результатам испытаний, проведенных на строительной площадке в сходных грунтовых условиях или в непосредственной близости от участка строительства.
7.1.5 При проектировании грунтоцементных конструкций следует учитывать, что погружение их армирующего элемента возможно только соосно грунтоцементному элементу.
7.1.6 Для армирования грунтоцементных конструкций рекомендуется применять жесткую арматуру (металлические трубы, прокатные и сварные профили, жесткие арматурные каркасы, железобетонные конструкции). При использовании сварных арматурных каркасов - они должны быть рассчитаны на усилия, связанные с их погружением в незатвердевший грунтоцементный элемент.
7.2.1 Горизонтальные грунтоцементные диски могут использоваться в следующих целях:
- в качестве временных распорных конструкций, устраиваемых до начала экскавации котлована;
- в качестве горизонтальных экранов - при отсутствии на площадке водоупора, в который может быть заглублена ограждающая конструкция котлована.
7.2.2 Грунтоцементные диски эффективны в качестве временных распорных конструкций в слабых грунтах, для уменьшения осадки окружающей застройки при экскавации глубоких котлованов, для уменьшения длины ограждающей конструкции котлована в условиях отсутствия водоупора для заглубления ограждающей конструкции котлована.
7.2.3 Горизонтальные грунтоцементные диски допускается проектировать неармированными. Допускается применять вертикальное армирование для уменьшения усадки ГЦЭ.
7.2.4 Горизонтальные грунтоцементные диски должны формироваться из ГЦЭ, располагающихся по треугольной сетке.
Шаг элементов для горизонтальной противофильтрационной завесы по треугольной сетке рассчитывается по формуле
, (7.1)
где I - шаг элементов;
D - диаметр ГЦЭ;
δ - возможное отклонение от вертикали (1% - 5%);
H - максимальная глубина бурения.
Отношение шага к диаметру элемента (I/D) рекомендуется принимать равным 0,5 - 0,7.
7.2.5 Расчет горизонтального грунтоцементного диска, используемого в качестве распорной конструкции котлована, ведется как конструкции, работающей на сжатие. При проведении численного моделирования допускается описание его механического поведения путем использования модели упругой среды.
7.2.6 Толщина грунтоцементного диска должна определяться расчетом. Применение конструкции толщиной менее 1,0 м не рекомендуется. При высоких значениях гидростатического давления в основании допускается применение анкеровки противофильтрационной завесы с помощью грунтоцементных анкерных конструкций.
7.2.7 При использовании грунтоцементного диска в качестве противофильтрационного экрана в проекте следует предусматривать дополнительные мероприятия для уменьшения притоков грунтовых вод в разрабатываемый котлован - проведение дополнительной цементации.
7.2.8 Расчет противофильтрационного экрана из ГЦ выполняется в соответствии с 6.4.8.
7.2.9 Проектное значение прочности ГЦ, необходимое для обеспечения устойчивости против размыва и суффозии, должно быть не менее 0,5 МПа.
7.3.1 Усиление фундаментов зданий (в том числе свайных) и их оснований осуществляется преимущественно ГЦЭ, выполненными, как правило, методом струйной цементации по однокомпонентной технологии или устройством ТБШ ГЦЭ, а также их комбинацией. Применение двухкомпонентной технологии допускается только в исключительных случаях при наличии обоснования при обязательном научном сопровождении производства работ со стороны специализированной организации.
7.3.2 Армированные ГЦЭ могут использоваться для усиления фундаментов реконструируемых зданий при их надстройке или углублении подвалов, уменьшения осадок существующих зданий при проведении в непосредственной близости от них нового строительства.
7.3.3 При усилении фундаментов существующих зданий и сооружений бурение может производиться рядом с фундаментами или сквозь них для образования под фундаментами ГЦЭ, с частичной и полной передачей на них нагрузки. Ориентация этих элементов может быть вертикальной или наклонной. Наклон, как правило, не должен превышать 15°.
7.3.4 Расчет армированного ГЦЭ выполняется в соответствии с 6.3.
7.3.5 При разработке проекта следует учитывать возможную усадку ГЦ в процессе бурения и твердения. В проекте следует предусматривать подливку цементного раствора или предусматривать опрессовку головы элемента на участке длиной до 0,5 м ниже подошвы фундамента или ростверка. Опрессовку следует выполнять через перфорированную часть сердечника (или дополнительную инъекционную трубку). Ориентировочный расход цемента на опрессовку одного элемента рекомендуется принимать в зависимости от давления, но не менее 0,1 м3.
7.3.6 При усилении оснований существующих фундаментов с помощью ТБШ ГЦЭ длина их заделки в фундамент должна приниматься по расчету или назначаться конструктивно - не менее 5 диаметров армирующего элемента. При разработке проекта должна быть рассмотрена необходимость дополнительной опрессовки контактной зоны "фундамент - грунт основания".
7.3.7 В проекте по устройству усиления существующих фундаментов с применением армированных грунтоцементных элементов следует учитывать скорость производства работ. Размер участка при устройстве ГЦЭ должен определяться расчетом, исключающим технологические осадки существующих фундаментов из-за подмытого грунтового основания. Для исключения этого в проекте должен быть определен четкий временной порядок ведения работ.
7.3.8 Несущую способность по грунту отдельных несущих ГЦЭ определяют расчетом в соответствии с СП 24.13330 и подтверждают испытаниями натурных элементов по ГОСТ 5686 в количестве, назначаемом проектом.
7.3.9 При усилении колонн зданий следует предусматривать их усиление ТБШ ГЦЭ. При существенном увеличении нагрузок после достижения элементами проектной прочности могут устраиваться ГЦЭ по однокомпонентной технологии.
7.3.10 При усилении фундаментов под несущими стенами зданий допустимо применение только однокомпонентной технологий струйной цементации.
7.3.11 При строительстве в непосредственной близости от существующих зданий исторической застройки подземных сооружений или нового строительства с подземной частью рекомендуется предусматривать комбинации ТБШ ГЦЭ с ГЦЭ по однокомпонентной технологии.
7.3.12 Усиление фундаментов и оснований памятников архитектуры и культуры ГЦЭ должно выполняться с обязательным ведением расширенного геотехнического мониторинга. При этом программа геотехнического мониторинга должна предусматривать постоянный визуальный контроль и инструментальный мониторинг за осадками здания не реже одного раза в три дня в период устройства ГЦЭ.
7.3.13 Для зданий, находящихся в предаварийном и аварийном состояниях, недопустимо выполнять устройство ГЦЭ без предварительного усиления надземных конструкций. При этом шаг одновременно выполняемых грунтоцементных элементов для зданий, ранее относившихся к категориям III и IV, должен составлять не менее пяти диаметров ГЦЭ усиления.
7.3.14 Допустимо применение струйной технологии для усиления основания фундаментов под машины и конструкции с динамическими нагрузками путем устройства закрепленного массива грунта.
7.4.1 Грунтовые анкеры (постоянные и временные) из армированных грунтоцементных элементов допустимо применять для следующих целей:
- удержания подпорных конструкций;
- обеспечения устойчивости откосов, котлованов и выработок в грунте;
- восприятия сил всплытия, действующих на подземные сооружения.
7.4.2 При использовании анкера в качестве постоянной конструкции специальными исследованиями необходимо подтвердить возможность нормальной эксплуатации анкера на весь срок эксплуатации сооружения.
7.4.3 При проектировании грунтоцементных анкеров следует рассматривать следующие предельные состояния и их сочетания:
- разрушение армирующего элемента;
- разрушение узла крепления анкера;
- разрушение по контакту корня грунтоцементного анкера с грунтом;
- нарушение контакта анкера с материалом корня.
7.4.4 Устройство грунтовых анкеров ТБШ или с формированием корня по струйной технологии допускается во всех видах песчаных и глинистых грунтов, применение грунтоцементных анкеров в скальных грунтах - только при условии проведения предварительных опытных работ. Допускается применение грунтоцементных анкеров как с предварительным натяжением, так и ненапрягаемых анкеров и грунтовых нагелей.
Антикоррозионную защиту грунтоцементных анкеров с теряемой буровой штангой следует проектировать с учетом агрессивности подземных вод и грунтов. Для временных анкеров допускается не выполнять антикоррозионную защиту. В случае применения грунтовых анкеров в качестве постоянных конструкций антикоррозионную защиту следует выполнять с помощью специальных покрытий. Антикоррозионная защита штанг и муфт выполняется цинкованием или окрашиванием специальными составами.
В качестве средств антикоррозионной защиты допускается использование армирующих элементов из специальных сталей или увеличение сечения армирующего элемента с учетом развития коррозии в зависимости от срока эксплуатации анкера.
Устройство временных анкеров допускается выполнять с помощью струйной технологии и ТБШ ГЦЭ.
При проектировании напрягаемых анкеров необходимо исключить образование случайных уширений непосредственно между корнем анкера и ограждающей конструкцией котлована.
Несущая способность грунтоцементных анкеров должна определяться на основании проведения их статических испытаний по специально разработанной программе.
7.4.5 Отдельные ГЦЭ, а также грунтоцементные конструкции, выполняющие функции армирующих элементов грунта, должны проектироваться в соответствии с СП 22.13330. Плановое расположение ГЦЭ и их количество должны выбираться таким образом, чтобы обеспечивать минимальный расход материалов для обеспечения проектных требований. Решения должны приниматься на основании численного моделирования, в том числе путем оптимизации проектных решений.
7.4.6 В качестве армирующих элементов для ТБШ ГЦЭ следует использовать толстостенные трубчатые штанги с накатанной винтовой поверхностью, обеспечивающей надежное сцепление с грунтоцементом.
Штанги соединяются между собой муфтами, оснащенными герметизирующими элементами, обеспечивающими подачу цементного раствора под давлением до 30 МПа.
Теряемое буровое долото, выполняющее функцию монитора, должно быть оснащено форсунками.
Примечание - Стандартная длина штанг составляет 3,0 м. В стесненных условиях допускается применение штанг длиной 2,0, 1,5, 1,0 м.
7.4.7 Расчет несущей способности по грунту и по материалу грунтовых ТБШ анкеров следует проводить с учетом требований СП 381.1325800. Проектные параметры следует уточнять по результатам пробных и контрольных испытаний.
7.4.8 Комбинированные сваи, устраиваемые с применением струйной технологии, должны проектироваться на основании требований СП 24.13330.
7.4.9 Армированные высокопрочным сердечником (металлические трубы, армокаркасы, железобетонные сердечники и т.п.) ГЦЭ могут рассматриваться как сваи при обеспечении величины Rr = 5 МПа. При этом несущая способность таких элементов должна быть уточнена на основании испытаний.
7.5.1 При проектировании ограждений котлованов грунтоцементные конструкции могут выполнять как функцию ограждения котлована, так и функцию забирки при устройстве иных несущих элементов.
7.5.2 Усилия в грунтоцементных элементах, выполняющих функции ограждения котлована, должны определяться в соответствии с СП 22.13330 и 6.2. Допускается определять усилия в армирующих элементах путем решения задачи плоской деформации непосредственным введением в расчетную схему элементов, моделирующих грунтоцемент, и армирующих элементов (рисунок 7.1). При этом коэффициент условий работы по контакту грунтоцемента и примыкающего грунта допускается принимать равным 1,0 в связи с неровной поверхностью грунтоцементного элемента. Прочностные показатели ГЦ допускается принимать по разделу 5.

1 - ГЦЭ; 2 - армирующий элемент
Рисунок 7.1 - Расчетная схема для решения задачи определения усилий в армирующих элементах
7.5.3 Для временного и постоянного ограждений котлованов допустимо использовать ограждающие конструкции, устроенные из одного или нескольких рядов вертикальных грунтоцементных элементов.
7.5.4 В случае создания противофильтрационной завесы шаг элементов для ограждения котлована рассчитывается по формуле
I = D - 2δH, (7.2)
где I - шаг элементов;
D - диаметр грунтоцементных элементов;
δ - возможное отклонение от вертикали (1% - 5%);
H - максимальная глубина бурения.
Отношение шага к диаметру элемента (I/D) обычно составляет 0,5 - 0,7.
7.5.5 Конструкции из нескольких рядов ГЦЭ следует рассчитывать численно на основании решения задачи плоской деформации или в трехмерной постановке.
8.1.1 Работы на опытном участке могут выполняться в рамках изысканий или на этапе, предшествующем началу производства работ по устройству ГЦЭ. Цель опытных работ - определение оптимальных параметров технологического процесса для обеспечения гарантированного диаметра элемента, не менее проектного, во всех инженерно-геологических элементах и достижение проектных значений физико-механических характеристик получаемого грунтоцемента. Методы контроля закрепленного основания рекомендуется принимать в соответствии с СП 45.13330 и ГОСТ Р 59706 или в соответствии со специальным заданием, составленным автором проекта.
8.1.2 Опытный участок должен располагаться в границах участка проектируемых ГЦЭ или на расстоянии не более 15 - 20 м от него при условии сохранения геологического строения и залегания отдельных грунтовых элементов.
8.1.3 Работы на опытном участке должны включать в себя:
- изготовление опытных ГЦЭ;
- контроль качества опытных ГЦЭ;
- контроль геометрических размеров ГЦЭ;
- уточнение прочностных и деформационных характеристик ГЦЭ;
- оценка несущей способности ГЦЭ по грунту и материалу.
8.1.4 Число опытных ГЦЭ определяется в зависимости от уровня ответственности проектируемого сооружения и грунтовых условий площадки. Опытные ГЦЭ, выполненные в соответствии с проектом в части их геометрических и физико-механических характеристик, могут быть приняты в качестве рабочих, если удовлетворяют требованиям проекта.
Для сооружений класса КС-3, уникальных сооружений число опытных ГЦЭ должно составлять не менее 9 шт. и не менее трех для сооружений классов КС-1 и КС-2.
8.1.5 Контрольные работы на опытном участке могут включать в себя виды контроля, предусмотренные СП 45.13330 и ГОСТ Р 59706 и (или) иные виды работ. Состав контрольных работ на опытном участке определяется проектом. Дополнительно к требованиям контроля работ на объекте по 8.2 для опытного участка могут быть включены следующие работы:
- контроль формы сечений ГЦЭ в шурфах;
- отбор кернов из ГЦЭ в любых точках поперечного и продольного сечений;
- контроль сплошности грунтоцементного массива методом контрольного бурения;
- гидравлическое опробование сплошных грунтоцементных противофильтрационных завес (при наличии специального задания);
- испытания отдельных ГЦЭ или массива из нескольких ГЦЭ статическими нагрузками.
Примечание - При длине ГЦЭ более 8 м допускается выполнять контрольное бурение по центру элемента.
8.1.6 Опытные работы на опытно-производственном участке должны выполняться в следующей последовательности:
- определение расчетных технологических параметров устройства опытных ГЦЭ;
- изготовление опытных ГЦЭ;
- контроль качества опытных ГЦЭ;
- оценка несущей способности ГЦЭ по грунту и материалу (по требованию проекта);
- корректировка значений технологических параметров изготовления ГЦЭ при несоответствии проектных значений характеристик ГЦЭ (при необходимости), назначение новых расчетных параметров изготовления ГЦЭ;
- изготовление опытных ГЦЭ по новым расчетным параметрам;
- контроль качества опытных ГЦЭ, выполненных по новым расчетным параметрам;
- назначение рабочих технологических параметров изготовления рабочих ГЦЭ.
8.1.7 Работы на опытном или опытно-производственном участке должны выполняться по заданию, разработанному проектной организацией и согласованному застройщиком (техническим заказчиком), а также по программе опытных работ, разработанной производителем работ и согласованной с проектной организацией. При этом рекомендуется вести журнал производства работ по форме приложения К.
8.1.8, 8.1.9 Исключены с 21.01.2023. - Изменение N 1
8.2.1 Контрольное бурение опытных и рабочих ГЦЭ выполняется с отбором кернов для последующих лабораторных испытаний. Предел прочности на сжатие Rstb и модуль деформации Estb определяются по ГОСТ 21153.2 и ГОСТ 28985. Для определения значения нормативного сопротивления сжатию Rstb из элементов закрепленного грунта следует отбирать образцы из расчета по три образца с каждого представительного инженерно-геологического элемента. Расположение точки и глубины отбора керна определяются проектом.
Примечания
1 При отборе кернов с глубины более 5 м возможен выход бурового инструмента из тела ГЦЭ в связи со статистическим отклонением скважин от вертикали на 1% - 5%.
2 Применение геофизических методов, как правило, дает достоверные результаты при прочности ГЦЭ более 5 МПа.
8.2.2 Отбор кернов выполняется из грунтоцементных элементов, в точках, назначаемых проектом по сечению элемента.
8.2.3 Для ГЦЭ, устраиваемых в слабых грунтах или выполняющих функцию противофильтрационной завесы, контроль качества рекомендуется выполнять с помощью комплекса контрольных мероприятий, состоящих из контрольного бурения, зондирования и применения геофизических методов согласно приложению Д.
8.2.4 Отбор образцов, транспортирование и хранение выполняются в соответствии с ГОСТ 12071.
Для получения качественного неразрушенного керна его отбор рекомендуется выполнять колонковым способом.
При проведении работ на опытном участке для определения значения нормативного сопротивления сжатию Rstb из элементов закрепленного грунта следует отбирать по три образца с каждого метра на глубину не менее 5 м, далее после 5 м по одному образцу с каждого метра. Если не существует специальных требований проекта, то прочность конструкции при сплошном закреплении грунта следует оценивать путем испытания не менее шести образцов, взятых из конструкции, на каждые 1000 м3 ее объема.
8.2.5 Извлекаемые при бурении керны описывают, одновременно визуально оценивают качество закрепления (сплошность и однородность закрепления). Диаметр образцов кернов определяют исходя из расчета, что размер непромешанных включений или размер отдельных зерен не превышает 1/6 диаметра образца. Высота керна должна составлять 0,8 - 2,0 диаметра керна. По согласованию с проектной организацией допускается использовать другие формы и размеры образцов и схемы испытания при условии установления по ГОСТ 28570 переходных коэффициентов или зависимостей к стандартным образцам и (или) схемам испытания.
8.2.6 Сроки бурения контрольных скважин устанавливаются производителем работ по согласованию с авторами проекта с учетом набора прочности ГЦ, обеспечивающего возможность отбора керна без разрушения его структуры.
8.2.7 Полевые испытания грунтоцементных конструкций статической нагрузкой могут быть выполнены с помощью штампов.
Испытания должны проводиться на отдельном ГЦЭ или с включением массива грунта (ячейки периодичности). Размеры штампов для испытаний отдельного элемента должны быть не менее 5 000 см2, для испытания массива укрепленного грунта размеры штампа должны определяться ячейкой периодичности.
Число испытаний зависит от уровня ответственности сооружения, геологических условий площадки, нагрузок на основание и ряда других факторов, но должно быть не менее двух.
Испытания следует выполнять статической вдавливающей нагрузкой в соответствии с ГОСТ 20276.1.
8.2.8 Сплошность грунтоцементных элементов рекомендуется контролировать методом контрольного бурения. Допустимо осуществлять выборочный контроль качества выполнения ГЦЭ геофизическими методами в соответствии с приложением Д.
Приложение А
А.1 Выполнение работ по устройству ГЦЭ методом глубинного перемешивания состоит в механическом перемешивании грунта и цемента и создании ГЦЭ механическим способом. Во время погружения бурового инструмента (бура-смесителя) производятся рыхление и размельчение грунта на необходимую глубину. В процессе его извлечения в грунт подается связующее вещество. Вращением в горизонтальной плоскости бура-смесителя производится перемешивание грунта со связующим веществом (рисунок А.1). Связующее вещество может подаваться как на стадии погружения рабочего инструмента, так и на стадии извлечения.

а - установка бурового оборудования в рабочее положение; б - погружение в грунт смесителя до проектной отметки вращательным бурением и нагнетание цементного раствора через смеситель для смешения с грунтом; в - повторные циклы погружения и извлечения смесителя; г - погружение армирующих конструкций (отдельные стальные стержни, арматурные каркасы, стальные балки или трубы); 1 - раствор; 2 - армирующие конструкции
Рисунок А.1 - Технологическая схема глубинного перемешивания грунта
А.2 Глубинное перемешивание может осуществляться двумя способами:
- сухим, при котором связующее подается с помощью сжатого воздуха;
- мокрым (влажным), при котором связующее подается в виде раствора.
При сухом способе в качестве связующего используют смесь цемента и негашеной извести или одной извести. Для подачи (инъекции) связующего в грунт используют воздух. Влажность грунта должна быть выше 20%.
При мокром способе перемешивания в качестве связующего чаще всего используют растворы на основе цемента.
Сухое смешивание применяют, в первую очередь, для улучшения механических характеристик связных грунтов, влажный способ используют для устройства грунтоцементных конструкций.
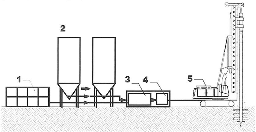
А.3 Для реализации процесса изготовления ГЦЭ способом глубинного перемешивания необходим комплект оборудования, принципиальный состав которого приведен на рисунке А.2.

1 - емкость для воды; 2 - комплект силосов для вяжущего и добавок; 3 - смеситель; 4 - насос; 5 - буровая установка
Рисунок А.2 - Комплект оборудования для глубинного перемешивания грунта
Приложение Б
Б.1 Разработка проекта с использованием армированных грунтоцементных элементов должна выполняться в соответствии с требованиями единой системы конструкторской документации и действующих нормативных документов, оформление чертежей должно соответствовать требованиям национальных стандартов системы проектной документации для строительства.
Б.2 Проект должен включать в себя следующие разделы:
- конструктивные решения;
- проект организации строительства;
- технические решения по проведению работ на опытном участке;
- иная документация.
Б.3 Проектная документация должна состоять из текстовой и графической частей.
Текстовая часть должна включать в себя сведения по возводимому объекту, описание геологических условий, а также технических решений, пояснения, ссылки на нормативные и (или) технические документы, используемые при подготовке проектной документации и результаты расчетов, обосновывающие принятые решения. Требования по проведению работ на опытном или опытно-производственном участке должны содержать перечень контролируемых и уточняемых параметров. Графическая часть должна отображать принятые технические решения в виде чертежей, схем, планов.
Б.4 Проектная документация на армированные грунтоцементные конструкции должна разрабатываться специализированной организацией, имеющей опыт проектирования грунтоцементных конструкций.
Разработанные конструктивные решения должны включать в себя:
- описание и обоснование конструктивных решений и расчетных схем по грунтоцементным конструкциям, принятых при расчете строительных конструкций:
- геометрические характеристики грунтоцементных конструкций (диаметр, угол наклона, длина, шаг);
- требуемые значения показателей прочностных и деформационных свойств грунтоцемента (прочность на одноосное сжатие или модуль деформации);
- значения расчетных нагрузок на грунтоцементную конструкцию (вертикальные, горизонтальные, выдергивающие, изгибающие моменты);
- деформации оснований и грунтовых массивов, включающих в себя грунтоцементные конструкции (вертикальные, горизонтальные, крены);
- расчетные технологические параметры изготовления грунтоцементных конструкций (давление, расход цемента).
Б.5 Раздел "Проект организации строительства" для проектирования фундаментных конструкций и оснований из ГЦЭ разрабатывается как для нового строительства, так и для реконструкции или иных условий (мероприятия для существующих объектов при необходимости их усиления или защиты от различного вида воздействий) и состоит из пояснительной записки, графической части и технологического регламента выполнения работ по устройству конструкций из ГЦЭ.
В технологическом регламенте указываются:
- расчетные технологические параметры изготовления ГЦЭ;
- очередность выполнения работ по устройству ГЦЭ на объекте;
- требования (задание) на выполнение опытных работ;
- требования по контролю качества ГЦЭ на этапе опытных работ и основных работ по изготовлению ГЦЭ.
Б.6 Раздел "Иная документация" для проектирования фундаментных конструкций и оснований из ГЦЭ разрабатывается для сохранности окружающей застройки, иных защитных и вспомогательных мероприятий при новом строительстве или реконструкции и состоит из:
- пояснительной записки, включающей разделы по Б.3 настоящего приложения;
- графической части, учитывающей требования Б.3 настоящего приложения;
- отчетных материалов опытных работ, если они предусмотрены на этапе изысканий.
Б.7 Графическая часть проектной документации на грунтоцементные конструкции, изготавливаемые по технологии глубинного перемешивания грунтов, в общем виде, должна содержать:
- масштабные инженерно-геологические планы и характерные разрезы с нанесением осей объекта капитального строительства, проектных контуров и размеров зон устройства грунтоцементных элементов и их абсолютных отметок, а также данные по физико-механическим свойствам грунтов;
- план расположения грунтоцементных конструкций с привязкой их осей к осям объекта капитального строительства, конструктивные разрезы с привязкой к инженерно-геологическим условиям (колонкам), спецификации грунтоцементных конструкций (номер, угол наклона, отметка верха и низа конструкции, диаметр, длина, число, общая длина), ведомости объемов работ и материалов.
Приложение В
Таблица В.1
|
Тип грунта |
Применяемое вяжущее |
|
Глина пластичной консистенции |
Растворы на основе извести с добавками или без цемента. Растворы на основе цемента по ГОСТ Р 59538 |
|
Глины текучепластичной и текучей консистенции |
Растворы на основе извести с добавками или без цемента. Растворы на основе цемента по ГОСТ Р 59538. Сухие вяжущие на основе извести и цемента |
|
Глины с содержанием органических веществ более 10% и ил |
Растворы на основе цемента с добавками или без извести, доменного шлака, золы-уноса, гипса |
|
Торф |
Растворы на основе цемента с добавками или без извести, доменного шлака, золы-уноса, гипса |
|
Сульфатные грунты |
Растворы на основе сульфатостойкого цемента с добавками или без доменного шлака |
|
Наносы ила |
Растворы на основе цемента с добавками или без извести |
|
Суглинки, супеси, пески |
Растворы на основе цемента по ГОСТ Р 59538 |
При мокром способе перемешивания в большинстве случаев применяются растворы на основе цемента по ГОСТ Р 59538. Для грунтов с высоким содержанием органики или для слабых глинистых грунтов допускается применять особые вяжущие, в том числе смеси зольной пыли, гипса и цемента, если требуется прочность обрабатываемого грунта 1 - 3 МПа.
Приложение Г
Грунтоцементный элемент с развитой боковой поверхностью имеет значительное предельное сопротивление грунтового основания, при этом может наблюдаться дефицит прочности по материалу. Армирование позволяет сблизить значения сопротивления грунтового основания и прочности ствола и добиться за счет этого оптимальных с точки зрения материалоемкости проектных решений.
Г.1 Преимущество железобетонных элементов по сравнению с металлическими (при их использовании в качестве постоянных конструкций) заключается в их коррозионной стойкости в неоднородном высокопористом материале, каким является грунтоцемент. Второе преимущество - возможность оснащать сердечники "рубашками" для образования антисейсмического и разделительного зазоров на части боковой поверхности.
Г.2 Армированные грунтоцементные комбинированные сваи целесообразно применять в следующих случаях:
- ленточных и групповых фундаментов под сильно нагруженные сооружения больших размеров в плане;
- безростверковых свайных фундаментов;
- свайных фундаментов с высоким ростверком, в том числе свай-колонн, в том числе в мерзлых грунтах;
- свай в проседающих и оседающих массивах, в том числе на намывных территориях;
- свайных фундаментов в сейсмических районах.
Г.3 Сборный железобетонный высокопрочный сердечник позволяет заменить буровую сваю значительно большего сечения, при этом, грунтоцементный элемент в песчаных грунтах обеспечивает высокое предельное сопротивление.
Г.4 Задача уменьшения негативного трения в оседающих и проседающих массивах грунта существенно упрощается за счет возможности размещения на части длины сердечников разделительного антифрикционного слоя из поролона, пенополистирола и др.
В сейсмических районах разделительный слой расчетной толщины на боковой поверхности сердечников позволяет создавать эффект "гибкого" подземного этажа и снижения сейсмических нагрузок.
Г.5 Армирование стальными арматурными стержнями или сварными каркасами допускается для временных конструкций, например, ограждений котлованов. Для постоянных конструкций следует применять мероприятия по антикоррозионной защите металла. В частности, пластиковые гофрированные трубки, заполненные цементным или полимерцементным раствором, надежно защищают арматуру и повышают коэффициент использования за счет увеличения площади боковой поверхности металлического сердечника. Металлические сердечники из проката черных металлов могут защищаться оцинкованием или специальными покрытиями.

а - схема комбинированной сваи с сердечником; б – схема комбинированной сваи в намывных и просадочных грунтах; в - схема комбинированной сваи с железобетонной колонной в качестве сердечника; г - схема комбинированной сваи с защитой арматурного сердечника 1 - ГЦЭ; 2 - железобетонный сердечник; 3 – гофрированная пластиковая защитная труба; 4 - мелкозернистый бетон; 5 - стальной арматурный стержень периодического профиля; 6 - железобетонная колонна в качестве сердечника
Рисунок Г.1 - Типы армирующих элементов
Приложение Д
Д.1 Выбор геофизических методов для инструментального контроля качества грунтоцементной конструкции определяется в зависимости от вида (одиночный ГЦЭ, одиночный армированный ГЦЭ, комбинация ГЦЭ) и назначения конструкции.
Д.2 Обследование одиночных ГЦЭ может быть осуществлено с помощью:
- комплекса скважинных сейсмоакустических методов (потенциального и дифференциального каротажа с использованием анализа объемных продольных и гидроволн) для оценки следующих характеристик ГЦЭ вдоль ствола измерительной скважины: сплошности, формы сечения, предела прочности на одноосное сжатие, модуля деформации;
- электроразведки методом сопротивлений (скважинной, наземно-скважинной) и скважинной георадиолокации для оценки следующих характеристик ГЦЭ: сплошности, формы сечения;
- поверхностного сейсмоакустического метода или электроразведки методом сопротивлений (наземной, с использованием армирующего элемента в качестве одного из электродов) для оценки длины армирующего элемента.
Д.2.1 Работы комплексом скважинных сейсмоакустических методов выполняются через предварительно обустроенную в теле ГЦЭ скважину (необсаженную или обсаженную с применением инвентарных полимерных труб). При обследовании неармированного ГЦЭ в качестве канала доступа для каротажного оборудования может быть использована скважина, использовавшаяся при изготовлении элемента.
Д.2.2 При обследовании армированного ГЦЭ армирующий элемент использовать в качестве канала доступа для каротажного оборудования не допускается. Обследование армированного ГЦЭ допускается выполнять с использованием наблюдательной скважины, устроенной параллельно оси армирующего элемента. При этом для оценки сплошности и глубины заложения конструкции помимо комплекса скважинных сейсмоакустических методов допускается использовать параллельный сейсмический метод или скважинную георадиолокацию.
Д.2.3 Поверхностный сейсмоакустический метод может быть использован для характеристики длины и сплошности ГЦЭ только в том случае, если конструкция изготавливается в однородной по геологическому строению толще грунтов.
Требуемая для интерпретации данных оценка скорости распространения упругих волн в ГЦ должна быть определена на этапе обследования опытных ГЦЭ одним из следующих способов:
- по результатам испытаний ГЦЭ с известной длиной и подтвержденной прямыми методами сплошностью сечения (предпочтительный вариант, в этом случае погрешность определения длины сваи может быть принята равной 5% - 10%);
- по результатам ультразвуковых измерений на контрольных образцах (в этом случае погрешность определения длины сваи не может быть принята менее 10%).
Д.3 Обследование конструкции, выполняемой из комбинации ГЦЭ, производится комплексом геофизических методов, определяемым исходя из ее пространственной геометрии, и может быть осуществлена с применением:
- комплекса скважинных сейсмоакустических методов (потенциальный и дифференциальный каротаж) и межскважинного сейсмоакустического прозвучивания для оценки следующих характеристик грунтоцементного массива в плоскости между измерительными скважинами: геометрии, сплошности, предела прочности на одноосное сжатие, модуля деформации;
- методов радиоволнового просвечивания и межскважинной электроразведки методом сопротивлений для оценки следующих характеристик грунтоцементного массива в плоскости между измерительными скважинами: геометрии, сплошности;
- методов наземной сейсморазведки (на преломленных, отраженных, рефрагированных, поверхностных волнах) для оценки следующих характеристик грунтоцементного массива вдоль профиля измерений: геометрии, сплошности, предела прочности на одноосное сжатие, модуля деформации;
- методов наземной электроразведки (метода сопротивлений, вертикального электрического зондирования, электротомографии) для оценки следующих характеристик грунтоцементного массива вдоль профиля измерений: геометрии, сплошности.
Д.3.1 Работы комплексом скважинных геофизических методов при обследовании конструкций, выполняемых из комбинации ГЦЭ, выполняются через предварительно обустроенные скважины (необсаженные или обсаженные с применением инвентарных полимерных труб). Взаимное расположение скважин определяется решаемой задачей и должно быть согласовано в программе проведения испытаний.
Д.3.2 Работы комплексом наземных геофизических методов при обследовании конструкций, выполняемых из комбинации ГЦЭ, производят при невозможности проведения скважинных геофизических исследований. Взаимное расположение профилей наблюдения определяется решаемой задачей и должно быть согласовано в программе проведения испытаний.
Д.4 Применение геофизических методов должно быть регламентировано согласованной программой испытаний, содержащей информацию о подготовке конструкции к проведению испытаний, методике проведения испытаний, возможностях и ограничениях метода исследований, применяемом оборудовании, подходах к обработке и интерпретации данных, форме представления ожидаемых результатов и их погрешности.
Д.5 Применение геофизических методов, не упоминающихся в Д.2, Д.3, должно быть обосновано в программе испытаний с использованием примеров результатов, полученных ранее для ГЦЭ сходных параметров, ссылками на источники апробации применяемых методик.
Приложение Е
|
Материалы |
Прочность на одноосное сжатие Rstb, МПа |
Модуль деформации Estb, МПа |
|
1 Крупнообломочные грунты и гравийно-песчаные смеси оптимального или близких к оптимальному составов, укрепленные цементом |
4,0 - 6,0 |
550 - 800 |
|
2,0 - 4,0 |
350 - 530 | |
|
1,0 - 2,0 |
280 - 320 | |
|
2 Крупнообломочные грунты и гравийно-песчаные смеси неоптимального состава, пески (кроме мелких, пылеватых и одноразмерных), супесь легкая крупная, щебень малопрочных пород и отходы камнедробления, укрепленные цементом |
4,0 - 6,0 |
500 - 700 |
|
2,0 - 4,0 |
330 - 480 | |
|
1,0 - 2,0 |
250 - 300 | |
|
3 Пески мелкие и пылеватые, супесь легкая и пылеватая, укрепленные цементом |
4,0 - 6,0 |
480 - 650 |
|
2,0 - 4,0 |
300 - 450 | |
|
1,0 - 2,0 |
220 - 260 | |
|
4 Супеси тяжелые пылеватые, суглинки легкие, укрепленные цементом |
4,0 - 6,0 |
350 - 500 |
|
2,0 - 4,0 |
230 - 350 | |
|
1,0 - 2,0 |
120 - 200 | |
|
5 Суглинки тяжелые пылеватые, глины песчанистые и пылеватые, укрепленные цементом |
2,0 - 4,0 |
200 - 330 |
|
1,0 - 2,0 |
80 - 180 |
Приложение Ж
Гидравлическое опробование выполняют методом нагнетания воды в скважину под давлением 1,0 МПа. Технологическая схема испытаний представлена на рисунке Ж.1. Нагнетание воды под давлением должно поддерживаться неизменным в течение 10 - 15 мин после его стабилизации, за это время следует провести два-три измерения расхода воды.

Рисунок Ж.1 - Технологическая схема проведения гидравлических испытаний
По результатам гидравлического опробования должно быть определено удельное водопоглощение грунтов
, (Ж.1)
где Q - расход поглощаемой воды, л/мин;
H - напор воды в зоне, м;
l - длина опробуемой зоны, м.
Приложение И
И.1 Погрешность измерений при испытаниях не должна превышать значения, указанные в таблице И.1.
|
Измеряемый параметр |
Значение |
|
1 Геометрические размеры образца |
0,1 мм |
|
2 Вертикальная деформация образца |
0,01 мм |
|
3 Относительная вертикальная деформация образца |
0,001 |
|
4 Относительная объемная деформация образца |
0,005 |
|
5 Прикладываемая нагрузка от ступени нагрузки |
5% |
И.2 Объем керна, отбираемый из конструкций в пробу, зависит от вида испытаний и линейных размеров образцов, определяемых по таблице И.2.
|
Вид испытания ГЦ |
Диаметр образца d, мм |
Высота образца h, мм |
|
1 Одноосное сжатие |
Не менее 50 |
h = (0,8 - 2,2)d |
|
2 Растяжение при раскалывании |
Не менее 50 |
h = d |
|
3 Трехосное сжатие |
38; 44; 50; 70 |
h = (0,8 - 2,2)d |
|
Примечания 1 Максимальный линейный размер неоднородностей в образце должен быть не более 1/10 стороны диаметра. 2 Следует отбирать не менее одной пробы для каждого инженерно-геологического элемента. 3 Допускается применять образец в форме куба с коэффициентами для обработки результатов по ГОСТ Р 59706. | ||
И.3 Указания по методам определения прочностных и деформационных характеристик грунтоцемента и скоростям нагружения образца приведены в таблице И.3.
|
Метод испытания |
Схема нагружения |
Характеристики ГЦ | |
|
кинематическая, скорость |
статическая, ступень | ||
|
Одноосное сжатие |
Не более 0,1 МПа/с |
10% Rstb |
Rstb Estb, v |
|
Растяжение при раскалывании |
0,01 - 0,05 МПа/с |
3% - 5% Rstb |
Rtt |
|
Трехосное сжатие |
0,1 - 0,5 МПа/с |
10% σ3 |
Rstb Estb, v c, φ |
|
Примечания 1 Меньшие значения скорости нагружения соответствуют меньшим значениям прочности ГЦ. 2 За величину Rstb и σ3 следует принимать прочность на одноосное сжатие при мгновенном приложении нагрузки. 3 Для перехода от прочности ГЦ на растяжение при раскалывании к прочности на растяжение допускается принимать понижающий коэффициент 0,5. | |||
И.4 Критерием завершения ступени нагружения при статическом режиме испытаний является достижение скорости деформации. Скорость деформации выбирается в зависимости от предполагаемого поведения материала (вязкого или хрупкого) и определяется по таблице И.4.
|
Прочность ГЦ на одноосное сжатие Rstb, МПа |
Скорость вертикальной деформации, мм/с |
|
Менее 2 |
0,01 |
|
От 2 до 7 включ. |
0,1 |
|
Свыше 7 |
1 |
|
Примечания 1 Образцы с малым сроком твердения следует испытывать на меньших скоростях нагружения. 2 Рекомендуется испытывать ГЦ с большим содержанием песчаных частиц при значениях прочности на одноосное сжатие 5 МПа и более со скоростью нагружения 1 мм/с. | |
Приложение К
Журнал струйной цементации
|
N п.п. |
Дата (смена) |
Наименование секции |
N скважины |
Параметры элемента |
Параметры технологии |
Состав раствора |
Расход материалов |
Ф.И.О. ответственного и подпись |
Примечание | |||||||||||||||
|
Цемент |
Добавка | |||||||||||||||||||||||
|
Диаметр скважины, мм |
Угол наклона к вертикали |
Длина скважины, м |
Длина Jet элемента, м |
Абсолютная отметка верха элемента |
Абсолютная отметка низа элемента |
Количество форсунок, шт. |
Диаметр форсунок, мм |
Скорость вращения монитора, мин-1 |
Скорость подъема монитора, см/мин |
Давление нагнетания раствора, МПа |
Марка цемента |
Водоцементное отношение |
Марка добавки (в случае применения) |
Цемента на 1 пог. м Jet сваи, кг |
Цемента на 1 пог. м лидерного бурения, кг |
Всего цемента на сваю, кг |
Расход на 1 пог. м Jet сваи, кг |
Добавки на одну сваю, кг | ||||||
|
1 |
2 |
3 |
4 |
5 |
6 |
7 |
8 |
9 |
10 |
11 |
12 |
13 |
14 |
15 |
16 |
17 |
18 |
19 |
20 |
21 |
22 |
23 |
24 |
25 |


