СП 138.13330.2012 (26.12.2024) ОБЩЕСТВЕННЫЕ ЗДАНИЯ И СООРУЖЕНИЯ, ДОСТУПНЫЕ МАЛОМОБИЛЬНЫМ ГРУППАМ НАСЕЛЕНИЯ. ПРАВИЛА ПРОЕКТИРОВАНИЯ
Утв. Приказом Федерального агентства по строительству и жилищно-коммунальному хозяйству от 27 декабря 2012 г. N 124/ГС
Свод правил СП-138.13330.2012
"ОБЩЕСТВЕННЫЕ ЗДАНИЯ И СООРУЖЕНИЯ, ДОСТУПНЫЕ МАЛОМОБИЛЬНЫМ ГРУППАМ НАСЕЛЕНИЯ. ПРАВИЛА ПРОЕКТИРОВАНИЯ"
Public buildings and structures accessible for physically handicapped visitors. Rules of architectural design
С изменениями:
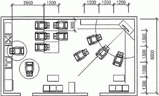
(07 ноября 2016 г., 28 декабря 2023 г., 26 декабря 2024 г.)
ОКС 01.040.93
Дата введения - 1 июля 2013 года
Предисловие
Цели и принципы стандартизации в Российской Федерации установлены Федеральным законом от 27 декабря 2002 г. N 184-ФЗ "О техническом регулировании", а правила разработки сводов правил - Постановлением Правительства Российской Федерации от 19 ноября 2008 г. N 858 "О порядке разработки и утверждения сводов правил".
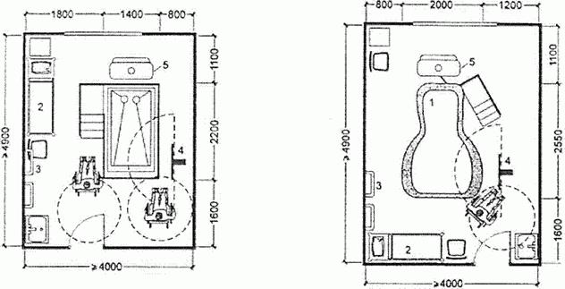
Сведения о своде правил
1 ИСПОЛНИТЕЛИ - ООО "Институт общественных зданий" и ОАО "ЦНИИЭП жилища"
2 ВНЕСЕН Техническим комитетом по стандартизации ТК 465 "Строительство"
3 ПОДГОТОВЛЕН к утверждению Управлением градостроительной политики
4 УТВЕРЖДЕН Приказом Федерального агентства по строительству и жилищно-коммунальному хозяйству (Госстрой) от 27 декабря 2012 г. N 124/ГС и введен в действие с 1 июля 2013 г.
5 ЗАРЕГИСТРИРОВАН Федеральным агентством по техническому регулированию и метрологии (Росстандарт)
6 ВВЕДЕН ВПЕРВЫЕ
Информация об изменениях к настоящему своду правил публикуется в ежегодно издаваемом информационном указателе Национальные стандарты, а текст изменений и поправок в ежемесячно издаваемых информационных указателях Национальные стандарты. В случае пересмотра (замены) или отмены настоящего свода правил соответствующее уведомление будет опубликовано в ежемесячно издаваемом информационном указателе Национальные стандарты. Соответствующая информация, уведомление и тексты размещаются также в информационной системе общего пользования - на официальном сайте Федерального агентства по строительству и жилищно-коммунальному хозяйству в сети Интернет
Введение
Настоящий свод правил разработан в соответствии с требованиями Федерального закона от 30 декабря 2009 г. N 384-ФЗ "Технический регламент о безопасности зданий и сооружений".
Настоящий свод правил детализирует требования СП 59.13330 и должен применяться совместно с СП 138.13330.
Научный руководитель работы и отв. исполнитель - канд. архитектуры А.М. Гарнец, компьютерная графика - канд. техн. наук А.И. Цыганов, при участии арх. Н.П. Малиночки (ООО "Институт общественных зданий"), инж. В.Б. Осиновской (ГКУ "Дирекция по ремонту и техническому обслуживанию учреждений ДСЗН г. Москвы"), канд. архитектуры А.А. Магая, канд. архитектуры Н.В. Дубынина (ОАО "ЦНИИЭП жилища").
Изменение N 1 к своду правил подготовлено ООО "Институт общественных зданий" (научный руководитель работы и ответственный исполнитель - канд. архитектуры А.М. Гарнец, канд. техн. наук А.И. Цыганов) при участии Всероссийского общества слепых (Л.П. Абрамова), Межрегиональной межотраслевой строительной ассоциации саморегулируемых и профессиональных отраслевых организаций "Безопасность" (д-р техн. наук М.М. Мирфатулаев, д-р техн. наук Ю.М. Глуховенко), НП "Доступная городская среда" (инж. В.В. Коновалова), Санкт-Петербургского государственного архитектурно-строительного университета (канд. архитектуры Б.Л. Крундышев), Негосударственного учреждения "Институт профессиональной реабилитации и подготовки персонала общероссийской организации инвалидов - Всероссийского ордена Трудового Красного Знамени общества слепых "Реакомп" (С.Н. Ваньшин).
Изменение N 3 разработано авторским коллективом: АО "ЦНИИПромзданий" (канд. архитектуры Д.К. Лейкина, канд. архитектуры Н.В. Дубынин, В.В. Коновалова), ДТСЗН г. Москвы (В.Б. Осиновская), НО "ДГС" (М.Ю. Зверев), НУ ИПРПП ВОС "Реакомп" (С.Н. Ваньшин), БФ "Город для всех" (С.В. Чистый).
1 Область применения
1.1 Настоящий свод правил распространяется на проектирование и реконструкцию общественных зданий и сооружений, доступных для маломобильных групп населения (МГН), и устанавливает требования к общественным зданиям и сооружениям или их частям, а также земельным участкам общественных зданий, доступным для посетителей.
1.2 Исключен с 27.01.2025. - Изменение N 3
1.3 Настоящий свод правил не распространяются на части общественных зданий, сооружений и участки, куда не предусмотрен допуск посетителей. Если в этих зонах предусматриваются рабочие места для инвалидов, то их следует проектировать в соответствии с СП 139.13330.
1.4 Исключен с 27.01.2025. - Изменение N 3
1.5 Исключен с 27.01.2025. - Изменение N 3
1.6 К объектам нормирования доступной среды для МГН в общественных зданиях и сооружениях следует относить:
благоустройство и озеленение участка здания;
объемные элементы входов и выступающих частей;
планировочное решение коммуникационных путей, в том числе горизонтальных и вертикальных;
планировку групп помещений и отдельных помещений;
устройство мест обслуживания и мест отдыха;
устройство и планировку мест обслуживания;
пути эвакуации.
1.7 - 1.9 Исключены с 27.01.2025. - Изменение N 3
2 Нормативные ссылки
В настоящем своде правил даны ссылки на следующие документы:
ГОСТ 34995-2023 Оборудование и покрытия игровых площадок. Дополнительные требования безопасности и методы испытаний оборудования универсальных игровых площадок
ГОСТ Р 51261-2022 Устройства опорные стационарные для маломобильных групп населения. Типы и общие технические требования
ГОСТ Р 51645-2017 Рабочее место для инвалида по зрению типовое специальное компьютерное. Технические требования к оборудованию и производственной среде
ГОСТ Р 51671-2020 Средства связи и информации технические общего пользования, доступные для инвалидов. Классификация. Требования доступности и безопасности
ГОСТ Р 52131-2019 Средства отображения информации знаковые для инвалидов. Технические требования
ГОСТ Р 52875-2018 Указатели тактильные наземные для инвалидов по зрению. Технические требования
ГОСТ Р 52880-2007 Социальное обслуживание населения. Типы учреждений социального обслуживания граждан пожилого возраста и инвалидов
ГОСТ Р 59431-2021 Система радиоинформирования и звукового ориентирования для инвалидов по зрению и других маломобильных групп населения. Технические требования. Методы испытаний
ГОСТ Р 59813-2021 Тифлокомментирование. Общие требования
ГОСТ 12.4.026-2015 Система стандартов безопасности труда. Цвета сигнальные, знаки безопасности и разметка сигнальная. Назначение и правила применения. Общие технические требования и характеристики. Методы испытаний
СП 1.13130.2020 Системы противопожарной защиты. Эвакуационные пути и выходы (с изменениями N 1, N 2)
СП 3.13130.2009 Системы противопожарной защиты. Система оповещения и управления эвакуацией людей при пожаре. Требования пожарной безопасности
СП 59.13330.2020 "СНиП 35-01-2001 Доступность зданий и сооружений для маломобильных групп населения" (с изменениями N 1, N 2, N 3)
СП 113.13330.2023 "СНиП 21-02-99* Стоянки автомобилей" (с изменением N 1)
СП 118.13330.2022 "СНиП 31-06-2009 Общественные здания и сооружения" (с изменениями N 1, N 2, N 3, N 4)
СП 136.13330.2012 Здания и сооружения. Общие положения проектирования с учетом доступности для маломобильных групп населения (с изменениями N 1, N 2)
СП 137.13330.2012 Жилая среда с планировочными элементами, доступными инвалидам. Правила проектирования (с изменениями N 1, N 2)
СП 139.13330.2012 Здания и помещения с местами труда для инвалидов. Правила проектирования (с изменениями N 1, N 2)
СП 140.13330.2012 Городская среда. Правила проектирования для маломобильных групп населения (с изменениями N 1, N 2)
СП 145.13330.2020 Дома-интернаты. Правила проектирования (с изменением N 1)
СП 148.13330.2012 Помещения в учреждениях социального и медицинского обслуживания. Правила проектирования (с изменением N 1)
СП 158.13330.2014 Здания и помещения медицинских организаций. Правила проектирования (с изменениями N 1, N 2, N 3, N 4)
СП 251.1325800.2016 Здания общеобразовательных организаций. Правила проектирования (с изменениями N 1, N 2, N 3, N 4, N 5)
СП 2.4.3648-20 Санитарно-эпидемиологические требования к организациям воспитания и обучения, отдыха и оздоровления детей и молодежи
Примечание - При пользовании настоящим сводом правил целесообразно проверить действие ссылочных стандартов и классификаторов в информационной системе общего пользования - на официальном сайте национальных органов Российской Федерации по стандартизации в сети Интернет или по ежегодно издаваемому информационному указателю "Национальные стандарты", который опубликован по состоянию на 1 января текущего года, и по соответствующим ежемесячно издаваемым информационным указателям, опубликованным в текущем году. Если ссылочный документ заменен (изменен), то при пользовании настоящим сводом правил следует руководствоваться замененным (измененным) документом. Если ссылочный документ отменен без замены, то положение, в котором дана ссылка на него, применяется в части, не затрагивающей эту ссылку.
3 Термины и определения
Термины, определения и сокращения приняты по ГОСТ Р 51671, ГОСТ Р 52131, СП 59.13330, СП 136.13330, СП 140.13330.
4 Здания и помещения образовательных организаций
4.1 Исключен с 27.01.2025. - Изменение N 3
4.2 Здания и помещения образовательных организаций (общеобразовательная организация - ОО, профессиональная образовательная организация - ПОО, образовательная организация высшего образования - ООВО, организация дополнительного образования - ОДО, организация дополнительного профессионального образования - ОДПО) необходимо проектировать с учетом доступности для инвалидов согласно СП 59.13330.
4.3 Исключен с 27.01.2025. - Изменение N 3
4.4 Здания образовательных организаций (ОО, ПОО, ООВО, ОДО, ОДПО) следует проектировать доступными для обучающихся с ограниченными возможностями здоровья (ОВЗ), кроме реабилитационно-образовательных организаций, сочетающих обучение с коррекцией и компенсацией недостатков развития по определенному виду заболевания.
Требования к зданиям и помещениям реабилитационно-образовательным организациям, сочетающим обучение с коррекцией и компенсацией недостатков развития по определенному виду заболевания, определяют заданием на проектирование.
Учебные помещения
4.5 В каждом учебном помещении следует предусматривать возможность оборудования мест для обучающихся с ОВЗ по каждому виду нарушения здоровья - опорно-двигательному аппарату, слуху, зрению при соответственном сокращении расчетного числа обучающихся в классе, с учетом нормы площади учебного кабинета на одного обучающегося с ОВЗ и предельной наполняемости отдельного класса для обучающихся с ОВЗ в соответствии с СП 2.4.3648.
В случае несовместимости образовательных программ с возможностями обучающихся с ОВЗ (занятия физической культурой, военная подготовка, занятия по труду и т.п.) предусматривают помещения для альтернативных занятий по заданию на проектирование.
4.6 При проектировании учебных помещений следует предусматривать возможность создания ученических мест с ассистивным оборудованием для обучающихся с ОВЗ.
Требования доступности при проектировании относятся к:
размерам дверных проемов входов в помещения, к организации безбарьерного маршрута (с учетом проезда, разъезда и разворота кресла-коляски), соединяющего вход в учебное помещение, безбарьерную зону специальных ученических мест, место у доски или кафедры, зону у демонстрационных стендов, стеллажей с наглядными пособиями и методическими материалами;
ассистивному оборудованию мест для обучающихся;
системам индивидуального вспоможения при передвижении и фиксировании тела при сидении;
инженерному оборудованию и возможности управления им (естественное и искусственное освещение, системы информации и связи и системы радиоинформирования).
4.7 При проектировании ученических мест для обучающихся с ОВЗ на креслах-колясках и (или) опорах в специализированных образовательных организациях следует предусматривать:
- минимальный размер зоны на одно место не менее 1,8 x 1,8 м;
- ширину прохода между рядами столов - не менее 0,9 м от спинки стула до следующего стола;
- ширину вдоль прохода не менее 1,4 м около места обучающегося.
В учебных мастерских ширину основного прохода, а также расстояние между станками предусматривать не менее 1,6 м.
4.8 При планировке ученических мест для обучающихся с недостатками зрения и нарушением слуха, а также с нарушением психического развития в специализированных образовательных организациях расстояние между рядами столов - не менее 0,6 м; между столами в ряду - не менее 0,5 м; между рядами столов и стенами без оконных проемов - не менее 0,7 м; между рядом столов и стеной с оконными проемами - не менее 0,5 м.
Размеры ученического стола для обучающегося с ОВЗ в специализированных образовательных организациях должны быть не менее 1,0 м - ширина и 0,6 м - глубина.
4.9 В классном помещении допускается первые места в ряду у окна и в среднем ряду предусмотреть для обучающихся с ОВЗ с нарушениями зрения и (или) слуха, для обучающихся с ОВЗ, передвигающихся на креслах-колясках - первые места в ряду у дверного проема.
4.10, 4.11 Исключены с 27.01.2025. - Изменение N 3
4.12 Для учащихся с легким нарушением психического развития, с сердечно-сосудистой недостаточностью в учебных помещениях, читальных залах библиотек, в зоне приготовления уроков в группе продленного дня допускается предусматривать полузамкнутые рабочие места-кабины (с боковыми бортиками и экранами у стола, высокими спинками сидений, с бортиками-ограждениями по бокам и сзади и т.п.).
Прочие помещения
4.13 В актовых и зрительных залах образовательных организаций (ОО, ПОО, ООВО, ОДО, ОДПО) следует предусматривать места для обучающихся с ОВЗ на креслах-колясках в соответствии с СП 59.13330, СП 251.1325800.
Для обучающихся с ОВЗ, передвигающихся на креслах-колясках, места в актовых и зрительных залах допускается предусматривать в первом ряду, если сцена располагается в уровне пола первого ряда.
4.14 Места для сидения обучающихся с ОВЗ необходимо проектировать согласно СП 59.13330. Допускается предусматривать площадь для размещения фиксирующих или опорных устройств.
4.15 В зрительных залах и лекционных аудиториях образовательных организаций (ОО, ПОО, ООВО, ОДО, ОДПО) допускается предусматривать стационарные системы обеспечения разборчивости звуковой информации по СП 59.13330 с охватом помещения или его части, систему для проведения скрытого прямого тифлокомментирования. Рабочее место тифлокомментатора обустраивают в соответствии с ГОСТ Р 59813.
4.16 Для подъема на сцену, в случае, когда она устроена выше уровня пола, кроме лестниц, должен быть предусмотрен пандус согласно СП 59.13330.
4.17 На путях эвакуации зрителей из зала необходимо устраивать вдоль стены опорные поручни на высоте 0,7 м и 0,9 м от уровня пола.
4.18 В фойе перед актовым залом следует предусматривать непроходную зону отдыха и ожидания для обучающихся с ОВЗ. Дополнительная площадь зоны отдыха в образовательных организациях общего образования - не менее чем на 3 учащихся (зона на 1 учащегося - 1,2 x 1,8 м); в профессиональных образовательных организациях - на 50% специализированных мест для обучающихся с ОВЗ в актовом зале.
4.19 В читальном зале библиотеки следует предусматривать обособленные, но рядом с проходом, зоны для размещения специальных мест: для обучающихся с ОВЗ, передвигающихся в креслах-колясках и использующих иные индивидуальные средства реабилитации при ходьбе, и отдельно - для учащихся с нарушением зрения. Рабочее место для инвалидов по зрению должно иметь дополнительное периметральное освещение, а также дополнительное место для чтеца и предусматривать возможность размещения тифлотехнических средств.
В читальном зале библиотеки образовательной организации (ОО, ПОО, ООВО, ОДО, ОДПО) не менее 5% читальных мест следует оборудовать с учетом доступа обучающихся на креслах-колясках и отдельно - для обучающихся с недостатками зрения. Рабочее место для инвалидов по зрению должно иметь дополнительное освещение по периметру.
4.20 Места в читальном зале для обучающихся с ОВЗ предусматривают в виде индивидуальных полукабин, изолированных барьерами.
Размеры зоны рабочего места на одного ребенка-инвалида на кресле-коляске составляют не менее 1,8 x 0,9 м. Проход между рабочими столами для свободного проезда и подъезда к столу должен быть не менее 0,9 м, т.е. размеры рабочей зоны вместе с проходом - 1,8 x 1,8 м.
4.21 Часть стойки-барьера выдачи книг в абонементе в общеобразовательных организациях устраивают высотой не более 0,7 м.
4.22 Книги, находящиеся в открытом доступе, и картотеку следует располагать не выше 1,2 м при ширине прохода у стеллажей или у картотеки не менее 1,2 м.
4.23 В обеденных залах ОО в зонах для обучающихся с ОВЗ стулья следует крепить стационарно.
4.24 В столовой должна быть предусмотрена непроходная зона, оборудование и планировочные габариты которой должны учитывать возможность пользования детьми и на креслах-колясках.
4.25 Для обучающихся с ОВЗ в организациях общего и профессионального образования, состав медицинских помещений устанавливают заданием на проектирование.
4.26 Лифт для обучающихся с ОВЗ, передвигающихся на кресле-коляске, в общеобразовательных организациях, а также в организациях профессионального образования должен предусматриваться в выделенном лифтовом холле, который допускается использовать в качестве безопасной зоны согласно СП 1.13130, СП 59.13330.
4.27 В образовательных организациях в раздевальных физкультурного зала и бассейна для обучающихся с ОВЗ следует предусматривать закрытую раздевальную с душем и унитазом согласно СП 59.13330.
5 Здания и помещения медицинских организаций и учреждений социального обслуживания населения
5.1 Доступными для маломобильных групп населения должны быть здания медицинских организаций, в которых непосредственно оказывается медицинская помощь (СП 158.13330).
5.2 Требования к медицинским подразделениям санаториев и домов отдыха аналогичны требованиям к амбулаторно-поликлиническим учреждениям, а также к лечебно-диагностическим и восстановительным подразделениям стационаров по СП 158.13330. При проектировании учреждений социального обслуживания граждан пожилого возраста и инвалидов следует соблюдать требования СП 145.13330, ГОСТ Р 52880.
5.3 - 5.5 Исключены с 27.01.2025. - Изменение N 3
5.6 Габариты врачебных и лечебных кабинетов не должны препятствовать их посещению пациентами на креслах-колясках. Расстановка в них оборудования должна обеспечить возможность свободного подъезда к столу врача шириной 1,2 м и разворота кресла-коляски диаметром не менее 1,4 м в соответствии с СП 148.13330.
5.7 Глубина ванны в кабинете подводного массажа должна быть не менее 0,4 - 0,6 м. По периметру ванна снабжается опорными поручнями. Вокруг ванны предусматривается пространство не менее 1,5 - 1,6 м для проезда коляски. Пол вокруг ванны покрывается нескользким покрытием.
5.8 В помещении подводного массажа и в кабинах душевого зала поликлиники допускается устройство специального оборудования для перемещения инвалида с поражением ОДА из коляски в ванную или кабину, а также поручни и упоры для коленей.
5.9 Исключен с 27.01.2025. - Изменение N 3
5.10 При помещениях лечебной физкультуры, а также при душевом зале должны быть предусмотрены раздевальные с учетом возможности их использования инвалидами, в том числе на креслах-колясках (иметь: минимальные размеры помещения - 3,0 x 6,0 м; свободные от напольного оборудования зоны диаметром не менее 1,4 м; пристенные поручни у скамей для раздевания). Нумерация на шкафах в гардеробных/раздевальных и душевых должна быть рельефной и на контрастном фоне.
Не менее, чем один из отсеков зала лечебных и грязевых ванн, включая раздевальную при нем, должен быть приспособлен для инвалида на кресле-коляске. В залах лечебной физкультуры в ограждениях, направляющих и ограничивающих движение, следует применять материалы, смягчающие контакт инвалида с ограждением.
5.11 Для торговых залов аптек и раздаточных пунктов молочных кухонь действительны те же требования, что и для торговых залов учреждений торговли.
5.12 Аптечные прилавки должны быть доступными для инвалидов, передвигающихся на креслах-колясках. Товар на прилавках следует располагать в поле зрения людей, сидящих в инвалидных колясках.
5.13 По заданию на проектирование места ожидания и приема пациентов допускается оборудовать системами радиоинформирования и ориентирования согласно ГОСТ Р 59431.
5.14 Исключен с 27.01.2025. - Изменение N 3
5.15 В зданиях психиатрических стационаров перечень помещений, доступных для инвалидов, определяется заданием на проектирование.
5.16 Для размещения места отдыха/ожидания для собаки-проводника допускается предусматривать помещение или зону не менее 1,5 м2.
Место для собаки-проводника должно быть защищено от холода, сквозняков, перегрева. Размещение места для собаки-проводника на путях движения не допускается. Необходимо предусмотреть крепления для фиксации собаки-проводника на свободном поводке.
При проектировании места для размещения более чем одной собаки-проводника в помещении необходимо предусмотреть площадь для установки индивидуальных клеток. Площадь каждой клетки должна быть не менее 0,7 м2, высота - не менее 0,7 м.
Необходимо обеспечить ограничение доступа к месту для собаки-проводника посторонних лиц.
При выделении помещения для собаки-проводника необходимо предусмотреть видеонаблюдение внутри помещения.
6 Здания и помещения сервисного обслуживания населения
Общие положения
6.1, 6.2 Исключены с 27.01.2025. - Изменение N 3
6.3 При проектировании предприятий, доступных для маломобильных категорий пользователей (посетителей, потребителей), следует учитывать общие требования к формированию архитектурной среды согласно СП 59.13330 и СП 136.13330. Дополнительно следует учитывать специфические требования к отдельным типам учреждений, приведенные ниже.
Столы, прилавки, расчетные плоскости кассовых кабин следует располагать согласно требованиям СП 59.13330.
Предприятия розничной торговли
6.4 Для личного транспорта инвалидов на автостоянках посетителей при предприятиях розничной торговли следует выделять места для транспортных средств инвалидов. Они должны размещаться не далее 50 м от входов, доступных для маломобильных покупателей. При многоуровневой автостоянке, встроенной или пристроенной к основному зданию, места для автомашин инвалидов на кресле-коляске следует предусматривать на уровне основного входа в здание.
При размещении парковочных мест на стоянках автомобилей следует предусматривать места для хранения (стоянки) электромобилей, оборудованные зарядными устройствами, в соответствии с требованиями СП 113.13330. Расчетную потребность парковочных мест, оборудованных зарядными устройствами, следует устанавливать в соответствии с заданием на проектирование, но не менее установленных СП 118.13330.
6.5 Исключен с 27.01.2025. - Изменение N 3
6.6 Торговое оборудование должно обеспечивать доступность всем контингентам покупателей, в том числе лицам на креслах-колясках.
6.7 Исключен с 27.01.2025. - Изменение N 3
6.8 Размеры проходов (кроме одностороннего) должны обеспечивать возможность разворота на кресле-коляске на 180°, фронтального обслуживания инвалидов на кресле-коляске вместе с сопровождающими.
Ширина проходов торговых залов должна быть не менее ширины основных эвакуационных проходов в торговых залах в соответствии с СП 1.13130.2020 (пункт 7.6.4).
6.9 В блоке касс как минимум один из контрольных кассовых постов в зале должен быть оборудован в соответствии с требованиями СП 59.13330. Число доступных кассовых зон проектируется в соответствии с СП 59.13330.
Информационный знак доступности кассы следует располагать согласно ГОСТ Р 51671.
6.10 Для покупателей с нарушением зрения следует предусматривать тактильные, световые указатели, табло и пиктограммы, а также контрастное цветовое решение элементов интерьера в соответствии с требованиями СП 59.13330. Не следует одновременно использовать красный, зеленый, синий и фиолетовый цвета.
Предприятия питания
6.11 В предприятиях питания и их зонах, предназначенных для специализированного обслуживания маломобильных посетителей, следует предусматривать обслуживание официантами.
При отсутствии в здании пассажирских лифтов обеденные залы необходимо размещать на первом этаже. Оборудование мест, приспособленных для маломобильных посетителей, размещенных на основном этаже, должно соответствовать аналогичному оборудованию мест, размещенных на недоступных для инвалидов этажах (уровнях).
6.12 В помещениях общественного питания расстановка мебели и оборудования должна обеспечивать беспрепятственное движение инвалидов. Ширина прохода около прилавков для сервирования блюд должна быть не менее 1,2 м.
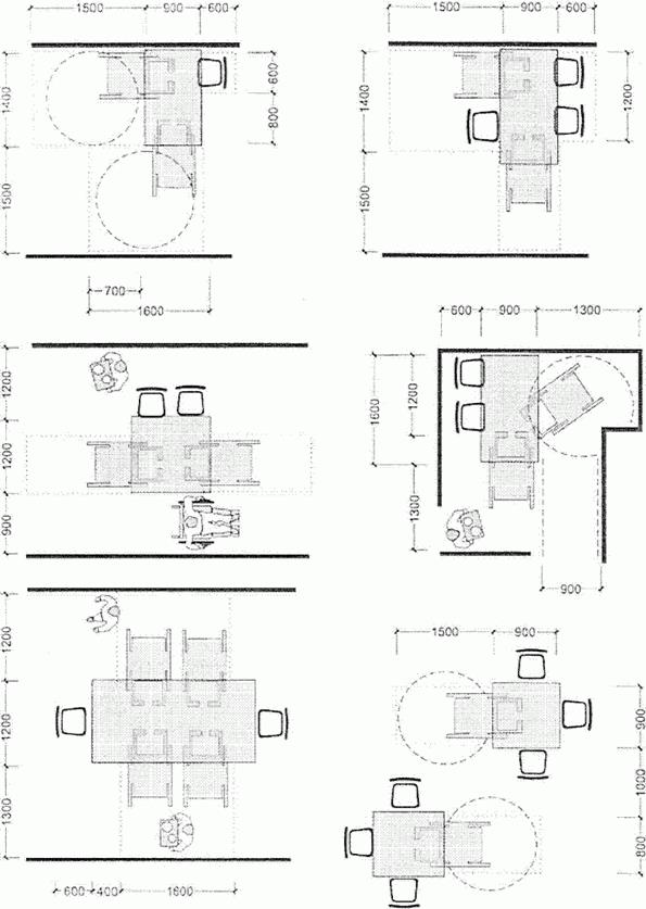
В буфетах и закусочных должно быть не менее одного стола высотой 0,80 - 0,85 м, свободным пространством для ног высотой 0,75 м, глубиной не менее 0,5 м.
Ширина прохода между столами в ресторане должна быть не менее 1,2 м.
Секция стойки бара для инвалидов на кресле-коляске должна иметь ширину столешницы 1,6 м, высоту от пола не более 0,85 м и свободное пространство для ног 0,75 м.
6.13 В предприятиях питания следует отводить до 5% мест, но не менее одного, для МГН, передвигающихся на креслах-колясках. Размещение и габариты мест - согласно СП 59.13330.
6.14 В помещениях общественного питания должно быть 5% столов, но не менее одного обеденного стола высотой 0,80 - 0,85 м. Ширину между ножками стола и глубину столешницы принимают в соответствии с требованиями СП 59.13330. Стойки баров и кафетериев следует проектировать согласно СП 59.13330.
6.15, 6.16 Исключены с 27.01.2025. - Изменение N 3
6.17 На местах обслуживания инвалидов допускается предусматривать розетки для зарядки индивидуальных средств реабилитации, дополнительное освещение.
6.18 Специализированные средства информации для МГН должны решаться в соподчинении с основной дизайнерской концепцией интерьера.
Предприятия бытового обслуживания
6.19 Если предприятия бытового обслуживания (приемные пункты, дома мод, ателье, мастерские, парикмахерские, предприятия стирки, химчистки и т.д.) не включены в систему целевого оказания услуги на дому, то для нужд маломобильных групп населения следует проектировать (приспосабливать для использования) помещения для посетителей в зданиях предприятий приближенного бытового обслуживания и комплексы бытового обслуживания, включающие широкий перечень услуг, а также пункты проката предметов домашнего быта.
Планировка кабины для переодевания, примерочной и т.п. зон и помещений, должны иметь свободное пространство размерами не менее 1,5 x 1,5 м.
6.20 Предприятия бытового обслуживания допускается размещать во встроенных и встроенно-пристроенных помещениях первых этажей жилых зданий.
Здания и сооружения вокзалов пассажирского транспорта
6.21 Допускается устраивать как грузовые подъемники, так и лифты для маломобильных пассажиров грузоподъемностью 600 кг и более для размещения инвалида с сопровождающим и его багажа. Необходимо предусмотреть размещение не менее одной кабины лифта, размеры которой должны обеспечить размещение больного на носилках скорой медицинской помощи с санитарами.
6.22 В зонах интенсивного пешеходного движения допускается предусматривать изолированную полосу параллельного движения (при входах в здание, выходах на перроны или посадочные платформы, в сложных транспортных узлах - выходах из метро, входах со стороны остановок наземного городского транспорта и т.п.). Размещение тактильных наземных указателей (ТНУ) следует предусматривать согласно СП 59.13330, ГОСТ Р 52875.
6.23 Доступные пути движения к зонам для МГН в залах ожидания следует обозначать информационными указателями.
Не менее одного киоска, торгового автомата и др. должны быть доступны для инвалидов. Доступные для инвалидов места и устройства обозначают знаком доступности. Знаки и надписи следует выполнять и располагать идентично по всему зданию. Регистрацию билетов и оформление багажа для МГН без сопровождения следует проводить за стойкой высотой от уровня пола не более 0,85 м. Стойки для заполнения деклараций в аэропортах международных авиалиний должны быть доступны для инвалидов на креслах-колясках по расположению поверхности обслуживания.
6.24 Зоны ожидания и отдыха следует размещать на основном этаже, в одном уровне с входом в здание вокзала и выходами к платформам (перронам, причалам) при обеспечении освещенных, безопасных и коротких переходов между ними.
Места в зоне ожидания и отдыха следует оборудовать средствами информации и связи: системами обеспечения разборчивости звуковой информации, информационными табло и звуковыми объявлениями; вызывными устройствами или средствами связи с персоналом, доступные тактильному восприятию.
Габариты зон отдыха следует проектировать согласно СП 59.13330, увеличивая глубину не менее, чем на 30%.
В зонах ожидания и отдыха необходимо предусматривать места для зарядки индивидуальных средств связи.
Места для зарядки средств индивидуальной мобильности с электрическим приводом следует предусматривать с соблюдением требований СП 1.13130, СП 3.13130, СП 59.13330.
6.25 Универсальные и доступные кабины санузлов, комнату матери и ребенка следует располагать в непосредственной близости от зоны ожидания и отдыха для МГН.
6.26 Зону ожидания и отдыха, если отсутствуют ведомственные нормы проектирования, следует предусматривать из расчета 5% общего числа мест для сидения в залах ожидания.
Вблизи зоны ожидания и отдыха следует предусматривать также площадь для хранения штатных кресел-колясок и место дежурного по залу или устройство связи с ним.
6.27 В зонах входа-выхода, ожидания и отдыха пассажиров следует обеспечивать условия для визуального и акустического восприятия систем информационного обеспечения пассажиров: табло с расписанием движения транспорта, систем оповещения, обеспечения разборчивости звуковой информации, радиоинформирования и навигации.
6.28 Для оборудования зоны отдыха и ожидания следует предусматривать трансформируемое оборудование (кресла с откидными спинками для сна, откидные столики для чтения и приема пищи, оборудованные местной подсветкой).
6.29, 6.30 Исключены с 27.01.2025. - Изменение N 3
6.31 На открытых стоянках автомобилей у вокзалов следует выделять места для личного автотранспорта инвалидов согласно СП 59.13330.
При размещении парковочных мест на стоянках автомобилей следует предусматривать места для хранения (стоянки) электромобилей, оборудованные зарядными устройствами, в соответствии с требованиями СП 113.13330. Расчетную потребность парковочных мест, оборудованных зарядными устройствами, следует устанавливать в соответствии с заданием на проектирование, но не менее установленных СП 118.13330.
6.32 В автоматических камерах хранения не менее 3% мест, расположенных в нижнем ряду, должны резервироваться и приспосабливаться для пассажиров-инвалидов.
6.33 Не менее 5% окон и прилавков (но не менее одного) операционных помещений (касс, камер хранения, справочных служб, автоматов продаж и т.д.) необходимо размещать на высоте 0,80 - 0,85 м. Перед зоной обслуживания должно быть предусмотрено достаточное пространство для маневрирования кресел-колясок диаметром не менее 1,4 м.
6.34 При расчете ширины перронов следует учитывать возможность параллельного движения инвалидов на креслах-колясках и багажных тележек по объездам выходов из тоннелей, опор навесов и осветительных мачт.
6.35 На перронах вдоль краев платформы следует применять тактильные предупредительные полосы контрастного цвета с поверхностью платформы в соответствии с ГОСТ 12.4.026, а также тактильные предупредительные полосы в соответствии с ГОСТ Р 52875 - для пассажиров с нарушением зрения.
На перронах необходимо предусматривать возможность дублирования визуальной и звуковой информации, в том числе о расположении вагонов.
Низкие железнодорожные платформы должны быть приспособлены для использования стационарных или передвижных подъемников для посадки/высадки инвалидов.
При реконструкции или модернизации существующие станции со среднегодовым суточным пассажиропотоком 1000 пассажиров и менее допускается не устанавливать подъемники или рампы, если на станции в пределах 50 км на той же линии есть станция, полностью обеспечивающая доступность для инвалидов.
При этом проект станции должен предусматривать возможность установки подъемников и/или рамп в будущем, чтобы обеспечить доступность станции для инвалидов.
6.36 В аэровокзалах доступность перронов вылета/прибытия для МГН следует обеспечивать, принимая ширину выхода не менее 1,2 м.
В аэровокзалах в посадочных галереях с продольным уклоном более 5% с уровня второго этажа через каждые 10 м следует предусматривать горизонтальные площадки для отдыха размером не менее 1,5 x 1,5 м.
При посадке в самолет с уровня земли для подъема или спуска (высадки) МГН следует предусматривать подъемное устройство.
6.37 На вокзалах и аэровокзалах следует предусматривать помещение для службы сопровождения и помощи инвалидам и другим маломобильным пассажирам, а также зону хранения малогабаритных колясок, используемых для обслуживания инвалидов при прохождении регистрации, контроля, досмотра и перемещения по проходу салона самолета.
6.38 В автовокзалах перроны следует оборудовать стационарными или передвижными подъемными устройствами для посадки/высадки инвалидов из автобусов, не оборудованных подобными средствами.
6.39 Исключен с 27.01.2025. - Изменение N 3
7 Объекты физкультурного, спортивного и досугового назначения
7.1 Абзац исключен с 27.01.2025. - Изменение N 3
На физкультурно-спортивных сооружениях общегородского уровня при числе инвалидов среди населения более 2,5 тыс. чел. допускается строительство специальных спортивных залов для инвалидов, если иное не определено генпланом развития города.
Специализированные спортивные сооружения только для спортсменов паралимпийцев и сурдлимпийцев - центры "инваспорта", тренировочные спортивные сооружения для спорта высоких достижений в данном документе не рассматриваются.
7.2 Абзац исключен с 27.01.2025. - Изменение N 3
Открытые и крытые физкультурно-спортивные сооружения с учетом доступности для инвалидов делятся на 2 группы:
сооружения, которые не требуют специального приспособления (сооружения для фехтования, стрельбы из лука и пневматического оружия);
сооружения общего пользования, которые следует приспособить для занятий инвалидов на основании выполнения целого ряда требований и дополнительного оборудования (залы, бассейны, площадки для физкультурно-спортивных занятий). Полный набор сооружений и зон для занятий инвалидов должен соответствовать Всероссийскому реестру видов спорта.
В данном разделе рассматривается только вторая группа сооружений.
Основная часть требований данного раздела относится к учету специфики таких категорий занимающихся, как инвалиды с поражением опорно-двигательного аппарата, так и ограничением зрения.
7.3 Для физкультурно-спортивных сооружений в основном предпочтительны решения с устройством общих путей движения и мест обслуживания и проведения занятий для посетителей. При наличии специализированных залов в составе сооружений общего пользования возможны решения с устройством параллельных путей движения и мест обслуживания инвалидов.
Полный набор специализированного спортивного оборудования, параметры помещений и зон для соревнований и дополнительные требования для удобства занятий МГН следует включать в утверждаемое техническое (или технологическое) задание.
На спортивно-физкультурных объектах необходимо обеспечить наличие зон для выгула собак-проводников и других служебных собак. Зону для выгула следует размещать в тихом, защищенном от ветра месте на расстоянии не более 300 м от входа в здание, габаритами не менее 3 x 4 м, со стационарным просматриваемым металлическим решетчатым ограждением высотой не менее 2 м (толщина прута не менее 0,003 м, площадь ячейки не более 0,01 м2). Ограждение должно быть углублено в землю или иметь ленточный фундамент. В ограждении должна быть устроена калитка, открывающаяся вовнутрь и оборудованная ручкой внутри и снаружи, устройством для запирания, допускающим свободное его открывание с обеих сторон, а также порогом высотой 0,15 м.
Место для выгула может иметь натуральное покрытие - газон, гравийный или гранитный щебень (размер фракции 20/40 мм).
Требования к месту для отдыха или ожидания собаки-проводника приведены в 5.16.
Участок и функциональное зонирование
7.4 Спортивно-зрелищные залы в целях доступа МГН следует располагать в центральных зонах городских населенных пунктов на участках со спокойным рельефом, обеспеченных транспортными связями. Участок стадиона следует удалять от источников шума и загрязнения воздуха. Допускается проектирование на территории, позволяющей размещать трибуны на естественных откосах, а спортивные площадки и поля, пешеходные пути - на ровных участках.
7.5 Обслуживающие помещения для занимающихся, включая МГН, следует располагать в специальных павильонах или под трибунами, при этом их удаление от мест оказания физкультурно-оздоровительных услуг или проведения учебно-тренировочных мероприятий не должно превышать 150 м.
Учебно-тренировочные физкультурно-спортивные сооружения
Открытые плоскостные сооружения
7.6 При проектировании открытых плоскостных спортивных сооружений следует предусматривать зону безопасности шириной 3,0 м во всех направлениях от его границ, свободную от всякого рода препятствий. Покрытие зон безопасности должно быть однородно с покрытием спортивной площадки.
7.7 Отдельные площадки и открытые плавательные бассейны допускается окружать полосами кустарниковых насаждений (за исключением колючих и ядовитых кустарников). Размещение, окраска и габариты зеленых насаждений должны способствовать получению дополнительной информации инвалидами с нарушением зрения.
7.8 По периметру полей и групп площадок допускается предусматривать ветро- и пылезащитные полосы, озеленение, обваловку площадок, акустические экраны.
Минимальную ширину шумозащитной полосы с 2 - 3 рядами деревьев и плотным кустарником принимают не менее 10 м, при снижении интенсивности шума на 1,2 - 1,8 дБ каждым рядом. При этом высота деревьев должна быть не менее 5 - 7 м.
Крытые спортивные сооружения
7.9 Исключен с 27.01.2025. - Изменение N 3
7.10 При расстановке оборудования в тренажерных залах необходимо предусматривать место для проезда людей на кресле-коляске. Размеры и варианты использования МГН крытых спортивных сооружений массового типа приведены в [1].
7.11, 7.12 Исключены с 27.01.2025. - Изменение N 3
7.13 Вдоль стен зала у ванн бассейна, доступного для МГН, и на входах в зал из помещений для переодевания и душевых допускается устанавливать горизонтальные поручни на высоте от пола 0,7 - 0,9 м ± 0,03 м.
7.14 Необходимо наличие доступных раздевальных в следующих помещениях: медпункты/помещения для оказания первой медицинской помощи, комнаты для тренеров, судей, официальных лиц. Для этих помещений допускается наличие одной доступной универсальной раздевальной, рассчитанной на лиц обоего пола и оборудованной туалетом.
7.15, 7.16 Исключены с 27.01.2025. - Изменение N 3
Демонстрационные спортивные сооружения
7.17 Демонстрационные спортивные сооружения, функционирующие в учебно-тренировочном режиме более 60% времени, допускается рассчитывать на совместное использование МГН и остальными посетителями. Следует рассматривать их как один из элементов единой системы физкультурно-спортивных сооружений.
7.18 Все основные и дополнительные элементы объекта спорта должны быть доступны для МГН.
Если на трибунах предусматривается звуковая информация, то она должна дублироваться текстовой информацией.
По заданию на проектирование предусматривают размещение оборудования для скрытого прямого или автоматизированного тифлокомментирования. Рабочее место тифлокомментатора обустраивают в соответствии с ГОСТ Р 59813.
7.19 Исключен с 27.01.2025. - Изменение N 3
7.20 Число мест для МГН на трибунах и их расположение следует проектировать в соответствии с требованиями СП 59.13330.
8 Здания и помещения зрелищного и культурно-просветительного назначения
Библиотеки
8.1 На участке библиотек допускается предусматривать озелененные территории, включающие площадки, которые необходимо оборудовать скамьями для чтения, навесами, перголами и другими малыми архитектурными формами для чтения на открытом воздухе.
Зону для чтения на открытом воздухе следует организовывать в стороне от улиц с транспортным движением.
8.2 В основу функционально-планировочного решения библиотек допускается закладывать принцип совместного обслуживания всех категорий инвалидов, не выделяя специализированные помещения для какой-либо одной группы.
8.3 Помещения читальных залов библиотек следует располагать, как правило, в одном уровне, многоуровневое расположение допускается только для крупных библиотек.
8.4 В универсальных научно-технических библиотеках (областных и республиканских) следует предусматривать возможность получения в единой зоне всего необходимого инвалиду объема информационных услуг - организацию автоматизированной системы каталога, отражающего фонды библиотеки, получение необходимых справочно-библиографических данных на компьютере, размещение изданий в специальных форматах, в том числе рельефно-точечным шрифтом Брайля для слепых и слабовидящих.
8.5 Вспомогательные помещения обслуживания следует проектировать с учетом требований СП 136.13330, блок помещений, включающий кружковые комнаты и лекционные залы - аудитории, - в соответствии с требованиями раздела "Культурно-просветительские учреждения".
8.6 Библиотечное обслуживание инвалидов следует осуществлять во всех типах библиотек. В зависимости от местных условий и принятого функционально-планировочного решения в библиотечной системе предусматривают организации обслуживания населения:
Вариант "А" - обслуживания всех категорий посетителей во всех помещениях читательского блока;
Вариант "Б" - обслуживания инвалидов в специально оборудованных отделах обычных библиотек, с выделением самостоятельных путей движения и зон обслуживания.
8.7 Площади помещений функциональных подразделений (зоны аванзала, зоны читального зала, зоны хранения открытого фонда и абонемента) определяют как сумму площадей, занимаемых рабочими местами сотрудников-методистов, набором необходимых функционально-технологических элементов, рассчитанных на мобильных читателей и инвалидов (в том числе стеллажами выставки новых поступлений, каталожными шкафами с местами для работы, кафедрами выдачи литературы с подсобными фондами закрытого хранения) из расчета - 8 м2 на 1 читателя-инвалида.
8.8 Количество читательских мест, специально оборудованных и предназначенных для библиотечного обслуживания инвалидов всех категорий, следует определять на базе предпроектных исследований по расчету для каждого функционального подразделения. В любом случае оно должно составлять не менее 5% от общего числа читательских мест в библиотеках Централизованной библиотечной сети, в том числе для обслуживания инвалидов в креслах-колясках - не менее 4 специальных мест.
В читальных залах и в зонах читальных залов места, отведенные для инвалидов, размещают в непосредственной близости к кафедрам выдачи литературы или рядом с местом дежурного библиотекаря.
8.9 В отделениях городских библиотек для единиц хранения (книг шрифтом Брайля, крупношрифтовых книг, говорящих книг в специальном формате LKF и аудиозаписей) для читателей с нарушением зрения допускается выделять помещения общей площадью 32 м2.
8.10 Для обслуживания читателей - инвалидов по зрению, пользующихся специализированным книжным фондом, следует либо предусматривать специализированный отдел, либо выделять часть читального зала с оборудованными компьютерными рабочими местами для инвалидов по зрению по ГОСТ Р 51645 с возможностью размещения тифлотехнических средств и секретаря-чтеца.
Допускается предусматривать места размещения пунктов выдачи изданий в специальных форматах.
8.11 Зону для работы инвалидов в читальных залах оборудуют следующим образом: четыре читательских места за одноместными столами пригодны для работы инвалидов на колясках, специальные стеллажи с наклонными полками для размещения как обычной литературы, так и книг со шрифтом Брайля (не менее двух стеллажей вблизи читательских мест). В зоне должны находиться несколько банкеток, кресел или стульев.
8.12 Необходимо предусмотреть отдельное помещение для функционального подразделения, где используются аудиовизуальные средства обслуживания. Для читателей с нарушением слуха помещения аудиовизуального обслуживания и помещения для групповой работы - кружковая и аудитория - должны быть изолированы планировочно, а также техническими средствами.
8.13 Исключен с 27.01.2025. - Изменение N 3
8.14 Помещение должно быть радиофицировано, оборудовано доступом в Интернет посредством Wi-Fi, аппаратурой для прослушивания музыки, креслами и, при необходимости, столами. Ряд кресел следует оборудовать специальным устройством для снятия мышечного напряжения с рук для инвалидов с полной потерей зрения.
Музеи и выставки
8.15 Все виды музеев должны быть доступны для всех категорий посетителей, включая инвалидов. Требования по доступности относятся как к планировке участка, так и здания с экспозицией.
8.16 Первый, второй абзацы исключены с 27.01.2025. - Изменение N 3
Пандусы допускается использовать для организации последовательного движения и одновременного осмотра экспозиции.
8.17 Следует обеспечить беспрепятственный доступ всех категорий посетителей в экспозиционную зону участка, которая является продолжением постоянной экспозиции здания под открытым небом: скульптур, архитектурных фрагментов, крупногабаритных экспонатов и т.д.
При наличии резких перепадов рельефа, ценных зеленых насаждений на участке возможно выделение только отдельной зоны, доступной для инвалидов.
8.18 Для посетителей-инвалидов следует обеспечивать доступность основных функциональных блоков музеев в соответствии с таблицей 8.1.
Таблица 8.1
|
Функция |
Место |
Доступность для инвалидов |
|
Содержание экспонатов: | ||
|
Показ |
Экспозиционные и выставочные залы |
Для всех групп |
|
Сбор и хранение |
Фондохранилища и реставрационные мастерские |
В исключительных случаях |
|
Изучение |
Рабочие комнаты |
Необходимо оборудование специальных комнат |
|
Обслуживание посетителей: | ||
|
Прием |
Вестибюль, кинолекционный зал, кружковые комнаты |
Для всех групп |
|
Показ |
Экспозиционные и выставочные залы |
Для всех групп |
|
Информация |
Информационные службы, библиотека |
Для всех групп (с использованием специального оборудования) |
При невозможности использовать визуальную информацию для инвалидов по зрению в помещениях с особыми требованиями к художественному решению интерьеров, в экспозиционных залах художественных музеев, выставок и т.п. допускается применять иные компенсирующие мероприятия.
8.19 В зонах с постоянной экспозицией навесная витрина должна находиться на высоте, доступной для визуального восприятия с кресла-коляски (низ на отметке не более 0,85 м от уровня пола).
8.20 Исключен с 27.01.2025. - Изменение N 3
8.21 При необходимости ознакомления с работой реставраторов, с процессом подготовки выставок допускается обеспечить доступность в служебно-реставрационную зону.
Культурно-просветительские учреждения
8.22 Зоны участка, не занятые сооружениями из обязательного перечня, оборудуют разнообразными малыми формами, создающими максимальную функциональную и информативную насыщенность среды: небольшими водными аттракционами, специально оборудованными детскими песочницами и клумбами для занятий любителей садоводства. В спортивную зону участка следует включать доступные игровые площадки развлекательно-оздоровительного характера для активного отдыха инвалидов.
Универсальные детские игровые площадки следует проектировать согласно ГОСТ 34995.
8.23 Исключен с 27.01.2025. - Изменение N 3
8.24 Удельную площадь помещений кружков и универсальных зон на 1 посетителя при смешанном составе участников занятий допускается принимать на 20 - 50% выше наибольшего значения, принимаемого для посетителей без инвалидности, но не менее, м2:
|
В помещениях кружков: | |
|
хорового и универсальных |
2,0 (2,5)* |
|
театрально-драматического, изобразительного искусства, кинофототехнического, домоводства, оркестрового |
3,6 (4,5)* |
|
танцевального, циркового, технического, различных мастерских |
7,2 (9)* |
|
В универсальных помещениях: | |
|
гостиной |
2,2 (2,7)* |
|
зале |
2,0 (2,6)* |
|
рекреациях |
3,8 (4,8)* |
--------------------------------
* В скобках дано оптимальное значение
8.25 Требования к проектированию помещений кружков даны в таблице 8.2.
Таблица 8.2
|
Назначение кружков |
Требования к проектированию |
|
1 Музыкальный кружок - танцевальная студия |
1.1 Оборудование (полки для хранения нот, книг, наушников и др.) должно располагаться на доступной высоте. 1.2 Общее освещение должно быть рассеянным, при возможности включения индивидуального освещения на каждом пюпитре, сетевые розетки для подключения электромузыкальных инструментов должны быть не только на стенах, но и в лючках в полу. 1.3 Оборудование должно быть легко трансформируемым для возможности организации по центру танцевальной зоны. Допускается устройство небольшой эстрады-подиума. 1.4 Танцевальную зону для безопасности устилают съемным мягким покрытием. Размеры студии - не менее 6x6 м. 1.5 В блоке с музыкальным кружком допускается размещать мастерскую по настройке и ремонту музыкальных инструментов, помещения для хранения дисков и аудиокассет. 1.6 Помещение для музыкальных занятий должно иметь параметры и оборудование, позволяющие размещать от одного до четырех инвалидов на креслах-колясках. Оно должно быть с естественным освещением, звукоизоляцией и оборудоваться двойными дверями. 1.7 Оборудование помещений для занятий музыкой (танцами) должно быть приспособлено к использованию его инвалидами: пристенную нотную доску допускается делать откидной, размещение полок для хранения нот, книг, наушников и т.п. - на доступной высоте; розетки подключения к сети - не только внизу стен, но и в различных зонах пола. 1.8 Помещение для занятий музыкой может использоваться как танцевальная студия, для чего оборудуют центральную зону специальными матами для инвалидов с нарушением ОДА без кресел-колясок и небольшой эстрадой с пандусами для обеспечения доступа инвалидов. В общем танцевальном зале для инвалидов может быть оборудована специальная зона. |
|
1.9 Помещение для занятий музыкой допускается размещать в блоке с приспособленной для инвалидов комнатой звукозаписи, мастерской по ремонту и настройке музыкальных инструментов, помещением для хранения аудиокассет, дисков, каталогов | |
|
2 Комната звукозаписи |
2.1 Комната должна быть рассчитана на 2 - 4 чел. и снабжена картотекой со специальной маркировкой для слепых, повторяющейся на компакт-дисках, аудиокассетах и пластинках |
|
3 Мастерские для различных ремесел |
3.1 Мастерские должны быть оборудованы рабочими местами с изменяющейся высотой рабочей поверхности, складирование материалов следует осуществлять в нижних зонах. 3.2 Углы оборудования допускается скруглять, чтобы избежать травматизма. 3.3 При мастерской следует предусматривать гардероб с санузлом, а в самой мастерской - мойки для рук, размещенные на доступной высоте и оборудованные специальными сантехприборами. 3.4 Рабочая зона должна иметь общее рассеянное и дополнительное индивидуальное освещение |
|
4 Изостудия |
4.1 Помещение должно иметь размеры не менее 6,5x6,5 м. 4.2 Расстановка оборудования в помещении должна обеспечить возможность размещения 1 - 3 инвалидов на креслах-колясках в зонах комфортной видимости модели, находящейся на подиуме. 4.3 Необходимо естественное освещение студий |
Помещения для занятий кружков в клубном здании с участием инвалидов проектируют не более чем на 10 - 12 человек, в том числе два-три инвалида на креслах-колясках.
8.26 При проектировании универсального зрительного зала, следует учитывать "активные" мероприятия (вечера, клубные встречи по интересам и т.п.) с участием групп инвалидов на кресле-коляске в качестве действующих лиц или зрителей, предусматривают устройство горизонтального пола от наружной кромки сцены (эстрады) в сторону зала на 6 - 12 м для размещения инвалидов-колясочников, а далее - стационарных зрительских мест с уклоном пола согласно требованию комфортной видимости.
8.27 В пределах доступности для инвалидов - участников выступлений - предусмотреть следующие помещения: артуборные, гримерную, комнату отдыха, санузлы с душевыми.
8.28 Допускается проектирование эстрады типов Э-2 и Э-3 [3], но с увеличением глубины плоского планшета до 9 - 12 м и авансцены - до 2,5 м для возможности участия в программах инвалидов на креслах-колясках.
Для подъема на сцену, кроме лестниц, должен быть предусмотрен пандус или подъемное устройство согласно СП 59.13330.
Допускается устройство трибуны высотой не более 0,85 м и глубиной не менее 0,5 м. Необходимо предусмотреть площадь для размещения рядом сопровождающего.
8.29 В лекционных и других залах необходимо обеспечивать условия для выступлений инвалидов-колясочников, для чего допускается устройство дополнительной трибуны меньшей высоты.
По крайней мере 5% общего числа откидных мест в проходах, но не менее одного должны быть специальными местами, расположенными как можно ближе к выходам из зала.
8.30 Наряду с общей системой звукоусиления следует проектировать систему обеспечения разборчивости звуковой информации на основе индукционного контура или инфракрасного излучения.
8.31 На путях эвакуации зрителей из зала необходимо устраивать вдоль стены опорные поручни на высоте 0,9 м от уровня пола. За 1,5 м от дверного проема или поворота фактура поверхности поручня должна меняться.
8.32 В непосредственной близости от входа в зал (в фойе) следует предусматривать непроходные зоны отдыха и ожидания для инвалидов. Зона на одного человека - 1,2 x 1,8 м; общая площадь зоны должна быть рассчитана не менее чем на двух инвалидов на креслах-колясках.
Не допускается размещение инвалидов на креслах-колясках в зрительных залах на площади существующих проходов и у эвакуационных дверей, не рассчитанных по своим параметрам на их безопасную эвакуацию.
Театры, театры-студии, цирки
8.33 Число мест для инвалидов на креслах-колясках в зрительных залах театров и в клубных зрительных залах следует принимать согласно СП 59.13330.
8.34 Главные входы в театр (цирк, театр-студию) для зрителей следует предусматривать доступными для всех категорий посетителей.
Входы для почетных гостей должны быть доступны для МГН.
8.35 Для инвалидов необходимо делать доступными помещения зрительского комплекса: вестибюль, кассовый вестибюль, гардероб, санузлы, фойе, буфеты, коридоры и кулуары перед зрительным залом.
8.36 Расположение и организацию зрительских мест для маломобильных посетителей в зрительных залах следует принимать согласно СП 59.13330.
8.37 В театрах-студиях, где инвалиды обучаются и являются артистами, необходимо приспособление для них студийных помещений (классов и репетиционных залов).
8.38 В передних и по краям задних рядов зрительных залов допускается предусматривать съемные секции мест, для приспособления, при необходимости, для зрителей на креслах-колясках. На стационарных местах, примыкающих к местам размещения инвалидов, необходимо оборудовать кресла с опускающимися подлокотниками.
Кинотеатры и киноконцертные залы
8.39 Зрительские помещения - вестибюль с кассовым вестибюлем, гостиные, игровые, буфет, гардероб, уборные, а также услуги, предоставляемые в кинотеатрах посетителям, должны быть доступны для инвалидов согласно СП 59.13330.
8.40 Требования к размещению зрительских мест для инвалидов, условиям видимости и особенностям эвакуации аналогичны другим зрительным залам.
8.41 Расчетное число зрительских мест для инвалидов следует принимать согласно СП 59.13330.
8.42 Исключен с 27.01.2025. - Изменение N 3
8.43 При наличии поперечного прохода, ширина которого не менее 1,2 м, а также при возможности въезда коляски на его уровень непосредственно из фойе допускается оборудование мест для инвалидов-колясочников вместо крайних кресел у проходов.
Для инвалидов на костылях и лиц пожилого возраста, при уклоне пандусов свыше 5%, в местах примыкания пандуса к стенам необходимо предусмотреть поручни.
8.44 В крупных киноцентрах, премьерных кинотеатрах, киноконцертных залах допускается места, предназначенные для инвалидов, оборудовать наушниками, связанными с внутренней системой перевода фильмов с иностранных языков. Места для хранения наушников допускается предусматривать в подлокотниках, в спинках кресел впереди сидящих зрителей.
Для людей с ослабленным слухом допускается оборудовать зал индукционной системой.
Для зрителей с нарушением зрения допускается предусматривать размещение оборудования для передачи тифлокомментария на мобильные телефоны зрителей. По заданию на проектирование предусматривают размещение оборудования для скрытого прямого или автоматизированного тифлокомментирования. Рабочее место тифлокомментатора обустраивают в соответствии с ГОСТ Р 59813.
8.45 Если зрители во время зрелищного мероприятия остаются в положении сидя для просмотра мероприятия, линии обзора для зрителей на креслах-колясках проходят поверх голов зрителей или между их головами.
8.46 Если зрители во время мероприятия встают, зрители на инвалидных креслах-колясках должны иметь линии обзора поверх их голов.
9 Культовые, ритуальные и мемориальные здания и сооружения
9.1 При проектировании культовых, мемориальных и ритуальных зданий и сооружений следует обеспечивать здания и сооружения, а также их участки для МГН, а в особо оговоренных случаях - с учетом преобладающих видов нарушения здоровья пользователей.
9.2 Требования доступности для всех категорий пользователей необходимо учитывать в следующих видах зданий, сооружений и комплексов:
здания и сооружения для совершения богослужений;
монастыри;
здания, сооружения и комплексы мемориального назначения - монументы, пантеоны;
здания и сооружения для совершения гражданских обрядов - загсы, Дворцы бракосочетаний, регистрации новорожденных, обрядовые (ритуальные) залы;
здания, сооружения и комплексы похоронного назначения - кладбища, Дома траура, залы прощания, крематории, мавзолеи;
здания и сооружения обслуживания, сопутствующего обрядовому действию.
Ширина (фронт) подхода к месту поклонения - не менее 0,9 м.
Участки
9.3 Проектирование участков культовых зданий, сооружений и комплексов, а также мест погребения на них осуществляют по требованиям положений СП 59.13330, СП 136.13330, с учетом конфессиональных, технологических и технических требований организаций-заказчиков и [2], а также действующих санитарно-гигиенических и экологических нормативных документов.
9.4 На участках храмов и монастырей следует предусматривать не менее одной зоны отдыха для лиц с нарушениями здоровья, оборудованной по СП 59.13330.
9.5 Исключен с 27.01.2025. - Изменение N 3
9.6 В зоны движения религиозных процессий и путей подъезда кортежей не должны попадать полосы движения, предназначенные для инвалидов и других маломобильных групп населения, а также места отдыха и ожидания.
9.7 На территориях кладбищ должен быть обеспечен доступ маломобильным группам населения:
к участкам погребений, к колумбариям всех видов;
к зданиям администрации, торговли и бытовым зданиям для посетителей, к общественным туалетам;
к водоразборным устройствам и чашам для полива;
к выставочным участкам;
мемориальным объектам общественного назначения;
к склепам, мавзолеям и пантеонам;
к культовым зданиям и сооружениям;
к крематориям, траурным и поминальным объектам.
9.8 Дороги на участках кладбищ, предназначенные для движения инвалидов на личном транспорте, должны заканчиваться у каждого участка стоянкой для личного транспорта инвалидов.
При размещении парковочных мест на стоянках автомобилей следует предусматривать места для хранения (стоянки) электромобилей, оборудованные зарядными устройствами, в соответствии с требованиями СП 113.13330. Расчетную потребность парковочных мест, оборудованных зарядными устройствами, следует устанавливать в соответствии с заданием на проектирование, но не менее установленных СП 118.13330.
9.9 Следует обеспечить доступность для инвалидов пешеходных путей по территории. Ширина основных пешеходных путей движения должна составлять не менее 2,0 м; ширина пути движения к местам погребений (могилам) не менее 1,2 м.
На путях движения по кладбищам следует, не реже чем через 100 м, предусматривать места отдыха.
9.10 Места отдыха следует предусматривать также около братских могил, коллективных погребений, мест общественного поклонения, открытых колумбариев.
Культовые здания и сооружения
9.11 Архитектурная среда зданий, сооружений и комплексов культового назначения, а также мемориальные объекты должны удовлетворять требованиям доступности для маломобильных посетителей и конфессиональным требованиям, в части мест размещения и оборудования мест поклонения и богослужений.
9.12 К культовым зданиям и сооружениям, среда которых должна быть доступна для маломобильных лиц, относятся:
храмы и другие здания для совершения богослужений;
братские корпуса монастырей;
монастырские и приходские школы;
монастырские больницы;
общественные столовые при храмах и монастырях;
часовни;
сооружения на участках храмов и монастырей, предназначенные для посещения (например, для раздачи святой воды);
усыпальницы;
временные сооружения на участках для освящения.
9.13 При устройстве в культовых зданиях и сооружениях, а также на их участках места омовения следует не менее одного места оборудовать для маломобильных лиц. При этом следует обеспечивать требования доступности к объектам соответствующего назначения, сантехническому оборудованию и мебели.
В исповедальных следует предусмотреть не менее одного места для исповеди инвалидов и маломобильных лиц с учетом пользования средствами реабилитации.
В зоне для богослужений следует выделять места для инвалидов на креслах-колясках.
В культовых зданиях при лечебных заведениях и специализированных интернатах необходимо устройство мест для богослужения и иных зон здания со встроенными техническими средствами реабилитации и трансляции богослужений.
9.14 Следует исключить возможность самопроизвольного сдвига или падения (в том числе от ветра) сосудов, подсвечников, лампад.
9.15 Освещенность путей движения согласно СП 59.13330.
9.16 Требования к объектам культового назначения приведены в [2].
Мемориальные здания и сооружения
9.17 В мемориальных зданиях и сооружениях, к которым относятся монументы, мемориальные павильоны - пантеоны, часовни, мемориальные музеи, следует руководствоваться требованиям СП 59.13330 и СП 136.13330 в части:
устройства входных узлов;
путей движения по зонам, предназначенным для посетителей;
подходов к местам отдыха и дополнительного обслуживания;
применения информационных систем, устройств и средств.
9.18 Пути движения маломобильных посетителей в мемориальных залах и пространствах следует устраивать доступными.
9.19 В пространствах и залах мемориальных зданий и сооружений, предусматривающих длительное пребывание посетителей, следует предусматривать места отдыха и соответствующим образом оборудованные места участников ритуалов для маломобильных посетителей.
9.20 Не допускается применять информационные средства, доступные для инвалидов, но создающие помехи световой и звуковой архитектуре мемориала.
10 Здания объектов по обслуживанию общества и государства
10.1 Необходимо соблюдать требования доступности в здания массовых учреждений и предприятий, содержащие в своем составе операционно-кассовые залы и предназначенные для обслуживания инвалидов и других маломобильных групп населения. К ним относятся многофункциональные центры по предоставлению государственных и муниципальных услуг, банковские (кредитно-финансовые) учреждения и предприятия почтовой связи.
Во всех зданиях, доступных для маломобильных посетителей, следует предусматривать установку системы организованного приема посетителей, состоящую из: аппарата, выдающего талоны с указанием очередности приема; световых табло над дверями соответствующих кабинетов и окошек, указывающих номер очередного посетителя.
Для удобства маломобильных посетителей следует предусматривать также специализированные места индивидуального автотранспорта на автостоянках (временных парковках), места отдыха на участках учреждений и предприятий, санитарные узлы, оборудование которых должно соответствовать требованиям СП 59.13330 и СП 136.13330.
При размещении парковочных мест на стоянках автомобилей следует предусматривать места для хранения (стоянки) электромобилей, оборудованные зарядными устройствами, в соответствии с требованиями СП 113.13330. Расчетную потребность парковочных мест, оборудованных зарядными устройствами, следует устанавливать в соответствии с заданием на проектирование, но не менее установленных СП 118.13330.
Стойка информации в вестибюлях и в зонах специализированного обслуживания инвалидов должна быть хорошо видимой со стороны входа и легко различаться слабовидящими посетителями.
В зданиях учреждений и предприятий, содержащих в своем составе операционно-кассовые залы, предназначенные для обслуживания посетителей, необходимо соблюдать требования беспрепятственной доступности МГН.
Банковские учреждения
10.2 Доступность для маломобильных клиентов (обслуживаемых посетителей) необходимо обеспечивать во всех зонах и помещениях зданий следующих видов:
здания (помещения) кредитных организаций, обслуживающих физических лиц;
здания (помещения) филиалов отделений;
помещения обособленных подразделений (дополнительные офисы, операционные кассы, пункты обмена валюты).
10.3 Учитывая, что высота ограждения участка должна быть 2,5 м, его объемно-пространственное и конструктивное решение должно соответствовать требованиям информативности и удобства для посетителей, изложенным в СП 136.13330, в случае, когда ограждение предусмотрено проектом.
10.4 Число и размещение парковочных мест для клиентов банка на открытой стоянке следует проектировать согласно СП 59.13330.
При размещении парковочных мест на стоянках автомобилей следует предусматривать места для хранения (стоянки) электромобилей, оборудованные зарядными устройствами, в соответствии с требованиями СП 113.13330. Расчетную потребность парковочных мест, оборудованных зарядными устройствами, следует устанавливать в соответствии с заданием на проектирование, но не менее установленных СП 118.13330.
10.5 Входы, в том числе обособленные входы в бюро пропусков и зал самообслуживания, необходимо проектировать универсальными (т.е. учитывающими использование всеми категориями пользователей).
10.6 К помещениям банковских учреждений, в которые допуск клиентов не ограничен по технологическим требованиям, следует относить:
кассовый блок (кассовый зал и депозитарий) коммерческих банков;
клиентская зона (зона банкоматов "24/7", операционный зал, кассы) кредитных организаций, обслуживающих физических лиц;
вспомогательные и обслуживающие помещения (комнаты переговоров с клиентами и оформления кредита, вестибюль, аванвестибюль, бюро пропусков).
Кроме операционно-кассового зала в зону посетительской доступности предприятий следует включать:
вход с тамбуром (универсального типа - для всех групп посетителей);
пункт обмена валюты и киоски продаж (при наличии).
10.7 Исключен с 27.01.2025. - Изменение N 3
10.8 Требования к проектированию офисных помещений, а также к помещениям оформления кредита и комнатам переговоров с клиентами аналогичны требованиям к учреждениям управления.
10.9 Площади вестибюля (включая доконтрольную зону), гардероба и камеры хранения ручной клади коммерческих банков следует определять исходя из количества единовременно находящихся в здании клиентов с обязательным учетом возможного их сопровождения (инвалидов и маломобильных посетителей). Процент маломобильных посетителей от общего числа клиентов определяется заданием на проектирование.
При проектировании бюро пропусков автономной группой помещений зона ожидания должна включать в расчете на каждое рабочее место не менее двух стационарных мест сидения (возможно откидных) и резервную площадку для возможного размещения кресла-коляски (вне коммуникационной зоны).
При вестибюле банка допускается предусматривать универсальную кабинку для клиентов МГН.
10.10 Исключен с 27.01.2025. - Изменение N 3
Предприятия почтовой связи
10.11 Доступность зданий для массового обслуживания посетителей, в том числе инвалидов и других маломобильных групп, следует обеспечивать в:
почтамтах (центральных предприятиях города или района, обеспечивающих клиентуре также услуги телеграфной и междугородней телефонной связи);
узлах и отделениях связи, в том числе автоматизированных (городских, районных, сельских).
Кроме зданий перечисленных учреждений, требованиям доступности должны отвечать также операционные залы телефонных узлов (проводной и сотовой связи), осуществляющих обслуживание индивидуальных пользователей. В операционных залах должны быть предусмотрены кабины с установленными специальными средствами связи для инвалидов по слуху.
10.12 Исключен с 27.01.2025. - Изменение N 3
10.13 Кроме операционно-кассового зала, в зону посетительской доступности предприятий допускается включать:
вход с тамбуром (универсального типа - для всех групп посетителей);
добарьерную (посетительскую) часть отдела доставки, совмещенную при необходимости с зоной индивидуального хранения подписных изданий и корреспонденции;
пункт обмена валюты и киоски продаж (при наличии).
10.14 Допускается устройство контролируемого входа посетителей в служебное помещение (начальника предприятия, цеха или участка) при соответствующем обосновании.
10.15 Отдел посылок, совмещенный с отделом продажи посылочной тары, допускается проектировать обособленным от операционного зала и со входом с улицы.
Здания учреждений управления
10.16 Следует проектировать доступными для инвалидов все виды и типы зданий и помещений учреждений и организаций, связанных с приемом (обслуживанием) населения и размещаемых в зданиях с кабинетно-офисной структурой. К ним относятся:
административные организации - комитеты, управления, департаменты и их подразделения, в том числе органы социальной защиты населения, управления защиты прав потребителя, а также префектуры, муниципалитеты и т.п.;
судебно-правовые учреждения - юридические бюро и консультации, адвокатские коллегии, нотариальные конторы, страховые фирмы и фонды;
коммунальные (службы (ГУИС, управляющие компании и т.д.);
налоговые инспекции и управления и отделы виз и регистраций (УФМС);
организации по трудоустройству - федеральные службы, управления и центры занятости, агентства по трудоустройству;
многофункциональные центры государственных услуг.
10.17 Общими требованиями к доступности основных групп помещений, где происходит прием маломобильных посетителей, являются:
предпочтительное размещение их в уровне входа;
обязательное наличие справочно-информационной службы; возможное совмещение справочно-информационной службы и кабинета дежурного приема;
при наличии помещений коллективного использования (конференц-залов, залов совещаний и т.п.) желательно их размещение не выше второго уровня (этажа).
В приспосабливаемых зданиях учреждений, где осуществляется прием населения, допускается выделение части помещений, зон или мест для специализированного обслуживания маломобильных категорий посетителей с учетом возможного их сопровождения (в т.ч. инвалидов на креслах-колясках, по зрению).
10.18 Зону (помещение) справочно-информационной службы следует размещать в непосредственной и удобной близости от входа в здание. При ее островном размещении в вестибюле допускается предусматривать периметральную зону (полосу) безопасности шириной не менее 1,5 м, отделяющую от основного пути движения.
10.19 Кабинет дежурного приема размещается в уровне входа с непосредственным примыканием к вестибюлю совместно с зоной отдыха и ожидания. Допускается выделение объекта архитектурно-дизайнерскими средствами, облегчающими его поиск. Кабинет оснащается информационными средствами, гарантирующими полный объем информации о видах и форме услуг, режиме работы и размещении мест обслуживания. Следует также оснастить кабинет специальными средствами для общения с посетителями с частичной или полной потерей слуха и посетителями с частичной или полной потерей зрения.
10.20 Помещения зданий администраций и управлений: приемные, залы заседаний, конференц-залы, вестибюли и т.п., следует оборудовать индукционной системой.
Здания и помещения органов социальной защиты населения
10.21 В зданиях органов социальной защиты, кроме помещений общего назначения, необходимо обеспечивать доступность для маломобильных посетителей в следующие помещения:
кабинет справочно-информационной службы;
кабинеты начальников (кабинет дежурного приема);
кабинеты сотрудников, ведущих прием посетителей в отделах выплат и социально-бытового обслуживания;
медицинский кабинет (при наличии);
кабинет юриста (при наличии);
в зданиях ПФР помещения для индивидуальной работы с клиентами.
Здания органов социальной защиты должны быть обеспечены системами вывода оперативной информации (табло с бегущей строкой, плазменные экраны), визуальной информацией повышенной четкости с дублированием ее тактильной, системами звукового оповещения.
Здания и помещения судебно-правовых учреждений
10.22 В группе судебных, юридических учреждений и прокуратур требования доступности распространяются на юридические консультации и нотариальные конторы (как учреждения открытого доступа) и залы заседания в судах (не менее одного).
Минимальный размер площади помещения (кабинета или кабины) для индивидуального приема (на одно рабочее место) допускается принимать 12 м2.
10.23 Здания судов и прокуратур допускается оборудовать индукционными системами для слабослышащих, соблюдая требования СП 59.13330 и СП 136.13330.
Здания и помещения коммунальных служб
10.24 Основными видами организаций, осуществляющих управление, эксплуатацию и ремонт жилого фонда, а также являющихся объектами возможного посещения маломобильными категориями обслуживаемых жителей, являются: коммунальные службы, службы энерго-, газообеспечения, телефонной, радиотелефонной (сотовой) и кабельной связи частного обслуживания. Специфической особенностью помещений и зданий данных учреждений является наличие помещений коллективного приема (т.е. возможного единовременного индивидуального обслуживания на нескольких рабочих местах).
10.25 При наличии операционных залов в зданиях коммунальных служб, а также налоговых инспекций, учреждений страхования и трудоустройства, муниципалитетах, префектурах требования к ним принимаются в соответствии с разделом 10.
10.26 В случае продольного (вдоль светового фронта) решения блока помещений, состоящего из двух кабинетов, к примеру, руководителей учреждения, разделенных общей приемной, желательно:
симметричное от входа размещение дверей смежных помещений (т.е. прямолинейность сквозного прохода в кабинеты);
отсутствие вспомогательного оборудования и мебели в зоне коммуникационного пути.
10.27 В помещениях приема на несколько мест обслуживания допускается делать доступными для маломобильных посетителей:
одно из мест обслуживания;
несколько мест обслуживания, скомпонованных в общую зону;
целиком посетительскую зону помещения (все места обслуживания).
11 Здания и помещения временного пребывания
11.1 Комнаты длительного отдыха пассажиров, комнаты матери и ребенка в привокзальных гостиницах следует размещать изолированно от основных потоков пассажиров.
В гостиницах, комнатах отдыха для пассажиров следует предусматривать не менее 3% универсальных номеров (но не менее одного для инвалида на кресле-коляске).
11.2 Гостевая автопарковка у зданий гостиниц, мотелей и т.п. с размеченными местами для автомобилей инвалидов должна размещаться и оформляться в соответствии с требованиями СП 59.13330. От стоянки автомобиля до стойки администратора через главный вход в здание гостиницы должен быть предусмотрен безопасный путь движения для МГН. Наличие на пути движения препятствий не допускается.
Для зданий с несколькими входами должна быть предусмотрена информация о главном и других доступных входах, воспринимаемая с автостоянки.
При размещении парковочных мест на стоянках автомобилей следует предусматривать места для хранения (стоянки) электромобилей, оборудованные зарядными устройствами, в соответствии с требованиями СП 113.13330. Расчетную потребность парковочных мест, оборудованных зарядными устройствами, следует устанавливать в соответствии с заданием на проектирование, но не менее установленных СП 118.13330.
11.3 Стойка администратора или ее секция должна быть запроектирована с учетом доступности для гостей на креслах-колясках, с нарушениями слуха и зрения. Необходимо размещение знака доступности на соответствующих секциях.
11.4 Планировочные решения универсальных номеров гостиниц принимаются в соответствии с СП 59.13330, СП 137.13330.
В номерах, оборудованных для МГН, не должно быть порогов. Допускается иметь порог высотой не более 0,014 м.
Планировка номера должна предусматривать, по крайней мере, одно место для полного разворота и изменения направления движения инвалида на кресле-коляске.
Пространство для пересадки инвалида с кресла-коляски (например, на кровать, сиденье у стола, унитаз и т.д.) допускается предусматривать шириной не менее 0,9 м.
11.5 Расположение мебели не должно препятствовать доступу гостя на кресле-коляске к окнам, шторам, а также к панели управления.
Ручки, рычаги, краны и кнопки различных аппаратов, створок окон для проветривания (не менее одной створки), информационные дисплеи и прочие устройства следует размещать на высоте 0,85 - 1,1 м от уровня пола, на расстоянии не менее 0,6 м от боковой стены помещения. Необходимо обеспечить пространство для фронтального и бокового размещения кресла-коляски у таких устройств. Кнопки и другие поверхности нажимного типа должны соответствовать ГОСТ Р 51671.
Номера следует оборудовать мебелью, простой в эксплуатации. Фурнитура должна быть рассчитана на "зацепление" пальцем, а не на захват рукой.
Прикроватные тумбочки, столики должны иметь пространство для ног высотой от пола не менее 0,25 м и глубиной не менее 0,3 м. Другие столы должны иметь свободное пространство для коленей под столешницей высотой не менее 0,75 м и глубиной не менее 0,5 м.
Следует применять кровати высотой 0,45 - 0,50 м от пола с каркасом, имеющим свободное пространство для ног высотой не менее 0,2 м.
11.6 Номер необходимо оборудовать радиотелефоном со съемной трубкой или со шнуром длиной 6,0 м. Он должен располагаться в пределах досягаемости с кровати. Телефон должен быть совместим со слуховым аппаратом и быть снабжен световым индикатором поступления сообщения.
Следует применять телевизоры, снабженные декодерами субтитров, и радиочасы, имеющие широкие дисплеи с высокой контрастностью.
11.7 При наличии в гостинице интернет-кафе оно должно быть доступно всем категориям МГН и предоставлять компьютерные услуги, доступные всем посетителям.
В интернет-кафе должны быть стойки информации и касс высотой 0,85 м и шириной 1,0 м; автоматические камеры хранения на высоте не ниже 0,45 м и не выше 1,2 м; компьютерные столы высотой 0,80 - 0,85 м; сиденья высотой 0,45 - 0,5 м, в том числе с регулируемой высотой и спинкой.
Часть компьютеров должна быть оснащена: программой чтения текста для слепых, увеличением изображения, программой распознания речи для перевода в текст, адаптированной клавиатурой, адаптированной мышью.
12 Общие положения
12.1 Формированием доступной среды является создание беспрепятственного доступа к месту получения услуги (обслуживания) МГН.
12.2 При адаптации существующих территорий земельных участков к потребностям МГН следует создавать пешеходные пути согласно СП 59.13330. При этом габариты разворотных площадок допускается уменьшать в пределах не более чем 5%.
Ширина проходов в ограждениях на территориях земельного участка должна быть в свету не менее 0,9 м.
Установку поручней вдоль путей движения определяют заданием на проектирование.
12.3 На земельном участке общественных зданий на основных путях движения, доступных для МГН, следует предусматривать места отдыха в соответствии с СП 59.13330, учитывая размещение не менее двух инвалидов, использующих индивидуальные средства передвижения. Габариты зоны отдыха определяют по заданию на проектирование, при этом на одного инвалида на кресле-коляске следует предусматривать место для размещения габаритами не менее: глубина 1,2 м, ширина 1,5 м. При проектировании зон отдыха для инвалидов, использующих средства передвижения с электроприводом, глубина должна быть увеличена на 30%. Следует предусматривать размещение скамей для обеспечения зрительного контакта инвалидов - полукруглые или П-образные места для сидения, скамьи вокруг стола и т.п.
12.4 На территории земельного участка общественных зданий указатели и информационные стенды следует размещать на путях движения, доступных для МГН, с обеспечением фронтального подхода к ним на расстояние не менее 0,08 м. Высота размещения и контрастность - согласно требованиям СП 59.13330.
По заданию на проектирование для реализации реабилитационного потенциала территории устраивают реабилитационные дорожки согласно СП 140.13330.
На территории земельного участка общественных зданий, в зонах отдыха, на детских игровых площадках, в видовых точках допускается предусматривать площади для установки стационарных устройств вертикализирующего типа.
12.5 На территориях земельных участков общественных зданий и сооружений, доступных для МГН, допускается предусматривать площадки для выгула собак-проводников. Размещение и габариты площадок согласно 7.3. При стесненных условиях допускается предусматривать зону для выгула собак-проводников.
В общественных зданиях и сооружениях, доступных для МГН, допускается предусматривать помещение или зону для размещения места отдыха/ожидания собаки-проводника, согласно 5.16.
12.6 Расчетное число МГН от расчетного числа посетителей здания принимают согласно СП 136.13330.
12.7 Наружные входные двери проектируют согласно СП 59.13330. В полотнах наружных дверей, доступных для МГН, следует предусматривать смотровые панели, заполненные прозрачным и ударопрочным материалом, нижняя часть которых должна располагаться в пределах от 0,5 до 1,2 м от уровня пола.
Нижнюю часть стеклянных дверных полотен на высоту не менее 0,3 м от уровня пола выполняют противоударной полосой.
Допускается устраивать пороги высотой не более 0,025 м у наружных дверей, доступных для МГН, при этом высота каждого элемента порога не должна превышать 0,014 м с одной стороны двери.
12.8 Прозрачные полотна дверей на входах в здание, а также прозрачные ограждения и перегородки следует выполнять согласно СП 59.13330. Контрастную маркировку следует размещать согласно СП 59.13330, совмещая не менее двух контрастных цветов. Использование красного, зеленого, синего и фиолетового цветов на одной маркировке не допускается.
12.9 В общественных зданиях и сооружениях места зарядки средств передвижения с электроприводом необходимо размещать согласно СП 136.13330.
12.10 При расчете эвакуации МГН следует применять требования СП 1.13130, СП 3.13130, СП 59.13330.
Требования к обозначению и маркировке путей эвакуации приведены в ГОСТ Р 51671, СП 1.13130, СП 145.13330.
Проектирование и оснащение пожаробезопасных зон - согласно СП 1.13130, СП 136.13330. Число и площади пожаробезопасных зон рассчитываются на МГН группы мобильности М4.
12.11 Размещение и габариты санитарно-бытовых помещений проектируют согласно СП 59.13330. Допускается применение дверей на качающихся петлях, если при открывании двери внутрь помещения сохраняется свободное от напольного оборудования и мебели пространство диаметром не менее 1,4 м. Допускается предусматривать пространство для вертикального размещения зеркала шириной не менее 0,5 м, высотой не менее 1,0 м, и подхода к нему. При размещении зеркал с изменяемым углом наклона необходимо предусмотреть зону для подхода к нему с двух сторон.
12.12 В рекреационных зонах следует предусматривать площади для установки стационарных и передвижных устройств вертикализирующего типа.
В коридорах зданий медицинского, физкультурного, спортивного, досугового, образовательного назначений допускается предусматривать настенные опорные поручни на высоте 0,9 и 0,7 м с допуском отклонения по вертикали 0,03 м согласно ГОСТ Р 51261. Пути движения вдоль поручней должны быть свободны на ширину не менее 0,8 м.
12.13 Информационные указатели внутри здания размещают по высоте согласно СП 59.13330. Допускается цветовая индикация указателей по этажам здания.
На стене напротив каждой кабины лифта на высоте 1,5 м должно быть обозначение этажа цифрами высотой не менее 0,1 м, контрастное по отношению к цвету поверхности стены.
12.14 На земельных участках зданий и в зданиях домов-интернатов, геронтологических центров, домов сестринского ухода, медицинских организаций, общеобразовательных и дошкольных образовательных организаций тактильные напольные указатели не предусматривают.
12.15 На земельных участках зданий и в зданиях не следует применять ступени без подступенков на путях движения МГН.
12.16 При устройстве аппарелей на лестницах необходимо выделять их установкой разделительных поручней высотой 0,9 м с отклонением по высоте в пределах согласно СП 59.13330. Необходимо предусмотреть разрыв поручней на промежуточных горизонтальных площадках согласно ГОСТ Р 51261.
По внутренним сторонам наклонных поверхностей аппарелей необходимо предусматривать бортик высотой не менее 0,03 м.
ТНУ перед аппарелями не требуются.
12.17 При оборудовании помещений системой двусторонней связи согласно СП 59.13330.2020 (пункт 6.5.8) ее следует предусматривать в следующих случаях: для инвалидов, использующих для передвижения кресла-коляски и опорные устройства в помещениях: лифт, лифтовые холлы, приспособленные для пожаробезопасных зон, и пожаробезопасные зоны. Доступные кабины (уборных, душевых, ванн и т.п.) и универсальные кабины уборной оборудуют согласно СП 59.13330.2020 (пункт 6.3.6).
Помещение, в которое выводится сигнал от устройства вызова помощи, определяется заданием на проектирование.
12.18 Знаками доступности для инвалидов согласно ГОСТ Р 52131 следует обозначать помещения и зоны, если не все из них доступны.
Приложение А
(рекомендуемое)
Рекомендации по проектированию
Приложение А исключено с 27.01.2025. - Изменение N 3
Приложение Б
(справочное)
Иллюстрации
Приложение Б исключено с 27.01.2025. - Изменение N 3
Приложение В
(справочное)
Планировочные параметры фотолюминесцентной эвакуационной системы
Приложение В исключено с 27.01.2025. - Изменение N 3
Приложение Г
(справочное)
Общий перечень первоочередных мероприятий по обеспечению доступности мгн к образовательному учреждению
Приложение Г исключено с 27.01.2025. - Изменение N 3
Библиография
[1] Рекомендации по проектированию окружающей среды, зданий и сооружений с учетом потребностей инвалидов и других маломобильных групп населения. Выпуски 12, 13. - М., 1997
[2] МДС 31-10.2004 "Рекомендации по планировке и содержанию зданий, сооружений и комплексов похоронного назначения"
[3] РМД 35-14-2012 "Рекомендуемые для повторного применения проектные решения по обеспечению доступности для инвалидов и других маломобильных групп населения образовательных учреждений Санкт-Петербурга, построенных по типовым проектам в 60 - 80 годах XX века", Правительство Санкт-Петербурга. - СПб, 2012
[4] Позиция исключена с 27.01.2025. - Изменение N 3


