ГОСТ Р МЭК 62364-2021 ГИДРАВЛИЧЕСКИЕ МАШИНЫ. РУКОВОДСТВО ПО ПРЕДОТВРАЩЕНИЮ ГИДРОАБРАЗИВНОЙ ЭРОЗИИ В ПОВОРОТНО-ЛОПАСТНЫХ, РАДИАЛЬНО-ОСЕВЫХ И КОВШОВЫХ ТУРБИНАХ
Утв. и введен в действие Приказом Федерального агентства по техническому регулированию и метрологии от 24 ноября 2021 г. N 1551-ст
Hydraulic machines. Guidelines for dealing with hydro-abrasive erosion in rotary-blade, radial-axial and bucket turbines
(IEC 62364:2019, Hydraulic machines – Guidelines for dealing with hydro-abrasive erosion in Kaplan, Francis and Pelton turbines, IDT)
ОКС 27.140
Дата введения - 1 января 2022 года
Введен впервые
Предисловие
1 ПОДГОТОВЛЕН Ассоциацией "Гидроэнергетика России" на основе собственного перевода на русский язык англоязычной версии стандарта, указанного в пункте 4
2 ВНЕСЕН Техническим комитетом по стандартизации ТК 016 "Электроэнергетика"
3 УТВЕРЖДЕН И ВВЕДЕН В ДЕЙСТВИЕ Приказом Федерального агентства по техническому регулированию и метрологии от 24 ноября 2021 г. N 1551-ст
4 Настоящий стандарт идентичен международному стандарту МЭК 62364:2019 "Машины гидравлические. Руководящие указания по рассмотрению гидроабразивной эрозии в турбинах Каплана, Фрэнсиса и Пелтона" (IEC 62364:2019 "Hydraulic machines - Guidelines for dealing with hydro-abrasive erosion in Kaplan, Francis and Pelton turbines", IDT).
Наименование настоящего стандарта изменено относительно указанного международного стандарта для приведения в соответствие с ГОСТ Р 1.5-2012 (пункт 3.5)
5 ВВЕДЕН ВПЕРВЫЕ
Правила применения настоящего стандарта установлены в статье 26 Федерального закона от 29 июня 2015 г. N 162-ФЗ "О стандартизации в Российской Федерации". Информация об изменениях к настоящему стандарту публикуется в ежегодном (по состоянию на 1 января текущего года) информационном указателе "Национальные стандарты", а официальный текст изменений и поправок - в ежемесячном информационном указателе "Национальные стандарты". В случае пересмотра (замены) или отмены настоящего стандарта соответствующее уведомление будет опубликовано в ближайшем выпуске ежемесячного информационного указателя "Национальные стандарты". Соответствующая информация, уведомление и тексты размещаются также в информационной системе общего пользования - на официальном сайте Федерального агентства по техническому регулированию и метрологии в сети Интернет (www.rst.gov.ru)
Введение
Международный стандарт МЭК 62364 подготовлен Техническим комитетом МЭК ТК-4 "Гидравлические турбины". Настоящее второе издание стандарта отменяет и заменяет первое издание МЭК 62364, которое подверглось технической переработке.
Настоящее издание содержит следующие значительные технические изменения относительно первого издания:
a) модифицирована формула расчета TBO для эталонной модели ковшовой турбины;
b) модифицирована формула для расчета интервала отбора проб;
c) существенной модификации подверглась глава по стойким к гидроабразивной эрозии покрытиям;
d) удалено приложение с натурными данными о стойких к гидроабразивной эрозии материалах;
e) добавлена упрощенная оценка гидроабразивной эрозии.
По всему миру увеличивается количество гидроэлектростанций, на которых имеются проблемы, связанные с наличием гидроабразивной эрозии. Для минимизации воздействия этого явления необходим общий подход. Чтобы оценить объем эрозии и ее воздействие на эксплуатацию, следует проводить ее оценку уже в начале стадии планирования. Для этого необходимо знать влияющие параметры и их действие на эрозию. Необходимая для оценки информация включает помимо прочего планируемую конструкцию, параметры воды с частицами, которая будет проходить через турбины, скопление наносов в водохранилище и планирование собственником электростанции будущей эксплуатации, т.е. проведение необходимого ремонта по снижению готовности или максимально допустимому уровню снижения коэффициента полезного действия (далее - КПД).
Оптимальное решение может быть найдено на основании оценки эрозии посредством анализа всех мероприятий относительно инвестиций и таких решающих параметров, как выработка электроэнергии и стоимость технического обслуживания. Часто использование более стойкой к эрозии конструкции вместо выбранной конструкции турбины с наивысшим КПД приводит к получению более высокой прибыли. Такой анализ наилучшим образом выполняется генеральным проектировщиком станции.
Заказчики гидравлических машин должны направлять потенциальным поставщикам свои требования (рекомендации), чтобы на стадии проектирования при конструировании было обращено особое внимание на минимизацию интенсивности и воздействия гидроабразивной эрозии.
По тем вопросам, которые конструктор мог бы решить для увеличения периода использования оборудования перед капитальным ремонтом узлов турбины при их эксплуатации в условиях интенсивной гидроабразивной эрозии, существует ограниченный консенсус и очень мало количественных данных. Это приводит к внесению некоторыми собственниками в свои технические условия требований, которые не могут быть выполнены посредством применения известных методов и материалов.
Настоящий стандарт содержит руководство для:
a) представления собранных с различных гидроэнергетических объектов данных о степени гидроабразивной эрозии для нескольких комбинаций качества воды, режимов эксплуатации, материалов и свойств составных частей;
b) выработки указаний по методам минимизации гидроабразивной эрозии посредством модификаций спроектированной для чистой воды проточной части. Эти указания не включают такие подробности, как форма гидравлических профилей, которые должны определяться для данного объекта экспертами по гидравлическому проектированию;
c) выработки основанных на "опытных данных" указаний по относительной стойкости материалов, применяющихся для решения связанных с гидроабразивной эрозией проблем;
d) выработки указаний по ремонтопригодности материалов с высокой стойкостью к гидроабразивной эрозии и твердых покрытий;
e) выработки указаний по рекомендуемому подходу, который собственники могли бы применить и применили бы для обеспечения того, чтобы технические условия содержали требования, уделяющие особое внимание рассматриваемому аспекту гидравлической конструкции своих объектов без установления критериев, которые не могут быть выполнены из-за того, что соответствующие способы находятся за пределами возможностей производителей;
f) выработки указаний по режиму эксплуатации гидротурбин при наличии в воде наносов для увеличения срока их эксплуатации.
В настоящем стандарте предполагается, что вода на является химически агрессивной. Поскольку химическая агрессивность зависит от большого разнообразия химического состава и примененных в машине материалов, охват этих вопросов находится за пределами области действия настоящего стандарта.
В настоящем стандарте предполагается, что в турбине отсутствует кавитация. Кавитация и гидроабразивная эрозия могут усиливать друг друга таким образом, что результирующая эрозия становится больше, чем суммарная эрозия кавитации и гидроабразивной эрозии. Количественная связь результирующей гидроабразивной эрозии неизвестна, и ее оценка находится за пределами области действия настоящего стандарта, за исключением рекомендации, чтобы на стадии проектирования турбины для минимизации кавитации предпринимались специальные меры.
Переносимые водой большие твердые предметы (например, камни, дерево, лед, металлические объекты и т.д.) могут воздействовать на части турбины и повредить их. Повреждение может в свою очередь увеличить турбулентность потока и вследствие этого ускорить износ из-за кавитационной и гидроабразивной эрозии. Стойкие к гидроабразивной эрозии покрытия также могут быть локально повреждены ударами твердых объектов. Рассмотрение этих вопросов находится за пределами области действия настоящего стандарта.
Настоящий стандарт распространяется на оборудование гидроэлектростанций, на которых уже имеются связанные с гидроабразивной эрозией проблемы (или при проектировании новой гидроэлектростанции предполагается их появление). Некоторые части руководства могут также применяться для прочих гидравлических машин.
2.1 В настоящем стандарте применены следующие термины с соответствующими определениями:
2.2.1 удельная гидравлическая энергия машины E, Дж/кг (specific hydraulic energy of a machine): Располагаемая удельная энергия воды между контрольными сечениями высокого 1 и низкого 2 давления машины.
Примечание - См. МЭК 60192.
2.2.2 ускорение свободного падения g, м/с2 (acceleration due to gravity): Локальное значение ускорения свободного падения в месте испытания.
Примечание - См. МЭК 60192.
2.2.3 напор турбины/насоса H, м (turbine/pump head): Располагаемый напор у границы гидравлической машины.
Примечание - H = E/g.
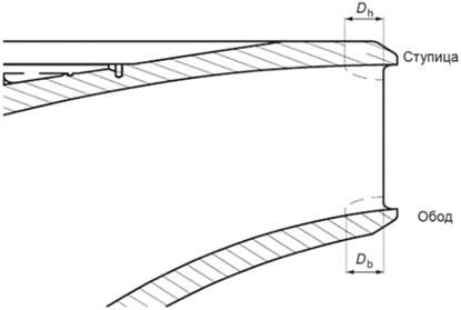
2.2.4 контрольный диаметр D, м (reference diameter of the hydraulic machine): Контрольный диаметр гидравлической машины.
Примечания
1 Для ковшовых турбин это диаметр средней окружности ковшей, для поворотно-лопастной турбины это диаметр камеры рабочего колеса и для радиально-осевой турбины и радиально-осевого насоса это диаметр сечения обода на стороне низкого давления лопастей.
2 См. МЭК 60192.
2.2.5 диаметр втулки Dh, мм (the diameter of runner hub for Kaplan turbines): Диаметр втулки рабочего колеса поворотно-лопастной турбины.
2.2.6 глубина гидроабразивной эрозии S, мм (hydro-abrasive erosion depth): Глубина выемки вынесенного из-за гидроабразивной эрозии материала, измеренная перпендикулярно первоначальной поверхности.
2.2.7 характерная скорость W, м/с (characteristic velocity): Характерная скорость, определенная для каждой части машины и используемая для количественной оценки повреждений из-за гидроабразивной эрозии.
Примечание - См. также определения терминологических статей с 2.2.20 по 2.2.24.
2.2.8 концентрация частиц C, кг/м2 (particle concentration): Масса твердых частиц, отнесенная к объему смеси частиц и воды.
Примечание - В случае если концентрация частиц выражается в частях на миллион (ppm), рекомендуется использовать массу частиц на объем воды, так что 1000 ppm приблизительно соответствует 1 кг/м2.
2.2.9 абразивная нагрузка PL, кг·ч/м2 (particle load): Интеграл по времени от преобразованной концентрации частиц:

Примечания
1 C(t) = 0, если расход воды через турбину отсутствует.
2 Для радиально-осевых турбин при вычислении PL для рабочего колеса и лабиринтных уплотнений C(t) = 0, если агрегат стоит со спиральной камерой под давлением, но C(t) ≠ 0 при вычислении PL для направляющих лопаток и облицовок.
2.2.10 коэффициент крупности Ksize (size factor): Коэффициент, который характеризует, как гидроабразивная эрозия зависит от размера абразивных частиц, и равный медиане размеров частиц dP50 в мм.
2.2.11 коэффициент формы Kshape (shape factor): Коэффициент, который характеризует, как гидроабразивная эрозия зависит от формы абразивных частиц.
Примечание - См. приложение D.
2.2.12 коэффициент твердости Khardness (hardness factor): Коэффициент, который характеризует, как гидроабразивная эрозия зависит от твердости абразивных частиц.
Примечания
1 Для нержавеющей стали 12.r4Ni Khardness соответствует фракции частиц тверже, чем 4,5 по Моосу.
2 Для поверхностей с твердым покрытием: Khardness соответствует фракции частиц тверже, чем 7,0 по Моосу.
2.2.13 коэффициент материала Km (material factor): Коэффициент, который характеризует, как гидроабразивная эрозия зависит от свойств основного материала.
2.2.14 коэффициент обтекания Kf,
(flow factor): Коэффициент, который характеризует, как гидроабразивная эрозия зависит от течения вокруг каждой конструктивной части.
2.2.15 периодичность отбора проб Ts, ч (sampling interval): Интервал времени между двумя отборами проб воды для определения концентрации абразивных частиц.
2.2.16 годовая абразивная нагрузка PLyear, кг·ч/м3 (yearly particle load): Суммарная нагрузка (PL) за 1 год эксплуатации, т.е. PL для T = 8760 ч, рассчитанная в соответствии с 2.2.9.
2.2.17 максимальная абразивная нагрузка PLmax, кг/м2 (maximum particle load): Максимальное значение интегрируемого в PL интеграле в указанном временном интервале, т.е. максимальное значение следующего выражения:
PLmax = C(t) · Ksize(t) · Kshape(t) · Khardness(t).
2.2.18 медианный диаметр частиц dP50, мм (particle median diameter): Медиана диаметров абразивных частиц в пробе, т.е. такой диаметр, когда частицы с меньшим, чем рассматриваемый, размером составляют 50% общей массы частиц в пробе.
2.2.19 угол столкновения (impingement angle), °: Угол между траекторией частицы и поверхностью субстрата.
2.2.20 характерная скорость в направляющем аппарате радиально-осевой и поворотно-лопастной турбины Wgv, м/с (characteristic velocity in Francis/Kaplan guide vanes): Расход через агрегат при наивысшем значении КПД, поделенный на минимальную площадь потока через направляющий аппарат.
Примечание -
.
2.2.21 характерная скорость в сопле ковшовой турбины Winj, м/с (characteristic velocity in Pelton injector): Скорость истечения воды из сопла.
Примечание -
.
2.2.22 характерная скорость в рабочем колесе турбины Wrun, м/с (characteristic velocity in turbine runner): Относительная скорость воды и лопасти рабочего колеса при наивысшем значении КПД.
Примечание - Оценивается по нижеприведенным формулам:
,
u2 = n·π·D,
для радиально-осевого,
для поворотно-лопастного.
2.2.23 характерная скорость в рабочем колесе ковшовой турбины Wrun, м/с (characteristic velocity in Pelton runner): Относительная скорость воды и ковша рабочего колеса.
Примечание -
.
2.2.24 расход Q, м3/с (discharge): Объем воды, проходящий через любое сечение системы в единицу времени.
2.2.25 открытие направляющего аппарата a, мм (guide vane opening): Среднее из наикратчайших расстояний между смежными направляющими лопатками (в конкретном сечении, если необходимо).
Примечание - См. МЭК 60193.
2.2.26 количество лопаток направляющего аппарата z0 (number of guide vanes): Общее количество направляющих лопаток в турбине.
2.2.27 высота дистрибьютора B0 (distributor height): Высота дистрибьютора турбины.
2.2.28 скорость вращения n, 1/с (rotational speed): Число оборотов в единицу времени.
2.2.29 коэффициент быстроходности ns, об/мин (specific speed): Повсеместно используемый коэффициент быстроходности гидравлической машины, рассчитываемый по формуле
,
где P, КВт и H, м, соответствуют расчетной режимной точке.
2.2.30 выходная мощность P, КВт (output): Мощность турбины в расчетной режимной точке.
2.2.31 глубина гидроабразивного износа проектируемого агрегата Starget, мм (hydro-abrasive erosion depth of target unit): Оценка фактической глубины выемки гидроабразивной эрозии из-за удаления металла из конструктивной части проектируемой турбины.
Примечание - Для использования в эталонной модели.
2.2.32 глубина гидроабразивного износа эталонного агрегата Sref, мм (hydro-abrasive erosion depth of reference unit): Глубина выемки гидроабразивной эрозии, из которой был удален металл конструктивной части эталонной турбины.
Примечание - Для использования в эталонной модели.
2.2.33 количество сопел zjet (number of nozzles): Количество сопел ковшовой турбины.
2.2.34 ширина ковша B2, мм (bucket width): Ширина ковшей ковшовой турбины.
2.2.35 количество ковшей z2 (number of buckets): Количество ковшей ковшовой турбины.
2.2.36 межремонтный период проектируемой турбины TBOtarget, ч (time between overhaul for target unit): Промежуток времени между ремонтами проектируемой турбины.
Примечание - Для использования в эталонной модели.
2.2.37 межремонтный период эталонной турбины TBOref, ч (time between overhaul for reference unit): Промежуток времени между ремонтами эталонной турбины.
Примечание - Для использования в эталонной модели.
2.2.38 справочный размер турбины RS, м (turbine reference size): Справочный размер для расчета действия гидроабразивной эрозии, зависящего от кривизны геометрии.
Примечания
1 Для радиально-осевых турбин это контрольный диаметр D (см. 2.2.4).
2 Для ковшовых турбин это внутренний диаметр ковшей B2.
3 Внутренний диаметр ковшей B2 по МЭК 60609-2.
2.2.39 показатель степени размера p (size exponent): Показатель степени при оценке RS, который описывает действие гидроабразивной эрозии в зависимости от размера турбины.
2.2.40 показатель степени α (exponent): Численное значение 0,4-p, которое уравнивает агрегаты по Kf.
Для оценки глубины гидроабразивной эрозии в радиально-осевой турбине может использоваться следующая формула:
S = W3,4 · PL · Km · Kf/RSp, (1)
где W - характерная скорость, определенная в 2.2.20 - 2.2.23. Если подробные данные для вычисления W отсутствуют, то ее оценка может быть сделана на основе рисунка 1,
PL, Km и RS определены в 2.2.9, 2.2.13 и 2.2.38 соответственно,
Kf и p для частей радиально-осевой турбины без покрытий выбирают из нижеприведенной таблицы 1.
Дополнительная информация по обоснованию этой формулы приведена в приложении I. Пример расчета приведен в приложении G.

Примечание - Значения ns и H на этом рисунке соответствуют расчетной режимной точке, тогда как характерные точки приведены для точек, отмеченных в разделе 2.
Рисунок 1 - Оценка характерных скоростей в направляющих лопатках Wgv и рабочего колеса Wrun как функции коэффициента быстроходности
|
Часть |
Kf |
Показатель степени p (для RS) |
|
Направляющие лопатки радиально-осевой турбины |
1,06·10-6 |
0,25 |
|
Облицовки радиально-осевой турбины |
0,86·10-6 |
0,25 |
|
Лабиринтные уплотнения радиально-осевой турбины |
0,38·10-6 |
0,75 |
|
Вход рабочего колеса радиально-осевой турбины |
0,90·10-6 |
0,25 |
|
Выход рабочего колеса радиально-осевой турбины |
0,54·10-6 |
0,75 |
В представленной в настоящем стандарте эталонной модели сравнивается время между капитальными ремонтами (TBO) двух турбин. Для расчета TBO проектируемой турбины должны быть известны TBO одной турбины (называемой здесь эталонной турбиной) и различия во влияющих параметрах по отношению к другой турбине (называемой здесь проектируемой турбиной). Следует отметить, что те же самые критерии ремонта необходимо применять для обеих турбин - проектируемой и эталонной.
Расчет глубины гидроабразивной эрозии S не является целью эталонной модели. Поэтому для глубины отсутствует необходимость в калиброванной модели. Критериями для TBO могут быть относительная величина повреждения, потеря КПД или некоторые другие критерии, которые должны быть одинаковыми для обеих турбин.
Существуют некоторые различия в способах вывода этой формулы для эталонной модели и абсолютной модели:
- так как в эталонной модели не рассчитывается глубина гидроабразивной эрозии отдельных частей, вместо различных констант для различных частей используются константы, действующие для турбины в целом;
- более крупные турбины могут обычно допускать бóльшую глубину гидроабразивной эрозии перед необходимым ремонтом, чем маленькие турбины. По этой причине в эталонной модели показатель степени эталонного размера турбины p выбирают равным 1;
- предполагается, что для ковшовых турбин критическим узлом для ремонта является рабочее колесо. В дополнение к вышеописанным коэффициентам предполагается, что Kf для ковшовых рабочих колес пропорционален количеству сопел и скорости и обратно пропорционален количеству ковшей.
TBO проектируемой турбины может быть рассчитано следующим образом:
TBOtarget/TBOref = Wref3,4/Wtarget3,4 · Km,ref/Km,target · Kf,ref/Kf,target · RStargetp/RSrefp. (2)
В этом равенстве используются следующие значения для отношений:
- для ковшовых турбин:
Kf,ref/Kf,target = zjet,ref · (z2,target/(zjet,target · z2,ref); (3)
- для радиально-осевых и поворотно-лопастных турбин:
Kf,ref/Kf,target = 1. (4)
Показатель степени размера: p = 1.
Точность эталонной модели может уменьшаться, если различия между эталонной и проектируемой турбинами становятся большими.
С применением этой же формулы также может быть изучена чувствительность расчетного значения TBO к вариациям входных переменных. Пример вычислений приведен в приложении H.
В дополнение к приведенным в 3.1 и 3.2 формулам предлагаются другие методы оценки гидроабразивной эрозии, подобные содержащимся в технической литературе [1], [2]. Каждый метод может иметь свои преимущества и недостатки.
В качестве быстрого и легкого практического метода для проведения первоначальной оценки интенсивности эрозии на конкретном объекте рекомендуется оценка следующего выражения, которое графически показано на рисунке 2.

Рисунок 2 - Упрощенная оценка эрозии для первоначальной оценки риска ее появления
Если C·H1,5 ≤ 150, то гидроабразивная эрозия может быть незначительна.
Если 150 < C·H1,5 < 1500, то гидроабразивная эрозия может быть значительна.
Если C·H1,5 ≥ 1500, то гидроабразивная эрозия может быть очень интенсивной.
Конечно, это эмпирическое правило является приблизительным, но оно может помочь принять решение о целесообразности проведения последующего анализа.
Нижеприведенные указания содержат некоторые рекомендуемые методы минимизации гидроабразивной эрозии и ее эффектов посредством модификации конструкции, предназначенной для работы в чистой воде.
Следует понимать, что любой проект гидроэлектростанции является компромиссом между несколькими требованиями. Спроектировать агрегат более стойким к гидроабразивной эрозии возможно, но это может отрицательно повлиять на другие параметры турбины. Некоторыми примерами этого являются:
- более толстые лопасти могут быть причиной пониженного КПД и увеличенного риска вибрации из-за вихрей Кармана;
- меньшее количество лопастей рабочего колеса (для улучшения доступа к поверхностям лопастей при обработке покрытия лопастей термическим напылением) может быть причиной пониженной стойкости к кавитации;
- покрытия против гидроабразивной эрозии могут первоначально вызывать повышенную шероховатость поверхности, которая может понизить КПД. Первоначально увеличенная шероховатость поверхности может быть уменьшена из-за эффекта полировки при работе с водой, содержащей абразивные частицы. Конечно, с течением времени турбина с покрытием будет обеспечивать более высокий КПД по сравнению с турбиной без покрытия;
- уменьшенный выступ лопастей рабочего может привести к ухудшению кавитационных характеристик, что в свою очередь может понизить выходную мощность, которая могла бы быть достигнута при модернизации турбины;
- многие конструктивные решения, применяющиеся для уменьшения воздействия воды с высокой концентрацией частиц, увеличивают общую стоимость здания станции.
Следует с учетом экономического воздействия на общий период эксплуатации электростанции и с учетом конкретных условий рассматривать и выбирать для каждого объекта оптимальную комбинацию конструктивных решений, применяемых для уменьшения воздействия высокой концентрации частиц в воде.
Как общее правило проектирования, подверженная действию воды с абразивом площадь должна быть как можно меньше. Следует избегать разрывов и резких переходов или изменений направления потока.
Важен выбор материалов и возможных покрытий с высокой стойкостью к гидроабразивной эрозии (см. также раздел 6).
Поскольку коррозия увеличивает интенсивность гидроабразивной эрозии, то предпочтителен выбор нержавеющей стали. Предпочтительно использовать свариваемые нержавеющие стали.
В случае если стойкие к гидроабразивной эрозии покрытия первоначально не применялись, рекомендуется провести гидравлическое и механическое проектирование той части конструкции, где такие покрытия легко могут быть применены на более поздней стадии.
Сделанные из алюминиевой бронзы лабиринтные уплотнения имеют, в общем, меньшую стойкость к гидроабразивной эрозии, чем из нержавеющей стали. Существуют также примеры относительно хорошей работы сделанных из алюминиевой бронзы лабиринтных уплотнений.
Если стоимость наплавки облицовки меньше, чем стоимость цельных нержавеющих частей, то вместо цельных нержавеющих деталей могут использоваться наплавки нержавеющей сталью достаточной толщины.
Важно произвести удаление наибольшего количества частиц из проточного тракта еще до того, как они поступят в зону высоких скоростей потока внутри машины.
Для этой цели могут быть очень полезны большие отстойники. Часто из воды может быть удалено очень большое количество частиц. Отрицательной стороной этого решения является то, что резервуары отстойников могут быстро наполняться. В результате этого все больше и больше частиц, а также и большие по размеру частицы достигнут водозабора и будут проходить через турбину. Скопление наносов, даже если оно не может быть совершенно предотвращено, может быть уменьшено различными методами. Среди возможностей это глубокая промывка, а также использование обходного канала/туннеля во время паводка для отвода высоко насыщенной частицами воды мимо отстойника в нижний бьеф гидроэлектростанции. Поддержка активного объема емкости резервуаров является одной из возможностей сохранять затраты на эксплуатацию и ремонт турбины относительно постоянными.
Если большого резервуара в наличии не имеется, то у водозабора могут быть построены ловушки песка (также называемые емкостями/камерами-отстойниками), возможно с предварительными ловушками гравия и другими устройствами для исключения главным образом грубых наносов. По-видимому, при незапретительной стоимости и размере этих сооружений минимальный размер частиц, которые могут быть удалены этими сооружениями, составляет примерно от 0,1 до 0,3 мм. Рассмотрение детальной конструкции камер-отстойников находится за пределами области действия настоящего стандарта.
Также важно, чтобы любые переходные процессы, которые могут происходить на электростанции, не затрагивали песок в ловушках песка или других местах возможного скопления песка, так чтобы он не затягивался в турбину. Поэтому конструкция ловушек песка должна предусматривать возможную работу в переходных режимах.
Даже малое количество больших частиц, таких как камни, может причинить значительный ущерб, так как они, возможно, не смогут пройти через турбину до их разрушения на более маленькие части. Это происходит из-за центробежной силы во вращающейся между рабочим колесом и направляющими лопатками воде. Поэтому важно, чтобы туннели и водоводы были чистыми и производилась уборка при первоначальном пуске и после ремонтных работ. В конце необлицованных туннелей должны быть в наличии камнеуловители, и содержимое их должно периодически удаляться.
В самой проточной части, как правило, из-за низкой скорости редко наблюдается значительная гидроабразивная эрозия, и достаточно применять для защиты обычную покраску стальных конструкций.
4.5.1 Общая часть
В качестве общего правила если ожидается наличие гидроабразивной эрозии, то все места механических возмущений потока подвергаются сильному действию гидроабразивной эрозии. Поэтому поставщику и потребителю следует согласовать выбор между дисковым и шаровым затворами, так как диск дискового затвора постоянно подвержен абразивному действию потока.
Форма корпуса вокруг уплотнения ротора или диска должна быть гладкой, без острых углов и сильных изменений по направлению потока.
В случае нескольких агрегатов на один водовод и при наличии в качестве предтурбинного шарового или дискового затвора предпочтительно в дополнение к рабочему иметь также и ремонтное уплотнение. Это позволит проводить ремонт расположенного ниже по потоку уплотнения, когда другие агрегаты находятся в работе.
Кольцевой затвор является специальным типом затвора, и сходные рассуждения применимы к кольцевому затвору и к главному входному затвору.
4.5.2 Защита (закрытие) зазора между корпусом и цапфой
Особенно подвержена гидроабразивной эрозии область между цапфой и корпусом. Так как переход от цапфы к ротору является одним из наиболее нагруженных участков предтурбинных затворов, то эта область должна быть особенно защищена. Рекомендуются цапфы, выполненные полностью из нержавеющей стали или с нержавеющей наплавкой. Могут быть предложены несколько конструкций; как пример переходы могут быть защищены от прямого действия гидроабразивной эрозии с помощью дополнительного лабиринта (см. рисунок 3).

Рисунок 3 - Пример защиты участка перехода
4.5.3 Стопоры, расположенные снаружи затвора
В условиях гидроабразивной эрозии стопоры, ограничивающие угол поворота ротора, рекомендуется устанавливать вне потока, в сервомоторе или у рычага.
4.5.4 Достаточность перестановочных усилий привода предтурбинного затвора
Как правило, предтурбинные затворы (ротора) открываются или закрываются с приблизительно уравновешенным давлением (например, 100:74., которое устанавливается байпасом или подвижными кольцами уплотнений.
Если наблюдается чрезмерная гидроабразивная эрозия направляющих лопаток, разница давлений при открытии или закрытии предтурбинного затвора может быть больше допустимой или установленной в проектной документации. Поэтому рекомендуется, чтобы конструкция предусматривала большую разницу давлений при открытии и закрытии. Если предтурбинный затвор спроектирован как аварийный затвор, то он может уже иметь способность к открытию при большем перепаде давления.
4.5.5 Увеличение размера байпаса для допущения больших протечек через направляющий аппарат
Как уже упоминалось выше, в 4.5.4, из-за чрезмерной гидроабразивной эрозии направляющих лопаток протечки могут увеличиться до такой степени, что расход воды через байпас предтурбинного затвора будет недостаточен для выравнивания давления на входе затвора и в спиральной камере.
Поэтому в этом случае рекомендуется увеличить пропускную способность системы байпаса.
4.5.6 Конструкция системы байпаса
Рекомендуется использовать систему внешнего байпаса вместо внутреннего.
4.6.1 Общая часть
Данные указания не содержат детали конструкции, такие как форма гидравлических профилей, которые для данного объекта должны определяться экспертами по гидравлическому проектированию.
4.6.2 Гидравлическая конструкция
4.6.2.1 Выбор типа машины
Целесообразно выбирать тот тип машины, который имеет низкую относительную скорость воды, легко обслуживается и может быть оборудован стойкими к гидроабразивной эрозии покрытиями. Имеются следующие некоторые общие указания:
- при выборе между вертикальной поворотно-лопастной и капсульной машинами, поворотно-лопастная будет обычно иметь более низкую относительную скорость (см. рисунок 1). Удобство эксплуатации и легкость нанесения покрытий приблизительно одинаковы для обеих;
- при выборе между поворотно-лопастной и радиально-осевой машинами, радиально-осевая будет обычно иметь более низкую относительную скорость. С другой стороны, поворотно-лопастное рабочее колесо позволяет иметь более легкий доступ для нанесения стойких к гидроабразивной эрозии покрытий. Удобство эксплуатации приблизительно одинаково для обеих;
- при выборе между радиально-осевой и ковшовой машинами, радиально-осевая будет обычно иметь более низкую относительную максимальную скорость, которая приведет к меньшей гидроабразивной эрозии в радиально-осевой турбине. Однако те части в ковшовой турбине, которые подвержены максимальной скорости потока (т.е. острия игл и седла), малы и имеют лучший доступ для нанесения покрытий. Ковшовая турбина также более удобна в эксплуатации.
4.6.2.2 Коэффициент быстроходности
Установленные на одной и той же станции машины с низким коэффициентом быстроходности обычно крупнее и имеют более низкие скорости воды на выходе с рабочего колеса. Однако в направляющих лопатках и на входе в рабочее колесо скорости воды не ниже. Для поворотно-лопастных, капсульных и низконапорных радиально-осевых турбин большинство повреждений из-за гидроабразивной эрозии будет в рабочем колесе, и поэтому важен коэффициент быстроходности. Для высоконапорных радиально-осевых турбин наибольший ущерб от гидроабразивной эрозии будет в направляющем аппарате, так что коэффициент быстроходности не столь важен.
Для ковшовых турбин относительная скорость воды не зависит от коэффициента быстроходности. Однако полезно иметь меньшее количество струй в ковшовой турбине, так как ковши будут больше, что в свою очередь сообщит воде в ковшах меньшее ускорение и таким образом нанесет меньшие повреждения из-за гидроабразивной эрозии. Меньшее количество струй также уменьшает время наполнения каждого ковша водой.
4.6.2.3 Изменяемая скорость
Машины с изменяемой скоростью вращения встречаются не часто, но они менее склонны к кавитации, даже при эксплуатации в широком диапазоне напоров. Благодаря своим характеристикам машина с изменяемой скоростью вращения может лучше сопротивляться гидроабразивной эрозии.
4.6.2.4 Заглубление турбины
Кавитация и гидроабразивная эрозия могут взаимно усиливать друг друга. По этой причине рекомендуется, чтобы для тех станций, где ожидается наличие гидроабразивной эрозии, заглубление турбины было больше.
4.6.2.5 Увеличение площади лопастей рабочего колеса
При модернизации радиально-осевой турбины мощность иногда значительно повышается. Одним из способов является продолжение обода рабочего колеса внутрь конуса отсасывающей трубы для увеличения площади лопастей и таким образом улучшения кавитационных характеристик (см. рисунок 4). Однако это приводит к созданию дополнительной турбулентности у входа в конус отсасывающей трубы, которая при наличии в воде абразивных частиц увеличивает вынос металла. Вторичный эффект увеличенных лопастей заключается в создании зоны низкого давления, расположенной по потоку от уплотнения обода рабочего колеса, из-за которой создаются повышенные протечки через уплотнения и большая гидроабразивная эрозия у уплотнения обода. Если рабочее колесо имеет увеличенную площадь лопастей, эти негативные эффекты всегда присутствуют.

Рисунок 4 - Увеличение площади лопастей рабочего колеса при модернизации
4.6.2.6 Утолщенные лопасти рабочего колеса
Увеличенная толщина лопастей рабочего колеса, в частности на выходной кромке, обеспечивает дополнительный запас по уносу материала и обеспечению структурной целостности рабочего колеса. Следует с осторожностью подходить к проектированию утолщенных лопастей. Утолщенная лопасть может уменьшить КПД турбины и увеличить риск схода вихрей Кармана. Также может увеличиться риск кавитационных повреждений на ободе рабочего колеса, по потоку от лопасти (см. рисунок 4.. В данном контексте можно упомянуть, что стойкие к гидроабразивной эрозии покрытия могут служить способом проектирования тонких профилей с незначительным увеличением толщины только из-за покрытия.
4.6.2.7 Увеличенный выступ направляющих лопаток
Если существует увеличенный выступ направляющих лопаток к рабочему колесу, то область за направляющей лопаткой будет испытывать высокую турбулентность, циркуляцию, и в этой области может наблюдаться значительная гидроабразивная эрозия. Высокая турбулентность может также повлиять на вход в рабочее колесо у обода. Рекомендуется обеспечивать наименьший возможный выступ направляющих лопаток.
4.6.3 Механическая конструкция
4.6.3.1 Общая часть
Если определен тип турбины и ожидается появление гидроабразивной эрозии, то не только гидравлическая конструкция, но также и механическая может предусматривать некоторые упреждающие меры для уменьшения степени гидроабразивной эрозии и для обеспечения легкого доступа при ремонте и замене изношенных частей. Некоторые меры приводятся в данном пункте.

Рисунок 5 - Пример кавитации на ободе рабочего колеса из-за утолщенных лопастей
Если предполагается применить специальное покрытие, то конструкция тех частей, на которые оно наносится, должна позволять его нанесение.
Последующие пункты разделены на непосредственные меры по уменьшению гидроабразивной эрозии и меры, позволяющие легко осуществить работы по демонтажу изношенных частей.
4.6.3.2 Непосредственные меры по уменьшению гидроабразивной эрозии или увеличению срока службы при абразивном воздействии
4.6.3.2.1 Уплотнения направляющих лопаток
Существуют три различных типа уплотнений: торцевые уплотнения, уплотнения между входной и выходной кромками двух соседних направляющих лопаток, уплотнения цапф направляющих лопаток у крышки турбины и нижнего кольца.
Торцевые уплотнения могут располагаться на торцевых поверхностях направляющих лопаток. Такой тип уплотнений эффективен во всех эксплуатационных режимах. Другой тип уплотнений располагается в прилегающей к торцам крышке турбины и нижнем кольце. Такой тип уплотнений эффективен только при закрытом направляющем аппарате. Оба типа уплотнений уменьшают протечки через малые торцевые зазоры и уменьшают гидроабразивную эрозию расположенных рядом частей конструкции. Однако они сами подвержены действию гидроабразивной эрозии, и срок службы этих уплотнений может быть ограничен.
Применение уплотнений на торцевых поверхностях направляющих лопаток для устранения гидроабразивной эрозии целесообразно только в том случае, когда срок службы уплотнений превышает период между ремонтами или возможна легкая их замена. Для уплотнений, расположенных в крышке турбины и нижнем кольце, легче производить замену, чем при расположении уплотнений в торцах направляющих лопаток.
Уплотнения между входными и выходными кромками направляющих лопаток уменьшают протечки через закрытый направляющий аппарат. Принцип здесь такой же, как и для торцевых уплотнений. Этот тип уплотнений эффективен при остановленном без закрытия предтурбинного затвора агрегате.
На рисунке 6 приведен один пример уплотнений между цапфой направляющей лопатки, крышкой турбины и нижним кольцом. Эти уплотнения уменьшают протечки как в открытом, так и в закрытом положении направляющих лопаток и оказывают положительный эффект на степень гидроабразивной эрозии. В качестве материала колец уплотнений следует применять твердую сталь с относительно высокой стойкостью к гидроабразивной эрозии или сталь с нержавеющим покрытием.

Рисунок 6 - Пример конструкции уплотнений цапф направляющей лопатки
Все уплотнения должны иметь ответную часть из нержавеющей стали или со стойким к гидроабразивной эрозии покрытием.
Более эффективным методом уменьшения протечек на остановленном агрегате является предварительный натяг направляющего аппарата в закрытом положении. В дополнение для компенсации деформации находящейся под давлением направляющей лопатки ее выходная кромка может быть выполнена изогнутой таким образом, чтобы зазор под действием давления воды на направляющие лопатки смыкался.
4.6.3.2.2 Расположение уплотнений рабочего колеса
Правильное расположение лабиринтных колец в радиально-осевых турбинах может также уменьшить абразивное воздействие на них. Следует избегать скопления и увеличения концентрации абразивных частиц перед лабиринтными кольцами.
Для турбин со средним и высоким коэффициентом быстроходности может оказаться предпочтительным располагать лабиринтные кольца непосредственно у перехода между крышкой турбины, нижним кольцом и наружным краем ступицы или обода рабочего колеса. Это может помочь избежать скопления частиц перед лабиринтами.
Если при таком расположении лабиринтных колец появятся дополнительные осевые силы, то их следует компенсировать в конструкции разгрузочных труб или подпятника.
4.6.3.2.3 Защита бетона дополнительной стальной облицовкой
При обычных эксплуатационных режимах без абразивных частиц, если скорость потока более 6 - 7 м/с, следует предусматривать наличие стальной облицовки или иной дополнительной защиты. Если вода содержит абразивные частицы, то следует применять дополнительную защиту бетонных поверхностей от гидроабразивной эрозии. В этом случае рекомендуемый предел скорости потока составляет от 4 до 4.м/с.
4.6.3.2.4 Подача чистой воды в уплотнение вала
В уплотнения вала агрегатов, которые эксплуатируются с содержащей абразивные частицы водой, должна подаваться чистая вода. Следует избегать, чтобы контактная поверхность или поверхность уплотнения вступала в контакт с абразивными частицами.
Вода должна быть очищена при помощи подходящих фильтров или центрифуг, что иногда может оказаться проблемой.
Для защиты уплотнения на остановленном агрегате от поступления содержащей абразивные частицы воды рекомендуется применять стояночное уплотнение. Следует обеспечить подачу чистой воды в уплотнение на остановленном агрегате при отсутствии стояночного уплотнения и при действии на уплотнение вала давления нижнего бьефа.
Следует обеспечить возможность легкой замены уплотнения вала без разборки других частей.
4.6.3.2.5 Облицовки крышки турбины и нижнего кольца
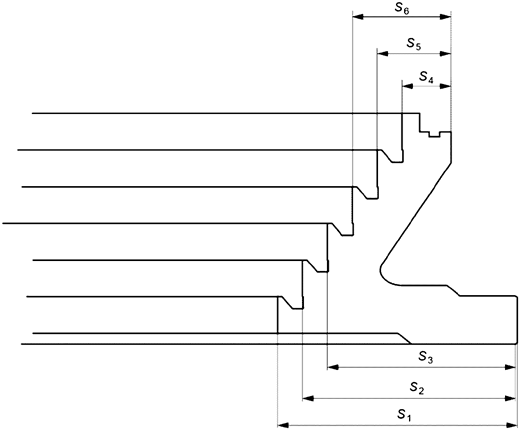
Облицовки крышки турбины и нижнего кольца у концов направляющих лопаток являются эффективным средством уменьшения гидроабразивной эрозии. Они делаются сменными и закрепляются на крышке турбины и нижнем кольце.
Если ожидается повышенная гидроабразивная эрозия, обеспечивается доступность облицовок и требуется их частая замена, то рекомендуется закреплять облицовки болтами со стороны противоположной проточной части (с сухой стороны) крышки турбины или нижнего кольца. Болты должны быть соответствующим образом уплотнены.
Как правило, облицовки крепятся к крышке турбины или нижнему кольцу нержавеющими болтами со стороны проточного тракта. Головки болтов должны быть механически обработаны заподлицо с поверхностью облицовок, зазоров следует избегать. Замена облицовок этого типа требует большего времени, чем замена облицовок, имеющих крепление с сухой стороны, и является более сложной, если применяются облицовки с покрытиями. Если применяются облицовки с покрытием, то крепление должно быть с сухой стороны (см. рисунок 7).

Рисунок 7 - Пример крепления облицовок со стороны, противоположной проточному тракту (болт слева)
В соответствии с ожидаемой степенью гидроабразивной эрозии возможен альтернативный вариант. Вместо заменяемых облицовок возможно использование покрытия нержавеющей сталью. Если направляющие лопатки достаточно велики и обеспечивается доступ к нержавеющему покрытию, то ремонт может производиться на объекте.
4.6.3.2.6 Покрытия из нержавеющей стали в камере рабочего колеса
Рекомендуется выполнять камеру рабочего колеса в поворотно-лопастных и прямоточных турбинах полностью из нержавеющей стали или с толстой облицовкой из нержавеющей стали. Это продлит срок службы камеры рабочего колеса. Ремонт любой поврежденной эрозией поверхности может выполняться при помощи наплавки нового слоя нержавеющей стали, приваркой полос нержавеющей стали или нанесением покрытия термическим напылением.
4.6.3.2.7 Покрытия из нержавеющей стали на крышке турбины и нижнем кольце
Соприкасающиеся с водой поверхности крышки турбины и нижнего кольца также подвергаются действию гидроабразивной эрозии. Рекомендуется покрытие из нержавеющей стали или установка нержавеющих облицовок, особенно в местах резких изменений геометрии или изменений потока. Ремонт нержавеющего слоя может выполняться при помощи наплавки нового слоя нержавеющей стали, приваркой полос нержавеющей стали или нанесением покрытия термическим напылением.
4.6.3.2.8 Увеличение толщины стенки
Увеличение толщины стенки конструктивной части является одним из методов увеличения периода между требующимися из-за гидроабразивной эрозии ремонтами. Увеличение толщины гидравлических частей, таких как лопасти рабочего колеса, рассматривается в 4.6.2.6.
Для недопущения раннего отказа конструктивных частей из-за повышенных механических напряжений толщина стенки может быть увеличена в ответственных местах тех частей конструкции, которые не влияют на КПД. Типичные части - это цапфы направляющих лопаток, повышенная толщина стенки в местах резкого изменения геометрии крышки турбины, нижнего кольца, направляющих лопаток и колонн статора.
Одним из важных пунктов является наличие достаточной толщины стенки закладных стальных трубопроводов, особенно если это разгрузочные или уравнительные трубы крышки турбины. Из-за внезапных изменений направления потока воды изгибы этих труб особенно подвержены сильному воздействию абразива. Поэтому эти трубопроводы должны иметь увеличенную толщину стенки, а изгибы труб - больший радиус. На рисунке 8 показаны типичные уравнительные трубопроводы.

Рисунок 8 - Трубопроводы разгрузки крышки турбины с изгибами
При использовании таких разгрузочных трубопроводов их также следует проектировать для низкой скорости воды, принимая во внимание любые повышенные протечки в лабиринтных уплотнениях. Разумно предусмотреть, чтобы общая площадь разгрузочных труб составляла по крайней мере трехкратную площадь зазора изношенных лабиринтных уплотнений. Конечно, вместо использования отдельных разгрузочных трубопроводов достичь эффекта разгрузки также возможно через отверстия в рабочем колесе.
4.6.3.2.9 Подпятник
В радиально-осевых турбинах осевое усилие может зависеть от величины протечек через лабиринтные уплотнения и, следовательно, от зазора в лабиринтных уплотнениях. Если имеется гидроабразивная эрозия, то подпятник может быть сконструирован для несения дополнительной нагрузки, так чтобы агрегат мог эксплуатироваться при наличии некоторого износа лабиринтных уплотнений из-за гидроабразивной эрозии.
4.6.3.3 Концепции конструирования для обеспечения легкого технического обслуживания или замены
4.6.3.3.1 Общая часть
Если из-за гидроабразивной эрозии имеются повреждения частей конструкции и предусматривается их замена, для уменьшения времени нахождения в ремонте и перерыва в эксплуатации очень важно, чтобы замена или ремонт проводились быстро и легко. Данное обстоятельство следует иметь в виду уже на концептуальной стадии планирования электрической станции, и ее конструкция должна это учитывать.
4.6.3.3.2 Замена частей конструкции
Главными частями конструкции, которые должны заменяться или демонтироваться при ремонте радиально-осевых турбин, являются рабочее колесо, направляющие лопатки, лабиринтные уплотнения и облицовки. Выем рабочего колеса и нижнего кольца снизу позволяет провести быстрый демонтаж без разборки генератора, механизма регулирования и крышки турбины.
Если по особым причинам демонтаж снизу агрегата невозможен, то "демонтаж из середины" в направлении пола на отметке турбины позволяет более просто (без демонтажа генератора) осуществить выемку рабочего колеса. Однако необходим демонтаж крышки турбины и механизма регулирования.
Чтобы произвести демонтаж рабочего колеса, фланцевое соединение рабочего колеса и вала должно позволять легкое соединение и разъединение, особенно если обслуживающий персонал планирует использовать два колеса для одного агрегата (на подмену, одно в эксплуатации, одно в ремонте). Возможным решением является применение фланцевых соединений фрикционного типа или соединений без необходимости механической обработки на объекте.
4.6.3.3.3 Приспособленная для покрытий конструкция
Сопротивление конструктивных частей к гидроабразивной эрозии может быть значительно улучшено посредством подходящего, стойкого к гидроабразивной эрозии покрытия. В зависимости от необходимости защиты от гидроабразивной эрозии, доступа и экономических факторов могут определяться конкретные меры по нанесению покрытий. Увеличение срока службы конструктивной части с покрытием, которое может быть достигнуто, зависит от нескольких факторов, например:
- типа конструктивной части и турбины;
- напора и расхода;
- концентрации и состава частиц;
- условий обтекания конструктивной части.
Стойкие к гидроабразивной эрозии покрытия обычно не эффективны против кавитации. В зависимости от интенсивности кавитации уже через короткое время покрытие может быть локально разрушено.
Полностью или частично в соответствии с современными технологиями для нанесения покрытия могут быть рассмотрены следующие основные, классифицированные по типу турбины, составные части:
1) радиально-осевая турбина, насос, насос-турбина:
- рабочее колесо,
- лабиринтные уплотнения,
- если возможно, то все каналы проточного тракта. Если доступ для покрытия затруднен, то области покрытия могут ограничиваться стороной отсасывания рабочего колеса, ободом и входом в рабочее колесо. Следует отметить, что частью, определяющей срок службы радиально-осевого рабочего колеса, как правило, является напорная (рабочая) сторона лопасти рабочего колеса,
- ступица и обод рабочего колеса,
- направляющие лопатки - все перо лопатки, кольца уплотнений цапф,
- крышка турбины - лабиринтные уплотнения, облицовки,
- нижнее кольцо - лабиринтные уплотнения, облицовки;
2) ковшовая турбина:
- рабочее колесо - внутренняя поверхность ковша, кроме области основания, если требуется неразрушающий контроль,
- наконечник иглы,
- седло сопла,
- корпус сопла,
- дефлектор (если используется продолжительное время);
3) поворотно-лопастная, пропеллерная и капсульная турбина:
- лопасти рабочего колеса,
- втулка рабочего колеса (в крайнем случае),
- направляющие лопатки (в крайнем случае),
- облицовки (в крайнем случае).
Для тех конструктивных частей, которые подвержены значительному расширению, обусловленному их функцией, следует тщательно проанализировать применение термического напыления. В случае седла сопла при напоре более 1000 м расширение седла может привести к трещинам в покрытии и таким образом к отказу данной части.
Толщину покрытия и допуск на толщину покрытия необходимо учитывать для всех конструктивных частей, функция которых налагает жесткие требования на их допуски. Таким случаем, например, являются лабиринтные уплотнения, а также зазоры между облицовками и направляющими лопатками.
Остаточные напряжения в слоях термического напыления могут приводить к выкрашиванию и трещинам у острых краев и выступающих углов. Например, при современном уровне технологии для слоев термического напыления рекомендуемый радиус кромок составляет 0,5 мм, а в углах - минимум 1 мм.
4.6.3.3.4 Исключительные случаи применения углеродистой стали в качестве основного материала
Как правило, рекомендуется использовать нержавеющую сталь. Однако по экономическим причинам также может рассматриваться использование углеродистой стали (с возможным увеличенным риском коррозии и нарушением адгезии).
4.6.3.3.5 Доступность способа термического напыления
Для применения термического напыления необходимо некоторое минимальное пространство. В конструкции гидравлических и механических частей следует учитывать ограничения по доступности термического напыления.
Гребенчатые лабиринты имеют малое расстояние между выступами, поэтому могут применяться специальные решения типа концентрично разделенных уплотнений. Для ступенчатых лабиринтов преимуществом является применение прямого зазора или оптимизация формы ступеньки для обеспечения доступности термического напыления. Однако это может повлиять на эффективность лабиринтного уплотнения (см. рисунок 9).

Рисунок 9 - Ступенчатый лабиринт с оптимизированной формой для нанесения твердого покрытия
При эксплуатации агрегатов рекомендуются для рассмотрения следующие действия:
1) временный останов агрегатов и закрытие водозаборов в период наличия в воде высоких концентраций и/или грубых абразивных частиц. Типичная концентрация, при которой агрегат останавливают, составляет выше одного или несколько десятков г/л. Концентрация, при которой агрегат останавливают, определяется из специфической для объекта экономической оптимизации, которая обычно основывается на эксплуатационной и ремонтной документации. Это может предотвратить чрезмерную гидроабразивную эрозию на агрегате при небольшой потере выработки. Такая стратегия может быть особенно полезна при работе по водотоку, когда может быстро произойти значительное изменение концентрации частиц. Рекомендуется установить систему раннего предупреждения с ручным или автоматическим измерением концентрации частиц в верхнем бьефе и останавливать агрегат перед тем, как вода с высокой концентрацией частиц достигнет водозабора;
2) в случае если вода с высокой концентрацией частиц стоит в водоводе длительное время, частицы могут скапливаться внизу водовода и затем бывает трудно открыть предтурбинный затвор. В этом случае через специальную систему возможен пуск сжатого воздуха с открытием спускного клапана водовода для незамедлительного смыва частиц перед предтурбинным затвором. При этом важно проанализировать возможные последствия наличия большого количества воздуха в водоводе для главных затворов, если они имеются;
3) минимизация количества мусора, проходящего через агрегат. Большие твердые предметы, например бревна, гравий (больше 2 мм) и т.д., могут повредить обтекаемые поверхности и любые стойкие к гидроабразивной эрозии покрытия. Повреждения обтекаемых поверхностей могут увеличить турбулентность потока, которая в свою очередь увеличит повреждения от гидроабразивной эрозии. Это особенно важно для высоконапорных радиально-осевых и ковшовых агрегатов, поскольку скорости воды очень высоки и в этих агрегатах для сохранения низкой турбулентности должны быть гладкие, обтекаемые поверхности;
4) не эксплуатировать агрегат в случае, если повреждения из-за гидроабразивной эрозии угрожают безопасной эксплуатации. С развитием повреждений из-за гидроабразивной эрозии эксплуатация агрегата становится небезопасной. Как пример это может быть из-за увеличения протечек через уплотнения до такого уровня, что действующее осевое усилие превысит допустимые пределы или толщина какой-нибудь детали снизится ниже допустимой минимальной толщины. Следует по крайней мере каждый год проводить регулярные обследования ответственных узлов и деталей и сравнивать результаты с предварительно определенными критериями допустимости и с результатами последнего и более ранних обследований;
5) для ковшовых турбин наилучшее отношение выработки электроэнергии к гидроабразивной эрозии оказывается при полном открытии одного или нескольких сопел. В противоположность другим типам турбин ковшовые турбины позволяют уменьшить гидроабразивную эрозию с уменьшением нагрузки посредством полного закрытия отдельных сопел, если это позволяет конструкция турбины;
6) для ковшовых турбин протечки через закрытые сопла могут быть причиной интенсивной локальной эрозии седел. Для устранения этой проблемы со стороны верхнего бьефа при остановке агрегата закрывают шаровые затворы. В сложных условиях может быть предпочтительным избегать работы несколькими соплами, при закрытых других соплах - ограничения работы при частичной нагрузке;
7) для других типов турбин наилучшее отношение выработки электроэнергии к гидроабразивной эрозии получается при максимальном открытии. По возможности избегайте работы на холостом ходу или при низких нагрузках. Режимы работы на холостом ходу или при низких нагрузках являются наихудшими режимами с точки зрения гидроабразивной эрозии для большинства типов турбин и их частей;
8) для радиально-осевых турбин, у которых закрытие осуществляется только направляющим аппаратом, проходящая через зазоры направляющих лопаток при остановленном агрегате вода будет иметь очень высокую, близкую к свободному истечению, скорость. Это будет причиной гидроабразивной эрозии направляющего аппарата. Устранение этой гидроабразивной эрозии производится закрытием предтурбинного затвора. Закрытие предтурбинного затвора особенно важно для высоконапорных агрегатов;
9) твердые покрытия очень чувствительны к кавитации. Следовательно, необходимо избегать работы машин с таким покрытием в режимах с кавитацией:
- следует четко придерживаться рекомендованного диапазона режимов работы турбины,
- для ковшовых турбин: следует поддерживать в хорошем состоянии внутренние поверхности сопла, включая наконечник сопла и седло, и производить соответствующую регулировку.
Касательно требований по кавитации см. раздел 8.
Следует иметь в наличии дополнительные запасные части для подверженных гидроабразивной эрозии частей. В случае сильной гидроабразивной эрозии можно хранить полный набор заменяемых частей (например, направляющих лопаток, облицовок или крышек, нижних колец и рабочее колесо) и производить их периодическую замену. Демонтированные части затем могут быть отремонтированы без простоя оборудования.
Следует по крайней мере каждый год проводить обследование ответственных узлов и деталей, сравнение результатов с предварительно определенными критериями допустимости, а также результатами последнего и более ранних обследований. Для каждой конструктивной части должны быть достаточно полные записи количества повреждений из-за гидроабразивной эрозии. Рекомендуется измерять и записывать максимальную глубину выноса металла вместе с фотографиями каждой повреждаемой гидроабразивной эрозией части.
Важно вести постоянные записи концентрации и свойств находящихся в воде абразивных частиц. Пробы воды можно брать с установленной периодичностью и анализировать в лаборатории. В дополнение к этому появилось несколько типов приборов для постоянного мониторинга концентрации частиц, однако точность проводимых на объекте измерений концентрации частиц очень мала. Они могут быть использованы для принятия оперативных решений, чтобы избежать работы в периоды с крайне высокой концентрацией частиц. Если они предназначены для этой цели, то следует провести тщательный выбор измерительной станции, способной выдать достаточно раннее предупреждение, чтобы можно было остановить агрегат до того, как вода с высокой концентрацией частиц достигнет водозабора.
Важно делать различие между концентрацией частиц в воде реки и концентрацией частиц в воде, которая проходит через турбину. На многих объектах, особенно если имеется большое водохранилище, между ними может быть значительная разница. В некоторых случаях это может потребовать установки двух различных систем отбора проб.
Как правило, на станции будут наблюдать период(ы) с высокой концентрацией частиц и период(ы) с низкой концентрацией частиц (см. рисунок 10). Из рисунка можно видеть, что за очень короткое время концентрация может измениться.

Рисунок 10 - Примерный график зависимости концентрации частиц от времени
В период, когда концентрация частиц мала и абсолютные вариации концентрации очень малы, отбор проб может производиться один раз в день или неделю.
В период, когда концентрация частиц велика, отбор проб должен производиться с частотой от одного до шести раз в час, в зависимости от разности в концентрации между последовательными измерениями. Окончательный интервал следует выбирать таким, чтобы по крайней мере три точки измерения определяли каждый пик концентрации частиц.
Расчет интервала отбора проб для уже имеющихся данных о свойствах частиц за предшествующий период эксплуатации приведен в приложении E. Для более полной информации см. приложение C.
Для измерения формы, твердости и размера частиц в первый год эксплуатации рекомендуется брать по крайней мере одну пробу в месяц. Если вариация Khardness, Kshape и Ksize менее чем 10%, то после первого года интервал отбора проб может быть увеличен вдвое. Если вариация Khardness, Kshape и Ksize более чем 20%, то, как только это обнаружится, следует вдвое уменьшить интервал отбора проб.
Также рекомендуется вести постоянные записи режимных параметров каждого агрегата. Как минимум следует регистрировать следующие параметры:
- выходную мощность;
- расход (если возможно);
- удельную гидравлическую энергию (или напор);
- отметку уровня нижнего бьефа;
- угол открытия направляющего аппарата или ход штока сервомотора;
- угол поворота лопастей рабочего колеса (если имеется);
- количество сопел в работе (для ковшовых агрегатов);
- давление воды под крышкой турбины (для радиально-осевых агрегатов). Это дает показатель гидроабразивной эрозии лабиринтов;
- расход через уравнительные трубы разгрузки (если имеются). Это дает показатель износа лабиринтных уплотнений;
- осевое усилие (если это применимо или имеется средство измерения).
Должна быть обеспечена возможность соотнести параметры режима с записями концентрации и свойств частиц. Такая информация может использоваться для установления связи с наблюдаемыми повреждениями.
Показателями гидроабразивной эрозии также могут быть вибрация и шум.
6.1.1 Общая часть
Были выполнены несколько сравнительных испытаний, применяемых против гидроабразивной эрозии материалов. Однако результаты различных опытов трудно поддаются сравнению. Поэтому полученные результаты могут быть противоречивы. Было принято решение в настоящем стандарте результаты этих испытаний не приводить.
При выборе стойкого к гидроабразивной эрозии покрытия в дополнение к стойкости против гидроабразивной эрозии следует рассматривать некоторые прочие факторы, такие как:
- легкость нанесения покрытия;
- легкость ремонта покрытия;
- толщину слоя покрытия. Толстый слой с низким показателем стойкости к гидроабразивной эрозии может иметь больший срок службы, чем очень тонкий слой с высоким показателем стойкости к гидроабразивной эрозии;
- допуск на размер покрытия;
- легкость удаления покрытия.
6.1.2 Аргументы и выводы
Защита оборудования гидроэлектростанции с использованием имеющих высокую стойкость к гидроабразивной эрозии материалов или стойких к гидроабразивной эрозии покрытий часто может увеличить срок службы между капитальными ремонтами.
В настоящее время наиболее обычным, применяющимся в гидравлических машинах, стойким к гидроабразивной эрозии материалом является термическое напыление карбидом вольфрама кобальт-хромом (WC-CoCr). Иногда используются также различные типы полимерных покрытий (иногда называемые "мягкими покрытиями").
Термическое напыление покрытия, часто называемое "твердое покрытие", может быть применено к большинству подверженных абразивной эрозии частей. Одним важным исключением являются радиально-осевые рабочие колеса малого и среднего размера, где оно не может применяться из-за ограничений доступа. При правильном нанесении такое покрытие показывает очень хорошую стойкость к гидроабразивной эрозии. Стоит заметить, что между различными вариантами покрытий, полученных путем термического напыления, имеются существенные различия в стойкости к гидроабразивной эрозии. Это происходит из-за вариаций в составе порошка, условий окружающей среды при нанесении и параметров напыления.
Иногда также как вариант могут быть применены полимерные покрытия, но только для не требующих жестких допусков поверхностей. Поэтому применение таких покрытий, если они используются, ограничено проточными трактами радиально-осевых и поворотно-лопастных турбин.
По сравнению с углеродистой сталью нержавеющие стальные облицовки или наплавки из нержавеющей стали могут увеличить стойкость к гидроабразивной эрозии. Обычным является, например, защита нержавеющей сталью чувствительных к эрозии мест крышек турбины и нижних колец, выполненных из углеродистой стали. Стойкость нержавеющей стали к гидроабразивной эрозии далека от уровня стойкости покрытий, полученных термическим напылением, или полимерного покрытия. Истертые облицовки из нержавеющей стали заменяются относительно легко и быстро. Дальнейшее улучшение стойкости к гидроабразивной эрозии достигается наплавкой твердого слоя электродами, такими как из сплава Co-Cr-C.
Помимо упомянутых в этом пункте материалов, применение иных материалов менее распространено.
6.2.1 Определение терминов данного пункта
1) Капитальный ремонт: восстановление первоначальной геометрии и уровня качества всей конструктивной части, включая новое защитное покрытие.
2) Восстановительный ремонт: ограниченная обработка конструктивных частей в местах износа в следующем объеме:
- восстановительный ремонт A: улучшение гидравлического профиля при помощи только шлифовки;
- восстановительный ремонт B: улучшение гидравлического профиля при помощи наплавки и шлифовки;
- восстановительный ремонт C: повторное нанесение покрытия на подготовленную поверхность после A и B.
6.2.2 Межремонтный период защитных покрытий
Установленные на поверхности конструктивных частей защитные покрытия также подвергаются гидроабразивной эрозии, но в гораздо меньшей степени, чем стальная основа. По прошествии определенного времени работы покрытие изнашивается до появления стальной основы. С этого момента в таких обнаженных местах гидроабразивная эрозия прогрессирует более высокими темпами, приводя к изменению геометрии гидравлического профиля. При определенной степени повреждений эксплуатация агрегата должна быть остановлена, а изношенные части должны быть заменены на новые или отремонтированные.
Уровень гидроабразивной эрозии, при которой необходим капитальный ремонт, в основном тот же, что и для незащищенных обтекаемых конструктивных частей, и определяется следующими признаками:
1) ремонт должен производиться сразу при обнаружении невозможности дальнейшей безопасной эксплуатации: например, когда толщина стенки конструктивной части уменьшена до предела и механическая целостность конструктивной части не может более обеспечиваться и возможно нанесение ранений людям или существенного урона всей турбине;
2) при условии обеспечения безопасности должен быть определен экономически оптимальный интервал между капитальными/восстановительными ремонтами. Задержка капитального/восстановительного ремонта приводит к:
- дополнительному риску незапланированных остановок и соответственным потерям выработки,
- уменьшению КПД,
- увеличенной стоимости и времени капитального ремонта из-за ускоренной потери основного материала.
Эти признаки следует сопоставить со стоимостью капитального/восстановительного ремонта.
Должное планирование восстановительного и капитального ремонта поможет собственнику избежать внеплановых остановок и таким образом оптимизировать производство. До постройки электростанции оптимальное время между капитальными ремонтами может оцениваться с использованием модели, описанной в 3.1 или 3.2.
После того как электростанция некоторое время находится в эксплуатации, с учетом имеющегося опыта может быть проведена более точная оценка.
6.2.3 Ремонт защитных покрытий
Для достижения наилучшего качества рекомендуется проводить капитальные и восстановительные ремонты в специализированных мастерских с необходимым оборудованием и пространством для беспрепятственного, безопасного и точного доступа ко всем местам конструктивной части.
Для увеличения периода времени между капитальными ремонтами на объекте во время коротких периодов остановки оборудования могут предусматриваться восстановительные ремонты типа A и B. Восстановительный ремонт на объекте означает обработку конструктивной части без выемки ее из турбины. В некоторых случаях (главным образом горизонтальные ковшовые турбины) также следует рассматривать станционный восстановительный ремонт покрытия, т.к. он может быть выполнен на объекте и оказаться наилучшим решением. Следует проявить крайнюю осторожность в обеспечении защиты от пыли всех смежных конструктивных частей (включая генератор), например достаточную вентиляцию во время работ. См. также таблицу 2.
|
Тип покрытия |
Выполнимость |
Замечания |
|
Твердое покрытие |
Возможно, но недостаточного качества |
Недостаточная связь с оставшимся покрытием. Недостаточная безопасность оператора при ручном нанесении в тесном пространстве (например, в радиально-осевой турбине) |
|
Полимерное покрытие |
Возможно |
Для достижения хорошего качества необходимы чистота и регулирование влажности |
|
Наплавка слоев |
Возможна в местах легкого доступа |
Может требоваться предварительный подогрев. Невозможно провести термическую обработку для снятия остаточных напряжений, и, таким образом, для некоторых сплавов существует риск трещинообразования |
В случае восстановительного ремонта количество повреждений, необходимость сварки и термической обработки играют существенную роль при принятии решения о том, может ли восстановление покрытия быть сделано на объекте. Если необходимы только шлифовка без наплавки или только небольшие ремонтные наплавки, нанесение покрытия заново может выполняться на объекте с применением передвижного оборудования.
Повторное нанесение твердого покрытия на объекте может проводиться для полностью покрытых радиально-осевых или ковшовых рабочих колес. На этих конструктивных частях количество повреждений в большинстве случаев по сравнению с общей площадью покрытия очень мало.
Особенно рекомендуется проводить на объекте восстановительные ремонты типов B и C ковшовых рабочих колес для уменьшения нежелательной турбулентности потока из-за причиненных гидроабразивной эрозией изменений формы рассекающей кромки и входных кромок.
В этом разделе представлен рекомендуемый подход, который собственники могут и должны осуществить на своих объектах для внесения в технические условия особых требований к типу машины, гидравлическому проектированию, механическому проектированию и т.д., без установления нереалистических критериев, которые выполнены быть не могут, поскольку средства для их выполнения находятся за пределами возможностей производителя.
Как было описано в 4.6.2.4, кавитация и гидроабразивная эрозия могут взаимно усиливать друг друга. Некоторые популярные, стойкие к гидроабразивной эрозии, покрытия являются более чувствительными к кавитации, чем нержавеющая сталь. По этой причине рекомендуется применять более жесткие требования к кавитации на тех станциях, где ожидается появление гидроабразивной эрозии. Это может, например, означать, что кавитационный коэффициент станции должен быть выше коэффициента зарождения кавитации и что должен быть соответствующий режим работы станции.
Должны быть приведены предполагаемые способы капитального ремонта, восстановления/замены изношенных частей. Предлагаемый порядок определения критериев для капитальных ремонтов приведен в приложении F. Следует установить время года, когда осуществляется техническое обслуживание и его продолжительность. Должны указываться желательные конструктивные особенности (см. раздел 4). Важно четко сообщить данные о частицах, прохождение которых ожидается через турбину (и которые могут отличаться от частиц в реке) в различные времена года, и соответствующие режимы работы турбины. На основе этих данных должно быть возможным вычисление PL. Рекомендуемый формат приведен в таблицах 3 - 4. Следует выбирать периоды времени в таблицах так, чтобы они давали представительную картину содержания частиц наносов и режимов. Особое внимание следует обратить на периоды с высокой концентрацией частиц.
Технические условия должны содержать требование представления поставщиком отчета, основанного на содержащихся в них данных. В отчете должны быть выполнены оценка ожидаемой гидроабразивной эрозии в соответствии с указаниями настоящего стандарта и оценка требуемой для безопасной эксплуатации агрегата периодичности и объема капитальных ремонтов.
Если между собственником и поставщиком турбины согласуется гарантия по гидроабразивной эрозии, то в ней следует указать гарантированную между капитальными ремонтами PL, основанную на некотором согласованном критерии капитального ремонта. Должны быть согласованы также требуемая регистрация данных измерений фактической PL и то, как должен осуществляться обмен данными между сторонами.
Свойства проходящих через турбину в разное время частиц необходимо регистрировать. Рекомендуется для заполнения форма в виде таблицы 3.
|
Период <*> (месяц) |
PL, кг x ч/м3 |
Средняя концентрация частиц, кг/м3 |
Размер частиц dP50, мм |
Доля твердых частиц, Моос > 4,5% |
Типичная форма твердых частиц <**> |
Рабочий напор нетто, м |
Рабочая отметка уровня нижнего бьефа, м над. ур. моря |
Время работы при 80% - 110% от расчетной мощности, ч |
Время работы при 60% - 80% от расчетной мощности, ч |
Время работы при 50% - 60% от расчетной мощности, ч |
Время работы при 20% - 50% от расчетной мощности, ч |
Время работы при 0% - 20% от расчетной мощности, ч |
Время работы на холостом ходу, ч |
|
Январь - апрель | |||||||||||||
|
Май - сентябрь | |||||||||||||
|
Октябрь - декабрь | |||||||||||||
|
Типичный паводок | |||||||||||||
|
<*> В графе "Период" выбирают подходящий интервал. <**> Более подробно см. приложение D. | |||||||||||||
Распределение размера частиц, проходящих через турбину, должно регистрироваться во времени. Рекомендуется для заполнения форма в виде таблицы 4.
|
Соответствующий период |
Фракция размером от 0 до 63 мкм, > Mesh 230 <*> |
Фракция размером от 63 до 125 мкм, Mesh от 230 до 120 <*> |
Фракция размером от 125 до 250 мкм, Mesh от 120 до 60 <*> |
Фракция размером > 250 мкм, < Mesh 60 <*> |
Общее количество |
|
Январь - апрель | |||||
|
Май - сентябрь | |||||
|
Октябрь - декабрь | |||||
|
<*> Mesh - размеры сетки в соответствии с АСТМ E11-17. Примечания 1 Могут также применяться другие методы градации размеров частиц. 2 В случае высокого содержания мелких частиц (dP50 < 0,063 мм) может потребоваться дальнейшая градация. | |||||
Приложение A
(справочное)
Это приложение содержит пример расчета PL. Для иллюстрации процесса рассматривается только небольшой период времени и малое количество измерений параметров частиц.
Предположим, мы имеем турбину, которая была пущена 5 мая в 22 ч и остановлена 10 мая в 15 ч. В это время было взято и проанализировано в целях определения концентрации 8 проб воды. Одна из проб была дополнительно проанализирована на размер и твердость частиц. Частицы имели сходные формы, как показано на рисунке D.1 b). Полученные результаты приведены в таблице A.1.
|
N пробы |
Дата, время |
Событие |
Концентрация частиц, кг/м3 |
Размер частиц dP50, мм |
Фракция тверже, чем твердость по Моосу > 4,5% |
|
0 |
5 мая 22:00 |
Пуск турбины |
- |
- |
- |
|
1 |
6 мая 06:00 |
Отбор пробы |
4,5 |
- |
- |
|
2 |
6 мая 10:30 |
Отбор пробы |
4,9 |
- |
- |
|
3 |
7 мая 04:30 |
Отбор пробы |
4,7 |
- |
- |
|
4 |
7 мая 16:30 |
Отбор пробы |
4,1 |
- |
- |
|
5 |
8 мая 08:00 |
Отбор пробы |
3,8 |
- |
- |
|
6 |
9 мая 01:00 |
Отбор пробы |
4,1 |
0,069 |
73 |
|
7 |
9 мая 14:00 |
Отбор пробы |
4,6 |
- |
- |
|
8 |
10 мая 00:30 |
Отбор пробы |
4,9 |
- |
- |
|
9 |
10 мая 15:00 |
Останов турбины |
- |
- |
- |
Формула для расчета PL с дискретными данными такова:
, (A.1)
где Cn - это концентрация частиц, кг/м3, для каждой пробы;
Ksize имеет то же самое численное значение, что и медианный размер частиц dP50, мм. Так как была проанализирована на размер частиц только одна проба, то используем это значение для всех проб;
Kshape = 1,5 [см. приложение D (соответствует только одна форма абразивных частиц)];
Khardness имеет то же самое численное значение, что и для фракции частиц тверже, чем 4,5 по Моосу. Для частей из нержавеющей стали 13Cr4Ni это будет твердость стали по шкале Мооса. Следует отметить, что должно быть значение доли, а не число процентов. Так как была проанализирована на твердость частиц только одна проба, используем это значение для всех проб;
Ts,n - это рассматриваемый для каждой пробы временной интервал. Для n = 1 используем время с пуска турбины до половины интервала времени между первой и второй пробами. Таким же образом, для n = 8 используем время от половины интервала времени между седьмой и восьмой пробами до остановки турбины. Для проб с n = 2 до n = 7 используем время с половины интервала времени между пробами (n - 1) и n до половины интервала времени между пробами n и (n + 1);
N - это количество проб = 8.
На основе этих данных составим следующую таблицу A.2.
|
n |
Cn, кг/м3 |
Ksize,n |
Kshape,n |
Khardness,n |
Ts.n, ч |
Pln, кг·ч/м3 |
|
1 |
4,5 |
0,069 |
1,5 |
0,73 |
10,25 |
3,48 |
|
2 |
4,9 |
0,069 |
1,5 |
0,73 |
11,25 |
4,16 |
|
3 |
4,7 |
0,069 |
1,5 |
0,73 |
15 |
5,33 |
|
4 |
4,1 |
0,069 |
1,5 |
0,73 |
13,75 |
4,26 |
|
5 |
3,8 |
0,069 |
1,5 |
0,73 |
16,25 |
4,67 |
|
6 |
4,4 |
0,069 |
1,5 |
0,73 |
15 |
4,99 |
|
7 |
4,6 |
0,069 |
1,5 |
0,73 |
11,75 |
4,08 |
|
8 |
4,9 |
0,069 |
1,5 |
0,73 |
19,75 |
7,31 |
|
Сумма |
113 |
38,28 | ||||
Данные показывают, что в течение 113 ч работы эта турбина подверглась абразивной нагрузке PL = 38,28 кг·ч/м3.
Приложение B
(справочное)
B.1 Регистрация повреждений из-за гидроабразивной эрозии
Ниже приведены указания по измерениям гидроабразивной эрозии отдельных частей машин.
Целью этих указаний является получение надежных результатов о степени гидроабразивной эрозии различных электростанций в обеспечиваемом сходность измерений виде для возможности их сравнения между собой. Целью является получение надежного прогноза будущей безопасной эксплуатации и интервалов обследований, основанных на совместной оценке эрозионных повреждений и измерений абразивной нагрузки.
Во время обследования конструктивных частей важно собирать как можно больше информации. Ниже приведены указания по минимальным требованиям при обследовании повреждений из-за гидроабразивной эрозии.
Как правило, конструктивные части следует маркировать перед фотографированием таким образом, чтобы они могли быть легко идентифицированы. На конструктивной части следует написать название объекта, номер лопасти/ковша, дату обследования и число часов работы. В случае серии фотографий (например, всех ковшей рабочего колеса) эту информацию следует привести по крайней мере на первом ковше, а остальные ковши пронумеровать. В этом случае фотографии должны быть поименованы таким способом, чтобы было понятно, что это серия. Фотографии должны быть цифровые, снятые камерой с разрешением по крайней мере 5 мегапикселей, так, чтобы могли быть видны детали.
Для каждой конструктивной части следует завести ведомость с начала эксплуатации и до утилизации. В ведомости должны быть приведены, с возможностью их сопоставления с параметрами работы, следующие сведения:
1) номер конструктивной части (индивидуальный номер, выбитый на ней, например номер рабочего колеса). Это должно ясно идентифицировать конструктивную часть во время ее эксплуатации для недопущения беспорядка в ранее собранных данных;
2) дата пуска в эксплуатацию, включая общую наработку с начала эксплуатации в часах;
3) дата обследования, включая общую наработку с начала эксплуатации в часах и статус конструктивной части после обследования, например:
- продолжение эксплуатации,
- снято для ремонта,
- снято в запас,
- снято для утилизации
и т.д.;
4) осмотры и измерения, проведенные во время обследований, в соответствии с последующими пунктами.
Можно отметить, что снижение максимальной мощности может быть показателем прогрессирующих повреждений из-за гидроабразивной эрозии.
B.2 Ковшовое рабочее колесо без покрытия
Сперва следует сфотографировать все ковши таким образом, чтобы были видны обе половины. Положение камеры должно быть над центром ковша. Параллельно должны быть сделаны зарисовки эрозионных повреждений или любых других заметных особенностей, таких как повреждения от камней, с отметкой определенных подробностей на ковше и их фотографированием.
Номер ковша должен быть виден на каждом фото. В дополнение на первом ковше должна быть нанесена следующая информация: данные объекта, наработка, дата обследования.
По крайней мере, четыре случайно выбранных ковша должны быть осмотрены нижеописанным образом:
- Проведение измерений отклонения формы ковша из-за гидроабразивной эрозии от первоначального профиля с использованием шаблонов минимум по пяти точкам на каждой половине ковша, по крайней мере, в трех местах (спереди, посередине, сзади). Должен быть измерен зазор между рабочим колесом и шаблоном, а также должен быть сделан рисунок сечения, показывающий точки измерения.
- При расположенном в ковше шаблоне следует сделать фотографии, так чтобы был виден зазор между шаблоном и ковшом, а линейка должна быть расположена таким образом, чтобы могли быть видны размеры зазора. Это должно быть сделано по крайней мере для одного ковша, например с наиболее высокой степенью гидроабразивной эрозии.
- Должна быть измерена ширина вершины рассекателя при установке трех шаблонов. Для демонстрации специальных особенностей должны быть сделаны дополнительные фото с расположенной рядом линейкой, чтобы можно было видеть размеры.
B.3 Игла и насадок без покрытия
Чтобы определить наличие зазоров между иглой и седлом, следует сделать фото при закрытом положении иглы; следует использовать линейку для документирования размеров так же, как было ранее описано для рабочего колеса.
Если части разобраны, то следует сделать отдельные фото частей. В обоих случаях любые дефекты следует фотографировать отдельно.
Если возможно, то в ведомости также следует отметить величину протечек через закрытые сопла.
Следует сделать обзорные фотографии частей (если разобраны) и с близкого расстояния, чтобы видеть зазоры между частями.
B.4 Ковшовое рабочее колесо с твердым покрытием
Все ковши должны быть сфотографированы. Порядок такой же, как и для колес без покрытия, со следующими исключениями:
Так как в большинстве случаев остается покрытие достаточного размера и еще виден первоначальный контур, то для измерения гидроабразивной эрозии шаблоны не нужны. Таким образом, целесообразно зафиксировать расположение основных дефектов и провести отдельные измерения глубины, а также сделать фотографии типичных местных дефектов.
Если покрытие на кромке рассекателя полностью разрушено, то тогда также следует измерить ширину рассекателя.
B.5 Игла, седло и корпус сопла с покрытием
Порядок такой же, как и для колес без покрытия, со следующими исключениями:
Следует включать в состав измерений области с поврежденным покрытием, вместе с рисунками, измерением глубины и фотографиями. Следует сфотографировать переход от покрытой области до области без покрытия и записать возможную величину ступенек, так же как и возможную ширину зазоров между седлом и корпусом сопла.
B.6 Радиально-осевое рабочее колесо и неподвижный лабиринт без покрытия
Измерения гидроабразивной эрозии следует выполнять следующим образом:
1) толщину выходной кромки необходимо измерять в восьми точках, равномерно расположенных по длине выходной кромки. Результаты нужно записывать вместе с рисунком, показывающим точное их положение;
2) следует измерить глубину гидроабразивной эрозии лопасти в месте перехода к ободу у входной кромки.
Следует провести измерения, по крайней мере, на трех лопастях, например, имеющих наибольший, наименьший и средний износ.
В дополнение к обзорным фотографиям в отчете следует приводить сделанные с близкого расстояния фотографии областей гидроабразивной эрозии и рисунки, на которых показано положение сфотографированных участков. Должны фотографироваться все области с большими повреждениями. Следует уделить особое внимание областям перехода обод - лопасть и лопасти вблизи обода, где обычно наблюдается наибольшая гидроабразивная эрозия. Например, на рабочей стороне выходного сечения это возможно сделать с помощью зеркала.
В областях наибольших повреждений из-за гидроабразивной эрозии следует измерить глубину, и должны быть сделаны фотографии, как она была измерена. Следует привести описание технологии измерений.
В разобранном состоянии все наружные поверхности рабочего колеса и подвижного и неподвижного лабиринта должны быть сфотографированы как в общем виде, так и в деталях и зафиксированы в рисунках.
Следует измерить и сфотографировать зазор между рабочим колесом и облицовками.
B.7 Радиально-осевое рабочее колесо с покрытием и неподвижный лабиринт
Следует сделать рисунки областей с поврежденным покрытием на всех лопастях с указанием положения и размеров областей.
Следует измерить глубину областей разрушения на лопастях и записать максимальные значения. Следует описать, возможно при помощи рисунка, метод измерения (например, лекалом/шаблоном). Следует также приложить фотографии измерений. Для большей информации могут быть добавлены подробные фотографии.
Если покрытие на выходной кромке разрушено полностью: см. измерения на радиально-осевом рабочем колесе без покрытия.
Следует измерить и сфотографировать зазор между рабочим колесом и облицовками.
B.8 Направляющие лопатки и облицовки без покрытия
Следует сделать обзорные и подробные фотографии и расположение сфотографированных областей показать на рисунке.
Если повреждения настолько большие, что маяки более не существуют, то могут быть сделаны только фотографии повреждений.
Если маяки еще существуют, то измерения гидроабразивной эрозии на облицовках производятся путем измерения наибольших зазоров между направляющими лопатками и облицовками как минимум на четырех лопатках.
Простой показатель повреждений направляющего аппарата из-за гидроабразивной эрозии состоит в измерении давления в спиральной камере на остановленном агрегате с закрытыми направляющими лопатками с закрытым предтурбинным затвором, но с открытым байпасом предтурбинного затвора. Давление можно записывать автоматически во время нормального открытия предтурбинного затвора вместе с уровнями верхнего, нижнего бьефов, датой и временем.
Дополнительный показатель также можно получить, записывая время, требующееся для остановки турбины после закрытия направляющего аппарата при открытом предтурбинном затворе. Причиной протечек при полностью закрытом направляющем аппарате является гидроабразивная эрозия в направляющих лопатках. Это является причиной более продолжительного времени при останове агрегата до полной его остановки.
B.9 Направляющие лопатки и облицовки с покрытием
Следует сделать обзорные и подробные фотографии и их расположение показать на рисунке. Следует сфотографировать каждую лопатку и записать все повреждения вместе с рисунками, на которых показаны точное расположение и величина каждого повреждения.
В каждом случае повреждений следует измерить глубину гидроабразивной эрозии и записать максимальные значения для каждого случая. Следует описать способ измерения и привести некоторые фотографии (например, лекала/шаблона).
B.10 Колонны статора
Как правило, из-за низких скоростей гидроабразивная эрозия на колоннах статора не наблюдается. Однако отказ статорных колонн может иметь драматические последствия, и колонны статора следует также регулярно обследовать. Данный раздел не включает конкретные акты обследований, но рекомендуется делать простую запись, констатирующую, было повреждение или нет, вместе с фотографиями.
Если есть эрозия, следует измерить толщину, используя шаблоны, соответствующие геометрии колонны статора. Если толщина колонны статора уменьшилась на 20% или более, то следует провести поверочный расчет на прочность колонны статора.
B.11 Лабиринты радиально-осевой турбины без покрытия
Рекомендуется раз в неделю в паводок и раз в месяц в межень проводить измерения интенсивности протечек с верхнего уплотнения (если возможно).
B.12 Поворотно-лопастное рабочее колесо без покрытия
Измерения гидроабразивной эрозии следует производить следующим образом:
Толщину выходной кромки необходимо измерять в пяти точках, равномерно расположенных по длине выходной кромки. Результаты нужно записывать вместе с рисунком, на котором показано точное их расположение.
Должны быть обследованы, по крайней мере, три произвольно выбранные лопасти.
Следует выпустить отчет с несколькими видами фотографий. В дополнение к обзорным фотографиям следует привести фотографии областей гидроабразивной эрозии и рисунки, на которых показано положение сфотографированных участков. Должны быть сфотографированы, по крайней мере, все области с наибольшей гидроабразивной эрозией.
В областях наибольших повреждений из-за гидроабразивной эрозии следует измерить глубину, и должны быть сделаны фотографии, как она была измерена. Следует привести описание технологии измерений.
Дополнительно должны быть документированы зазоры между наружным диаметром лопасти и камерой рабочего колеса.
B.13 Поворотно-лопастное рабочее колесо с покрытием
Следует сделать рисунки областей с поврежденным покрытием для всех лопастей с указанием положения и размеров этих областей.
Следует измерить глубину областей разрушения на лопастях и записать максимальные значения. Следует описать, возможно при помощи рисунка, метод измерения (например, лекалом/шаблоном). Следует также приложить фотографии измерений. Для большей информации могут быть добавлены подробные фотографии.
Если покрытие на выходной кромке разрушено полностью: см. измерения на поворотно-лопастном рабочем колесе без покрытия.
Дополнительно должен быть документирован зазор между наружным диаметром лопасти и камерой рабочего колеса.
B.14 Типовые формуляры
Принимая во внимание особенности конструкции агрегата, имеющийся характер гидроабразивной эрозии и состав легко доступных измерений, на каждом объекте должны обязательно быть свои специальные формуляры (карты осмотров) для записи повреждений из-за гидроабразивной эрозии.
По возможности записи должны напрямую показывать глубину гидроабразивной эрозии частей в мм. Иногда это невозможно, т.к. не существует подходящей неповрежденной поверхности для ее использования в качестве базовой, от которой проводят измерения. В таких случаях могут быть выполнены другие измерения, по которым с помощью проектных чертежей турбины может быть рассчитана глубина гидроабразивной эрозии. В формуляры следует включать рисунки, поясняющие измерения.
Гидравлические машины часто состоят из нескольких конструктивных частей с множеством деталей в точности одной и той же формы. Примером являются лопасти рабочего колеса и направляющие лопатки. Как было описано ранее, в таких случаях следует фиксировать глубину и место гидроабразивной эрозии в турбине для нескольких отдельных конструктивных частей. Значительное изменение глубины гидроабразивной эрозии между отдельными конструктивными частями является нормальным явлением.
Глубина гидроабразивной эрозии на одной конструктивной части зависит, как правило, от ее расположения. Рекомендуется регистрировать глубину гидроабразивной эрозии в нескольких типичных местах конструктивной части. В каждом месте следует учитывать максимальную глубину гидроабразивной эрозии.
Ниже приведен набор типовых формуляров (карт осмотра) для фиксирования повреждений высоконапорных радиально-осевых и ковшовых рабочих колес (см. таблицы B.1 - B.11). Для соответствия фактическим повреждениям и форме конструктивной части формуляры могут быть модифицированы. Обследование должно включать области максимальной гидроабразивной эрозии и области, которые влияют на безопасную эксплуатацию агрегата.
B.15 Карта осмотра, входные кромки лопастей рабочего колеса
|
Станция |
N агрегата |
Дата |
Подпись |
|
| |||
|
Лопасть N |
Глубина эрозии ступицы Dh |
Глубина эрозии обода Db | |
|
1 | |||
|
2 | |||
|
3 | |||
|
4 | |||
|
5 | |||
|
6 | |||
|
7 | |||
|
8 | |||
|
9 | |||
|
10 | |||
|
11 | |||
|
12 | |||
|
13 | |||
|
14 | |||
|
15 | |||
|
16 | |||
|
17 | |||
B.16 Карта осмотра, выходные кромки лопастей рабочего колеса
|
Станция |
N агрегата |
Дата |
Подпись |
|
| |||
|
Лопасть N |
Толщина у ступицы Th |
Толщина у середины Tm |
Толщина у обода Tb |
|
1 | |||
|
2 | |||
|
3 | |||
|
4 | |||
|
5 | |||
|
6 | |||
|
7 | |||
|
8 | |||
|
9 | |||
|
10 | |||
|
11 | |||
|
12 | |||
|
13 | |||
|
14 | |||
|
15 | |||
|
16 | |||
|
17 | |||
|
Примечание - Места измерения Th, Tm и Tb можно выбирать в местах имеющихся шаблонов лопасти рабочего колеса. | |||
B.17 Карта осмотра, обод рабочего колеса
|
Станция |
N агрегата |
Дата |
Подпись |
|
| |||
|
Точка измерения |
Толщина T | ||
|
1 | |||
|
2 | |||
|
3 | |||
|
4 | |||
|
Примечание - Точки измерения расположены под углом 90° друг к другу. | |||
B.18 Карта осмотра, направляющие лопатки
|
Станция |
N агрегата |
Дата |
Подпись | ||||
|
| |||||||
|
Направляющая лопатка N |
Поверхность к крышке турбины, S1 |
Поверхность к нижнему кольцу, S2 |
Поверхность вокруг нижней цапфы S3 |
Верхняя цапфа направляющей лопатки S4 | |||
|
1 | |||||||
|
2 | |||||||
|
3 | |||||||
|
4 | |||||||
|
5 | |||||||
|
6 | |||||||
|
7 | |||||||
|
8 | |||||||
|
9 | |||||||
|
10 | |||||||
|
11 | |||||||
|
12 | |||||||
|
13 | |||||||
|
14 | |||||||
|
15 | |||||||
|
16 | |||||||
|
17 | |||||||
|
18 | |||||||
|
19 | |||||||
|
20 | |||||||
B.19 Карта осмотра, облицовки и крышки
|
Станция |
N агрегата |
Дата |
Подпись | |
|
| ||||
|
Точка измерения N |
Верхняя облицовка Stu |
Крышка турбины Scu |
Нижняя облицовка Sfl |
Нижнее кольцо Scl |
|
1 | ||||
|
2 | ||||
|
3 | ||||
|
4 | ||||
|
Примечания 1 Scu и Scl измеряют только в случае, если материала облицовки больше не осталось. 2 Точки измерения расположены под углом 90° друг к другу. | ||||
B.20 Карта осмотра, верхнее неподвижное уплотнение
|
Станция |
N агрегата |
Дата |
Подпись | |
|
| ||||
|
Положение 1 |
Положение 2 |
Положение 3 |
Положение 4 | |
|
Выступ 1 F1 | ||||
|
Выступ 1 F2 | ||||
|
Примечание - Точки измерения расположены под углом 90° друг к другу. | ||||
B.21 Карта осмотра, верхнее подвижное уплотнение
|
Станция |
N агрегата |
Дата |
Подпись | |
|
| ||||
|
Положение 1 |
Положение 2 |
Положение 3 |
Положение 4 | |
|
Выступ 1 F1 | ||||
|
Выступ 1 F2 | ||||
|
Выступ 1 F3 | ||||
|
Примечание - Точки измерения расположены под углом 90° друг к другу. | ||||
B.22 Карта осмотра, нижнее неподвижное уплотнение
|
Станция |
N агрегата |
Дата |
Подпись | |
|
| ||||
|
Положение 1 |
Положение 2 |
Положение 3 |
Положение 4 | |
|
Поверхность 1 S1 | ||||
|
Поверхность 2 S2 | ||||
|
Поверхность 3 S3 | ||||
|
Поверхность 4 S4 | ||||
|
Поверхность 5 S5 | ||||
|
Поверхность 6 S6 | ||||
|
Примечание - Точки измерения расположены под углом 90° друг к другу. | ||||
B.23 Карта осмотра, нижнее подвижное уплотнение
|
Станция |
N агрегата |
Дата |
Подпись | |
|
| ||||
|
Положение 1 |
Положение 2 |
Положение 3 |
Положение 4 | |
|
Поверхность 1 S1 | ||||
|
Поверхность 2 S2 | ||||
|
Поверхность 3 S3 | ||||
|
Поверхность 4 S4 | ||||
|
Поверхность 5 S5 | ||||
|
Поверхность 6 S6 | ||||
|
Примечание - Точки измерения расположены под углом 90° друг к другу. | ||||
B.24 Карта осмотра, ковш рабочего колеса
|
Станция |
N агрегата |
Дата |
Подпись | ||||||||
|
| |||||||||||
|
Зазор по шаблону | |||||||||||
|
Номер ковша |
1 |
2 |
3 |
4 |
5 |
6 |
7 |
8 |
9 |
10 |
11 |
|
1 | |||||||||||
|
2 | |||||||||||
|
3 | |||||||||||
|
4 | |||||||||||
|
5 | |||||||||||
|
6 | |||||||||||
|
7 | |||||||||||
|
8 | |||||||||||
|
9 | |||||||||||
|
10 | |||||||||||
|
11 | |||||||||||
|
12 | |||||||||||
|
13 | |||||||||||
|
14 | |||||||||||
|
15 | |||||||||||
|
16 | |||||||||||
|
17 | |||||||||||
|
18 | |||||||||||
|
19 | |||||||||||
|
20 | |||||||||||
|
21 | |||||||||||
|
22 | |||||||||||
B.25 Карта осмотра, рассекатель ковша рабочего колеса
|
Станция |
N агрегата |
Дата |
Подпись |
|
| |||
|
Номер ковша |
T1 |
T2 |
Δh |
|
1 | |||
|
2 | |||
|
3 | |||
|
4 | |||
|
5 | |||
|
6 | |||
|
7 | |||
|
8 | |||
|
9 | |||
|
10 | |||
|
11 | |||
|
12 | |||
|
13 | |||
|
14 | |||
|
15 | |||
|
16 | |||
|
17 | |||
|
18 | |||
|
19 | |||
|
20 | |||
|
21 | |||
|
22 | |||
Приложение C
(справочное)
C.1 Общая часть
Отбор проб воды может быть разделен на две разные фазы с различными приведенными ниже требованиями:
Фаза 1. Отбор проб в естественных реках до реализации проекта гидроэлектростанции для оценки количества и свойств, проходящих через проектируемые сооружения частиц. Результат анализа такого отбора проб может использоваться для планирования разных стратегий минимизации абразивного износа, например устройства отстойников, применения стойких к абразивному износу покрытий, выбора турбины, межремонтного интервала и т.д.
Фаза 2. Отбор проб в существующих гидротурбинных установках для документирования количества и свойств частиц, фактически проходящих через гидротурбинный агрегат. Результат такого анализа может использоваться для оценки эффективности различных стратегий снижения абразивных повреждений, планирования капитальных ремонтов, технического обслуживания и т.д. В частности, измерения концентрации могут использоваться для принятия оперативных решений, таких как остановка турбины во время паводка.
Наилучшим способом регистрации концентрации частиц является применение "постоянной" измерительной системы в режиме реального времени, так чтобы изменения концентрации могли быть детально видны и могли использоваться в дальнейших расчетах. Такие промышленные автоматические системы существуют, однако практический опыт их применения незначителен. Перед их внедрением настоятельно рекомендуется калибровка таких систем измерения реального времени на параметры частиц (размер, форму, концентрацию, цвет и т.д.), которые в будущем будут действительно проходить через измерительную систему. Для такой калибровки предпочтительно использовать реальные наносы из реки. Значение измеренной концентрации необходимо проверять по крайней мере один раз в неделю во время паводка и один раз в месяц в межень. Такую проверку следует проводить совместно с ручными измерениями способом фильтрации (см. приложение D).
Если измерения проводятся не "постоянно", частота измерений зависит от изменения во времени концентрации частиц, как это описано в приложении E.
C.2 Отбор проб перед постройкой электростанции
Методики описаны в нескольких публикациях и инструкциях (см. библиографию).
Отбор проб следует проводить по крайней мере 2 года, предпочтительно дольше. Важно измерять концентрацию частиц. Данные по величине наносов в реке менее значимы для эрозии турбины.
При использовании результатов проб для оценки количества частиц, проходящих через гидротурбину, нужно принимать во внимание следующие дополнительные факторы:
- донные наносы не должны поступать в проточный тракт гидротурбины;
- если предусматривается водохранилище, геометрия водохранилища и расход реки будут влиять на заиление водохранилища. Оценка отложений в водохранилищах очень сложна и должна выполняться специалистами;
- если планируется, следует учитывать наличие устройства для удаления песка.
Вышеупомянутые пункты следует принимать во внимание при измерении в верхнем бьефе существующей электростанции с целью раннего предупреждения об очень высокой концентрации частиц.
C.3 Отбор проб на существующих электростанциях
Если средства отбора проб были подготовлены должным образом во время постройки сооружений, то производить отбор проб в этой фазе относительно легко. Подходящим местом для отбора проб является конус отсасывающей трубы, например, у смотрового лаза. Другими возможными местами являются:
- в проточном тракте после устройства удаления песка для контроля его эффективности;
- в отводном канале ковшовых турбин.
Если отбор проб производится с перерывами и течение воды непостоянно, важно перед отбором пробы позволить воде идти некоторое время (не менее чем 2 мин). Это делается для смыва любого накопившегося осадка в трубах отбора проб или около них.
Для исключения неверного истолкования результатов целесообразно не производить никакого отбора проб при отсутствии постоянного течения воды в проточном тракте. Такие пробы могут вводить в заблуждение, так как на них может влиять наличие осадка внутри проточного тракта.
C.4 Регистрация проб
Является важным документировать порядок отбора проб и включать это в отчет.
Образцы проб следует помещать в подходящие контейнеры (например, бутылки) и немедленно маркировать. Должна быть произведена запись, которая ясно идентифицирует время и место отбора пробы. Для правильного понимания мест расположения отбора проб полезны рисунки и фотографии.
Приложение D
(справочное)
D.1 Общая часть
Анализ частиц в проходящей через турбину воде должен включать все параметры, необходимые для оценки действия гидроабразивной эрозии, которое могут оказывать на части турбины содержащиеся в воде частицы. Анализ частиц должен включать:
- концентрацию частиц;
- распределение частиц по размерам;
- минералогический состав;
- форму частиц;
- долю органического вещества, если применимо.
D.2 Концентрация частиц
Концентрация частиц - это не растворенные в воде частицы (см. 3.8). Анализ концентрации может производиться в соответствии с ИСО 4365:2005.
D.3 Распределение частиц по размерам
Так как частицы разного размера ведут себя в потоке воды неодинаково, то это также влияет на тип наносимых ими частям турбины повреждений. Поэтому распределения частиц по размерам следует получать с соответствующими интервалами. С данными также должен быть приведен метод измерения.
Распределение частиц по размерам следует выполнять в два этапа. Для частиц большого размера (> 0,063 мм) хорошим способом является просеивание. Анализ фракции частиц малого размера (< 0,05 мм) требуется производить с помощью лазерной гранулометрии.
Методика просеивания приведена в ИСО 4365:2005.
D.4 Минералогический состав
Минералогический состав следует определять для репрезентативной пробы частиц рентгенографическим методом. Если распределение частиц по размерам является очень широким, то для анализа минералогического состава необходимо использовать различные по размерам фракции из распределения частиц, так как из-за различной твердости минералов имеется значительная разница действия гидроабразивной эрозии. Проведение только петрографического анализа недостаточно, поскольку возможна слишком большая погрешность.
D.5 Форма частиц
Чтобы была видна форма типичных частиц, следует приложить к отчету сделанные с помощью микроскопа фотографии различных фракций. Это делается с целью определения, являются ли преобладающими в осадке округлые частицы или частицы с острыми краями.
На рисунке D.1 приведены три типичных примера таких видов: округленный, угловато-окатанный и остроугольный. Фотографии следует выбирать так, чтобы был ясно виден представительный набор частиц.

Рисунок D.1 - Типичные примеры формы частиц
Приложение E
(справочное)
В случае, когда методика измерения PL основывается не на постоянном мониторинге, а на дискретном отборе проб, сразу возникает вопрос о периодичности между двумя отборами проб. Для выявления с минимальной пороговой неточностью всех значительных колебаний концентрации частиц интервалы между измерениями должны быть достаточно малы. Продолжительность интервала между отбором проб может быть различна в периоды высокой концентрации и периоды низкой концентрации. Эмпирическим правилом оценки обоснованного интервала времени является следующее выражение:
Ts = 0,01 · PLyear/PLmax. (E.1)
По этой формуле в качестве практического примера можно получить следующие интервалы между пробами:
- период "сильные наносы":
PLyear = 85 кг·ч/м3
PLmax = 0,12 кг/м3,
тогда:
Ts = 0,01·85/0,12 ч ≈ 8 ч для периода "сильные наносы";
- период "слабые наносы":
PLyear = 85 кг·ч/м3
PLmax = 0,0025 кг/м3,
тогда:
Ts = 0,01·85/0,0025 = 340 ч ≈ 14 дней для периода "слабые наносы".
По практическим соображениям рекомендуется использовать следующие интервалы отбора проб: один раз в час, один раз в день, один раз в неделю, один раз в две недели и один раз в месяц. Выбирается меньший, следующий за вычисленным, интервал.
В первый год эксплуатации для измерения формы, твердости и размера рекомендуется отбирать по крайней мере одну пробу в месяц. Если вариация Khardness, Kshape и Ksize менее 10%, то после первого года интервал отбора проб может быть удвоен. Если вариация Khardness, Kshape и Ksize более 20%, то, как только это обнаружилось, интервал отбора проб можно уменьшить наполовину.
Приложение F
(справочное)
F.1 Общая часть
Оптимальное время капитального ремонта агрегата определяется, как правило, экономическими критериями. Оно определяется сочетанием многих факторов, свойственных любой электростанции, таких как:
1) стоимость снижения КПД;
2) стоимость капитального ремонта;
3) увеличенный риск неготовности;
4) подходящее для капитального ремонта время года
и т.д.
Ситуацию, когда эксплуатация агрегата более не является безопасной, можно рассматривать как предельное техническое состояние.
Некоторые типичные критерии, которые можно использовать, приведены ниже. Подчеркивается, что при эксплуатации электростанции будет накапливаться значительный опыт касательно работы конкретных агрегатов и оптимального для каждого частного случая интервала между капитальными ремонтами. Нижеприведенный список служит только как первое приближение к возможным критериям капитального ремонта.
Критерии были разделены на критерии, которые можно определить при работе агрегата, и критерии, которые требуют внутреннего обследования агрегата.
F.2 Параметры, доступные для наблюдения во время работы агрегата
1) КПД ухудшилось в такой степени, что является экономически выгодным восстановление агрегата до его проектной эффективности. Для определения снижения КПД требуется провести некоторого вида испытания по определению КПД. Поскольку требуется измерить только относительное снижение КПД, то вместо полных испытаний на КПД, проводимых в соответствии с МЭК 60041, может использоваться простая система, базирующаяся на методе измерения расхода Винтера-Кеннеди, или постоянно установленный ультразвуковой расходомер. Другой возможностью является постоянный мониторинг КПД, основанный на эксплуатационных данных.
2) Уменьшение выходной мощности при некотором определенном открытии. Следует отметить, однако, что расход для такого же открытия может в результате гидроабразивной эрозии измениться. Следовательно, такой метод следует использовать только после накопления некоторого опыта по связи между измеренной мощностью и соответствующими повреждениями из-за гидроабразивной эрозии.
3) Если конструкция турбины предусматривает наличие разгрузочных труб крышки турбины, то очень хорошим показателем износа лабиринтных уплотнений является расход в трубах разгрузки. Это может использоваться как критерий для капитального ремонта.
4) Действительное значение осевого усилия также может быть показателем износа лабиринта, даже при меньшей своей точности по сравнению с расходом через трубы разгрузки. Перед использованием его в качестве критерия капитального ремонта следует сопоставить его с опытом касательно связи между измеренным осевым усилием и соответственными повреждениями из-за гидроабразивного износа.
5) Время, требующееся для остановки агрегата или, иначе, на достижение установившихся оборотов после закрытия направляющих лопаток с открытым предтурбинным затвором. Оно связано с гидроабразивной эрозией направляющих лопаток и крышек.
6) Давление в спиральной камере при закрытом предтурбинном затворе и с открытым байпасом. Оно связано с гидроабразивным износом направляющих лопаток и крышек.
7) Износ рабочего уплотнения вала может соответствовать гидроабразивному износу агрегата, хотя это зависит от конструкции уплотнения вала. Поэтому этот критерий следует использовать только после накопления некоторого опыта по связи между износом уплотнения и соответствующими повреждениями из-за гидроабразивной эрозии.
F.3 Критерии, требующие внутреннего обследования агрегата
1) Выходная кромка рабочего колеса уменьшилась по толщине более чем на две трети (для больших турбин) или совершенно стерта (для малых турбин). Следует заметить, что уменьшение толщины лопасти уменьшает прочность лопасти и что наличие трещины лопасти будет решающим по сравнению с измерением ее толщины.
2) Облицовки крышки турбины и нижнего кольца совершенно истончены.
3) Зазор лабиринтных уплотнений рабочего колеса увеличен более чем в два раза.
4) Для составных частей, покрытых стойким к гидроабразивному износу покрытием, область с сорванным покрытием превышает от 5% до 10% общей площади покрытия.
Вышеупомянутые критерии 1 - 3 относятся к радиально-осевым турбинам, в то время как критерий 4 относится ко всем типам турбины.
Приложение G
(справочное)
Предположим, что имеем радиально-осевую турбину со следующими основными данными:
n = 300 об/мин,
P = 255 МВт,
H = 428 м,
D = RS = 2,507 м.
Целью является расчет ожидаемой глубины гидроабразивной эрозии направляющих лопаток, облицовок на входе и выходе рабочего колеса, а также лабиринтных уплотнений, причиной которой является PL, рассчитанная в приложении A, т.е. PL = 38,28. Все части изготовлены из мартенситной нержавеющей стали.
Основная формула расчета глубины гидроабразивной эрозии:
S = W3,4 · PL · Km · Kf/RSp. (G.1)
Первым шагом является вычисление характерных скоростей. Коэффициент быстроходности для этого агрегата составит:
ns = n · P0,5/H1,25 = 300 · 255 0000,5/4281,25 = 77,8. (G.2)
В соответствии с рисунком 1:
Wrun = (0,25 + 0,003·ns) · (2·g·H)0,5 = (0,25 + 0,003·77,8) · (2·9,81·428)0,5 = 44,3 (м/с),
Wgv = 0,55·(2·g·H)0,5 = 0,55·(2·9,81·428)0,5 = 50,4 (м/с).
В соответствии с I.1 для мартенситной нержавеющей стали Km = 1.
В соответствии с таблицей 1 Kf и p для различных составных частей будут:
направляющие лопатки: Kf = 1,06·10-6, p = 0,25;
облицовки: Kf = 0,86·10-6, p = 0,25;
вход рабочего колеса: Kf = 0,90·10-6, p = 0,25;
выход рабочего колеса: Kf = 0,54·10-6, p = 0,75;
лабиринтные уплотнения: Kf = 0,38·10-6, p = 0,75.
Таким образом, для направляющих лопаток глубина гидроабразивной эрозии будет:
S = W3,4 · PL · Km · Kf/RSp = 50,43,4·38,28·1·1,06·10-6/2,5070,25 = 20 (мм).
Для других конструктивных частей расчет приведен в таблице G.1.
|
Конструктивная часть |
W |
PL |
Km |
Kf |
p |
S, мм |
|
Направляющие лопатки |
50,4 |
3,84 |
1 |
1,06·10-6 |
0,25 |
20 |
|
Облицовки |
50,4 |
3,84 |
1 |
0,86·10-6 |
0,25 |
16 |
|
Вход рабочего колеса |
50,4 |
3,84 |
1 |
0,90·10-6 |
0,25 |
17 |
|
Выход рабочего колеса |
44,3 |
3,84 |
1 |
0,54·10-6 |
0,75 |
6,5 |
|
Лабиринтные уплотнения |
44,3 |
3,84 |
1 |
0,38·10-6 |
0,75 |
4,6 |
Стандартное отклонение для направляющих лопаток в соответствии с таблицей I.1 будет 42%. Это означает, что с вероятностью 67% фактическое значение S для направляющих лопаток будет находиться между 11 и 28 мм. Полученная оценка может показаться не слишком точной, но это наилучшая оценка, которая может быть получена на основании имеющихся на настоящий момент данных. Следует надеяться, что в будущем можно будет собрать больше данных в соответствующем формате, чтобы модифицировать формулу для получения более точных оценок.
Приложение H
(справочное)
В таблице H.1 приведен пример расчета для ковшовой турбины.
|
Наименование показателя |
Обозначение |
Размерность |
Эталонная турбина |
Планируемая турбина |
|
Тип |
Ковшовая |
Ковшовая | ||
|
С покрытием/без покрытия |
С покрытием |
С покрытием | ||
|
Ширина ковша |
B2 |
мм |
700 |
365 |
|
Количество сопел |
zjet |
1 |
6 | |
|
Количество ковшей |
z2 |
21 |
22 | |
|
Средняя концентрация частиц |
C |
кг/м3 |
0,220 |
0,090 |
|
Фракция частиц с твердостью по Моосу от 5 до 5,4 |
% |
0 |
0 | |
|
Фракция частиц с твердостью по Моосу от 5,5 до 5,9 |
% |
22 |
25 | |
|
Фракция частиц с твердостью по Моосу от 6 до 6,9 |
% |
0 |
0 | |
|
Фракция частиц с твердостью по Моосу от 7 до 7,9 |
% |
40 |
55 | |
|
Фракция частиц с твердостью по Моосу > 8 |
% |
0 |
0 | |
|
Коэффициент формы (1 - округленная, 1,5 - угловато-окатанная, 2 - остроугольная) |
Kshape |
- |
1 |
1,5 |
|
Характерная скорость (рабочее колесо) |
Wrun |
м/с |
67 |
46 |
|
Время между капитальными ремонтами TBO |
ч |
13600 |
5500 |
Расчет TBO:
TBOtarget = Sref,calc/Starget,calc · TBOref, (H.1)
Sref,calc/Starget,calc = Wref3,4/Wtarget3,4 · PLref/PLtarget · Km,ref/Km,target · Kf,ref/Kf,target · B2,target/B2,ref = 3,59·1,19·1·0,180·0,521 = 0,401;
при
Wref3,4/Wtarget3,4 = 3,59;
PLref/PLtarget = Cref/Ctarget · Kshape,ref/Kshape,target · Ksize,ref/Ksize,target · Khardness,ref/Khardness,target = 1,19.
Допущения:
- постоянство по году;
- Ksize,ref/Ksize,target = 1 (распределение размера зерна в обоих случаях принимают одинаковым);
- Khardness,ref/Khardness,target ≈ 0,73
(так как оба рабочих колеса с покрытием, то используется только та фракция, которая имеет по Моосу твердость выше 7. Отношение для обеих фракций равно 0,73),
Km,ref/Km,target = 1 (оба с покрытием),
Kf,ref/Kf,target = [zjet,ref/z2,ref)]/[zjet,target/z2,target] = 0,180,
B2,target/B2,ref = 365/700 = 0,521,
TBOtarget = 0,401·13 600 ч ~ 5 500 ч.
В таблице H.2 приведен пример расчета для радиально-осевой турбины.
|
Наименование показателя |
Обозначение |
Размерность |
Эталонная турбина |
Планируемая турбина |
|
Тип |
Радиально-осевая |
Радиально-осевая | ||
|
С покрытием/без покрытия |
С покрытием |
С покрытием | ||
|
Контрольный диаметр |
D |
м |
1,279 |
2,523 |
|
Средняя концентрация частиц |
C |
кг/м3 |
0,126 |
0,716 |
|
Фракция частиц с твердостью по Моосу от 5 до 5,4 |
% |
0 |
0 | |
|
Фракция частиц с твердостью по Моосу от 5,5 до 5,9 |
% |
2 |
2 | |
|
Фракция частиц с твердостью по Моосу от 6 до 6,9 |
% |
16 |
3,3 | |
|
Фракция частиц с твердостью по Моосу от 7 до 7,9 |
% |
38 |
75 | |
|
Фракция частиц с твердостью по Моосу > 8 |
% |
0 |
0 | |
|
Фактор формы (1 - округленная, 1,5 - угловато-окатанная, 2 - остроугольная) |
Kshape |
- |
1 |
1,5 |
|
Характерная скорость (рабочее колесо) |
Wrun |
м/с |
59,9 |
47,6 |
|
Время между капитальными ремонтами TBO |
ч |
22800 |
5800 |
Расчет TBO:
TBOtarget = Sref,calc/Starget,calc · TBOref, (H.2)
Sref,calc/Starget,calc = Wref3,4/Wtarget3,4 · PLref/PLtarget · Km,ref/Km,target · Kf,ref/Kf,target · Dtarget/Dref = 2,185·0,059·1·1·1,97 = 0,254;
при
Wref3,4/Wtarget3,4 = 2,185;
PLref/PLtarget = Cref/Ctarget · Kshape,ref/Kshape,target · Ksize,ref/Ksize,target · Khardness,ref/Khardness,target = 0,176·0,667·1·0,5 = 0,0587.
Допущения:
- постоянство по году;
- Ksize,ref/Ksize,target = 1 (распределение размера зерна в обоих случаях принимают одинаковым);
- Khardness,ref/Khardness,target ≈ 0,5
(основано на том, что фракция твердых частиц с твердостью по Моосу 7 и более вдвое больше в проектируемой турбине, а так как рабочее колесо с покрытием, то используется только та фракция, которая имеет по Моосу твердость выше 7 в соответствии с 3.12),
Km,ref/Km,target = 1 (оба с покрытием),
Kf,ref/Kf,target = 1 (для радиально-осевой),
TBOtarget = 0,254·22800 ч = 5 800 ч.
Приложение I
(справочное)
I.1 Обоснование модели и вывод
Для демонстрации того, как различные существенные аспекты воздействуют на степень гидроабразивной эрозии турбины, рассматривают следующую формулу:
dS/dt = f (I.1)
(скорость частиц, концентрация частиц, физические свойства частиц, характер потока, свойства материала турбины, прочие факторы).
Формула (I.1) на практике применяется мало, однако могут вводиться некоторые упрощения. Первое упрощение - полагать, что некоторые переменные независимы и функцию можно представить в следующем виде:
dS/dt = f(скорость частиц) · f(концентрация частиц) · f(физические свойства частиц, свойства материала турбины) · f(физические свойства частиц) · f(характер потока) · f(свойства материала турбины) · f(прочие факторы). (I.2)
Оправданность такого упрощения не доказана. Фактически может быть найдено много примеров нестрогой точности данного упрощения. Тем не менее, основываясь на обследовании технической литературы и опыте, такое упрощение считают для гидравлических машин оправданным.
Следующее упрощение состоит в присвоении значений функциям. В последующих уравнениях должны использоваться численные значения параметров без единиц измерения. Единицы, на которых основываются значения, приведены ниже:
- f(скорость частиц) = (скорость частиц)n. В литературе часто считают, что абразивный износ пропорционален скорости в степени n. Большинство источников дают значения n между 2 и 4. В настоящем стандарте предлагают использовать n = 3, 4. Скорость частиц в м/с;
- f(концентрация частиц) = концентрация частиц, кг/м3;
- f(физические свойства частиц, свойства материала турбины) = Khardness = функция, показывающая твердость частиц по отношению к материалу поверхности. На данной стадии предполагают использовать значение Khardness = фракции частиц более твердых, чем материал поверхности (см. 2.2.12);
- f(характер потока) = Kf/RSp (Kf = константа для каждой части турбины, RS = справочный размер турбины, м, p = показатель степени для каждой части турбины). Kf учитывает угол столкновения и турбулентность потока, RSp учитывает радиус кривизны части;
- f(физические свойства частиц) = f(размер частиц, форма частиц, твердость частиц) = f(размер частиц) · f(форма частиц) = Ksize · Kshape. Следует отметить, что при таком упрощении принимают отсутствие в этой функции влияния твердости частиц. Твердость частиц учитывают коэффициентом Khardness;
- Ksize = медианный диаметр частиц, мм;
- Kshape = f(угловатость частиц). Считают, что Kshape увеличивается со степенью неравномерности состава частиц. В настоящее время не имеется конкретных данных, но несколько литературных источников показывают, что Kshape изменяется от 1 до 2, что соответствует формам от округлой до остроугольной;
- f(свойства материала турбины) = Km. В настоящем руководстве считают, что Km = 1 для мартенситной нержавеющей стали с 13% Cr и 4% Ni и Km = 2 для углеродистой стали. Для частей с покрытием Km должно быть менее 1;
- f(прочие факторы) = 1.
Снова напомним, что эти функции являются техническими аппроксимациями для получения пригодных для гидравлических машин результатов. Таким образом, имеем следующую формулу:
dS/dt = (скорость частиц)3,4 · C · Khardness · Ksize · Kshape · Kf/RSp · Km. (I.3)
Финальным шагом является интегрирование этого выражения по времени. При интегрировании мы обнаружим три четко различающихся по изменению во времени типа переменных:
1) скорость частиц и Kf: эти переменные изменяются в зависимости от потока у отдельных конструктивных частей, который в свою очередь может изменяться с напором и расходом;
2) C, Khardness, Ksize и Kshape: эти переменные изменяются со свойствами частиц. Проинтегрировав по времени эти переменные, получим абразивную нагрузку PL (см. 2.2.9 для определения PL и приложение A для примера вычисления);
3) RS, p и Km: эти переменные постоянны во времени.
Для того чтобы получить простую и достаточно точную оценку интеграла по времени, вводится переменная PL (см. 2.2.9). PL включает на периоде времени C, Khardness, Ksize и Kshape. При использовании PL скорость частиц и Kf можно приблизительно рассматривать как постоянные при ограниченном изменении напора и расхода (см. I.2). Так как эти переменные считают постоянными величинами, Kf и p используют как калибровочные коэффициенты для обеспечения хорошего соответствия между фактическими данными испытаний и представленной формулой. Скорость частиц может быть заменена на характерную скорость W, определенную в разделе 2 (терминологические статьи 2.2.20 - 2.2.23).
Проинтегрированное по времени выражение будет иметь вид:
S = W3,4 · PL · Km · Kf/RSp, (I.4)
где S - это численное значение глубины гидроабразивной эрозии, мм.
I.2 Введение к переменной PL
В настоящем стандарте переменная PL используется для определения количества проходящих через турбину частиц и отражает относительный потенциал гидроабразивной эрозии в определенный период. Ранее обычным способом интегрирования гидроабразивной эрозии по времени был учет общего веса проходящих через турбину частиц. Преимуществами переменной PL являются следующие:
- переменная PL дает более точные результаты, поскольку учитывает изменения расхода и напора. Подробный пример приведен ниже;
- по своей природе PL учитывает изменчивость всех свойств частиц, а не только концентрацию частиц;
- PL зависит только от используемой воды и не зависит от размера турбины и/или расхода. Таким образом, ее можно напрямую использовать для сравнения условий на разных объектах и для разных компоновок.
Для иллюстрации приведенного выше первого пункта рассмотрим следующий пример. Сопло ковшовой турбины (см. рисунок I.1) находится в работе 1 день. Предположим, что имеем напор 800 м и концентрация абразивных частиц составляет 0,1 кг/м3.
Случай 1. При полном открытии (верхняя часть рисунка I.1) вода с частицами проходит через седло со скоростью (2·g·H)0,5 = 125 м/с. За один день масса проходящих через сопло частиц составит 2 м3/с·3600 с/ч·24 ч/день·0,1 кг/м3·1 день = 17 т.
Случай 2. При открытии 10% (нижняя часть рисунка I.1) вода с частицами проходит через седло с той же скоростью, как и в случае 1 (125 м/с). За один день масса проходящих через сопло частиц составит 0,2 м3/с·3600 с/ч·24 ч/день·0,1 кг/м3·1 день = 1,7 т.
В обоих случаях седло подвержено гидроабразивной эрозии с той же концентрацией частиц, при такой же скорости воды и за то же количество времени. Поэтому ожидаемые повреждения из-за гидроабразивной эрозии одинаковы. Переменная PL в обоих случаях выдает такое же значение. Однако общая масса прошедших через агрегат частиц в случае 1 по сравнению со случаем 2 в 10 раз больше. Таким образом, ожидается, что PL лучше коррелирует с повреждениями из-за гидроабразивной эрозии, чем общая масса прошедших через седло частиц.

Рисунок I.1 - Пример характера потока в сопле ковшовой турбины при разных нагрузках
Подобная аргументация может быть применена также и к другим подвергающимся гидроабразивной эрозии конструктивным частям. Ниже приведена краткая сводка таких исследований.
- Наконечник иглы ковшовой турбины.
Ожидается очень хорошая корреляция между PL и повреждениями от гидроабразивной эрозии с небольшой зависимостью от расхода или напора турбины. Некоторая зависимость от расхода турбины происходит из-за того, что скорость воды ниже в глубине сопла, где расположена игла при больших расходах. Некоторая зависимость от напора турбины происходит из-за того, что скорость воды пропорциональна квадратному корню напора. С обычными для конструкций ковшовых турбин вариациями напора и расхода эту зависимость для простоты не учитывают.
- Рабочее колесо ковшовой турбины.
Ожидается хорошая корреляция между PL и повреждениями от гидроабразивной эрозии с небольшой зависимостью от расхода или напора турбины. Некоторая зависимость от расхода турбины происходит из-за того, что слой воды толще при больших расходах и поэтому больше частиц может быть действием центробежных сил прижато к наружной поверхности. Некоторая зависимость от напора турбины происходит из-за того, что относительная скорость воды в рабочем колесе зависит от напора. С обычными для конструкций ковшовых турбин вариациями напора и расхода эту зависимость для простоты не учитывают.
- Направляющие лопатки и крышки/облицовки радиально-осевой и поворотно-лопастной турбин.
Ожидается хорошая корреляция между PL и повреждениями от гидроабразивной эрозии с небольшой зависимостью от расхода или напора турбины. Некоторая зависимость от расхода турбины происходит из-за того, что скорость воды выше при низком расходе и разница давлений между двумя поверхностями направляющей лопатки изменяется с расходом. В частности, если агрегат остановлен с находящейся под давлением спиральной камерой, скорость текущей из-за протечек через направляющие лопатки воды велика. Некоторая зависимость от напора турбины происходит из-за того, что относительная скорость воды в направляющих лопатках зависит от напора. С обычными для конструкций радиально-осевых и поворотно-лопастных турбин вариациями напора и расхода эту зависимость для простоты не учитывают.
- Уплотнения/лабиринты радиально-осевой турбин.
Ожидается очень хорошая корреляция между PL и повреждениями от гидроабразивной эрозии с небольшой зависимостью от расхода или напора турбины. Некоторая зависимость от расхода и напора турбины происходит из-за того, что они влияют на давление перед и за уплотнением и таким образом на протечки через уплотнение. С обычными для конструкций радиально-осевых турбин вариациями напора и расхода эту зависимость для простоты не учитывают.
- Входные кромки лопастей рабочего колеса радиально-осевой турбины.
Ожидается хорошая корреляция между PL и повреждениями от гидроабразивной эрозии с небольшой зависимостью от расхода или напора турбины. Ожидается некоторая зависимость от расхода турбины, которая происходит из-за того, что скорость воды выше при низком расходе. Более того, разница давлений между двумя поверхностями направляющих лопаток изменяется с их открытием, что приводит к появлению повышенных протечек между направляющими лопатками и крышками, что в свою очередь приводит к более неблагоприятным условиям обтекания на входе в рабочее колесо. Отклонения расхода и напора от оптимальной рабочей точки также приводят к более неблагоприятным условиям обтекания на входе в рабочее колесо. С обычными для конструкций радиально-осевых турбин вариациями напора и расхода, и пока нет наличия кавитации на входе в колесо, эту зависимость для простоты не учитывают.
- Выходные кромки лопастей рабочего колеса радиально-осевой турбины.
Ожидается приемлемая корреляция между PL и повреждениями от гидроабразивной эрозии с небольшой зависимостью от расхода или напора турбины. При частичных нагрузках имеются два основных явления, оказывающих влияние на гидроабразивную эрозию. Первое - это то, что средняя скорость (определяемая как общий расход, поделенный на площадь проточной части) уменьшается с уменьшением расхода. Второе - это то, что при низком расходе (типично ниже, чем от 50% до 80% от максимального расхода) увеличивается степень турбулентности и распределение потока теряет однородность. Эти два явления действуют на гидроабразивную эрозию противоположным образом, однако ожидается, что эффект турбулентности будет преобладать и что таким образом при частичной нагрузке гидроабразивная эрозия увеличится. Однако эту зависимость из-за отсутствия подтверждающих данных и в целях простоты не учитывают.
- Лопасть поворотно-лопастной турбины.
Ожидается очень хорошая корреляция между PL и повреждениями от гидроабразивной эрозии с небольшой зависимостью от расхода или напора турбины. С обычными для конструкций поворотно-лопастных турбин вариациями напора и расхода эту зависимость для простоты не учитывают.
- Камера рабочего колеса поворотно-лопастной турбины.
Ожидается хорошая корреляция между PL и повреждениями от гидроабразивной эрозии с небольшой зависимостью от расхода или напора турбины. С обычными для конструкций поворотно-лопастных турбин вариациями напора и расхода эту зависимость для простоты не учитывают.
I.3 Калибровка формулы
Эксплуатационному персоналу тех станций, о которых известно, что там имеются связанные с гидроабразивной эрозией проблемы, был направлен вопросник. Целью этого вопросника являлся сбор и анализ данных о степени гидроабразивной эрозии как можно для больших комбинаций качества воды, режимов эксплуатации, материалов и свойств составных частей.
Эти данные анализировались для получения наилучшего возможного соответствия между вычисленным и наблюдаемым объемом гидроабразивной эрозии и для каждой составной части определялись коэффициент Kf и показатель степени p. Затем по всем наблюдениям на однотипных составных частях определялись средние значения Kf и p. Результаты приведены в таблице 1 в основной части настоящего стандарта.
Было определено отношение между измеренной и рассчитанной глубиной гидроабразивной эрозии и вычислено стандартное отклонение. В приведенной ниже таблице I.1 показано полученное при анализе стандартное отклонение вместе с числом наблюдений для каждого типа составной части.
|
Составная часть |
Число наблюдений |
Стандартное отклонение, % |
|
Направляющие лопатки радиально-осевой турбины |
7 |
42 |
|
Облицовки радиально-осевой турбины |
7 |
38 |
|
Лабиринтные уплотнения радиально-осевой турбины |
7 |
30 |
|
Вход рабочего колеса радиально-осевой турбины |
6 |
26 |
|
Выход рабочего колеса радиально-осевой турбины |
6 |
41 |
Хотя значения стандартного отклонения в таблице I.1 показывают, что формула дает приемлемую точность, следует иметь в виду, что количество наблюдений ограничено и что дальнейшие наблюдения могут эту формулу улучшить.
Достаточные для осмысленного анализа данные имелись только для радиально-осевых турбин. Достаточных данных, чтобы дать подробные указания для поворотно-лопастных и ковшовых турбин, не имеется.
Оказалось, что на основе существующих измерений затруднительно получить полные и недвусмысленные данные наблюдений. Можно надеяться, что дополнительные наблюдения могут быть проведены в будущем для дальнейшей калибровки и пересмотра имеющейся модели гидроабразивной эрозии.
Приложение J
(справочное)
J.1 Технические условия
Качество такого твердого покрытия сильно зависит от нескольких влияющих факторов, таких как технические условия на процесс нанесения покрытия, подготовка поверхности под покрытие, параметры процесса и используемые расходные материалы. Также важную роль играет персонал, наносящий покрытие.
Для обеспечения должного функционирования применяемые для защиты от гидроабразивной эрозии твердые покрытия должны соответствовать определенным требованиям к качеству. Ниже перечислены некоторые указания по справочным значениям для материала напыления WC-CoCr (86/10-4):
- шероховатость поверхности Ra должна быть менее 8 мкм;
- сила сцепления должна быть свыше 60 МПа;
- средняя твердость по 10 точкам измерения на покрытии должна быть более 1000 HV0,3.
J.2 Контроль качества
Во время покрытия конструктивной части рекомендуется покрывать опытные образцы, производя в точности тот же самый процесс (например, подготовку поверхности, предварительный подогрев, нанесение покрытия и т.д.), используемый на тех конструктивных частях, на которые будет наноситься покрытие.
Измерения и обследования должен выполнять обученный персонал, который должен подтвердить свою квалификацию посредством предоставления соответствующих документов. В таблице J.1 перечислены некоторые пункты для включения в отчет по обследованию.
|
Наименование показателя |
Единица измерения |
Измеряется в соответствии с |
Измерение на составной части |
Измерение на опытном образце |
|
Шероховатость поверхности |
Ra |
ИСО 4288 или подобный |
X | |
|
Толщина покрытия |
МКМ |
АСТМ B499-09 или ИСО 2178 |
X | |
|
Связующая сила |
МПа |
АСТМ C633-13 или ИСО 14916 |
X | |
|
Твердость по Виккерсу |
HV 0,3 |
ИСО 6507-1 |
X |
Следует провести визуальное обследование 100% участка с нанесенным покрытием. Поверхность с покрытием, как это определено в чертежах, не должна иметь никаких дефектов типа трещин, пор или непокрытых участков.
Если в покрытии применяется грунтовка, то для выявления трещин в покрытии можно применять контроль проникающими красками. Следует отметить, что контроль красками неприменим для негрунтованных (с напылением) поверхностей.
Библиография
|
[1] |
IEC 60193:1999 |
Hydraulic turbines, storage pumps and pump-turbines - Model acceptance tests (Турбины гидравлические, аккумулирующие насосы и турбонасосы. Приемочные испытания на модели) |
|
[2] |
IEC 60609-2:1997 |
Cavitation pitting evaluation in hydraulic turbines, storage pumps and pump-turbines - Part 2: Evaluation in Pelton turbines (Турбины гидравлические, гидроагрегаты гидроаккумулирующих электростанций и турбонасосы. Оценка кавитационного питтинга. Часть 2. Оценка в турбинах Пелтона) |
|
[3] |
IEC TR 61364 |
Nomenclature for hydroelectric powerplant machinery (Гидроэлектростанции. Номенклатура машинного оборудования) |
|
[4] |
ISO 4365:2005 |
Liquid flow in open channels - Sediment in streams and canals - Determination of concentration, particle size distribution and relative density (Измерение потока жидкости в открытых каналах. Наносы в реках и каналах. Определение концентрации, гранулометрического состава и относительной плотности) |
|
[5] |
ISO 11657:2014 |
Hydrometry - Suspended sediment in streams and canals - Determination of concentration by surrogate techniques (Гидрометрия. Взвешенные наносы в потоках и каналах. Определение концентрации суррогатными методами) |
|
[6] |
ASTM G76:1995 |
Standard test method for conducting erosion tests by solid particle impingement using gas jets (Стандартный метод испытаний для проведения эрозионных испытаний ударами твердых частиц с использованием газовых струй) |
|
[7] |
Gray, Aunemo and Rommetveit: 2004 Recent developments in silt erosion coatings, IAHR 22nd Symposium on Hydraulic Machinery and Systems | |
|
[8] |
Wedmark: 2006 Recent progress in silt erosion research, Hydro 2006 | |
|
[9] |
Dr. Y. C. Agrawal, Mr. H. Chuck Pottsmith: 2005 Turbine erosion: Lasers warn of abrasive sediments, Hydro 2005 Conference, Villach, Austria | |
|
[10] |
Mann B.S., Arya V., Dadu V., Manea L: 2001 Hydro Project Equipment: Solutions for Common Challenges, HRW/July 2001 | |
|
[11] |
Mann B.S., Arya V.: 2001 Abrasive and erosive wear characteristics of plasma nitriding and HVOF coatings: their application in hydro turbines, Wear 249 (2001) 354 - 360 | |
|
[12] |
Mann B.S., Arya V., Maiti A.K., Rao M.U.B., Joshi P.: 2006 Corrosion and erosion performance of HVOF/TiAIN PVD coatings and candidate materials for high pressure gate valve application, Wear 260 (2006) 75 - 83 | |
|
[13] |
Engelhardt M., Oechsle D.: 2003 Countermeasures to Reduce Hydro Abrasive Wear at Hydro Turbine Parts, Proceedings, Hydro 2003, Vol. I, Croatia | |
|
[14] |
Gummer J.H.: 2009 Combating Silt Erosion in Hydraulic Turbines HRW/March 2009 | |
|
[15] |
Proceedings of the Oslo Workshop: 2003, Erosion and Sediment Transport Measurement in Rivers: Technological and Methodological Advances, Proceedings of the Oslo Workshop, June 2002, IAHS Publ. 283, 2003 | |
|
[16] |
Nozaki T.: 1985 Nuevo Metodo Para La Decision de la Capacidad y dimension del desarendador, considerando el desgaste de la turbina por el material solido flotante (only available in Spanish) | |
|
[17] |
Bishwakarma M.B: 2008 Research on optimum sediment exclusion, www.waterpowermagazine.com, 2008 | |
|
[18] |
Duan C.G., Karelin: 2002 Abrasive Erosion & Corrosion of Hydraulic Machinery, Imperial College Press | |
|
[19] |
Proceedings of "Silting Problems in Hydropower Projects", 3rd International Conference, 2008, India | |
|
[20] |
M Meng and Ludema: 1995 Wear models and predictive equations: their form and content 181 - 183: 443 - 457, WEAR 1995 | |
|
[21] |
Wedmark, Winkler and Dekumbis: 2010 Finding a way to estimate abrasion amount, Hydro 2010 conference, Lisbon, Portugal | |
|
[22] |
Norwegian Water Resources and Energy Administration, Hydrology Department: 1997 Manual on Procedures in Operational Hydrology, Volume 5, Sediment Transport in Streams - Sampling, Analysis and Computation, Second edition | |
|
[23] |
Mei, Zu-Yan: 1996 Protecting hydro turbines in silt-laden rivers, Hydropower & Dams magazine, issue 4, 1996 | |
|
[24] |
IEC 60041 |
Field acceptance tests to determine the hydraulic performance of hydraulic turbines, storage pumps and pump-turbines (Турбины гидравлические, гидроагрегаты ГАЭС и турбонасосы. Полевые приемочные испытания для определения пропускной способности) |
|
[25] |
ISO 4288 |
Geometrical Product Specifications (GPS) - Surface texture: Profile method - Rules and procedures for the assessment of surface texture [Геометрические характеристики изделий (GPS). Структура поверхности. Профильный метод. Определение и параметры структуры] |
|
[26] |
ISO 2178 |
Non-magnetic coatings on magnetic substrates - Measurement of coating thickness - Magnetic method (Покрытия немагнитные на магнитных поверхностях. Измерение толщины покрытия. Магнитный метод) |
|
[27] |
ISO 6507-1 |
Metallic materials - Vickers hardness test - Part 1: Test method (Материалы металлические. Определение твердости по Виккерсу. Часть 1. Метод испытания) |
|
[28] |
ASTM B499-09 |
Standard Test Method for Measurement of Coating Thicknesses by the Magnetic Method: Nonmagnetic Coatings on Magnetic Basis Metals (Стандартный метод испытаний для измерения магнитным методом толщины покрытия. Немагнитные покрытия на магнитной металлической основе) |
|
[29] |
ASTM C633-13 |
Standard Test Method for Adhesion or Cohesion Strength of Thermal Spray Coatings (Стандартный метод испытаний на прочность сцепления или связи покрытий термического напыления) |
|
[30] |
ISO 14916:2017 |
Thermal spraying - Determination of tensile adhesive strength (Напыление термическое. Определение прочности сцепления при растяжении) |













