ГОСТ Р 70573-2022 ЭЛЕМЕНТЫ ОБЛИЦОВКИ, УЗЛЫ И ДЕТАЛИ КРЕПЛЕНИЯ ФАСАДНЫХ НАВЕСНЫХ ВЕНТИЛИРУЕМЫХ КОНСТРУКЦИЙ. ПАРАМЕТРЫ ДОЛГОВЕЧНОСТИ
Утв. и введен в действие Приказом Федерального агентства по техническому регулированию и метрологии от 20 декабря 2022 г. N 1537-ст
Wall cladding, connecting units and fastening parts of ventilated facade constructions. Durability parameters
ОКС 91.220
Дата введения - 1 февраля 2023 года
Введен впервые
Предисловие
1 РАЗРАБОТАН Федеральным государственным автономным образовательным учреждением высшего образования "Национальный исследовательский технологический университет "МИСиС" (НИТУ "МИСиС")
2 ВНЕСЕН Техническим комитетом по стандартизации ТК 465 "Строительство"
3 УТВЕРЖДЕН И ВВЕДЕН В ДЕЙСТВИЕ Приказом Федерального агентства по техническому регулированию и метрологии от 20 декабря 2022 г. N 1537-ст
4 ВВЕДЕН ВПЕРВЫЕ
Правила применения настоящего стандарта установлены в статье 26 Федерального закона от 29 июня 2015 г. N 162-ФЗ "О стандартизации в Российской Федерации". Информация об изменениях к настоящему стандарту публикуется в ежегодном (по состоянию на 1 января текущего года) информационном указателе "Национальные стандарты", а официальный текст изменений и поправок - в ежемесячном информационном указателе "Национальные стандарты". В случае пересмотра (замены) или отмены настоящего стандарта соответствующее уведомление будет опубликовано в ближайшем выпуске ежемесячного информационного указателя "Национальные стандарты". Соответствующая информация, уведомление и тексты размещаются также в информационной системе общего пользования - на официальном сайте Федерального агентства по техническому регулированию и метрологии в сети Интернет (www.rst.gov.ru)
Настоящий стандарт устанавливает параметры долговечности, характеризующие сохранение эксплуатационных свойств металлических облицовок, композитных материалов, узлов и деталей крепления в навесных фасадных вентилируемых конструкциях, применяемых при строительстве, реконструкции и капитальном ремонте зданий и сооружений в различных условиях эксплуатации.
В настоящем стандарте использованы нормативные ссылки на следующие документы:
ГОСТ 9.005 Единая система защиты от коррозии и старения. Металлы, сплавы, металлические и неметаллические неорганические покрытия. Допустимые и недопустимые контакты с металлами и неметаллами
ГОСТ 9.072 Покрытие лакокрасочное. Термины и определения
ГОСТ 9.104 Единая система защиты от коррозии и старения. Покрытия лакокрасочные. Группы условий эксплуатации
ГОСТ 9.301 Единая система защиты от коррозии и старения. Покрытия
ГОСТ 9.401-2018 Единая система защиты от коррозии и старения. Покрытия лакокрасочные. Общие требования и методы ускоренных испытаний на стойкость к воздействию климатических факторов
ГОСТ 9.407 Единая система защиты от коррозии и старения. Покрытия лакокрасочные. Метод оценки внешнего вида
ГОСТ 9.410 Единая система защиты от коррозии и старения. Покрытия порошковые полимерные. Типовые технологические процессы
ГОСТ 9.909 Единая система защиты от коррозии и старения. Металлы, сплавы, покрытия металлические и неметаллические неорганические. Методы испытаний на климатических испытательных станциях.
ГОСТ 859 Медь. Марки
ГОСТ 4543 Металлопродукция из конструкционной легированной стали. Технические условия
ГОСТ 4784 Алюминий и сплавы алюминиевые деформируемые. Марки
ГОСТ 5582 Прокат тонколистовой коррозионно-стойкий, жаростойкий и жаропрочный. Технические условия
ГОСТ 5632 Легированные нержавеющие стали и сплавы коррозионно-стойкие, жаростойкие и жаропрочные. Марки
ГОСТ 5949 Металлопродукция из сталей нержавеющих и сплавов на железоникелевой основе коррозионно-стойких, жаростойких и жаропрочных. Технические условия.
ГОСТ 6992 Единая система защиты от коррозии и старения. Покрытия лакокрасочные. Метод испытаний на стойкость в атмосферных условиях
ГОСТ 9045 Прокат тонколистовой холоднокатаный из низкоуглеродистой качественной стали для холодной штамповки. Технические условия
ГОСТ 10304 Заклепки классов точности B и C. Общие технические условия
ГОСТ 11262 (ISO 527-2:2012) Пластмассы. Метод испытания на растяжение
ГОСТ 13726 Ленты из алюминия и алюминиевых сплавов. Технические условия
ГОСТ 14918 Прокат листовой горячеоцинкованный. Технические условия
ГОСТ 15150 Машины, приборы и другие технические изделия. Исполнения для различных климатических районов. Категории, условия эксплуатации, хранения и транспортирования в части воздействия климатических факторов внешней среды
ГОСТ 16350-80 Климат СССР. Районирование и статистические параметры климатических факторов для технических целей
ГОСТ 19111-2001 Изделия погонажные профильные поливинилхлоридные для внутренней отделки. Технические условия
ГОСТ 22233 Профили прессованные из алюминиевых сплавов для ограждающих конструкций. Технические условия
ГОСТ 27751-2014 Надежность строительных конструкций и оснований. Основные положения
ГОСТ 33290 Материалы лакокрасочные, применяемые в строительстве. Общие технические условия
ГОСТ 34180 Прокат стальной тонколистовой холоднокатаный и холоднокатаный горячеоцинкованный с полимерным покрытием с непрерывных линий. Технические условия
ГОСТ ISO 3506-1 Механические свойства крепежных изделий из коррозионно-стойкой нержавеющей стали. Часть 1. Болты, винты и шпильки
ГОСТ ISO 9223-2017 Коррозия металлов и сплавов. Коррозионная агрессивность атмосферы. Классификация, определение и оценка
ГОСТ Р 58154 Материалы подконструкций навесных вентилируемых фасадных систем. Общие технические требования
ГОСТ Р 58953 Прокат тонколистовой металлический для фальцевых кровель и фасадов. Общие технические условия
ГОСТ Р 59571 Винты самонарезающие. Общие технические условия
ГОСТ Р ИСО 15973 Заклепки "слепые" с открытым концом, разрывающимся вытяжным сердечником и выступающей головкой (корпус из алюминиевого сплава и стальной сердечник)
ГОСТ Р ИСО 15979 Заклепки "слепые" с открытым концом, разрывающимся вытяжным сердечником и выступающей головкой (корпус и сердечник из стали)
СП 28.13330.2017 "СНиП 2.03.11-85 Защита строительных конструкций от коррозии"
Примечание - При пользовании настоящим стандартом целесообразно проверить действие ссылочных стандартов (сводов правил) в информационной системе общего пользования - на официальном сайте Федерального агентства по техническому регулированию и метрологии в сети Интернет или по ежегодному информационному указателю "Национальные стандарты", который опубликован по состоянию на 1 января текущего года, и по выпускам ежемесячного информационного указателя "Национальные стандарты" за текущий год. Если заменен ссылочный документ, на который дана недатированная ссылка, то рекомендуется использовать версию этого документа с указанным выше годом утверждения (принятия). Если после утверждения настоящего стандарта в ссылочный документ, на который дана датированная ссылка, внесено изменение, затрагивающее положение, на которое дана ссылка, то это положение рекомендуется применять без учета данного изменения. Если ссылочный документ отменен без замены, то положение, в котором дана ссылка на него, рекомендуется применять в части, не затрагивающей эту ссылку. Сведения о действии сводов правил целесообразно проверить в Федеральном информационном фонде технических регламентов и стандартов.
В настоящем стандарте применены следующие термины с соответствующими определениями:
3.1 облицовка: Защитно-декоративный экран, служащий для защиты несущей конструкции и теплоизоляционного материала от атмосферного воздействия, выполняющий архитектурно-эстетические функции.
3.2 металлическая панель: Листовое изделие, изготовленное из сталей или алюминиевых сплавов путем формирования в виде кассет, профильных листов, линеарных панелей, сайдинга и иных облицовочных фасадных элементов.
3.3 металлокомпозитная панель: Листовое многослойное изделие, состоящее из наружных металлических листов и сердечника.
3.4 детали крепления облицовок: Металлические элементы (икли, салазки кляммеры, планки, опорные профили), служащие для крепления облицовок к направляющим профиля.
3.5 защита от коррозии (фасадных вентилируемых конструкций): Комплекс мер по формированию защитных покрытий на основе органических и неорганических материалов, нанесенных на стальную или алюминиевую поверхность облицовок, закладывающийся на стадии конструирования, осуществляемых в процессе изготовления и проводимых в ходе эксплуатации конструкций.
3.6 защитное покрытие облицовок: Покрытие, создаваемое на стальной или алюминиевой поверхности облицовок для придания декоративного вида и защиты от атмосферной коррозии.
3.7
|
срок службы: Продолжительность нормальной эксплуатации строительного объекта с предусмотренным техническим обслуживанием и ремонтными работами (включая капитальный ремонт) до состояния, при котором его дальнейшая эксплуатация недопустима или нецелесообразна. [ГОСТ 27751-2014, пункт 2.1.12] |
3.8 срок службы покрытия облицовок: Календарная продолжительность, в течение которой покрытие, в том числе многослойное, защищает стальную или алюминиевую основу от коррозии в соответствии с требованиями к нему.
3.9 контактная коррозия: Электрохимическая коррозия, вызванная контактом металлов, имеющих разные стационарные потенциалы в тонких слоях электролита (при условии конденсации влаги).
3.10 параметры долговечности: Параметры, характеризующие суммарное влияние физико-химических свойств окружающей среды на долговечность материалов.
3.11 показатель долговечности (гамма-процентный срок службы): Календарная продолжительность эксплуатации объекта, в течение которой объект не достигнет предельного состояния с вероятностью более 95%.
3.12
|
долговечность: Свойство объекта сохранять работоспособное состояние до наступления предельного состояния при установленной системе технического обслуживания и ремонта. [ГОСТ Р 27.102-2021, пункт 10] |
3.13
|
коррозионная агрессивность атмосферы: Способность атмосферы вызывать коррозию в данной коррозионной системе. [ГОСТ ISO 9223-2017, пункт 3.1] |
3.14
|
тип атмосферы: Характеристика атмосферы, полученная на основе свойств, отличных от коррозионных, или дополнительных эксплуатационных факторов, соответствующих критериям классификации. Примеры - Сельская, городская, промышленная, морская и т.д. [ГОСТ ISO 9223-2017, пункт 3.3] |
Для элементов облицовки, узлов и деталей крепления навесных фасадных вентилируемых конструкций необходимо устанавливать условия эксплуатации и выбирать соответствующий материал и защиту от коррозии с учетом рекомендованных сроков службы зданий и сооружений согласно ГОСТ 27751-2014 (подраздел 4.3). Сроки службы элементов облицовок, узлов и деталей крепления навесных фасадных вентилируемых конструкций приведены с учетом сроков службы покрытий и могут быть приняты отличными от сроков службы здания и сооружения в целом.
Технические решения по защите от коррозии и сроки службы облицовок, узлов и деталей крепления определены на основании мониторинга навесных фасадных вентилируемых конструкций, расположенных в различных климатических районах в соответствии с ГОСТ 16350.
4.1 Материалы облицовок
Материалы металлических панелей, элементов облицовки и наружных листов металлокомпозитных панелей: коррозионно-стойкие стали (ГОСТ 4543, ГОСТ 5632, ГОСТ 5582, ГОСТ 5949), углеродистые стали (ГОСТ 9045, ГОСТ 14918, ГОСТ 34180), алюминиевые сплавы (ГОСТ 4784, ГОСТ 13726), медь и медные сплавы (ГОСТ 859), цинк-титан (ГОСТ Р 58953).
Защитные покрытия облицовок из алюминиевых сплавов, сплавов цинк-титан и оцинкованных углеродистых сталей должны соответствовать требованиям СП 28.13330 (группы I - IV), ГОСТ 9.401-2018 (приложение А), ГОСТ 9.072, ГОСТ 9.104, ГОСТ 9.301, ГОСТ 9.410, ГОСТ 34180.
Толщины облицовок из коррозионно-стойких сталей, углеродистых сталей, алюминиевых сплавов, медных сплавов, сплавов цинк-титан должны соответствовать требованиям проектной и конструкторской документации.
В таблице 1 указаны наиболее распространенные материалы, используемые для элементов облицовки, и защитные покрытия.
|
Материал облицовок и внешних листов металлокомпозитных панелей | ||||
|
Материал |
Толщина, мм |
Покрытие с лицевой стороны | ||
|
Наименование |
Марка |
Облицовки |
Внешнего листа металлокомпозитной панели | |
|
Коррозионно-стойкая сталь |
08Х17, |
0,5 - 2,0 |
0,2 - 0,4 |
Без покрытия |
|
12Х17, 17Х18, 12Х18Н9, 08Х18Н10 и аналоги |
Полимерное <*> | |||
|
Углеродистая сталь |
08пс и аналоги |
0,5 - 2,0 |
0,2 - 0,3 |
Комплексное цинковое и полимерное |
|
Алюминиевые сплавы |
АМг2, |
0,7 - 4,0 |
0,35 - 0,45 |
Без покрытия |
|
АМг3, |
Анодно-окисное | |||
|
АМг4, |
Полимерное | |||
|
АМг5, АМг6, |
Порошковое полимерное | |||
|
АМц; АД 31, А 6060; А 6063 |
Комплексное анодно-окисное и полимерное | |||
|
Медные сплавы |
М1, М2, |
1,0 - 2,0 |
0,2 - 0,5 |
Без защиты |
|
М3 |
Патина | |||
|
Цинк-титан |
- |
1,0 - 1,5 |
0,5 - 2,0 |
Без защиты |
|
Патина | ||||
|
Полимерное | ||||
|
<*> Полимерные покрытия (здесь и далее по тексту): PE - на основе полиэфирных смол; PU - на основе полиуретана; PVDF - на основе поливинилиденфторидных смол; FEVE - на основе фторэтиленвинилэфирных смол должны соответствовать требованиям ГОСТ 33290. | ||||
4.2 Материалы деталей крепления элементов облицовок
Материалы деталей крепления облицовок должны соответствовать ГОСТ ISO 3506-1, ГОСТ 10304, ГОСТ 22233, ГОСТ Р 58154, ГОСТ Р 59571, ГОСТ Р ИСО 15973, ГОСТ Р ИСО 15979 и требованиям проектной и конструкторской документации.
В таблице 2 указаны основные материалы, используемые для деталей крепления элементов облицовок.
|
Материал | |
|
Наименование |
Марка |
|
Коррозионно-стойкая сталь |
08Х17, 12Х17, 17Х18 и аналоги. А2: 08Х18Н10, 12Х18Н9, 12(08)Х18Н10Т и аналоги. А4: 03Х17Н14М2 и аналоги |
|
Углеродистая сталь |
08пс и аналоги |
|
Алюминиевые сплавы |
АМг3,5, АМг5, АМг5П, Д18, АД1, А5Е <*> |
|
АМг2, АМг3, АМг4, АМг5, АМг5П, АМГ6, АД31, А 6063, А 6060 <**> | |
|
<*> Перечисленные сплавы только для вытяжных заклепок. <**> Термическая обработка сплава АД31 - Т1; А 6063 - Т6, Т66; А 6060 - Т5, Т6, Т66. | |
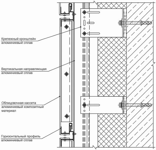
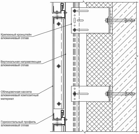
Наиболее распространенные схемы крепления элементов облицовок к направляющим профилям приведены на рисунках А.1 - А.3.
4.3 Условия эксплуатации облицовок, узлов и деталей крепления навесных фасадных конструкций
Коррозионная агрессивность атмосферы определена в СП 28.13330, категории C1 - CX и типы атмосфер - в ГОСТ ISO 9223. В таблице 3 приведена классификация условий эксплуатации в зависимости от их размещения по ГОСТ 15150, типа атмосферы и степени агрессивности атмосферы. Система условий эксплуатации облицовок навесных фасадных вентилируемых конструкций - комплексная и учитывает следующие параметры:
1) агрессивность и тип атмосферы по ГОСТ ISO 9223 (открытый воздух) и СП 28.13330;
2) климатические районы Российской Федерации по температурному и влажностному режиму по ГОСТ 16350-80 (пункт 1.2);
3) размещение элементов и навесных фасадных вентилируемых конструкций по ГОСТ 15150 и ГОСТ ISO 9223: на открытом воздухе (облицовка), под навесом (узлы крепления);
4) контакт материалов по ГОСТ 9.005. При использовании изолированного контакта разнородных материалов условия эксплуатации узлов и деталей крепления облицовок повышаются на один балл.
|
Агрессивность атмосферы по ГОСТ ISO 9223 |
Условия эксплуатации облицовок, узлов и деталей крепления для типа размещения конструкций, баллы | ||
|
Категория |
Тип |
Под навесом (за облицовкой) |
На открытом воздухе |
|
Холодный, умеренно холодный Жаркий сухой, очень жаркий сухой | |||
|
Очень низкая (C1) |
Сельская |
1 |
2 |
|
Низкая (C2) |
Городская |
1 |
2 |
|
Средняя (C3) |
Городская |
2 |
4 |
|
Промышленная |
3 |
5 | |
|
Морская |
3 |
5 | |
|
Высокая (C4) |
Промышленная |
4 |
6 |
|
Морская |
4 |
6 | |
|
Очень высокая (C5) |
Промышленная |
5 |
7 |
|
Умеренный, умеренно влажный, умеренно теплый, умеренно теплый влажный | |||
|
Низкая (C2) |
Сельская |
1 |
2 |
|
Городская |
2 |
3 | |
|
Средняя (C3) |
Городская |
3 |
4 |
|
Промышленная |
4 |
5 | |
|
Морская |
4 |
6 | |
|
Высокая (C4) |
Промышленная |
5 |
7 |
|
Морская |
5 |
7 | |
|
Очень высокая (C5) |
Промышленная/морская |
6 |
8 |
|
Умеренно теплый с мягкой зимой, теплый влажный | |||
|
Низкая (C2) |
Сельская |
2 |
3 |
|
Городская |
2 |
4 | |
|
Средняя (C3) |
Городская |
3 |
5 |
|
Промышленная |
4 |
7 | |
|
Морская |
4 |
7 | |
|
Высокая (C4) |
Промышленная |
5 |
9 |
|
Морская |
5 |
8 | |
|
Очень высокая (C5) Экстремальная (CX) |
Промышленная/морская |
7 |
10 |
|
Примечания 1 Агрессивность C1 по ГОСТ ISO 9223 соответствует неагрессивной среде по СП 28.13330; C2, C3 - слабоагрессивной 1; C4, C5 - слабоагрессивной 2; C5 - CX - среднеагрессивной. 2 Баллы 1, 2 - очень низкая и низкая агрессивность; баллы 3 - 6 - городские и промышленные атмосферы (присутствие крупных производств на расстоянии более 5 км от объекта строительства) для C3, баллы 4 - 6 - прибрежная зона на расстоянии от 5 км и более от береговой линии; баллы 6, 7 - прибрежная зона на расстоянии 1 - 5 км от береговой линии; баллы 8 - 10 - прибрежная территория на расстоянии до 1 км от береговой линии и (или) специальные среды. | |||
Показатели долговечности облицовок, узлов и деталей крепления навесных фасадных вентилируемых конструкций определяются видом материалов (таблицы 1, 2), необходимостью защиты (таблицы 4, 5) от коррозии и условиями эксплуатации (таблица 3).
Срок службы металлокомпозитных панелей оценивается комплексно: для наружных металлических листов и внутреннего слоя композита.
При применении конструкций из разнородных материалов необходимо предусматривать защиту от контактной коррозии.
В таблицах 4, 5 приведены сроки службы металлических листовых материалов облицовок и типы защиты от коррозии в соответствии с условиями эксплуатации (тип размещения - на открытом воздухе, таблица 3).
Срок службы полимерных покрытий устанавливается по ГОСТ 9.407 до потери защитных свойств: коррозия металла составляет 40% - 50% общей площади К5 (и/или Ri 5).
Защитно-декоративные свойства полимерных покрытий групп I - IV для защиты от коррозии тонколистового оцинкованного проката, наносимых на линиях непрерывного окрашивания рулонного металла по ГОСТ 14918, приведены в СП 28.13330.
Полимерные покрытия должны соответствовать технологическому регламенту, утвержденному предприятием-изготовителем, и нормативно-технической документации.
Сроки службы облицовок из листовых металлов, наружных металлических листов металлокомпозитных панелей приведены в таблицах 4 и 5. При оценке долговечности композитных панелей требуется проведение дополнительных испытаний для оценки физико-механических характеристик панелей по ГОСТ 11262 и ГОСТ 19111-2001 (подраздел 7.17).
|
Материал облицовки <*> |
Срок службы, лет, облицовок для условий эксплуатации, баллы | |||||||||
|
Марка |
Вид и толщина покрытия |
2 |
3 |
4 |
5 |
6 |
7 |
8 |
9 |
10 |
|
Коррозионно-стойкие стали | ||||||||||
|
08Х17, 12Х17, 17Х18 и аналоги |
Без защиты |
+++ |
+++ |
++ |
н/д |
н/д |
н/д |
н/д |
н/д |
н/д |
|
Полимерное порошковое, 40 - 50 мкм |
+++ |
+++ |
+++ |
+++ |
++ |
н/д |
н/д |
н/д |
н/д | |
|
08(12)Х18Н9(10) 08(12)Х18Н10Т и аналоги |
Без защиты |
+++ |
+++ |
+++ |
+++ |
+++ |
н/д |
н/д |
н/д |
н/д |
|
Полимерное порошковое, 40 - 50 мкм |
+++ |
+++ |
+++ |
+++ |
+++ |
++ |
++ |
н/д |
н/д | |
|
Алюминиевые сплавы | ||||||||||
|
АМг2, |
Без защиты |
+++ |
+++ |
+++ |
+++ |
++ |
н/д |
н/д |
н/д |
н/д |
|
АМг3, АМг4, АМг5, АМг6, АМц, АД 31, А 6060; А 6063 |
Анодно-окисное, 18 - 20 мкм |
+++ |
+++ |
+++ |
+++ |
+++ |
+++ |
++ |
н/д |
н/д |
|
Анодно-окисное, 12 - 20 мкм + Полимерное порошковое, 40 мкм |
+++ |
+++ |
+++ |
+++ |
+++ |
+++ |
+++ |
н/д |
н/д | |
|
Анодно-окисное, 12 - 20 мкм + PE, 25 - 30 мкм |
+++ |
+++ |
+++ |
+++ |
+++ |
+++ |
+++ |
н/д |
н/д | |
|
Медь и медные сплавы | ||||||||||
|
М1, М2, М3 |
Без защиты |
+++ |
+++ |
+++ |
+++ |
+++ |
+++ |
+++ |
++ |
++ |
|
Цинк-титан | ||||||||||
|
- |
Без защиты |
+++ |
+++ |
+++ |
+++ |
+++ |
н/д |
н/д |
н/д |
н/д |
|
Патина |
+++ |
+++ |
+++ |
+++ |
+++ |
+++ |
++ |
н/д |
н/д | |
|
Полимерное ПВДФ с грунтом,> 30 мкм |
+++ |
+++ |
+++ |
+++ |
+++ |
+++ |
++ |
н/д |
н/д | |
|
<*> Данные приведены при отсутствии требований к внешнему виду. Обозначение расчетных сроков службы: "+++" - более 50 лет; "++" - 35 - 50 лет; "+" - 25 - 35 лет; н/д - нет данных, необходимы дополнительные испытания по ГОСТ 9.909, ГОСТ 6992 и ГОСТ 9.401. | ||||||||||
|
Материал покрытий |
Срок службы, лет, облицовок для условий эксплуатации, баллы | ||||||||||
|
Вид и толщина полимерного покрытия |
Класс металлического покрытия |
2 |
3 |
4 |
5 |
6 |
7 |
8 |
9 |
10 | |
|
Алюмоцинковое |
Цинковое | ||||||||||
|
Полимерное порошковое <*> ≥ 60 мкм |
100 |
140 |
+++ |
+++ |
++ |
н/д |
н/д |
н/д |
н/д |
н |
н |
|
140 |
275 |
+++ |
+++ |
+++ |
++ |
++ |
н/д |
н/д |
н |
н | |
|
Полиэфирное (с грунтом <**>) 25 мкм (стандартный) |
100 |
140 |
+++ |
+++ |
++ |
+ |
н/д |
н/д |
н/д |
н |
н |
|
Полиэфирное (с грунтом <**>) 30 мкм (сморщенный) |
100 |
140 |
+++ |
+++ |
+++ |
++ |
н/д |
н/д |
н/д |
н |
н |
|
ПВДФ (с грунтом <**>) 25 мкм |
100 |
140 |
+++ |
++ |
++ |
+ |
н/д |
н/д |
н/д |
н |
н |
|
140 |
275 |
+++ |
+++ |
++ |
++ |
н/д |
н/д |
н/д |
н |
н | |
|
ПВДФ (с грунтом <**>) 50 мкм (толстый) |
100 |
140 |
+++ |
+++ |
+++ |
++ |
н/д |
н/д |
н/д |
н |
н |
|
140 |
275 |
+++ |
+++ |
+++ |
+++ |
++ |
н/д |
н/д |
н |
н | |
|
Полиуретановое (с грунтом <*>) 35 мкм (тонкий) |
100 |
140 |
+++ |
+++ |
+++ |
++ |
+ |
н/д |
н/д |
н |
н |
|
Полиуретановое (с грунтом <**>) 50 мкм (стандартный) |
100 |
140 |
+++ |
+++ |
+++ |
++ |
+ |
н/д |
н/д |
н |
н |
|
140 |
275 |
+++ |
+++ |
+++ |
+++ |
++ |
н/д |
н/д |
н |
н | |
|
Обозначение расчетных сроков службы: "+++" - более 50 лет; "++" - 35 - 50 лет; "+" - 25 - 35 лет; "н/д" - нет данных, необходимы дополнительные испытания по ГОСТ 9.909, ГОСТ 6992 и ГОСТ 9.401; "н" - не применяется (срок службы менее 15 лет). <*> Полимерное порошковое покрытие по ГОСТ 9.410, ГОСТ 9.401 (приложение А), СП 28.13330.2017 (таблицы Ц.7, Ц.8). <**> Покрытия (прокат с односторонним полимерным покрытием) по ГОСТ 34180. | |||||||||||
Требования к защите от коррозии материалов узлов крепления облицовки (за исключением кляммеров) приведены для размещения конструкции под навесом (таблица 6).
Для кляммеров, эксплуатируемых на открытом воздухе, требования к защите от коррозии приведены в таблице 4 - без покрытий и в таблице 5 - с покрытиями.
Детали крепления облицовки (за исключением кляммеров) из коррозионно-стойких сталей (таблица 2) не требуют дополнительных мер антикоррозионной защиты.
Вытяжные заклепки из алюминиевых сплавов (таблица 2) не требуют дополнительных мер антикоррозионной защиты для условий эксплуатации 1 - 6 баллов. Для условий эксплуатации 7 - 8 баллов применяются вытяжные заклепки с полимерным покрытием. Срок службы вытяжных заклепок в указанных условиях составляет 50 лет.
В таблице 6 представлены сроки службы узлов крепления облицовок при эксплуатации во всех климатических районах до балла 6 (приложение Б). Для условий эксплуатации 7 - 10 баллов требуются дополнительные испытания в соответствии с действующими нормативными документами.
|
Материал узла |
Условия эксплуатации, баллы | ||||
|
Материал облицовки, покрытие |
Материал детали крепления, вид и толщина покрытия |
Материал заклепки |
1 - 3 |
4 |
5 - 6 |
|
Коррозионно-стойкие стали 08Х17, 12Х17, 17Х18, 08(12)Х18Н9(10), 08(12)Х18Н10Т и аналоги (без защиты/полимерное покрытие) |
Коррозионно-стойкие стали 08(12)Х18Н9(10), 08(12)Х18Н10Т |
Коррозионно-стойкие стали |
50 |
50 |
50 |
|
Коррозионно-стойкая сталь 08Х17, 12Х17, 17Х18 и аналоги |
50 |
50 |
50 | ||
|
Медь, медные сплавы |
Коррозионно-стойкие стали 08(12)Х18Н9(10), 08(12) Х18Н10Т и аналоги |
Коррозионно-стойкие стали |
50 |
50 |
50 |
|
Коррозионно-стойкая сталь 08Х17, 12Х17, 17Х18 и аналоги |
Коррозионно-стойкие стали |
50 |
50 |
50 | |
|
Углеродистые стали с двухслойным покрытием: горячее цинковое (140/275), полимерное порошковое 45 мкм |
Коррозионно-стойкие стали |
50 |
50 |
40 - 50 | |
|
Углеродистые стали с двухслойным покрытием: горячее цинковое + полимерное покрытие |
Коррозионно-стойкие стали 08(12)Х18Н9(10), 08(12) Х18Н10Т, 08Х17, 12Х17, 17Х18 и аналоги |
Коррозионно-стойкие стали |
50 |
50 |
50 |
|
Углеродистые стали с двухслойным покрытием: горячее цинковое (140/275), полимерное порошковое 45 мкм |
50 |
50 |
40 - 50 | ||
|
Алюминиевые сплавы |
Коррозионно-стойкие стали 08(12)Х18Н9(10), 08(12) Х18Н10Т, 08Х17, 12Х17, 17Х18 и аналоги |
Коррозионно-стойкие стали |
50 |
50 |
50 |
|
Алюминиевые сплавы А 6060 Т5, А 6060 Т6, А 6060 Т66, А 6063 |
Коррозионно-стойкие стали |
50 |
50 |
50 | |
|
Алюминиевые сплавы |
50 |
50 |
40 - 50 | ||
Приложение А
(справочное)

Рисунок А.1 - Типовой узел крепления металлических и композитных облицовок на иклях

Рисунок А.2 - Типовой узел крепления металлических и композитных облицовок на горизонтальных профилях

Рисунок А.3 - Типовой узел крепления металлических и композитных облицовок на салазках
Приложение Б
(справочное)
Соответствие зарубежных аналогов отечественным маркам коррозионно-стойких сталей приведено в таблице Б.1.
Таблица Б.1
|
Класс сталей |
Марка по ГОСТ 5632 |
Марка AISI |
|
Аустенитные |
12Х15Г9НД <*> |
201 |
|
08Х18Н10 |
304 | |
|
03Х18Н11 |
304L | |
|
08Х17Н13 |
316 | |
|
03Х17Н14М3 |
316 L | |
|
08Х18Н10Т |
321 | |
|
Ферритные |
12Х17 |
430 |
|
08Х17Т |
439 | |
|
<*> По техническим условиям. | ||


