Утв. и введен в действие Приказом Федерального агентства по техническому регулированию и метрологии от 24 ноября 2020 г. N 1154-ст
Национальный стандарт РФ ГОСТ Р МЭК 60297-3-106-2020
"КОНСТРУКЦИИ НЕСУЩИЕ БАЗОВЫЕ РАДИОЭЛЕКТРОННЫХ СРЕДСТВ. РАЗМЕРЫ МЕХАНИЧЕСКИХ КОНСТРУКЦИЙ СЕРИИ 482,6 мм (19 ДЮЙМОВ). Часть 3-106. РАЗМЕРЫ АДАПТАЦИИ БЛОЧНЫХ КАРКАСОВ И ШАССИ, ИСПОЛЬЗУЕМЫХ ДЛЯ МЕТРИЧЕСКИХ ШКАФОВ ИЛИ СТОЕК, В СООТВЕТСТВИИ С IEC 60917-2-1"
Design load-bearing base of radio-electronic means. Dimensions of mechanical constructions series 482.6 mm (19 inches) - Part 3-106. Adaptation dimensions for subracks and chassis applicable to metric cabinets or racks in accordance with IEC 60917-2-1
(IEC 60297-3-106:2010, Mechanical structures for electronic equipment - Dimensions of mechanical structures of the 482,6 mm (19 in) series - Part 3-106: Adaptation dimensions for subracks and chassis applicable with metric cabinets or racks in accordance with IEC 60917-2-1, IDT)
Группа Э02
ОКС 31.240
ОКСТУ 6703
Дата введения - 1 июля 2021 года
Введен впервые
Предисловие
1 ПОДГОТОВЛЕН Обществом с ограниченной ответственностью "Научно-технический центр технологической стандартизации и сертификации" (ООО "Авангард-ТехСт"), Открытым акционерным обществом "Авангард" (ОАО "Авангард") на основе официального перевода на русский язык англоязычной версии стандарта, указанного в пункте 4
2 ВНЕСЕН Техническим комитетом по стандартизации ТК 420 "Базовые несущие конструкции, печатные платы, сборка и монтаж электронных модулей"
3 УТВЕРЖДЕН И ВВЕДЕН В ДЕЙСТВИЕ Приказом Федерального агентства по техническому регулированию и метрологии от 24 ноября 2020 г. N 1154-ст
4 Настоящий стандарт идентичен международному стандарту МЭК 60297-3-106:2010 "Механические конструкции для электронного оборудования. Размеры конструкций серии 482,6 мм (19 дюймов). Часть 3-106. Присоединительные размеры подстоек и шасси, совместимых с метрическими шкафами или стойками согласно стандарту IEC 60917-2-1" (IEC 60297-3-106:2010 "Mechanical structures for electronic equipment - Dimensions of mechanical structures of the 482,6 mm (19 in) series - Part 3-106: Adaptation dimensions for subracks and chassis applicable to metric cabinets or racks in accordance with IEC 60917-2-1", IDT).
Наименование настоящего стандарта изменено относительно наименования указанного международного стандарта для приведения в соответствие с ГОСТ Р 1.5-2012 (пункт 3.5).
При применении настоящего стандарта рекомендуется использовать вместо ссылочных международных стандартов соответствующие им национальные стандарты, сведения о которых приведены в дополнительном приложении ДА
5 ВВЕДЕН ВПЕРВЫЕ
6 В настоящем стандарте часть его содержания может быть объектом патентных прав
Правила применения настоящего стандарта установлены в статье 26 Федерального закона от 29 июня 2015 г. N 162-ФЗ "О стандартизации в Российской Федерации". Информация об изменениях к настоящему стандарту публикуется в ежегодном (по состоянию на 1 января текущего года) информационном указателе "Национальные стандарты", а официальный текст изменений и поправок - в ежемесячном информационном указателе "Национальные стандарты". В случае пересмотра (замены) или отмены настоящего стандарта соответствующее уведомление будет опубликовано в ближайшем выпуске ежемесячного информационного указателя "Национальные стандарты". Соответствующая информация, уведомление и тексты размещаются также в информационной системе общего пользования - на официальном сайте Федерального агентства по техническому регулированию и метрологии в сети Интернет (www.gost.ru)
Введение
Серия стандартов МЭК 60297 предлагает определения механической конструкции и размеров 19-дюймовых шкафов и стоек, а также совместимых с ними блочных каркасов и шасси. Комбинация 19-дюймовых снабженных основанием шкафов или стоек с блочных каркасов и шасси широко применяется в различных отраслях электронной промышленности во всем мире.
Стандарты МЭК 60917 основываются на метрических упорядоченных размерах модулей и определяют конструкции и присоединительные размеры метрических шкафов, стоек, блочных каркасов и шасси. Серия стандартов МЭК 60917, разработанная позже серии стандартов МЭК 60297, обеспечивает более логичные методы разработки конструкций блочных каркасов и шасси, основанные на метрических размерах.
В результате запросов на комбинированные способы применения механических конструкций как серии стандартов МЭК 60297 (для 19-дюймовых модулей), так и серии стандартов МЭК 60917 (для метрических модулей), возникли требования к установке 19-дюймовых блочных каркасов или шасси в метрические стандартные шкафы или стойки и, наоборот, к установке метрических блочных каркасов или шасси в 19-дюймовые шкафы или стойки.
Для удовлетворения требованиям и потребностям необходимо разработать определения для соответствующих присоединительных размеров установочных положений фланцев для установки 19-дюймовых или метрических блочных каркасов или шасси в шкафы или стойки. Определения предлагают экономичные решения для установки электронного оборудования в существующие шкафы или стойки. Кроме того, они обеспечивают руководство для проектировщиков электромеханического оборудования по разработке систем, подходящих для гибкой установки в соответствии с обеими сериями стандартов МЭК.
Для удовлетворения таких потребностей рынка этот стандарт определяет размеры для 19-дюймовых блочных каркасов или шасси, совместимых с метрическими шкафами или стойками. (Размеры для тех применений, где метрические блочные каркасы или шасси предназначены к установке в 19-дюймовые шкафы или стойки, определены в отдельном стандарте, а именно, в стандарте МЭК 60917-2-4).
1 Область применения
Настоящий стандарт устанавливает размеры для установочных фланцев 19-дюймовых блочных каркасов или шасси, предназначенных для установки в метрические шкафы или стойки.
Дополнительные размеры блочных каркасов или шасси соответствуют стандартам серии МЭК 60297, а размеры метрических шкафов или стоек стандартам серии МЭК 60917.
Требования и испытания электромагнитной совместимости (ЭМС), а также сейсмические, климатические и экологические требования и испытания установлены в стандартах серии МЭК 61587.
Используемые в этом стандарте чертежи не предназначены для определения конструкции изделия, но только для указания конкретных размеров, которые следует использовать.
Используемая терминология соответствует стандарту МЭК 60917-1.
2 Нормативные ссылки
В настоящем стандарте использованы нормативные ссылки на следующие стандарты, которые необходимо учитывать при использовании настоящего стандарта. В случае ссылок на документы, у которых указана дата утверждения, необходимо пользоваться только указанной редакцией. В случае, когда дата утверждения не приведена, следует пользоваться последней редакцией ссылочных документов, включая любые поправки и изменения к ним.
IEC 60297 (all parts), Mechanical structures for electronic equipment - Dimensions of mechanical structures of the 482,6 mm (19 in) series (Механические конструкции для электронного оборудования. Размеры механических конструкций серии 482,6 мм (19 дюймов) (все части IEC 60297)
IEC 60297-3-101, Mechanical structures for electronic equipment. Dimensions of mechanical structures of the 482,6 mm (19 in) series. Part 3-101: Subracks and associated plug-in units (Механические конструкции для электронного оборудования. Размеры механических конструкций серии 482,6 мм (19 дюймов). Часть 3-101. Блочные каркасы и связанные с ними вставные блоки)
IEC 60917 (all parts), Modular order for the development of mechanical structures for electronic equipment practice (Модульный принцип разработки базовых несущих механических конструкций электронного оборудования) (все части IEC 60917)
IEC 60917-2-1, Modular order for the development of mechanical structures for electronic equipment practices - Part 2: Sectional specification - Interface coordination dimensions for the 25 mm equipment practice - Section 1: Detail specification - Dimensions for cabinets and racks (Модульный принцип построения механических конструкций для электронного оборудования. Часть 2. Секционный стандарт. Координационные размеры интерфейса для несущих конструкций с шагом 25 мм. Раздел 1. Детальный стандарт. Размеры шкафов и стоек)
IEC 60917-2-4, Modular order for the development of mechanical structures for electronic equipment practices - Part 2-4: Sectional specification - Interface coordination dimensions for the 25 mm equipment practice - Adaptation dimensions for subracks or chassis applicable in cabinets or racks in accordance with IEC 60297-3-100 (19 in) (Модульный принцип разработки базовых несущих конструкций электронного оборудования. Часть 2-4: Групповые технические условия. Присоединительные координационные размеры базовых несущих конструкций с контактной поверхностью 25 мм. Присоединительные размеры блочных каркасов и шасси, совместимых со шкафами или стойками в соответствии с IEC 60297-3-100 (для 19-дюймовых модулей)
3 Схема общего расположения и определения
Настоящий стандарт устанавливает размеры фланцев 19-дюймовых блочных каркасов или шасси, предназначенных для установки в метрических шкафах или стойках.
Размеры для тех применений, где метрические блочные каркасы или шасси предназначены к установке в 19-дюймовые шкафы или стойки, определены в отдельном стандарте (МЭК 60917-2-4).
Все остальные размеры соответствуют серии стандартов IEC 60297 (для 19-дюймовых модулей) и серии стандартов МЭК 60917 (для метрических модулей).
Размеры в миллиметрах

Рисунок 1 - Схема общего расположения. Присоединение блочных каркасов по МЭК 60297-3-101 к шкафам по МЭК 60917-2-1
4 Размеры для фланцев 19-дюймовых блочных каркасов или шасси, предназначенных для установки в метрических шкафах или стойках
4.1 Общие положения
Размеры общего расположения установочных отверстий на фланцах, располагаемых в шкафах по двум схемам установки:
a) схема установки, указанная для линий шага 19-дюймовых блочных каркасов или шасси;
b) схема установки, указанная для осевых линий 19-дюймовых блочных каркасов или шасси.
4.2 Размеры общего расположения установочных отверстий на фланцах, монтажная компоновка, относящаяся к линиям шага 19-дюймовых блочных каркасов или шасси
На рисунке 2 показано общее расположение установочных отверстий на фланцах.
Размеры в миллиметрах

Рисунок 2 - Общее расположение установочных отверстий на фланцах (схема установки указана для нижних линий шага 19-дюймовых блочных каркасов или шасси)
На рисунке 3 и в таблице 1 показаны подробные размеры положений установочных отверстий на фланцах.
Размеры в миллиметрах

Рисунок 3 - Размеры положений установочных отверстий на фланцах (схема установки указана для нижних линий шага 19-дюймовых блочных каркасов или шасси)
Таблица 1 - Размеры положений установочных отверстий на фланцах (схема установки указана для нижних расчетных линий 19-дюймовых блочных каркасов или шасси)
Размеры в миллиметрах
|
Единицы высоты
n x U
|
Eb1
± 0,4
|
Eb2
± 0,4
|
Eb3
± 0,4
|
Eb4
± 0,4
|
|
1U <a.> (44,45)
|
37,7
|
-
|
-
|
-
|
|
1U <b.> (44,45)
|
5,95
|
-
|
-
|
-
|
|
2U (88,90)
|
37
|
25
|
-
|
-
|
|
3U (133,35)
|
12
|
100
|
-
|
-
|
|
4U (177,80)
|
12
|
150
|
-
|
-
|
|
5U (222,25)
|
12
|
100
|
100
|
-
|
|
6U (266,70)
|
12
|
100
|
100
|
-
|
|
7U (311,15)
|
12
|
75
|
125
|
75
|
|
8U (355,60)
|
12
|
100
|
125
|
100
|
|
9U (400,05)
|
12
|
150
|
75
|
150
|
|
10U (444,50)
|
12
|
150
|
125
|
150
|
|
11U (488,95)
|
12
|
175
|
100
|
175
|
|
12U (533,40)
|
12
|
175
|
150
|
175
|
|
Использование существующего установочного отверстия 19-дюймового блочного каркаса или шасси высотой 1U.
Дополнительная схема установки с использованием существующего нижнего бокового отверстия обеспечивает стабильную установку блочных каркасов или шасси высотой 1U, но не предназначена для выравнивания по нижней линии шага.
|
Эта монтажная компоновка может быть рекомендована для существующих блочных каркасов или шасси с использованием их опорных реек.
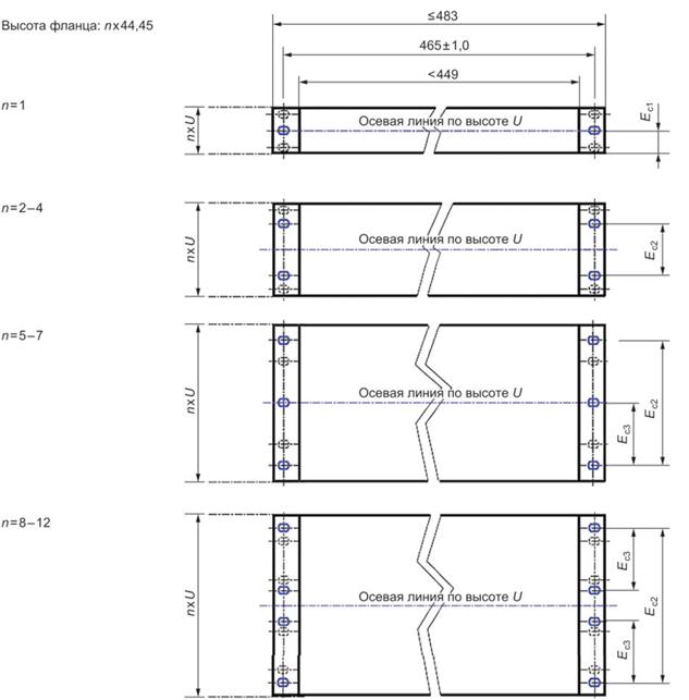
4.3 Размеры общего расположения установочных отверстий на фланцах, монтажная компоновка, относящаяся к осевым линиям 19-дюймовых блочных каркасов или шасси
На рисунке 4 показано общее расположение установочных отверстий на фланцах.
Размеры в миллиметрах

Рисунок 4 - Общее расположение установочных отверстий на фланцах (схема установки указана для осевых линий по высоте U 19-дюймовых блочных каркасов или шасси)
На рисунке 5 и в таблице 2 показаны подробные размеры положений установочных отверстий на фланцах.
Размеры в миллиметрах

Рисунок 5 - Размеры положений установочных отверстий на фланцах (схема установки указана для осевых линий по высоте U 19-дюймовых блочных каркасов или шасси)
Таблица 2 - Размеры положений установочных отверстий на фланцах (схема установки указана для центровых линий по высоте U 19-дюймовых блочных каркасов или шасси)
Размеры в миллиметрах
|
Единицы высоты
n x U
|
Ec1
± 0,4
|
Ec2
± 0,4
|
Ec1
± 0,4
|
|
1U (44,45)
|
21,8
|
-
|
-
|
|
2U (88,90)
|
-
|
50
|
-
|
|
3U (133,35)
|
-
|
100
|
-
|
|
4U (177,80)
|
-
|
150
|
-
|
|
5U (222,25)
|
-
|
200
|
100
|
|
6U (266,70)
|
-
|
250
|
125
|
|
7U (311,15)
|
-
|
200
|
100
|
|
8U (355,60)
|
-
|
300
|
100
|
|
9U (400,05)
|
-
|
350
|
100
|
|
10U (444,50)
|
-
|
400
|
150
|
|
11U (488,95)
|
-
|
450
|
125
|
|
12U (533,40)
|
-
|
500
|
175
|
4.4 Размеры фланцев 19-дюймовых блочных каркасов, совместимых с метрическими шкафами или стойками с установочными отверстиями размером 515 мм
19-дюймовые блочные каркасы или шасси могут быть установлены в метрические шкафы или стойки с установочными отверстиями размером (WS3) 515 мм с помощью удлинительного фланца (фланцев).
На рисунке 6 показаны типовые размеры фланцев 19-дюймовых блочных каркасов, совместимых с метрическими шкафами с расстоянием 515 мм между установочными отверстиями, на основе схемы установки, указанной для осевых линий по высоте U 19-дюймовых блочных каркасов или шасси.
Примечание - Для фланца с расстоянием 515 мм между установочными отверстиями, детальные размеры основного расположения установочных отверстий на фланцах, за исключением расстояния 515 мм между установочными отверстиями, соответствуют размерам, указанным в разделах 4.2 и 4.3.
Размеры в миллиметрах

Рисунок 6 - Размеры фланцев 19-дюймовых блочных каркасов, совместимых с метрическими шкафами с установочными отверстиями размером 515 мм
Приложение ДА
(справочное)
Сведения о соответствии ссылочных международных стандартов национальным стандартам
Таблица ДА.1
|
Обозначение ссылочного международного стандарта
|
Степень соответствия
|
Обозначение и наименование соответствующего национального стандарта
|
|
IEC 60297-3-101:2004
|
IDT
|
ГОСТ Р МЭК 60297-3-101-2006 "Конструкции несущие базовые радиоэлектронных средств. Блочные каркасы и связанные с ними вставные блоки. Размеры конструкций серии 482,6 мм (19 дюймов)"
|
|
IEC 60297-3-102:2004
|
IDT
|
ГОСТ Р МЭК 60297-3-102-2006 "Конструкции несущие базовые радиоэлектронных средств. Рукоятка инжектора/экстрактора. Размеры конструкций серии 482,6 мм (19 дюймов)"
|
|
IEC 60297-3-103:2004
|
IDT
|
ГОСТ Р МЭК 60297-3-103-2006 "Конструкции несущие базовые радиоэлектронных средств. Система ключей и ловитель для установки. Размеры конструкций серии 482,6 мм (19 дюймов)"
|
|
IEC 60297-3-104:2006
|
IDT
|
ГОСТ Р МЭК 60297-3-104-2009 "Конструкции несущие базовые радиоэлектронных средств. Размеры блочных каркасов и вставных блоков, зависящие от серии применяемых разъемов. Размеры конструкций серии 482,6 мм (19 дюймов)"
|
|
IEC 60917-1:1998
|
IDT
|
ГОСТ Р МЭК 60917-1-2011 "Модульный принцип разработки механических конструкций для базовых несущих конструкций для электронного оборудования. Часть 1. Общий стандарт"
|
|
IEC 60917-2:1992
|
IDT
|
ГОСТ Р МЭК 60917-2-2011 "Модульный принцип построения базовых несущих конструкций для электронного оборудования. Часть 2. Секционный стандарт. Координационные размеры интерфейса для несущих конструкций с шагом 25 мм"
|
|
IEC 60917-2-1:1993
|
IDT
|
ГОСТ Р МЭК 60917-2-1-2011 "Модульный принцип построения базовых несущих конструкций для электронного оборудования. Часть 2. Секционный стандарт. Координационные размеры для несущих конструкций с шагом 25 мм. Раздел 1. Детальный стандарт. Размеры шкафов и стоек"
|
|
IEC 60917-2-2:1993
|
IDT
|
ГОСТ Р МЭК 60917-2-2-2012 "Модульный принцип построения базовых несущих конструкций для электронного оборудования. Часть 2. Частный стандарт. Координационные размеры интерфейса для несущих конструкций с шагом 25 мм. Раздел 2. Детальный стандарт. Размеры блочных каркасов, шасси, объединительных плат, передних панелей и вставных блоков"
|
|
IEC 60917-2-3:2006
|
IDT
|
ГОСТ Р МЭК 60917-2-3-2009 "Конструкции несущие базовые радиоэлектронных средств. Координационные размеры интерфейса для базовых несущих конструкций с шагом 25 мм. Размеры для блочных каркасов, шасси, объединительных плат, передних панелей и вставных блоков"
|
|
IEC 60917-2-4
|
-
|
<*>
|
|
<*> Соответствующий национальный стандарт отсутствует. До его утверждения рекомендуется использовать перевод на русский язык данного международного стандарта.
Примечание - В настоящей таблице использованы следующие обозначения степени соответствия стандартов:
- IDT - идентичные стандарты.
|
Библиография
IEC 60297-3-100, Mechanical structures for electronic equipment - Dimensions of mechanical structures of the 482,6 mm (19 in) series - Part 3-100: Basic dimensions of front panels, subracks, chassis, racks and cabinets (Механические конструкции для электронного оборудования. Размеры механических конструкций серии 482,6 мм (19 дюймов). Часть 3-100. Основные размеры передних панелей, подстоек, шасси, стоек и шкафов)
IEC 60917-1, Modular order for the development of mechanical structures for electronic equipment practices. Part 1. Generic standard (ГОСТ Р МЭК 60917-1-2011 Модульный принцип разработки базовых несущих конструкций электронного оборудования. Часть 1. Общий стандарт)
IEC 60917-2-2, Modular order for the development of mechanical structures for radio electronic equipment. Part 2. Sectional standard. Interface coordination dimensions for the 25 mm equipment practice. Section 2. Detail standard. Dimensions for subracks, chassis, backplanes, front panels and plug-in units (ГОСТ Р МЭК 60917-2-2-2013 Модульный принцип разработки базовых несущих конструкций электронного оборудования. Часть 2. Групповые технические условия. Присоединительные координационные размеры базовых несущих конструкций с контактной поверхностью 25 мм. Раздел 2. Частные технические условия. Размеры подстоек, шасси, объединительных плат, передних панелей и вставных блоков)
IEC 61587-1, Mechanical structures for electronic equipment. Tests for IEC 60917 and IEC 60297. Part 1. Climatic, mechanical tests and safety aspects for cabinets, racks, subracks and chassis (ГОСТ Р МЭК 61587-1-2013 Механические конструкции для электронного оборудования. Испытания для МЭК 60917 и МЭК 60297. Часть 1. Климатические, механические испытания и аспекты безопасности для шкафов, стоек, подстоек и шасси)
IEC 61587-2, Mechanical structures for electronic equipment. Tests for IEC 60917 and IEC 60297. Part 2. Seismic tests for cabinets and racks (ГОСТ Р МЭК 61587-2-2015 Механические конструкции для электронного оборудования. Испытания для МЭК 60917 и МЭК 60297. Часть 2. Сейсмические испытания для шкафов и стоек)
IEC 61587-3, Mechanical structures for electronic equipment. Tests for IEC 60917 and IEC 60297. Part 3. Electromagnetic shielding performance tests for cabinets, racks and subracks (ГОСТ Р МЭК 61587-3-2013 Механические конструкции для электронного оборудования. Испытания для МЭК 60917 и МЭК 60297. Часть 3. Испытания эффективности электромагнитного экранирования шкафов, стоек и подстоек)