ГОСТ Р 58248-2018 ПОЖАРНО-СПАСАТЕЛЬНОЕ ОБОРУДОВАНИЕ ДЛЯ ГРУЗОВЫХ ВОЗДУШНЫХ ПЕРЕВОЗОК. ПАССИВНЫЕ СРЕДСТВА ЛОКАЛИЗАЦИИ ПОЖАРА. КРИТЕРИИ РАЗРАБОТКИ, ФУНКЦИОНАЛЬНЫЕ ТРЕБОВАНИЯ И МЕТОДЫ ИСПЫТАНИЙ
Rescue and fire fighting equipment for air cargo. Fire containment covers. Design criteria, performance requirements and test methods
Предисловие
1 Разработан Союзом авиапроизводителей России
2 Внесен Техническим комитетом по стандартизации ТК 323 "Авиационная техника"
3 Утвержден и введен в действие Приказом Федерального агентства по техническому регулированию и метрологии от 18 октября 2018 г. N 805-ст
4 Настоящий стандарт разработан с учетом основных нормативных положений международного стандарта ISO 14186:2013 "Грузовые воздушные перевозки. Пассивное оборудование для локализации пожара. Требования к разработке, функционированию и методам испытаний" (ISO 14186:2013 "Air cargo - Fire containment covers - Design, performance and testing requirements", NEQ)
5 Введен впервые
Введение
Настоящий стандарт устанавливает критерии разработки, функциональные требования и методы испытаний в отношении такого вида пожарно-спасательного оборудования, применяемого при грузовых воздушных перевозках, как чехлы и кожухи для локализации пожара, предназначенные для использования совместно с устройствами упаковки грузов. Данный вид оборудования применяется для того, чтобы посредством уменьшения содержания кислорода обеспечивать выполнение требований по локализации пожара в грузовых отсеках воздушных судов транспортной авиации. В тексте настоящего стандарта минимальные требования обозначены с помощью ключевых слов "должен/необходимо". Рекомендуемые положения обозначаются с помощью ключевого слова "следует", при этом, не являясь обязательными, они считаются первостепенными по важности для обеспечения эффективного использования чехлов и кожухов для локализации пожара.
Отклонение от рекомендуемых положений может иметь место только на основании тщательного рассмотрения, всесторонних испытаний и после того, как эксплуатационная оценка показала, что альтернативные методы отвечают требованиям.
В соответствии с законодательством Российской Федерации об обеспечении единства измерений, требования настоящего стандарта выражаются в соответствующих величинах, указанных в единицах СИ. В тоже время, в связи с использованием в гражданской авиации значительного числа воздушных судов и оборудования зарубежного производства, в информационных целях в рамках настоящего стандарта предоставлен перевод единиц измерения в дюйм-фунтовую систему (приведен в скобках). При этом указанный перевод приведен исключительно в справочных целях; во всех случаях, когда представляется необходимым использовать точные значения, следует руководствоваться значениями величин, указанными в единицах СИ.
1.1 Настоящий стандарт устанавливает критерии разработки, функциональные требования и методы испытаний в отношении применяемого при грузовых воздушных перевозках пассивного оборудования для локализации пожара в виде чехлов и кожухов, которые используются:
- в грузовых отсеках воздушных судов транспортной гражданской авиации, являясь при этом единственными средствами выполнения применимых нормативных и законодательных требований в области локализации пожара;
- на добровольной основе в грузовых отсеках воздушных судов транспортной гражданской авиации в целях повышения эффективности защиты от пожара, при этом их использование не является нормативным требованием.
1.2 Пассивные средства локализации пожара, определенные в настоящем стандарте, предназначены для защиты упакованного груза, установленного/закрепленного на грузовом поддоне и сетки в сборе, предназначенного для погрузки в грузовой отсек основной палубы воздушного судна.
Примечание - Несмотря на то, что ничто не мешает размещению пассивных средств локализации пожара в грузовом отсеке на нижней палубе воздушного судна, чехлы не предназначены для этой цели, поскольку их функциональные возможности по локализации пожара будут излишними наряду с другими системами по локализации и тушению пожара, действию которых они могут препятствовать.
1.3 Пассивные средства локализации пожара, определенные в настоящем стандарте, могут быть двух типов:
- чехлы типа I: отдельные конструкции для установки поверх груза на грузовом поддоне под сеткой;
- чехлы типа II: конструкции, несъемные по отношению к сетке грузового поддона.
1.4 Требования настоящего стандарта относятся к средствам упаковки грузов, используемым в сочетании с чехлами исключительно в случаях, когда речь идет о требованиях к воспламеняемости данных средств.
1.5 Настоящий стандарт не рассматривает случаи локализации пожара для багажа, помещенного в отсек для навалочного груза (так названного груза россыпью).
1.6 Настоящий стандарт не определяет требования для устройств обнаружения и тушения пожара. Определенные в настоящем стандарте средства локализации пожара являются пассивными.
1.7 Использование пассивных средств локализации пожара, отвечающих требованиям настоящего стандарта, не является достаточным для обеспечения безопасности полета. Настоящий стандарт предполагает, что пассивные средства для локализации пожара будут одобрены для применения, установлены и проверены до загрузки воздушного судна в соответствии с инструкциями по эксплуатации персоналом, компетентность которого подтверждена согласно ГОСТ Р ИСО 9001.
В настоящем стандарте использованы нормативные ссылки на следующие стандарты:
ГОСТ 21901 Поддоны авиационные типов ПА-5, 6 и ПА-2, 5. Общие технические условия
ГОСТ 33759 Поддоны полимерные многооборотные. Общие технические условия
ГОСТ ИСО 4115 Сетки для авиационно-наземных поддонов. Общие технические требования
ГОСТ Р ИСО 9001 Системы менеджмента качества. Требования
ГОСТ Р 53225 Материалы геотекстильные. Термины и определения
ГОСТ Р 53615 (IEC 60721-2-4:1987) Воздействие природных внешних условий на технические изделия. Общая характеристика. Солнечное излучение и температура.
Примечание - При пользовании настоящим стандартом целесообразно проверить действие ссылочных стандартов в информационной системе общего пользования - на официальном сайте Федерального агентства по техническому регулированию и метрологии в сети Интернет или по ежегодному информационному указателю "Национальные стандарты", который опубликован по состоянию на 1 января текущего года, и по выпускам ежемесячного информационного указателя "Национальные стандарты" за текущий год. Если заменен ссылочный стандарт, на который дана недатированная ссылка, то рекомендуется использовать действующую версию этого стандарта с учетом всех внесенных в данную версию изменений. Если заменен ссылочный стандарт, на который дана датированная ссылка, то рекомендуется использовать версию этого стандарта с указанным выше годом утверждения (принятия). Если после утверждения настоящего стандарта в ссылочный стандарт, на который дана датированная ссылка, внесено изменение, затрагивающее положение, на который дана ссылка, то это положение рекомендуется применять без учета данного изменения. Если ссылочный стандарт отменен без замены, то положение, в котором дана ссылка на него, рекомендуется применять в части, не затрагивающей эту ссылку.
В настоящем стандарте применены следующие термины с соответствующими определениями:
3.1 локализация пожара (fire containment): Защита от пожара. Обеспечение нераспространения огня в течение установленного промежутка времени до такого масштаба, при котором возникает повреждение воздушного судна либо наносится вред пассажирам или экипажу.
3.2 чехол для локализации пожара (fire containment cover, FCC): Пассивное средство локализации пожара, используемое совместно с грузовыми поддонами и сетками в целях сдерживания возможного пожара авиационного груза в течение установленного периода времени.
3.3 средство пакетирования грузов с активной защитой от пожара (active fire protection unit load device): Средства пакетирования грузов, которые включают встроенные системы обнаружения пожара и/или системы пожаротушения.
3.4 пассивное средство пакетирования грузов (passive unit load device): Средство пакетирования грузов или комплектующее к нему (например, чехол для локализации пожара), которое не включает ни систему обнаружения пожара, ни систему пожаротушения и обеспечивает локализацию пожара посредством использования его огнестойкого или огнеупорного материала и ограничения доступа воздуха.
3.5 средство пакетирования грузов (unit load device); ULD: Средство для комплектования, передачи и закрепления груза для перевозки. Средство пакетирования грузов может состоять из поддона с сеткой или может представлять собой контейнер.
3.6 пожар класса A (class A fire): Возгорание в обычных горючих материалах, таких как древесина, ткань, бумага, резина и пластик, для которых тушение и охлаждающее воздействие посредством воды или растворов, содержащих большой процент воды, имеют особо важное значение.
3.7 огнестойкий (fire resistant): Компоненты, оборудование и конструкции, способные выдерживать в течение не менее 5 мин приложение высокой температуры определенного огневого воздействия.
3.8 огнеупорный (fire proof): Компоненты, оборудование и конструкции, способные выдерживать приложение высокой температуры определенного огневого воздействия в течение не менее 15 мин.
3.9 выгоревший участок (burn length): Расстояние от исходной кромки до самого дальнего следа повреждения на испытательном образце вследствие воздействия пламени, в том числе области частичного или полного износа, обугливания или хрупкости, но не включая области, покрытые сажей, потемневшие, деформированные или обесцвеченные, а также те области, где материал подвергся усадке или оплавился от очага горения.
4.1 Подтверждение соответствия
4.1.1 Типовую конструкцию чехла для локализации пожара следует утверждать на основании подтверждения соответствия требованиям настоящего стандарта. Изготовитель должен представить документ о подтверждении соответствия, в качестве которого может выступать сертификат соответствия либо одобрение типа, в случаях предусмотренных законодательством.
4.1.2 Чехол для локализации пожара может представлять собой полностью независимое устройство (тип I), либо он может крепиться или являться частью одобренной сетки грузового поддона (тип II). При этом в случаях использования чехлов типа II ни одна составная часть либо характеристика чехла или сетки грузового поддона не должна нарушать функционирование других элементов. Сетка грузового поддона, используемая совместно с чехлом (кожухом) (тип I) или прикрепляемая к нему (тип II), должна отвечать дополнительным требованиям к воспламеняемости, приведенным в 5.1.3.
Примечание - Предполагается, что в отношении чехлов типа II применяются грузовые поддоны, соответствующие ГОСТ 21901 либо ГОСТ 33759, и сетки грузовых поддонов, соответствующие ГОСТ ИСО 4115. Каждый случай использования иных грузовых поддонов и сеток должен быть одобрен при проведении подтверждении соответствия чехлов для локализации пожара.
4.1.3 В целях предотвращения возникновения возгорания груза, в условиях максимальной летной нагрузки, должны в равной степени учитываться требования к предельной нагрузке и воспламеняемости сетки.
4.2 Размеры
4.2.1 Чехол для локализации пожара должен полностью охватывать один из стандартных контуров средства упаковки груза, как приведено в приложениях А, Б и В настоящего стандарта, до кромок основания поддона, но не закрывая его поверхность.
Примечание - Отсутствие требования к покрытию для пола основано на том факте, что все применяемые в настоящее время поддоны имеют алюминиевые листы основания, достаточные для того, чтобы удовлетворять требованиям применимых нормативных документов. Чехлы для локализации пожара, удовлетворяющие требованиям настоящего стандарта, могут не подходить к поддонам, произведенным из других материалов.
В отношении поддонов, не удовлетворяющих данному требованию, необходимо наличие чехла с нижней панелью над поверхностью поддона.
Примечание - Контуры серийно выпускаемых устройств упаковки грузов, применяемых с грузовыми поддонами, определены в стандартной технической спецификации IATA 50/0 "Техническая документация на устройства пакетирования грузов" [1]. В случае, когда чехол для локализации пожара предназначается и сертифицирован только для одного типа воздушного судна, в отношении данного типа воздушного судна используется конкретный максимальный контур устройства средства упаковки груза.
Максимальный контур груза на поддоне составляет 50 мм (2 дюйма) внутрь от максимального контура средств упаковки грузов по всем четырем сторонам.
Примечание - В связи с тем, что поддоны, смонтированные в контуре нижней палубы, можно перенести на верхнюю палубу, чехлы для локализации пожара, предназначенные для этих целей, также могут конструироваться для стандартного Р контура средства упаковки грузов нижней палубы (см. приложение В).
4.2.2 Размер чехлов для локализации пожара должен обеспечивать достаточный зазор по всей поверхности допустимого контура с целью обеспечения монтажа, а также способствовать снижению риска поступления воздуха после его установки (см. 9.2.4).
4.3 Материалы
4.3.1 Чехол для локализации пожара необходимо разрабатывать из гибких огнеупорных или огнестойких материалов, либо из многослойных композиционных материалов, отвечающих требованиям огнестойкости (воспламеняемости и проникновения пламени), определенным в 5.1.
4.3.2 Любые другие элементы конструкции чехлов для локализации пожара (например, швейные нити, швы, сварка, пайка, склейка, скрепление, запорные устройства, герметизирующие, устройства крепления, держатели табличек и т.д.) должны отвечать таким же требованиям, какие предъявляются непосредственно к чехлам для локализации пожара.
4.3.3 Выбор материалов должен предусматривать максимальный возможный износ, истирание, срезание, разрыв и прочность на прокол (см. 6.1.2 и 6.1.4).
4.3.4 При выборе материалов предпочтение следует отдавать материалам, поддающимся утилизации при условии, что это не снижает соответствующих противопожарных характеристик. При производстве чехлов запрещается использовать асбесты и асбестовые смеси.
В отношении прочих материалов необходимо проводить оценку возможного негативного влияния на здоровье человека.
4.3.5 При нагреве материалы не должны выделять токсичных соединений (паров или газов) (см. 5.2.4).
4.3.6 Цвет материала остается на усмотрение потребителя, однако его следует выбирать таким образом, чтобы он четко отличался и контрастировал с грузовыми чехлами общего назначения, используемыми эксплуатантом. В случае, если композиционный материал незакрепленного чехла для локализации пожара предусматривает наличие одной стороны в качестве внутренней, для удержания огня, цвета внутренней и внешней сторон должны отличаться во избежание неправильной установки.
4.4 Масса
4.4.1 Масса чехлов для локализации пожара должна быть минимальной в соответствии с требованиями огнестойкости и прочности на прокол. Предпочтительно, чтобы масса чехла для локализации пожара типа I не превышала 45 кг (100 фунтов), чтобы его установку могли осуществить два человека, а масса чехла для локализации пожара типа II (с закрепленной сеткой) не превышала 70 кг (150 фунтов), чтобы его установку могли осуществить три человека в условиях отсутствия средств механизации.
4.4.2 Если нормативная целевая масса 45 кг (100 фунтов) превышена, следует рассмотреть возможность обеспечения средств механической погрузки на месте монтажа поддона, а чехол (кожух) для локализации пожара должен иметь конструктивные особенности и/или приспособления для их использования (см. 4.5.7).
4.5 Конструкция
4.5.1 Конструкция чехла для локализации пожара должна быть такой, чтобы любые внутренние приспособления обеспечивали минимальную требуемую огнестойкость.
4.5.2 В случае, если при установке/демонтаже чехла требуется проведение операции открытия или закрытия, запорные устройства должны обеспечивать минимальную требуемую огнестойкость и должны быть защищены герметизирующими уплотнителями для предотвращения доступа воздуха после закрытия.
4.5.3 Внешняя поверхность чехла для локализации пожара должна быть по возможности гладкой в целях предотвращения любого воздействия на двери воздушного судна, внутреннюю обивку грузового отсека и светильники, а также в целях предотвращения риска нанесения повреждений средствам пакетирования грузов.
4.5.4 При необходимости нижние кромки чехла для локализации пожара, не присоединенного или невстроенного в сетку поддона, могут включать соединительную арматуру для фиксирования внешней направляющей основания поддона. Требований к предельно допустимой нагрузке данной арматуры не предъявляется, однако она должна выдерживать обычные погрузочно-разгрузочные работы без операции разъединения.
4.5.5 Функции чехла для локализации пожара по стандартному и аварийному (быстрая разгерметизация) выравниванию давления должны обеспечиваться посредством негерметичного смыкания между нижними кромками и кромками поддона.
4.5.6 В отношении чехлов для локализации пожара II типа, крепление сетки к чехлу должно отвечать требованиям воспламеняемости для сетки в соответствии с 5.1.3.
4.5.7 Конструкция чехла для локализации пожара должна обеспечивать минимально возможное время на его установку и демонтаж. Время выполнения операции по установке чехла поверх всего контура грузового поддона в сборе при условии работы двух человек не должна превышать времени выполнения аналогичной операции применительно к стандартной сетке. При этом операция по установке должна проводиться по возможности без применения инструментов или иных технических средств, за исключением средств доступа (например, складной стремянки). В случае, когда масса чехла превышает 45 кг (100 фунтов), следует рассмотреть возможность применения средств механической погрузки в грузовых терминалах. Если технические средства для погрузки закреплены на чехле, они должны отвечать требованиям 5.1.
4.5.8 Время выполнения операции по демонтажу чехла при условии работы двух человек не должно превышать времени выполнения аналогичной операции в отношении стандартной сетки без применения средств механической погрузки.
4.5.9 Следует предусмотреть два держателя для указателей на внешней поверхности двух противоположных сторон чехлов для локализации пожара на высоте в диапазоне от 1200 мм и 1600 мм (48 дюймов и 64 дюйма) от кромки поддона. Они должны вмещать указатели в виде бирок минимального формата А5.
4.6 Условия эксплуатации
4.6.1 Разработка и выбор материалов чехлов для локализации пожара должны осуществляться, исходя из внешних условий дальнейшей эксплуатации, в диапазоне температур от минус 40 °С (минус 40 °F) до 60 °С (140 °F) с относительной влажностью в диапазоне между 20 % и 85 %, включая лед, снег и намокание вследствие дождя или выпадения конденсата.
4.6.2 Следует проводить оценку чехлов для локализации пожара на возможное ухудшение огнестойкости и прочности материала на прокол вследствие воздействия атмосферных или других факторов внешней среды, включая воздействие ультрафиолета и других химических веществ (например, керосин, растворы, смазки, гидравлическая жидкость воздушного судна, противообледенительные жидкости, в том числе на основании гликоля), колебания температуры, воздействия влажности или плесени, с большой вероятностью встречающихся при осуществлении грузовых воздушных перевозок. Изготовитель должен информировать покупателя об ожидаемых ухудшениях характеристик чехлов и любой выявленной химической несовместимости.
4.6.3 Оценка соответствия требованиям 4.3 может осуществляться в виде проведения следующих испытаний образцов материала:
а) ультрафиолетовая дефектоскопия и испытания на влагостойкость (согласно 6.1.3);
б) испытания на прочность на прокол (согласно 6.1.2);
в) испытания на абразивный износ (согласно 6.1.4).
4.6.4 Информация о дате окончания срока службы, после которого не предполагается поддержание номинальных характеристик чехлов для локализации пожара, должна быть предоставлена покупателю до момента поставки каждой партии продукции (либо непосредственно при поставке), при этом дата окончания срока службы должна быть указана на маркировке на каждом чехле, являясь составной частью необходимой идентификации и прослеживаемости средства локализации пожара (см. 7.2). Дата окончания срока службы может учитывать предполагаемый срок складского хранения при том, что условия хранения, которые могут влиять на ухудшение характеристик, определены и приняты во внимание.
4.6.5 В том случае, если конструкция чехла для локализации пожара включает тканый текстильный материал или нить, при отборе материала, нити и способа обработки следует учитывать доступные данные относительно ухудшения характеристик тканого текстильного волокна при воздействии на него факторов внешней среды в соответствии с предполагаемым хранением и полным сроком службы чехла для локализации пожара.
4.6.6 Помимо этого компоненты и материалы чехла для локализации пожара следует отбирать таким образом, чтобы предусмотреть известные методы переработки после того, как чехол вышел из употребления, либо после истечения его срока службы. Инструкция по переработке должна быть представлена изготовителем.
4.7 Техническое обслуживание
4.7.1 Там, где это применимо, изготовитель должен предоставлять комплекты ремонтного инструмента и материалов, отвечающих требованиям огнестойкости (воспламеняемость и проникновение пламени), определенных в 5.1, в целях надежного ремонта после проколов или разрывов чехлов для локализации пожара.
4.7.2 Одобренный метод ремонта должен быть определен в руководстве по технической эксплуатации комплектующих изделий. Все виды проводимого ремонта должны восстанавливать характеристики по локализации пожара и герметичности. Это следует подтверждать испытаниями отремонтированной сборки чехла для локализации пожара (см. 6.2).
4.7.3 В отношении средств локализации пожара должен быть предусмотрен ремонт с применением полевого комплекта (комплекта для работы на месте), то есть без отправки испорченного чехла в специализированную мастерскую. Время отверждения после склеивания должно быть определено и указано производителем и не превышать двух часов при проведении работ на открытом воздухе в определенных погодных условиях. Допустимые минимальные и максимальные внешние условия вместе с соответствующим временем отверждения должны быть указаны в руководстве по технической эксплуатации комплектующих изделий.
5.1 Компоненты
5.1.1 Покрытие
Материал чехла для локализации пожара должен отвечать требованиям к воспламеняемости, а именно должен быть самозатухающим при испытаниях в вертикальной плоскости. Также при проведении испытаний под углом 45° (приложение специального источника пламени) не должно возникать проникновения пламени в течение 5 мин. После приложения данного источника, а пиковое значение температуры, измеренное на уровне 100 мм (4 дюйма) над верхней поверхностью горизонтально расположенного испытательного образца, не должно превышать 204 °С (400 °F).
5.1.2 Грузовой поддон
Материал грузового поддона, используемого совместно с чехлом для локализации пожара, должен быть самозатухающим при испытаниях в вертикальной плоскости. При проведении испытаний под углом 45° (приложение специального источника пламени) не должно возникать проникновения пламени.
5.1.3 Сетка
Материал сетки грузового поддона, используемой совместно с чехлом для локализации пожара независимо от того, прикреплена она к нему или нет, должен быть самозатухающим при испытаниях в вертикальной плоскости.
5.2 Чехол для локализации пожара в сборе
5.2.1 Чехол для локализации пожара в сборе, подлежащий установке на грузовой поддон, должен эффективно сдерживать и ликвидировать пожар, возникающий внутри него.
5.2.2 Чехол для локализации пожара в сборе при надлежащей установке на грузовой поддон должен снижать тепло, выделяемое на его внешней поверхности, чтобы не оказывать отрицательного влияния на прилежащие системы воздушного судна.
Выполнение данного требования должно подтверждаться положительными результатами выполнения испытаний согласно 6.1.1, а также 6.1.2, демонстрирующими, что температура, измеренная в любой точке на уровне 100 мм (4 дюйма) снаружи контура средства пакетирования грузов либо ниже грузового поддона, никогда не превышает 204 °С (400 °F), и при этом не возникает проникновения пламени.
5.2.3 Зарегистрированные значения температуры и значения тепловой нагрузки, рассчитанные на вышеуказанных участках вокруг и ниже грузового поддона, покрытого чехлом для локализации пожара в сборе, следует использовать при расчете продолжительности времени защиты, которую обеспечивает система. В случае, когда чехол для локализации пожара в сборе предназначен и сертифицирован только для одного типа воздушного судна, время защиты не должно быть ниже, чем принятое максимальное время защиты для предполагаемого типа воздушного судна и предполагаемого времени полета. В том случае, когда ограничение по типу воздушного судна не применимо, расчетное время защиты не должно быть меньше 6 ч.
5.2.4 Чехол для локализации пожара в сборе при надлежащей установке на грузовой поддон должен снижать количество загрязняющих веществ, таких как дым, копоть или токсичные газы, исходящих от покрытого груза на поддоне. Считается целесообразным, чтобы дым и газообразные загрязнения, выделяемые самим чехлом при нагреве, не превышали уровней, определенных в приложении Г.
5.3 Допустимое повреждение
5.3.1 Рабочие характеристики чехла для локализации пожара в сборе должны сохраняться при наличии максимального допустимого повреждения, определенного и обоснованного изготовителем. Максимальное допустимое повреждение следует определить в руководстве по технической эксплуатации комплектующих (см. 8.2).
5.3.2 Изготовителям рекомендуется демонстрировать наивысший устойчивый уровень повреждений в процессе эксплуатации, задающий наивысший уровень характеристик по локализации пожара. Однако в целях обеспечения защиты от повреждений в эксплуатационном режиме погрузки, осуществляемой третьей стороной, минимальный заданный объем допустимых повреждений должен составлять:
- два прокола размером (50 х 200) мм ((2 х 8) дюймов) на нижней стороне с одной стороны, что соответствуют типичным повреждениям, возникающим вследствие удара вил погрузчика с вилочным захватом (рисунок 1);
- два отверстия диаметром 25 мм (1 дюйм) одно напротив другого в верхней части на противоположных сторонах чехла, что соответствуют разрывам от ненадлежащего использования инструментов и средств механизации по обслуживанию чехла либо результатам воздействия летящего на скорости предмета (рисунок 1).

1 - воспроизведение двух отверстий на противоположных сторонах; 2 - воспроизведение удара погрузчика с вилочным захватом (с одной стороны)
Рисунок 1 - Максимальное допустимое повреждение
5.3.3 Предполагаемое максимально допустимое повреждение следует подтверждать посредством того, что повреждение подвергалось полному набору испытаний чехлов для локализации пожара в сборе (см. 6.2).
6.1 Испытания материалов
6.1.1 Испытания на воспламеняемость и проникновение пламени
6.1.1.1 Для подтверждения соответствия материала чехла для локализации пожара следует испытывать минимум три образца материала для чехла размером (406 ± 3) мм х (610 ± 3) мм ((16 ± 1/8) дюймов х (24 ± 1/8) дюйма), с использованием соответствующей испытательной аппаратуры (монтажный стенд, керосиновая испытательная горелка, термопары).
6.1.1.2 До проведения испытаний каждый из образцов должен пройти следующую предварительную подготовку:
- вымачивание (пропитывание) в воде в течение 24 ч с дальнейшей сушкой при комнатной температуре в хорошо вентилируемом месте (до и после предварительной подготовки рекомендовано проводить взвешивание образца, чтобы подтвердить, что образец полностью высох);
Примечание - Опытным путем было выявлено, что на устойчивость текстильных материалов к горению отрицательно воздействует предварительное вымачивание (пропитывание водой), которое часто случается и трудно предотвращаемо при авиационных грузоперевозках.
- после этого к образцу следует применить процедуру кондиционирования, состоящую в выдерживании образцов при температуре (21 ± 3) °С ((70 ± 5) °F) и относительной влажности (50 ± 5) % до тех пор, пока не будет достигнуто состояние равновесной (кондиционированной) влажности (либо выдерживать в заданных условиях в течение 24 ч). Каждый из образцов должен оставаться в условиях окружающей среды до тех пор, пока он не будет подвергнут воздействию пламени.
6.1.1.3 Каждый образец следует испытывать в горизонтальном положении. В том случае, когда материал асимметричен, его следует размещать по внутренней стороне чехла для локализации пожара (то есть вниз по отношению к воздействию пламени).
6.1.1.4 Испытываемые образцы должны включать части любых других элементов конструкции чехла для локализации пожара, в том числе швейные нити, швы, сварку, склейку, соединение, запорные устройства, герметики, любые аксессуары, держатели табличек, маркировку и так далее, выход из строя которых может отрицательно повлиять на способность чехла безопасно локализовать пожар.
6.1.1.5 По результатам испытаний на любом образце не должно возникать проникновения пламени в течение 5 мин после приложения источника пламени, а пиковая температура, измеряемая на уровне 100 мм (4 дюйма) над верхней поверхностью горизонтально расположенного испытательного образца, не должна превышать 204 °С (400 °F).
6.1.1.6 Грузовой поддон
Помимо ранее испытанных и продемонстрировавших соответствие требованиям воспламеняемости образцов следует провести испытания минимум трех образцов материала любого грузового поддона, используемого совместно с чехлом для локализации пожара. Испытания следует проводить следующим образом:
- испытания в вертикальном состоянии:
а) каждый образец следует испытывать с применением горелки Бунзена, испытательной аппаратуры (безсквозняковый шкаф) и по одобренной методике испытаний;
б) минимальная температура пламени, измеренная термопарами в его центре, должна составлять 840 °С (1550 °F). Приложение пламени должно осуществляться в течение 12 с. Последующее время горения, длина выгоревшего участка и время горения капель, при наличии таковых, должны быть документированы;
в) по результатам испытаний средняя длина выгоревшего участка не должна превышать 203 мм (8 дюймов), среднее время горения после удаления источника пламени не должно превышать 15 с, а капли из образца, при наличии таковых, не должны продолжать гореть в среднем свыше 5 с после падения;
- испытания под углом 45°:
а) каждый образец следует испытывать с применением горелки Бунзена, испытательной аппаратуры (безсквозняковый шкаф) и по одобренной методике испытаний;
б) минимальная температура пламени, измеренная термопарами в его центре, должна составлять 840 °С (1550 °F). Приложение пламени должно осуществляться в течение 30 с таким образом, чтобы одна треть контактировала с материалом в центре образца. Последующее время горения, время тления и факты прохождения пламени сквозь образец должны быть зарегистрированы;
в) по результатам испытаний пламя не должно проходить сквозь материал как во время приложения пламени, так и при последующем его удалении, среднее время горения после удаления источника пламени не должно превышать 15 с, а среднее время тления не должно превышать 10 с.
6.1.1.7 Сетка
Для подтверждения соответствия материала сетки, используемой совместно с чехлом для локализации пожара, следует провести испытания, по крайней мере, трех образцов материала сетки в вертикальном положении следующим образом:
- каждый образец следует испытывать с применением испытательной аппаратуры (безсквозняковый шкаф) и по одобренной методике испытаний;
- минимальная температура пламени, измеренная термопарами в его центре, должна составлять 840 °С (1550 °F). Приложение пламени должно осуществляться в течение 12 с. Последующее время горения, длина выгоревшего участка и время горения капель, при наличии таковых, должны быть документированы;
- по результатам испытаний средняя длина выгоревшего участка не должна превышать 203 мм (8 дюймов), среднее время горения после удаления источника пламени не должно превышать 15 с, а капли из образцов, при наличии таковых, не должны продолжать гореть в среднем свыше 5 с после падения.
6.1.2 Испытания на прочность на прокол
6.1.2.1 Материал чехла следует испытывать на прочность на прокол для того, чтобы оценить вероятность отрицательного воздействия прокола, возникшего в процессе эксплуатации, на способность чехла и далее безопасно локализовать пожар. Пять вымоченных образцов следует испытывать, используя испытательную аппаратуру, плунжер в соответствии с методологией [2]. Частота пробивающего усилия должна составлять (50 ± 10) мм/мин ((2 ± 3/8) дюйма/мин).
6.1.2.2 Среднее значение пробивающего усилия, измеряемое в килоньютонах (фунт-сила) при полном проколе материала, должно быть документировано и по запросу представлено потребителю. Оно должно составлять не менее 5 кН (1100 фунт-сил).
6.1.2.3 Испытания следует повторить с образцами, которые ранее предоставлялись для проведения испытаний в соответствии с 6.1.3
6.1.3 Ультрафиолетовая дефектоскопия и испытания на влагостойкость
6.1.3.1 Процедура ускоренной ультрафиолетовой дефектоскопии и испытаний на влагостойкость с применением лабораторного оборудования представлена в [3] и [4].
Примечания
1 Процедура проводится в течение минимум 240 ч, состоящих из испытательных циклов, включающих 16 ч воздействия ультрафиолетового излучения А при температуре (60 ± 2) °С ((140 ± 5) °F), которые чередуются с 8 ч конденсации влаги при температуре (50 ± 2) °С ((120 ± 5) °F) и относительной влажности (95 ± 4) % RH.
2 Ускоренная ультрафиолетовая дефектоскопия не имеет фиксированной связи с воздействием фактических условий окружающей среды и может использоваться для получения относительных результатов, но не позволяет спрогнозировать достоверные результаты.
6.1.3.2 После выполнения необходимых испытательных циклов образцы следует раздельно предоставить для:
а) проведения испытаний на воспламеняемость и проникновение пламени согласно 6.1.1;
б) проведения испытаний на прочность на прокол согласно 6.1.2 с целью оценки ухудшения характеристик в этих критических областях по сравнению с первоначальными испытаниями новых образцов.
6.1.3.3 Все образцы, прошедшие испытания на воздействие УФ излучения и на влагостойкость, должны быть предоставлены для прохождения испытаний на воспламеняемость и проникновение пламени и должны отвечать критерию соответствия, определенному в 6.1.1.5.
6.1.3.4 После проведения испытаний на прочность на прокол образцы, прошедшие испытания на воздействие УФ излучения и на влагостойкость, должны демонстрировать среднее значение пробивающего усилия при полном проколе материала, измеряемое в килоньютонах (фунт-сила), равное как минимум 50 % от среднего значения, измеренного на образцах, которые не подвергались воздействию в соответствии с 6.1.2.2.
6.1.3.5 Вследствие значительной, зависящей от материала, непрогнозируемой разницы значений между воздействием в условиях эксплуатации и воздействием при ускоренных испытаниях в условиях лаборатории, настоятельно рекомендуется дополнять ускоренную ультрафиолетовую дефектоскопию воздействием фактического солнечного излучения в течение как минимум 6 мес в соответствии с ГОСТ Р 53615. После этого образцы должны пройти испытания в соответствии с 6.1.3.2-6.1.3.4, а результаты таковых испытаний можно использовать для проверки метода ускоренных испытаний, при использовании для такого же материала, а также для лучшего обоснования даты окончания срока службы чехла согласно 4.5.6.
6.1.4 Испытания на абразивный износ
6.1.4.1 Испытания на абразивный износ следует проводить на материале чехла для локализации пожара в соответствии с прогнозируемым сроком службы чехла.
6.1.4.2 Следует испытывать минимум три образца материала чехла для локализации пожара. После проведения испытаний образцы следует испытывать на воспламеняемость и проникновение пламени в соответствии с 6.1.1. При этом должен выполняться критерий соответствия по 6.1.1.5.
6.1.4.3 Полученный параметр среднего абразивного износа следует документировать и предоставлять покупателю по запросу совместно с информацией относительно срока службы чехла.
6.1.5 Испытания на стойкость к грибковой плесени
6.1.5.1 Испытания на стойкость к грибковой плесени [5] следует проводить на материале чехла для локализации пожара. Однако если может быть доказано, что материалы, используемые в конструкции чехла для локализации пожара, не являются питательной средой для развития грибковой плесени благодаря составу либо вследствие предварительных испытаний, проведение подобных испытаний не требуется.
6.1.5.2 В тех случаях, когда проведение испытаний необходимо, следует использовать, как минимум, три образца материала. Обработка грибковой плесенью должна выполняться в соответствии с использованием раствора минеральной соли и посевов спор плесени. Инкубацию следует осуществлять в течение 28 дней при температуре (30 ± 3) °С ((86 ± 5) °F) и относительной влажности (97 ± 2) % RH.
6.1.5.3 После инкубации образцы следует испытать на воспламеняемость и устойчивость проникновению пламени в соответствии с 6.1.1. При этом должен выполняться критерий соответствия 6.1.1.5.
6.1.6 График проведения испытаний материалов
6.1.6.1 Типичный график проведения испытаний, приведенных в 6.1.1-6.1.5 должен выглядеть следующим образом

6.1.6.2 В то же время количество испытаний и их последовательность можно изменять для того, чтобы наилучшим образом выполнять условия проведения испытаний, при условии, что соблюдаются требования каждого пункта испытаний, а фактические номера, последовательность и результаты заносятся в соответствующий протокол испытаний.
6.2 Испытания чехлов для локализации пожара в сборе
6.2.1 В целях подтверждения соответствия конструкции чехла для локализации пожара необходимо провести полную программу испытаний в сборе. Составляющие сборку, чехол для локализации пожара I или II типа, и отвечающую требованиям воспламеняемости сетку грузового поддона, независимо от того, прикреплен чехол к сетке или нет, следует установить поверх грузового поддона общего назначения, смонтированного до максимального контура, и поджечь груз изнутри, вызывая пожар класса А в соответствии с 3.6. Количество материала для обеспечения воспламенения следует определить таким образом, чтобы поддерживать пожар в течение минимального времени защиты, определенного в 5.2.3. Документирование результатов следует начинать с момента воспламенения для инициирования пожара.
6.2.2 Материалы для пожара класса А должны быть установлены на грузовом поддоне. В целях обеспечения воспроизводимости испытаний следует использовать следующие условия:
- коробки из гофрокартона размером приблизительно (450 х 450 х 450) мм (18 x 18 x 18) дюймов) массой приблизительно 1 кг (2 фунта), каждую из которых необходимо заполнить нарезанной бумагой массой приблизительно 1, 2 кг (2, 5 фунт). Каждую коробку следует заполнить, как минимум, на 75 % объема;
- сложить коробки в штабель таким образом, чтобы они плотно прилегали одна к другой, в количестве, необходимом для заполнения максимального контура средства пакетирования груза. После этого необходимо установить испытываемый чехол над заполненным средством пакетирования груза. Далее следует установить и отрегулировать применяемое измерительное оборудование;
- воспламенение для инициирования пожара следует производить дистанционно на самом нижнем уровне штабеля в одной из коробок, непосредственно прилегающей к одной из сторон чехла для локализации пожара, и прилегающей к линии соединения или шва, если то или другое является частью конструкции.
6.2.3 Показания термопар на уровне выше и вокруг чехла для локализации пожара, а также ниже базового уровня следует регистрировать в процессе проведения испытаний с тем, чтобы измерить температуру на расстоянии 100 мм (4 дюйма) от внешней поверхности чехла, используя термопары. При этом в любой момент времени не должно возникать проникновения пламени (прогорания), а максимальные значения измеренной температуры не должны превышать 204 °С (400 °F).
6.2.4 Грузовой поддон должен быть закреплен на высоте, по крайней мере, 200 мм (8 дюймов) над не теплоотражающим, например бетонным полом. Как минимум 8 регистрирующих термопар следует разместить на расстоянии (100 ± 10) мм ((4 ± 1/2) дюйма) от основного контура грузового поддона и под поддоном, в фиксированных местоположениях, определенных в приложении Д. Термопары не следует переустанавливать в том случае, если чехол в процессе проведения испытаний деформировался снаружи или изнутри своего первоначального контура.
Примечание - Дополнительные термопары можно использовать, если это представляется необходимым в соответствии с результатами предыдущих испытаний.
6.2.5 После воспламенения для инициирования пожара показатели измерений следует непрерывно регистрировать через соответствующие промежутки времени продолжительностью, предусмотренной для максимального времени защиты на воздушном судне (см. 5.2.3). Данные динамики изменений следует использовать для определения продолжительности времени защиты, которое, в свою очередь, используется для определения времени защиты грузового отсека воздушного судна.
6.2.6 Испытания, указанные в 6.2.1, следует повторить с чехлом для локализации пожара, продемонстрировавшим максимальные повреждения, такие как проколы, допускаемые в ходе эксплуатации (см. 5.3), затем с отремонтированным чехлом в целях обоснования применяемого метода ремонта. Данные протоколов испытаний следует использовать для обоснования определенной степени повреждения как допустимых норм эксплуатационной пригодности, так и для одобрения метода ремонта.
6.2.7 При проведении каждого испытания следует уделять внимание характеристикам сетки грузового поддона и документировать любые факты частичного или полного плавления, горения или капель, если таковые имели место, а также документировать соответствующие местоположение и продолжительность каждого указанного события. Продолжительность любого горения не должна превышать 15 с, а капли, если таковые имели место, после падения должны прекращать гореть в среднем в течение 5 с. Не допускается, чтобы нижняя часть сетки разрушалась настолько, чтобы образовывались пустоты между чехлом для локализации пожара и грузовым поддоном.
6.2.8 Протоколы испытаний чехлов для локализации пожара в сборе, включая регистрацию показаний термопар, следует сохранять в отношении всех испытаний, приведенных в 6.2.1 и 6.2.6, а также в 6.2.7 в случае, если сетка также проходит испытания. Протоколы испытаний должны быть доступны покупателю по запросу, а также при необходимости уполномоченным органам.
Примечание - Помимо этого рекомендуется, чтобы досье испытаний также включали непрерывную видеорегистрацию испытуемого устройства во время проведения каждого испытания.
6.2.9 Типичный график проведения необходимых серий испытаний чехлов для локализации пожара в сборе должен выглядеть следующим образом

6.2.10 В то же время количество испытаний и их последовательность можно изменять для того, чтобы наилучшим образом выполнять условия проведения испытаний, при условии, что соблюдаются требования каждого пункта испытаний, а фактические номера, последовательность и результаты заносятся в соответствующий протокол испытаний.
7.1 На каждый чехол для локализации пожара, соответствующий требованиям настоящего стандарта, должна быть нанесена маркировка на приемлемом расстоянии от нижней кромки по двум противоположным боковым сторонам, содержащая следующие минимально необходимые данные:
- "ЧЕХОЛ ДЛЯ ЛОКАЛИЗАЦИИ ПОЖАРА", жирным шрифтом высотой, по крайней мере, 150 мм (6 дюймов);
- "ПРОИЗВЕДЕНО В СООТВЕТСТВИИ С ГОСТ Р 58248";
- данные о сертификации, при наличии;
- подтвержденное время защиты от пожара (например, "минимальная продолжительность защиты 6 ч");
- наименование изготовителя или поставщика либо доступный для идентификации логотип изготовителя или поставщика;
- обозначение типа (номер части);
- индивидуальный серийный номер (при необходимости);
- грузовые поддоны и сетки, с которыми может использоваться чехол для локализации пожара (в соответствии с кодами размеров IATA);
- информация о любых ограничениях в зависимости от типа воздушного судна при наличии таковых;
- коды прослеживаемости (согласно 7.2), включая дату истечения срока службы.
Маркировку "ПРОИЗВЕДЕНО В СООТВЕТСТВИИ С ГОСТ Р 58248" следует рассматривать как публичное заявление о соответствии продукции требованиям национального стандарта и соответствующих обязательствах изготовителя (поставщика) согласно положению федерального законодательства в области стандартизации.
7.2 Код прослеживаемости должен обеспечивать возможность проследить процесс изготовления и поведение изделия в процессе эксплуатации и может включать следующую информацию:
- год (4 цифры)/месяц (2 цифры) изготовления;
- год истечения срока службы (4 цифры)/месяц (2 цифры), располагается до "ЕХР" и согласован с покупателем. В рамках одной партии продукции можно присваивать несколько дат истечения срока службы в случае, если они планируются для разных сроков хранения;
- код серийной партии, присвоенный изготовителем. Новый код серийной партии следует присваивать каждый раз, когда происходят изменения относительно материалов либо источника закупок, или технологического процесса.
Пример кода прослеживаемости:
| 2018 | 10 | /EXP/ | 2021 | 09 I/I A17 |
7.3 Маркировка должна представлять собой напечатанный по трафарету либо другим способом несмываемый шрифт высотой, по крайней мере, 13 мм (1/2 дюйма) за исключением надписи "ЧЕХОЛ ДЛЯ ЛОКАЛИЗАЦИИ ПОЖАРА", нанесенный на внешнюю поверхность чехла для локализации пожара таким образом, чтобы процесс нанесения маркировки не ухудшал характеристик материала. Маркировка также может представлять собой этикетку, перманентно закрепленную на внешней поверхности чехла для локализации пожара. Предпочтительно, чтобы маркировка оставалась читаемой после испытаний чехла для локализации пожара в сборе.
7.4 Помимо этого в случае, когда в чехле применяется материал, предполагающий наличие внутренней стороны, выдерживающей пожар, на внешней стороне материала на каждой из боковых сторон чехла на средней высоте должны быть нанесены слова "ВНЕШНЯЯ СТОРОНА" ("THIS SIDE OUT"), и, в свою очередь, слова "ВНУТРЕННЯЯ СТОРОНА" ("THISSIDEIN") на внутренней стороне материала на каждой из боковых сторон чехла на средней высоте. Буквы должны быть нанесены контрастным цветом жирным шрифтом высотой минимум 150 мм (6 дюймов) с учетом выполнения требований 4.3.6.
7.5 На каждую сетку грузового поддона, соответствующую настоящему стандарту (5.1.3 и 6.1.1.7) дополнительно должна наноситься, по крайней мере, следующая маркировка:
- "СОВМЕСТИМО С ИЗДЕЛИЯМИ ДЛЯ ЛОКАЛИЗАЦИИ ПОЖАРА" ("FIRE CONTAINMENT COMPATIBLE"), жирным шрифтом высотой, по крайней мере, 40 мм (1 + 3/5 дюйма).
Маркировка должна быть нанесена черным цветом на обеих сторонах двух специальных безопасных оранжевых этикеток размером с ячейку сетки минимум (250 х 250) мм, ((10 х 10) дюймов), расположенных непосредственно рядом со стандартными этикетками по обслуживанию.
8.1 Изготовитель при поставке первой партии чехлов для локализации пожара должен предоставить комплект письменных инструкций, включающий, как минимум, следующие данные:
- документ, подтверждающий соответствие требованиям настоящего стандарта;
- гарантированное время защиты от пожара в ходе эксплуатации (см. 5.2.3);
- соответствующие инструкции для эксплуатирующих организаций (п. 8.2);
- инструкции по утилизации (см. 4.3.4).
Протоколы испытаний должны предоставляться по запросу покупателю, а также в соответствующих случаях - уполномоченному органу.
8.2 Соответствующие инструкции для эксплуатирующих организаций должны содержать, как минимум, следующие данные:
- требования к условиям хранения и складскому учету, необходимые для обеспечения поддержания рабочих характеристик чехла для локализации пожара и соблюдения дат истечения сроков службы;
- предполагаемые условия использования и любые исключения, при их наличии;
- оценка параметров окружающей среды, техника безопасности, существующая химическая несовместимость;
- соответствующие инструкции по установке и демонтажу;
- требования по контролю качества и допустимые нормы эксплуатационной пригодности (максимально допустимое повреждение);
- утвержденные инструкции по ремонту с информацией по закупке комплектующих изделий и материалов (руководство по технической эксплуатации комплектующих изделий).
9.1 Общая информация
Безопасность полета зависит от эффективности и функциональной надежности установки чехлов для локализации пожара на грузовые поддоны до того, как они будут погружены на борт воздушного судна. Это может быть обеспечено выполнением применимых требований со сторон эксплуатирующих организаций.
9.2 Инструкции по эксплуатации
9.2.1 Авиаперевозчик должен гарантировать, что используемые чехлы для локализации пожара прошли необходимые испытания и отвечают функциональным требованиям, приведенным в настоящем стандарте.
9.2.2 Авиаперевозчик должен предоставить и довести до сведения всех заинтересованных сторон, включая субподрядчиков и соисполнителей, инструкции по эксплуатации чехлов для локализации пожара, принимая во внимание требования утвержденного руководства по загрузке для соответствующего типа воздушного судна, а также рекомендации настоящего стандарта и любых дополнительных требований при наличии таковых.
9.2.3 Авиаперевозчик должен предпринять все необходимые действия, чтобы гарантировать, что данные инструкции по эксплуатации полностью понимает и применяет в каждом аэропорту, по крайней мере, один надлежащим образом обученный и надежный компетентный сотрудник (см 9.3), либо инструкции выполняются под его непосредственным надзором. Предпринимаемые авиаперевозчиком действия включают разработку и выполнение процедуры, гарантирующей, что воздушное судно, на борту которого используется чехол для локализации пожара не будет отправлено до того, как такой компетентный сотрудник проведет инспекцию каждого чехла после установки и признает его удовлетворительным прежде, чем дать разрешение на погрузку на борт воздушного судна.
9.2.4 Инструкции по эксплуатации должны включать процедуры по монтажу на полностью или частично загруженные грузовые поддоны. Данные процедуры включают:
- инструкции по монтажу чехла для локализации пожара и сетки, по осуществлению погрузочно-разгрузочных работ и хранению;
- инструкции по установке сетки или другие особые указания, необходимые для приспособления формы чехла (кожуха) к фактической загрузке грузового поддона с тем, чтобы свести к минимуму пустой объем под чехлом и не допустить возникновение воздушных карманов;
- процедуру и методики для установки нижней кромки чехла для локализации пожара с тем, чтобы по мере возможности ограничить доступ воздуха к нижней кромке;
- любые другие соответствующие процедуры или особые указания.
9.2.5 Инструкции по эксплуатации должны также включать процедуры по надлежащему проведению инспекции состояния чехла для локализации пожара после его монтажа. Эта инспекция состоит в проверке на наличие возможных проколов или других повреждений и возможных точек доступа воздуха, оставшихся на границе с нижними кромками грузового поддона.
9.2.6 Авиаперевозчик должен принять меры для того, чтобы в руководство по летной эксплуатации для соответствующего типа воздушного судна было включено максимальное гарантированное время защиты, определенное для каждого используемого типа чехла для локализации пожара, а также чтобы это время учитывалось при планировании полетов и определении маршрутов.
9.3 Обучение и компетентность
9.3.1 Авиаперевозчик должен учредить и реализовать программы переподготовки, гарантирующие что в эксплуатирующей организации, равно как и в субподрядных организациях, ответственных за подготовку грузовых поддонов к погрузке на борт воздушного судна, существует достаточное количество надлежащим образом обученных и компетентных сотрудников, которые полностью осознают и применяют инструкции авиаперевозчика по монтажу чехла для локализации, способных продемонстрировать свою компетентность согласно ГОСТ Р ИСО 9001.
9.3.2 Основное содержание таких программ переподготовки должно включать, по крайней мере, требования настоящего стандарта. В процессе подготовки необходимо использовать обучение в полевых условиях с реальной демонстрацией монтажа существующих грузовых поддонов и чехлов для локализации пожара. Программы подготовки также должны включать информацию по ограничениям, применяемым для конкретного предполагаемого типа воздушного судна.
9.3.3 Результаты теоретической и практической проверки уровня профессиональной подготовки рекомендуется регистрировать в личном деле сотрудника. Лица, прошедшие обучение, могут считаться компетентными для того, чтобы проводить инспекцию чехлов для локализации пожара и выдавать разрешение на погрузку на борт воздушного судна.
Примечание - Рекомендуемая практика заключается в том, чтобы после проведения инспекции согласно принятому решению компетентный сотрудник подписывал этикетку на грузовом поддоне.
9.4 Контроль
9.4.1 Монтаж чехлов для локализации пожара и процессы инспекции следует подвергать постоянному контролю как любую деятельность, потенциально влияющую на безопасность полетов. Качество и результативность проведения данной деятельности периодически должна оценивать независимая организация в рамках внутренней оценки авиаперевозчика и программы контроля качества.
9.4.2 Структурное подразделение эксплуатирующей организации, отвечающее за контроль качества, должно проводить инспекцию, обследование и аудит на каждом участке комплектования грузового поддона, где осуществляется установка чехлов для локализации пожара, включая случаи, когда установка чехлов осуществляется на территории субподрядной организации.
9.4.3 Организациям, осуществляющим обработку грузов в аэропорту, выполняющим установку чехлов для локализации пожара для погрузки на борт воздушного судна авиаперевозчика, рекомендуется поддерживать в рабочем состоянии систему менеджмента качества, отвечающую требованиям ГОСТ Р ИСО 9001 или иному документу по стандартизации.
9.4.4 Помимо этого, в случае инцидента в полете или на земле, при загрузке или разгрузке воздушного судна, произошедшем в результате или имеющем отношение к ненадлежащему функционированию чехла(ов) для локализации пожара, информация об этом должна быть незамедлительно доведена в структурное подразделение эксплуатирующей организации, отвечающее за контроль качества. Данное структурное подразделение должно провести расследование происшествия с тем, чтобы проанализировать причины и предпринять корректирующие действия для предотвращения его повторения.
9.4.5 О любых случаях возникновения пожара на грузовом поддоне с установленным чехлом для локализации пожара на земле или в полете должно быть незамедлительно сообщено в структурное подразделение эксплуатирующей организации, отвечающее за контроль качества. Данное структурное подразделение должно провести расследование так же, как в случае происшествия, влияющего на безопасность полета. Чехол для локализации пожара, фигурировавший при пожаре, следует изолировать для проведения расследования.
Приложение А
(обязательное)
Длина 3 175 мм (125 дюймов)
Примечание - Высоту контура можно ограничить значением 2 438 мм (96 дюймов), контур с кодом А.

1 - осевая линия; 2 - альтернативная ширина; 3 - верхняя граница плоскости транспортера
Максимальный контур загрузки грузового поддона составляет 50 мм (2 дюйма) вовнутрь определенного максимального контура средства пакетирования грузов по всем четырем сторонам [6].
Приложение Б
(обязательное)
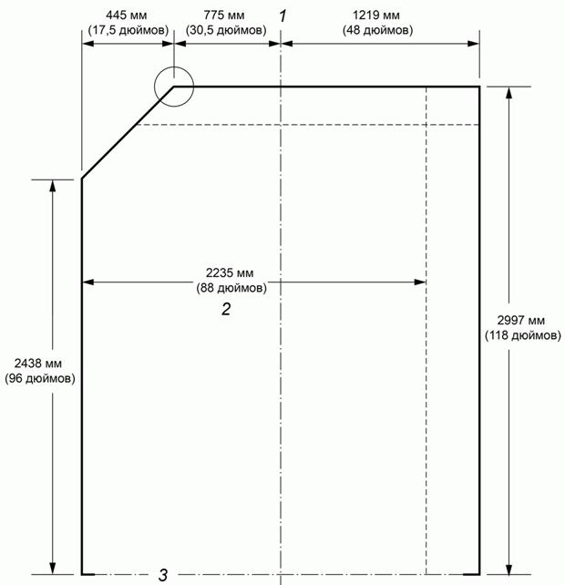
Длина 2 235 мм (88 дюймов) или 2 438 мм (96 дюймов)
Примечание - Распространяется на устройства, совместимые с нижней палубой, когда они устанавливаются на верхней (основной) палубе

1 - осевая линия; 2 - верхняя граница плоскости транспортера
Максимальный контур загрузки грузового поддона составляет 50 мм (2 дюйма) вовнутрь определенного максимального контура средства пакетирования грузов по всем четырем сторонам [6].
Приложение В
(обязательное)
Длина 2 235 мм (88 дюймов) или 2 438 мм (96 дюймов)
Примечание - Высоту контура можно ограничить значением 1 625 мм (64 дюйма) для устройств нижней палубы, которые могут загружаться на верхнюю (основную) палубу, контур Р.

1 - осевая линия; 2 - альтернативная ширина; 3 - верхняя граница плоскости транспортера
Максимальный контур загрузки грузового поддона составляет 50 мм (2 дюйма) вовнутрь определенного максимального контура средства пакетирования грузов по всем четырем сторонам.
Приложение Г
(справочное)
Рекомендуется, чтобы при нагреве материалов чехла (кожуха) для локализации пожара или сетки грузового поддона выделение любых загрязняющих веществ не превышало следующие уровни загрязнения:
- в рамках заданных условий проведения испытаний, в течение соответствующего времени проведения испытаний средняя концентрация (в частях на миллион, ppm) следующих газовых составляющих дыма не должна превышать пределы, указанные в таблице
Таблица Г.1
|
Ограничение концентрации газовой составляющей | |
|
Фтороводород (Hydrogen Fluoride) |
HF → 100 ppm |
|
Хлороводород (Hydrogen Chloride) |
HCl → 150 ppm |
|
Цианид водорода (Hydrogen Cyanide) |
HCN → 150 ppm |
|
Серы диоксид (Sulfur Dioxide) |
SO2 → 100 ppm |
|
Азотистые газы (Nitrous Gases) |
NO/NO2 → 100 ppm |
|
Окись углерода (Carbon Monoxide) |
СО → 1000 ppm |
- максимальное среднее значение оптической плотности дыма, Dm, не должно превышать 200 в течение 4 мин проведения испытаний в условиях горения.
Приложение Д
(рекомендуемое)
Пример контура Dc размером М. Характеристики загрузки для проведения испытаний см. в 6.2.2
Вид сбоку

1 - максимальный контур устройства пакетирования грузов (ULD);
- коробка для инициирования пожара;
® - регистрирующие термопары.
Максимальный контур загрузки грузового поддона составляет 50 мм (2 дюйма) вовнутрь определенного максимального контура средства пакетирования грузов по всем четырем сторонам [6].
Библиография
|
[1] |
IATA 50/0 |
Техническая документация на устройства пакетирования грузов |
|
[2] |
ИСО 12236:2006 (ISO 12236:2006) |
Геосинтетика. Статическое испытание на прокол (испытание CBR) (Geosynthetics - Static puncture test (CBR test)) |
|
[3] |
ИСО 4892-1:2016 (ISO 4892-1:2016) |
Пластмассы. Методы экспонирования под лабораторными источниками света. Часть 1. Общие руководящие положения (Plastics - Methods of exposure to laboratory light sources - Part 1: General guidance) |
|
[4] |
ИСО 4892-3:2016 (ISO 4892-3:2016) |
Пластмассы. Методы экспонирования под лабораторными источниками света. Часть 3. Люминесцентные лампы ультрафиолетового излучения (Plastics - Methods of exposure to laboratory light sources - Part 3: Fluorescent UV lamps) |
|
[5] |
KT-160G (RTCA DO-160G) |
Квалификационные требования. Условия эксплуатации и окружающей среды для бортового авиационного оборудования. Требования, нормы и методы испытаний (Environmental Conditions and Test Procedures for Airborne Equipment) |
|
[6] |
ИСО 10046:1996 (ISO 10046:1996) |
Авиация. Метод подсчета объема грузовых отсеков (Aircraft - Methodology of calculating cargo compartment volumes) |


